您现在的位置: 首页 >> 交易信息 >> 合肥市产权交易中心

项目编号:2025BFLCJ00099

项目名称:庐阳区淮河路202号部分房屋租赁

庐阳区淮河路202号部分房屋租赁公告

 

项目名称

庐阳区淮河路202号部分房屋租赁

项目编号

2025BFLCJ00099

委托方

合肥演艺集团有限公司

委托方承诺

委托方承诺本次出租行为已履行了必要的审批程序,保证本公告的内容不存在任何重大遗漏、虚假陈述或严重误导,并对其内容的真实性、完整性和准确性负责。

交易监督管理部门

合肥市公共资源交易监督管理局

联系方式:0551-662235300551-66223680

公告、

竞价期限

1.公告期2025年2219:00始至2025年31217:00止。

2.网络连续竞价自由报价期:2025年2219:00始至2025年31310:00止,自由报价期满进入延时竞价期,延时竞价周期为180秒。

一、出租标的情况

出租标的

所在层

结构

建筑面积(㎡

租期年)

租金底价(万元/年)

交易保证金(万元)

合肥演艺集团庐阳区淮河路202号部分房屋

1层(部分)

砖混

284.45

5

25.25916

2.5

1.标的坐落位置安徽省合肥市庐阳区淮河路202号综合楼一层

2.标的权属情况该标的有不动产权证书(大证未分割)。标的无权属纠纷,委托方提供该处标的的权属证明赁证明,方便承租人办理相关证照。

3.标的房屋遗留物品均不在出租范围内项目成交后,标的房屋遗留物品由委托方负责处理,具体情况意向承租人现场踏勘时须自行向委托方了解确认。

房屋租赁用途要求

1.租赁房屋证载途为商服用地/商业服务。该房屋不得经营住宿、重污染、重油烟、刺激性气味业态,未经允许不得使用瓶装液化气。

2.承租人使用上述房屋须符合相关法律法规要求,如由此造成承租人不能按预想的方案使用房屋并导致租赁合同不能履约的,责任由承租人承担。

租金及履约保证金支付

1.租金每6个月支付一次,租期内租金无递增,先支付后使用;本项目给予免租金装修期3个月,免租金装修期不含在租期内。

2.履约保证金为首年3个月租金总额。成交人应在《成交确认书》发出之日起5个工作日内(合同签订前)向委托方提交履约保证金。

二、对意向承租人资格的要求

1.凡依法设立、有效存续的境内企事业法人其他组织和具有完全民事行为能力的自然人,未被合肥市及其所辖县(市)、区(开发区)公共资源交易监督管理部门记不良行为记录的或被记不良行为记录(以公布日期为准),但同时符合下列情形的可参与项目登记及竞价:

1)公告截止日前(含当日)6个月内记分累计未满10分的;

2)公告截止日前(含当日)12个月内记分累计未满15分的;

3)公告截止日前(含当日)18个月内记分累计未满20分的;

4)公告截止日前(含当日)24个月内记分累计未满25分的。

2.本项目不接受联合体参与

三、承租条件

1.意向承租人应在本公告期截止前现场踏勘出租标的,就出租标的相关情况主动向委托方咨询,自行了解使用该房屋可能涉及的相关法律法规及市政规定;完成登记的意向承租人都视同已实地踏勘出租标的,确认了标的位置、范围、面积和现状等并认可租赁要求,自愿承担因上述原因导致的一切后果和法律责任。

2.公告所列示的标的建筑面积仅作参考,不作为确定房屋租金的依据,最终以标的实际面积为准。标的实际面积与本公告所列示建筑面积不符的,不调整成交价格。出租面积之外的建筑物、附属物(如道路、绿化、空地、停车场等)均不在出租范围内,委托方不提供任何承诺及服务。

3.承租人在租赁合同履约期限内,不得转租。

4.租赁期内,承租人负责租赁房屋及一楼公共区域的日常管理工作并承担租赁房屋一楼公共区域发生的水、电、燃气、通讯(网络)、垃圾清运、物业管理、停车等相关费用。承租人须负责租赁房屋的消防安全工作并承担相关费用,自觉接受、配合有关部门的监督检查,不得有危害消防安全的行为  

5.租赁期内,承租人对租赁房屋进行装修、装潢时,装修、装潢方案须经委托方书面同意,且装修、装潢不得改动或破坏房屋结构。如擅自改动或破坏房屋结构,承租人应立即恢复原状,给委托方或第三方造成的损失应由承租人承担赔偿责任。租赁房屋的装修、装潢费用及租期内房屋的维修费用全部由承租人自行承担。

6.租赁期内,承租人不得以任何理由要求减免租金。如因法律法规及市政规定需要拆除或改造租赁房屋而导致合同解除的,租金按照实际租赁时间计算,不足整月的按实际天数计算,多退少补。

7.合同期满或终止时,承租人投入的装修、装潢部分无偿归委托方所有和使用,并将租赁房屋在合同终止后10日内交还委托方,且不得提出任何补偿要求。

8.承租人应在《成交确认书》发出之日起5个工作日内与委托方签订租赁合同逾期不与委托方签订合同的,委托方有权取消其成交资格,并报交易监督管理部门调查处理。

9.其他未尽事宜详见本公告附件《房屋租赁合同》。

四、承租确定方式

本项目采取网络连续竞价,最高报价者得的方式确定承租,最终成交结果以结果公告为准。

:最高报价是指不低于公告底价的最高报价,由于系统故障或竞价系统信息与公告信息不符或委托方要求中止终止项目造成竞价中止终止时的最高报价不作为本项目最高报价。

五、意向承租人参与方式

市场主体库登记

符合本项目对意向承租人的资格要求,并完成市场主体库登记注册的方可参与本项目登记。具体方式如下:

1.意向承租人为企事业法人、其他组织的,须凭借第三方电子认证服务提供者签发的电子签名认证证书(简称CA)直接登录安徽合肥公共资源交易电子服务系统(网址:https://www.hfztb.cn)。

2.意向承租人为自然人点击安徽合肥公共资源交易电子服务系统(网址:https://www.hfztb.cn)下方的“安徽政务服务网统一认证中心登录”。

具体流程参见安徽合肥公共资源交易中心网站(网址:https://ggzy.hefei.gov.cn)“办事指南-主体库登记-市场主体登记服务指南》。

项目登记

1.完成主体库登记的意向承租人,直接登录安徽合肥公共资源交易电子服务系统(网址:https://www.hfztb.cn),进入后选择点击“安徽公共资源交易集团电子交易系统;页面跳转至安徽公共资源交易集团电子交易系统后,点击左上角的“产权交易”栏目,在列表中选择有意向的标的点击“我要参与”,再点击“项目登记”提交登记申请,意向承租人可选择一个或多个项目分别进行登记。

2.登记申请时填写的交易保证金款账户须与意向承租人实际交纳交易保证金的银行账户一致。

交易保证金交纳

1.意向承租人登记成功后,须通过项目登记时填写的己方账号以转账的方式汇入项目对应账号足额的交易保证金。不得通过现金汇款方式交纳交易保证金。交易保证金如下:

户名:合肥市产权交易中心

开户银行:中国光大银行合肥阜南路支行

账号:76700188015628103

2.交易保证金支付完成后,意向承租人须登录安徽公共资源交易集团电子交易系统点击“保证金查询”查看交易保证金支付状态。若显示“未支付”,可点击查询按键刷新支付状态。若刷新后交易保证金支付状态仍显示“未支付”的,意向承租人可在公告截止前及时联系技术支持电话(0512-58188516)进行反馈。

注意事项:交易保证金支付以到账时间为准,意向承租人须确保交纳的交易保证金在公告截止时间前到账,网上登记系统将在到达公告截止时间时自动关闭。如因账号错误、交易保证金数额不足、交易保证金未在规定时间内到账、现金款等原因造成未能登记及竞价成功,合肥市产权交易中心不承担任何责任。

项目竞价

1.交易保证金状态为“已支付”的意向承租人方可点击“进入竞价系统”参与竞价活动。

2.竞价规则详见网络连续竞价须知本公告上传附件1)

3.本项目标的每轮加价幅度:2000元或其整数倍

重要提示:请使用IE10及以上版本浏览器登录竞价系统,否则可能导致异常。鉴于互联网环境可能存在的时延等不可抗因素,意向承租人应尽量在自由报价期内充分报价,在延时竞价期内及时报价。

注:意向承租人须在公告期内完成注册、登记及交易保证金交纳手续,因未在规定时间完成上述手续造成无法参与竞价的,合肥市产权交易中心不承担任何责任。上述注册、登记及竞价等具体操作流程详见《产权交易操作手册》本公告上传附件2)

六、竞价结束后相关程序

结果公告及《成交确认书》

1.竞价结束且无异常情况,合肥市产权交易中心将在网站上发布结果公告

2.结果公告发布后,合肥市产权交易中心将通过电子交易系统向成交人发出成交确认书,成交确认书发出即视为送达成交人请登录电子交易系统领取成交确认书

交易保证金处置

1.合同签订生效后,承租人交纳的交易保证金扣除交易服务费后的剩余款项可转为首期租金,其他意向承租人交纳交易保证金结果公告发布之日起5个工作日内原额原途径返还(不计息)。

2.交易保证金只退还至意向承租人款账户。因收款人与意向承租人名称不一致造成的交易保证金无法退还或迟延退还,合肥市产权交易中心不承担任何责任。

3.经交易监督管理部门调查认定出现下列情形之一的不良行为,交易保证金不予返还,交易保证金扣除交易双方交易服务费后,余款转至委托方指定的账户。

1)意向承租人提供虚假材料,骗取成交资格或实现其他非法目的;

2意向承租人之间相互串通的;

3)意向承租人采取不正当手段影响和干扰其他意向承租人参与交易活动的;

4)承租人无正当理由放弃成交资格的;

5)承租人未按交易文件约定交纳履约保证金或签《房屋租赁合同》的。

异议方式

若对结果公告有异议,可自结果公告发布次日起3个工作日内,以书面形式向合肥市产权交易中心提出异议,异议材料递交地址:合肥市滨湖新区徽州大道4872号金融港中心A9幢安徽公共资源交易集团4楼,联系电话:0551-66223705

(一)异议应以书面形式实名提出,书面异议材料应当包括以下内容:

1.异议人的名称/姓名、地址、有效联系方式;

2.项目名称、项目编号、标的号(如有);

3.被异议人名称/姓名;

4.具体的异议事项、基本事实及必要的证明材料;

5.明确的请求及主张;

6.提起异议的日期。

异议人为自然人的,应当由异议人本人签字并附有效身份证明;异议人为法人或者其他组织的,应当由法定代表人或其委托代理人(需有委托授权书)签字并加盖公章。

异议人需要修改、补充异议材料的,应当在异议期内提交修改或补充材料。

(二)有下列情形之一的,不予受理:

1.提起异议的主体不是所异议项目竞价人的;

2.异议材料不完整的;

3.异议事项含有主观猜测等内容且未提供有效线索、难以查证的;

4.异议事项已进入投诉处理、行政复议或行政诉讼程序的。

(三)若异议人对异议处理意见有异议,可在答复期满后7个工作日内以书面形式向交易监督管理部门提出投诉。

交易服务费收取

交易服务费收取标准为首年成交月租金的10%,不足500元的,按500元收取。

七、其他说明

1.意向承租人可在公告截止之前工作时间内至合肥市产权交易中心项目负责人处查阅委托方向合肥市产权交易中心提供的相关项目材料。上述材料均为参考性意见,不构成合肥市产权交易中心对出租标的的任何担保责任;

2.对本项目公告内容要求澄清或有异议的意向承租人,应于公告截止日前3个工作日前,以书面形式向合肥市产权交易中心提出,逾期递交的不予受理。

3.合肥市产权交易中心对本公告进行的澄清、更正或更改,将在网站(https://ggzy.hefei.gov.cn)上及时发布,该公告内容为租赁公告的组成部分,对意向承租人具有约束力。意向承租人应主动上网查询。合肥市产权交易中心不承担意向承租人未及时关注相关信息的责任。

4.在公告截止时间前,合肥市产权交易中心可以视具体情况,延长公告截止时间,并在网站上发布变更公告。

八、联系方式

现场踏勘

联系人:朱工;联系电话:0551-63899270

主体库登记

联系电话:010-86483801转6-1

项目负责人

联系人:刘工,联系电话:0551-66223742(合肥市滨湖新区徽州大道4872号金融港中心A9幢安徽公共资源交易集团4楼)

技术支持

0512-58188516

本项目意向承租人如需咨询,务必首先认真阅读本项目公告,并针对具体条款进行咨询。本公告为本项目唯一法定文书,一切解释以本公告为准。本公告及其附件解释权归合肥市产权交易中心。

 

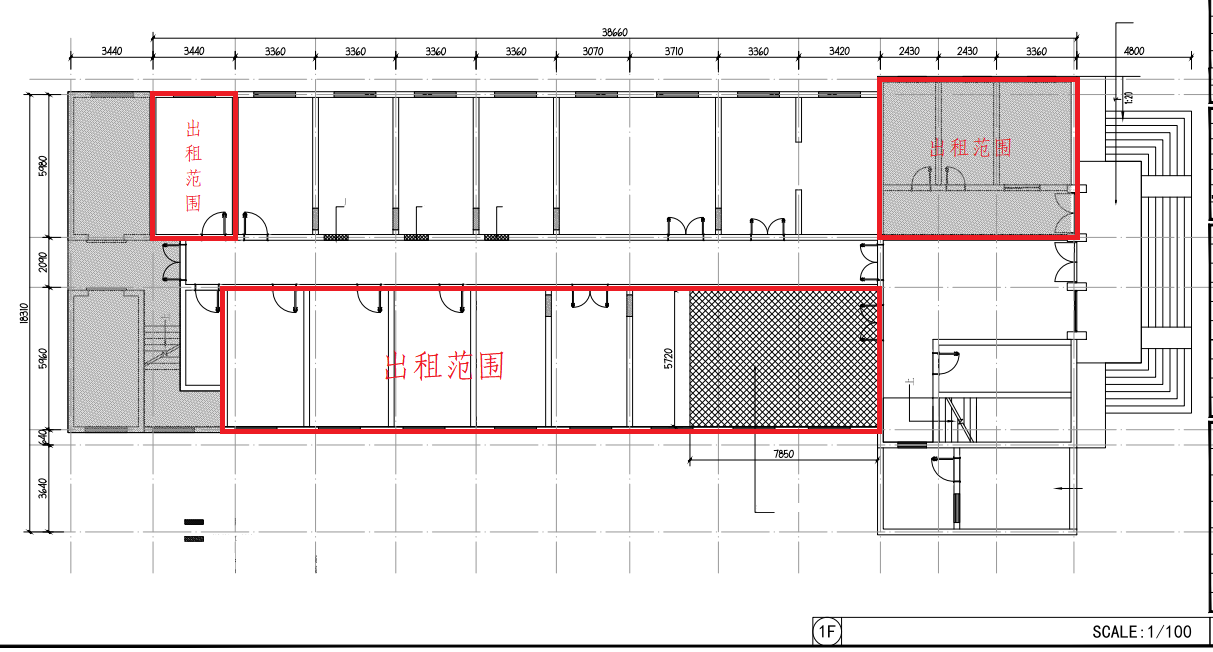
图一:标的所在位置(仅供参考,以实地踏勘为准)

 

图二:标的外观(仅供参考,以实地踏勘为准)

 

出租平面图(仅供参考,以实地踏勘为准)

 

合肥市产权交易中心

 


附件:

 

出租人以下简称甲方):

承租以下简称“乙):

 

根据《中华人民共和国民法典》等相关法律、法规规定,为明确双方的权利义务关系,甲乙双方在平等、自愿的基础上,经协商一致,签订本合同。

第一条:租赁房屋的地址、面积、用途

房屋落于                                                  

建筑面积        m²           租赁用途               

乙方使用租赁房屋须符合房屋设计用途及相关法律法规要求,若由此造成乙方不能按预想的方案使用房屋并导致租赁合同不能履约的,责任由乙方承担。

第二条租赁期限

房屋租赁期限自         日起至         日止,计   年整。本项目给予免租金装修期               日起至         日止

第三条:履约保证金

(一)履约保证金为人民币       ,乙方应在合同签订前将履约保证金交付给甲方。

(二)如乙方承租期间无违约情况发生,该履约保证金在租赁期满后不计息退还乙方

(三)合同期满或合同解除后,乙方应及时结清承租期间应承担的租金及各项费用(含违约金滞纳金等),否则此类款项将直接从履约保证金中扣除。

第四条:房屋租金、交纳方式、交纳时间

(一)首年租金为人民币          递增情况

(二)乙方将租金至甲方指定的账号户名:合肥演艺集团有限公司,开户银行:徽商银行合肥天鹅湖支行,账号:225006187401000002)。合同期内如甲方需要变更租金结算账户,应及时将变更后的账户书面通知乙方。

(三)乙方须在合同签订之日10个工作日内向甲方交纳首期租金,计人民币    租金6个月支付一次,先支付后使用,以后每期租金应在下一个使用期开始10日前向甲方支付。

第五条:房屋交付

一)甲方收到乙方履约保证金及首期租金后,应10个工作日内将租赁房屋交付给乙方。乙方未及时付清应付款项的,甲方有权拒绝交付房屋且不承担违约责任,实际租赁期不进行顺延,由此造成的经济损失全部由乙方自行承担

(二)甲方原因推迟交房,则将租赁终止时间进行等长时段的顺延,实际租期保持不变。

(三)甲方交付租赁房屋时应保证房屋本身及附属设施、设备处于正常使用状态(招租时另有约定的除外),《租赁房屋现场交接清单》经双方交验签字并移交房门钥匙后视为交付完成。

第六条:房屋收回

一)租赁期满或租赁合同解除后,乙方必须在租赁期满或租赁合同解除10日内无条件将房屋归还甲方。

二)乙方交还房屋时应保证房屋本身及附属设施、设备处于完好状态,租赁期内乙方添置的可移动的物品可自行收回,但对于装修、改造后不可移动的建筑和设施设备,须按照当时的状况完好无偿地移交给甲方。

三)对于该房屋内乙方未经甲方同意遗留的物品,甲方有权自行处置。

四)甲乙双方现场验收交接后在《租赁房屋现场交接清单》上签字,甲方收回房屋。

第七条:装修改造

一)房屋租赁期间,乙方因经营需要对租赁房屋进行装修的,所需全部费用由乙方承担;房屋进行装修前必须以书面形式征得甲方同意,乙方装修中应确保不会破坏房屋主体结构不得破坏或改变甲方与相邻产权人的产权界限,否则所造成的经济损失和引起的产权纠纷责任全部由乙方承担;甲方有权监督装修施工过程,并有权提出必要的整改意见。

二)如乙方因经营需要对安全、消防、水、电、通讯等基础设施、设备进行改造或升级的,须事先征得甲方的同意方可进行,改造升级的施工由乙方负责,所需各项费用均由乙方承担;设施改造升级后不可移动的部分应在租赁结束后完好无偿地移交给甲方。

三)在房屋装修及设施、设备改造过程中,乙方必须加强施工现场管理,施工过程中造成的安全事故责任及经济损失由乙方承担,甲方对乙方进行房屋装修或设施改造施工中造成的安全事故及经济损失不承担任何责任。

第八条:甲方的权利义务

一)甲方按期向乙方收取房屋租金并出具收款票据。

二)甲方应为乙方提供办理经营证照所需租赁证明等相关材料。

三)甲方对房屋主体结构的安全负责,并负责房屋主体结构日常的维修、维护。

四)甲方按现状提供租赁房屋现有的附属设施、设备供乙方使用,但不承担合同期内此类设备的检测、维修、使用、监管等义务,租赁期内此类设备发生安全责任事故,甲方不承担任何法律责任。

五)在租赁期限内,甲方如以出售、赠与、互易、出资或其他方式全部或部分变更租赁房屋的产权,应提前三十日书面通知乙方。

六)甲方应保证租赁房屋无产权纠纷,如有纠纷,由甲方负责处理并承担相关责任,如因此给乙方造成损失的,由甲方负责赔偿。

第九条:乙方的权利义务

一)乙方经营项目应符合相关法律法规的要求,并根据主管部门的要求办妥相关环评、消防备案及经营证照等相关手续。

二)乙方应按照本合同约定按时支付租金及承担各项费用,租赁期间该房屋产生的水费、电费、卫生费、电话(网络)费、物业管理费、电视收视费、供暖费等各项费用均由乙方自行承担。

三)乙方负责合同履行期内房屋日常维护管理、安全、消防、门前三包等事项并承担产生的相应费用。

四)乙方负责房屋附属设施、设备使用期间的安全检测、维护保养、故障维修等事宜,所需费用由乙方自行承担。如因乙方对设施、设备使用不当或监管不当所造成的安全责任事故,其责任及损失由乙方承担。

五)乙方应按照消防部门要求配备齐全并及时更新消防设施设备,应保证消防通道畅通。甲方及上级部门对租赁房屋内安全消防设施进行工作检查时,乙方应予以配合,对检查中发现的安全隐患等问题应及时整改。

六)如房屋主体结构需要维修、维护的,乙方须书面告知甲方。乙方在日常经营时应协调好与其他业主以及物业公司之间的关系,同时应避免损害甲方的权益。

七)租赁期内如甲方出售房屋产权,则同等条件下乙方有优先购买权;租赁期内该房屋所有权发生变动的,本合同在乙方与新所有权人之间仍具有法律效力。

第十条:合同的解除

(一)甲、乙双方必须严格按照项目公告及有关承诺签订合同,不得擅自变更。甲、乙双方不得再行订立背离合同实质性内容的其他协议。对任何因双方擅自变更合同引起的问题和合同风险由双方自行承担。

(二)因甲方单方面要求而提前解除合同,甲方应对乙方装修部分在进行专项评估后进行补偿。

(三)因乙方单方面要求而提前解除合同、以及租赁到期合同自然解除的,乙方承租期间因经营需要所实施的装修改造部分,甲方不作任何形式的补偿。

(四)有下列情形之一的,本合同解除,按乙方实际承租时间结算租金及各项费用,甲乙双方互不承担违约责任,互不进行任何经济补偿,甲方对于乙方承租期间的装修部分不进行任何形式的补偿,如果政府部门、拆迁单位对于房屋的装修部分进行专项经济补偿,则该项装修补偿款为乙方所得:

1.该房屋因城市建设需要被依法列入房屋拆迁范围的

2.因房屋所在地段整体性商业开发等需要拆除该房屋的

3.因自然灾害等不可抗力因素致使房屋毁损、灭失或造成其他相关损失的

4.其他不可预见的因素导致合同无法履行的。

(五)乙方有下列行为之一的,甲方有权单方解除合同收回房屋,责令乙方限期清场搬离,此类情形甲方不承担违约责任,对于乙方承租期间所实施的装修改造部分不进行任何补偿:

1.擅自将该房屋转租、转让或转借给第三方的,与他人合作经营的

2.不支付或者不按照约定支付租金20

3.各项费用达人民币3个月租金总额

4.擅自拆改变动或损坏房屋主体结构的

5.利用该房屋从事违法活动的

6.因乙方自身原因,未能处理好邻里关系导致甲方被投诉、起诉或陷入其他争议、纠纷的,以及有其他损害甲方利益行为的。

第十一条:甲方违约责任

一)甲方未按约定时间交付该房屋,每延迟一天应按当期日租金金额/天的标准承担违约赔偿金。

二)甲方未及时对房屋主体结构进行维修、维护,而给乙方造成损失的,甲方须承担责任并赔偿损失。

三)租赁期内,甲方因单方面原因需提前解除合同的,应提前60以书面形式通知乙方,否则须向乙方支付违约金为当年3个月租金总额

四)如因该房屋的产权纠纷给乙方造成损失的,甲方应负责评估损失并予以补偿。

第十二条:乙方违约责任

一)乙方有本合同第十条第五款所列行为之一的,应承担违约责任,并向甲方支付违约金为当年3个月租金总额

二)未经甲方同意,乙方擅自对该房屋进行装修或在施工中破坏房屋结构、附属设施设备、产权界限的,甲方除有权要求损失赔偿外,乙方还须对损坏部分进行维修复原。

三)租赁期内,乙方因单方面原因需提前解除合同的,应提前60以书面形式通知甲方,否则须向甲方支付违约金,违约金为当年3月租金总额

四)租赁期内乙方未按约定时间支付租金,除须补外,每迟付一天应按当期日租金金额/天标准承担违约金。

五)租赁到期或合同解除后,乙方未按约定时间清场并返还甲方房屋的,除须按最后一期租金标准补交延迟交房时间段内的租金外,每延迟一天还应按当期日租金金额/天标准承担违约金。

六)乙方承租期内发生的违约金均直接从乙方履约保证金中扣除,不足部分由乙方另行交纳

第十三条:乙方接收房屋后,该处租赁房屋、附属设施及所存放物品的全部安全及消防责任均由乙方完全承担。租期内如果发生因乙方经营违反消防安全规定、消防器材配备不齐全以及安全管理混乱且不予整改的或对于突发消防安全事件处置操作失当而造成经济财产损失的,则视为乙方重大违约行为,乙方须承担全部赔偿责任及法律后果,同时甲方有权单方面解除本合同。

第十四条:特别约定

                                                                 

第十五条:争议的解决方式

如本合同在履行过程中发生争议,双方应协商解决;协商不成的,采取以下第2种方式处理:

1. / 仲裁委员会提请仲裁;

2.向甲方所在地人民法院起诉。

第十六条:本合同经甲、乙双方法定代表人或授权代表签字、盖章后生效。合同签订地点:     

本合同一式  份,其中甲方执   份,乙方执   份。

 

 

甲方(盖章):                            乙方签字/盖章):             

法定代表人或授权代表:                    法定代表人或授权代表:

统一社会信用代码                        公民身份号码/统一社会信用代码

    

联系电话:                                联系电话:                  

 

                                         

 

 

 

 

附件:附件1:网络连续竞价须知.docx 附件:附件2:产权交易操作手册.docx