您现在的位置: 首页 >> 交易信息 >> 合肥市产权交易中心

项目编号:2024HCFCA01551

项目名称:合肥市轨道交通4号线伊宁路P+R停车场配套商业102号商铺经营权转让(2025-2030年度)

合肥市轨道交通4号线伊宁路P+R停车场配套商业102号商铺经营权转让(2025-2030年度)公告二次

 

项目名称

合肥市轨道交通4号线伊宁路P+R停车场配套商业102号商铺经营权转让(2025-2030年度)二次

项目编号

2024HCFCA01551

委托方

合肥市轨道交通集团有限公司

委托方承诺

委托方承诺本次转让行为已履行了必要的审批程序,保证本公告的内容不存在任何重大遗漏、虚假陈述或严重误导,并对其内容及所提供资料的真实性、完整性和准确性负责。

交易监督管理部门

合肥市轨道交通集团有限公司纪委

联系方式:0551-63662357

电子交易系统

名称:安徽公共资源交易集团电子交易系统
电话:0512-58188516

电子服务系统

名称:安徽合肥公共资源交易电子服务系统
电话:0551-12345

公告期限

公告期:202412209:00始至2024123014:00止。

一、转让标的情况

转让标的

所在层

建筑面积(㎡)

转让期限(年)

转让底价(万元/年

交易保证金(万元)

合肥市轨道交通4号线伊宁路P+R停车场配套商业102号商铺经营权(2025-2030年度)

1层

285.64

6

27.42144

2.7

经营权基本情况说明:

1.标的坐落位置:安徽省合肥市包河区历口路与青通河路交口东南角。

2.本项目标的产权方为合肥市轨道交通集团有限公司,合肥市轨道交通集团有限公司委托合肥城市轨道交通资源开发有限公司(以下简称“管理方”)管理本项目标的。本项目成交后,受让方与管理方签订合同,经营费用及履约保证金由管理方收取并开具相应票据。

3.标的权属情况:标的有不动产权证书。标的无权属纠纷,管理方将提供该处标的的权属证明,方便受让方办理相关证照。

4.标的无燃气,未预留隔油池,餐饮条件受限。受让方需自行考虑使用及改造事宜,由此产生的费用由受让方自行承担。

转让标的用途要求

1.转让标的证载用途为轨道交通用地。根据管理方对本次经营权标的整体规划要求,受让方经营业态具体要求如下:

1)经营范围:以快餐、饮料、小吃为主的品牌连锁西式快餐。受让方的经营业态须书面向管理方申请备案,经管理方同意后方可营业。

2)不得经营殡葬、易产生噪音、有害刺激性气体、严重油污等涉及环境污染、有碍东侧居民区日常生活的业态;不得经营废品回收、烟花爆竹等涉及危险品的业态;不得经营其他不符合法律法规规定的业态。

3)合理规划经营布局,实行规范化经营管理,否则管理方有权要求受让方限期纠正,逾期不改的,管理方有权解除合同。

2.受让方应按照公告中确定的业态范围进行经营管理。如需经营上述范围以外业态,须书面报送管理方,经管理方书面同意后方可实施。

3.受让方使用上述标的须符合相关法律法规要求,如由此造成受让方不能按预想的方案使用标的并导致合同不能履约的,责任由受让方承担。

转让费用及履约保证金支付

1.转让价款支付:转让费用每6个月支付一次,第一年转让费用为成交价/12*11,第二年转让费用为成交价,自第三年起,每年转让费用在上一年基础上递增2%。先支付后使用。首期转让费用在合同签订并交付标的5日内一次性转账支付,以后每期转让费用须提前30日付至管理方指定账户。

2.免费用商业培育期:本项目给予免费用商业培育一个月免费用商业培育期包含在转让期内,即:首期转让费用为成交价/12*5

3.免费用装修期:本项目给予免费用装修期60日,免费用装修期以管理方正式移交后次日起计算,免费用装修期不含在转让期内。

4.履约保证金金额为成交后首年三个月转让费用金额总和(即:成交价/12*3),履约保证金应在《成交确认书》发出之日起30日内(合同签订前)向管理方提交。如受让方在合同期内无任何违约违法行为,合同期满或因不可抗力、法律政策变化致使合同无法履行,或协商终止,且双方无争议后,履约保证金由管理方不计息退还。本项目履约保证金可采用银行转账或管理方指定格式保函方式(保函格式详见合同附件)提交,具体要求详见《经营权转让合同》。

二、对意向受让方资格的要求

(一)符合下列条件,并具有完全民事行为能力的境内企事业法人、其他组织,除法律另有规定外,均可参与项目登记及竞价。

1.未被合肥市及其所辖县(市)、区(开发区)公共资源交易监督管理部门记不良行为记录的,或被记不良行为记录(以公布日期为准),但同时符合下列情形的:
1)公告截止日前(含当日)6个月内记分累计未满10分的;
2)公告截止日前(含当日)12个月内记分累计未满15分的;
3)公告截止日前(含当日)18个月内记分累计未满20分的;
4)公告截止日前(含当日)24个月内记分累计未满25分的。

2.意向受让方具有不少于20个正在履约的西式快餐直营门店业绩。注:本项中西式快餐直营门店指由意向受让方或其分公司或其全资子公司开立的门店

(二)本项目不接受自然人、个体工商户及联合体参与。

三、转让条件

1.意向受让方应在本项目公告期内自行现场踏勘经营标的,就标的相关情况主动向管理方咨询,自行了解可能涉及的相关法律法规及市政规定;凡参与项目登记的意向受让方都视同已实地踏勘,确认了经营标的位置、范围、面积和现状等并认可转让要求等,自愿承担因上述原因导致的一切后果和法律责任。如在踏勘过程中发生的人身伤亡、财产损失等安全事故,一切责任均由意向受让方自行承担。

2.标的建筑面积仅作参考,不作为确定经营权转让费用的依据,标的实际面积与本公告所列示建筑面积不符的,不调整成交价格。转让面积之外的建筑物、附属物(如道路、绿化、空地、停车场等)均不在经营管理范围内,管理方不提供任何承诺及服务。

3.标的资产现状移交包括但不限于现况结构、现况装饰、资产内配电末端设备、空调末端设备及消防末端设备等。如不能满足后期经营需要,受让方须向管理方或其委托的物业管理公司提出增容或改造申请,待管理方或其委托的物业管理公司审批同意后,由受让方自行向政府相关部门办理相关手续并承担相应费用。标的资产的装修、改造工作、安全责任及其费用全部由受让方自行承担。

4.受让方对资产进行装修、装潢、改造,须遵守国家、省市相关规定施工,并应在装饰装修前(包括再次装修)向管理方及物业管理公司提交详细的设计施工计划、说明、图纸和效果图等资料,经管理方、物业管理公司及政府主管部门(如需要)书面批准后方可开始装修,且须遵守管理方或其委托的物业管理公司的各项规定。装修过程中,受让方不得改动、破坏资产主体结构或擅自拆除承重墙体,因装修、改造等所引起的一切后果均由受让方自行承担(如有损坏或擅自改动,受让方应立即负责恢复原状,如给管理方或第三人造成损失,受让人应承担赔偿责任)。管理方或其委托的物业管理公司对受让方的装修、改造和增设的设施设备不负有修缮义务。

5.免费用装修期包括但不限于受让方对标的资产范围内的装修设计、施工报审、装修施工、施工验收等一系列装修工作和手续办理时间,受让方承担在此期间所产生的一切费用,包括但不限于水费、电费、通讯(网络)费、停车费及物业管理费等。装修保证金根据管理方或其委托的物业管理公司制定的相关规定进行缴纳和退还。

6.转让期限届满或合同解除后,受让方必须在转让期限届满或合同解除后10日内无条件将资产及附属设施、设备归还管理方,转让期间因经营需要所实施的装修改造部分,管理方不作任何形式的补偿。若受让方不按照管理方要求的条件交付场地,自管理方发出书面通知之日起,管理方有权自行收回并有权处置场地内受让方及其商户的物品,因此产生的一切不利后果均由受让方承担,管理方有权从履约保证金中扣除因此发生的相关费用,不足部分向受让方追偿。

7.转让期间,受让方不得以任何形式直接或变相将经营权整体转让给第三方经营管理、违法经营。若发生上述情形,管理方有权解除合同并追究其相关法律责任。

8.转让期内,受让方须遵守管理方或其委托的物业管理公司的各项管理制度,负责标的资产内日常安全管理、设施设备养护维修维保等工作,自行承担在转让期间产生的相应费用,包括但不限于水费、电费、停车费、通讯(网络)费、物业管理及日常维修等费用。

9.受让方因自身经营行为产生的消防报验、审批等所有相关手续(如需)需自行办理,费用自理,管理方协助配合。

10.受让方在完成报价时即视为已了解管理方交付条件,确定成交资格后不得以此为由拖欠或拒付履约保证金或转让费用,并不得以此为由向管理方进行索赔。转让期内,受让方不得以任何理由要求减免转让费用。

11.受让方应按照管理方要求及时缴纳履约保证金和首期转让费用。受让方未能如期支付履约保证金及首期转让费用的,管理方有权拒绝交付场地、解除合同且不承担任何违约责任,若由此造成的经济损失全部由受让方自行承担。标的移交时间以管理方的交付通知书为准,若管理方原因推迟交付,则将转让期终止时间进行相应顺延,实际转让期限保持不变。

12.转让费用不包含物业费,标的资产的物业费由受让方自行承担,具体物业费收取标准及方式以受让方与管理方委托的物业管理公司签订的物业管理服务合同为准。

13.管理方不提供免费车位,标的资产所在伊宁路P+R停车场停车位为有偿使用,车位费不包含在转让费用范围内。

14.受让方应积极维护伊宁路P+R停车场项目整体的公共设施、公共安全、公共卫生等,受让方须配合提升项目的良好形象,自觉接受有关政府部门、执法部门、管理方及物业的监督检查。在转让期内,未经管理方同意,受让方不得随意占用公共区域、公共设施,不得以任何目的或形式使用管理方的名称或标志以及该名称或标志的各种LOGO图像等,否则视同受让方违约。

15.标的资产范围外的公用设备设施,日常维护管理由管理方或其委托的物业管理公司负责,涉及到全部供受让方使用的设施设备所产生的维修、维保等工作及费用由受让方自行承担;若上述公用设施设备因受让方原因损坏的,由受让方负责在管理方或其委托的物业管理公司规定的时限内进行维修或更换或承担相应的赔偿责任。

16.受让方应在《成交确认书》发出之日起30日内与管理方签订《经营权转让合同》,逾期不与管理方签订合同的,管理方有权取消其成交资格,并报交易监督管理部门调查处理。

17.除了特殊说明外,本项目中“日”均指日历天。

18.其他未尽事项详见本公告附件《经营权转让合同》。

四、受让方的确定方式

本项目采取资格审查后网络连续竞价的方式进行,遵循有效最高价成交的交易原则,分两阶段进行。

第一阶段  资格审查资料评审

合肥市产权交易中心受委托方委托组建该项目资格审查小组。由资格审查小组对意向受让方的资格审查资料及交易保证金进行审查。资格审查小组成员对意向受让方某项资格审查资料如有不同意见,按照少数服从多数的原则,确定该项资格审查资料是否通过。如意向受让方提交的材料中有一项未通过或交易保证金未按要求提交的,则视为资格审查不通过。

第二阶段  组织竞价

1.资格审查评审结束后,将采取网络连续竞价的交易方式,价高者得。

2.竞价时间和网址:网络连续竞价自由报价期:202412319:00始至2024123110:00,自由报价期满进入延时竞价期,延时竞价周期为180秒。每轮加价幅度:2000元或其整数倍。竞价网址:http://jingjia.ahggzyjy.com。竞价规则详见《网络连续竞价须知》(本公告上传附件3)。

备注:

1.评审过程中,资格审查材料中存在不明确、同类问题表述不一致、前后矛盾、有明显文字错误的内容等情况,如需要意向受让方澄清、说明或补正的,资格审查小组将可能进行问询,意向受让方应登录电子交易系统并保持在线状态,以便及时接收资格审查小组可能发出的问询函,并在规定时间内回复,若意向受让方未及时回复,视为放弃澄清。意向受让方澄清、说明或补正的内容不得超出交易文件的范围且不得改变资格审查材料的实质性内容,并构成资格审查材料的组成部分。资格审查小组不接受意向受让方主动提出的澄清、说明或补正。

2.因意向受让方授权代表联系不上、没有及时登录系统等情形而无法接受资格审查小组问询的,有关风险意向受让方自行承担。

3.项目成交后因故不能签订合同的,不予替补,重新公开转让。

五、意向受让方参与方式

参与前须知

1.意向受让方须登录电子服务系统,需使用与电子服务系统兼容的电子证书(简称CA),新办CA详情参见安徽合肥公共资源交易中心网站(网址:https://ggzy.hefei.gov.cn)“办事指南”-主体库登记-《市场主体库登记服务指南》。

2.意向受让方查阅公告后,如参与本项目,则须登录电子交易系统在公告期限内完成“交易信息填写”,并编制加密竞价文件并在竞价文件提交截止时间前递交。
3.参与过程中有任何疑问,请在工作时间(9:00-17:30,节假日休息)拨打技术支持电话:0512-58188516(非项目咨询)。

交易保证金交纳

1.意向受让方应当在竞价文件提交截止时间前,通过转账形式足额交纳交易保证金到达本项目本次公告指定账号,且应当从意向受让方账号转出。交易保证金账户信息如下:

户名:合肥市产权交易中心

开户银行:中国光大银行合肥阜南路支行

账号:76700188015492206

2.竞价文件提交截止时间后,合肥市产权交易中心将从交易保证金查询系统中查询交易保证金信息,并提交资格审查小组评审。

3.交易保证金交纳人名称与意向受让方名称应当一致。分公司或子公司代交交易保证金,视同名称不一致。交易保证金交纳人名称与意向受让方名称不一致的,交易保证金无效。未按要求提交交易保证金的,评审不通过。

注意事项

1.交易保证金交纳账号采用动态虚拟账号,项目未成交的,交易保证金交纳账号将会发生变化,请意向受让方参与后续项目竞价时,注意勿将交易保证金错交至其他项目虚拟账号或前次公告账号。

2.如本项目前次成交失败,委托方退还意向受让方的交易保证金。意向受让方重新参与竞价的,须向本项目重新公告对应公布的交易保证金账号重新交纳交易保证金。

3.凡转账到其他项目虚拟账户或本项目前次公告账户的,交易保证金无效。

须递交的竞价文件资料(资格审查资料)

竞价文件意向受让方应根据要求制订竞价文件材料,包含但不限于以下内容:

1.营业执照(或登记证书);

2.授权委托书或法定代表人身份证;

3.承诺函;

4.业绩证明材料:

1)业绩对应门店为意向受让方或其分公司经营的,提供该门店营业执照扫描件;业绩对应门店为意向受让方全资子公司经营的,提供如下材料:①该门店营业执照扫描件;②意向受让方持有该子公司100%股权的证明文件(国家企业信用信息公示系统网站截图(www.gsxt.gov.cn)或行政主管部门出具的证明材料)。

2)业绩合同扫描件(业绩合同是指意向受让方或其分公司或其全资子公司与房屋产权方签订的租赁或委托运营合同,合同须体现合同起止时间)。

注:①如意向受让方提供的上述要求的业绩证明材料均未能明确反映出公告所要求的内容的(如合同起止时间、经营业态等),应另附业主(或合同甲方)证明材料予以明确说明,须加盖项目业主单位或合同甲方公章,否则资格审查小组不予认可。

②若业绩载体为自有房产,无须提供业绩合同,但须提供房屋产权证明扫描件,产权人应为意向受让方或其全资子公司。项目成交后,委托方保留现场踏勘及获取对应业绩证明材料的权利,如有虚假,委托方有权取消成交资格并报监管部门调查处理,由此产生的损失由受让方承担。

5.意向受让方认为需提供的其他资料。

备注:意向受让方应按照本公告的要求准备竞价文件;并按竞价文件格式要求加盖意向受让方公章或电子签章。详见《竞价文件格式》(本公告上传附件1)。

竞价文件制作

1.加密竞价文件(未提供的,竞价无效):

(1)加密竞价文件使用安徽合肥公共资源交易中心提供的电子标书制作工具软件制作生成。在竞价文件提交截止时间前通过电子交易系统上传递交。

(2)意向受让方请注意:①意向受让方需采用最新版竞价文件制作工具软件,具体请在安徽合肥公共资源交易电子服务系统-投标工具下载;②在国际互联网络通畅状态下启用最新版竞价文件制作工具软件;③各意向受让方需注意更新,以免造成加密竞价文件制作错误,因此导致竞价无效,责任自负。

2.本项目不接收未加密的竞价文件。

有关格式资料见竞价文件格式

竞价文件提交截止时间及须知

1.竞价文件提交截止时间:北京时间2024123014:00

2.竞价文件接收时间:加密电子竞价文件的接收时间自本公告发布时间起至竞价文件提交截止时间止(请意向受让方合理安排加密电子竞价文件的提交时间)。

3.意向受让方须知

1)意向受让方须对竞价文件进行电子签章并使用数字证书加密,并于公告规定的竞价文件提交截止时间前通过电子交易系统完成上传并递交。

2)意向受让方应当在竞价文件提交截止时间前完成加密竞价文件的传输递交,并可以补充、修改或者撤回竞价文件。竞价文件提交截止时间后未完成竞价文件传输的,视为撤回竞价文件。未按规定加密或竞价文件提交截止时间后送达的竞价文件,电子交易系统将拒收。

3)意向受让方未从电子交易系统递交加密竞价文件的,被视为竞价无效。所递交的非加密竞价文件电子交易系统及合肥市产权交易中心拒收。

竞价文件解密

1.意向受让方须在规定的时间内(一般为竞价文件提交截止时间后30分钟)对其加密竞价文件进行解密,现场解密和远程解密均可,解密失败的风险由意向受让方自行承担。

2.意向受让方须按照本公告的要求在竞价文件提交截止时间前登录电子交易系统并保持在线,直到项目评审结束。

3.意向受让方应在规定时间内对本单位的竞价文件进行解密,加密和解密须用同一数字证书。意向受让方未在规定的时间内完成解密的视为其放弃竞价。

4.合肥市产权交易中心按规定解密竞价文件,导入并读取成功解密的竞价文件。

评审时间及地点

1.评审时间:同竞价文件提交截止时间

(以本项目评审地点悬挂的电子屏幕显示时间为准)

2.评审地点:合肥市滨湖新区徽州大道4872号金融港中心A9幢安徽公共资源交易集团3楼。

备注:意向受让方可以在线解密竞价文件,无须到达现场。

特别说明

1.本项目采用网上提交竞价文件方式,有关网上操作详见《安徽公共资源交易集团电子交易操作规程》(本公告上传附件2),意向受让方必须严格遵守,该规程是本公告的重要组成部分。

2.公告中要求加盖公章或电子签章的,均可以提供加盖公章的扫描件,也可以在网上竞价文件编制时加盖电子签章;公告要求提供的证明资料均应在网上竞价文件制作时制作成电子件上传。竞价文件中提交的资料模糊不清的,资格审查小组将按不利于意向受让方的理解进行评审,由此产生的一切后果由意向受让方自行承担。

3.竞价文件的澄清,资格审查小组将通过电子交易系统发送给意向受让方,从发起远程网上问询至问询结束原则上为15分钟,意向受让方未能在规定时间内回复的,由此产生的一切后果责任由意向受让方自行承担。

4.因系统出现软件设计或功能缺陷、运行异常等情况,可能影响本次评审活动公平、公正进行的,委托方(或合肥市产权交易中心)有权中止或终止本项目评审活动,意向受让方、委托方、合肥市产权交易中心各方免责。

六、竞价结束后相关程序

结果公告及《成交确认书》

1.竞价结束且无异常情况,合肥市产权交易中心将在网站上发布结果公告。

2.结果公告发布后,合肥市产权交易中心将通过电子交易系统向成交人发出成交确认书,成交确认书发出即视为送达;成交人请登录电子交易系统领取成交确认书。

交易保证金处置

1.合同签订生效后,受让方交纳的交易保证金扣除交易服务费后的剩余款项可转为首期费用,其他意向受让方交纳的交易保证金在结果公告发布之日起5个工作日内原额原途径返还(不计息)。

2.交易保证金只退还至意向受让方交款账户。因收款人与意向受让方名称不一致造成的交易保证金无法退还或迟延退还,合肥市产权交易中心不承担任何责任。

3.经交易监督管理部门调查认定出现下列情形之一的不良行为,交易保证金不予返还,交易保证金扣除交易双方交易服务费后,余款转至委托方指定的账户。

1)意向受让方提供虚假材料,骗取成交资格或实现其他非法目的;

2)意向受让方之间相互串通的;

3)意向受让方采取不正当手段影响和干扰其他意向受让方参与交易活动的;

4)受让方无正当理由放弃成交资格的;

5)受让方未按交易文件约定交纳履约保证金或签订《经营权转让合同》的。

异议方式

若对结果公告有异议,可自结果公告发布次日起3个工作日内,以书面形式向合肥市产权交易中心提出异议,异议材料递交地址:合肥市滨湖新区徽州大道4872号金融港中心A9幢安徽公共资源交易集团4楼,联系电话:0551-66223705。

(一)异议应以书面形式实名提出,书面异议材料应当包括以下内容:

1.异议人的名称/姓名、地址、有效联系方式;

2.项目名称、项目编号、标的号(如有);

3.被异议人名称/姓名;

4.具体的异议事项、基本事实及必要的证明材料;

5.明确的请求及主张;

6.提起异议的日期。

异议人为自然人的,应当由异议人本人签字并附有效身份证明;异议人为法人或者其他组织的,应当由法定代表人或其委托代理人(需有委托授权书)签字并加盖公章。

异议人需要修改、补充异议材料的,应当在异议期内提交修改或补充材料。

(二)有下列情形之一的,不予受理:

1.提起异议的主体不是所异议项目竞价人的;

2.异议材料不完整的;

3.异议事项含有主观猜测等内容且未提供有效线索、难以查证的;

4.异议事项已进入投诉处理、行政复议或行政诉讼程序的。

(三)若异议人对异议处理意见有异议,可在答复期满后7个工作日内以书面形式向交易监督管理部门提出投诉。

交易服务费收取

交易服务费按“差额定率累进法”计算,以成交总价(6年经营期内的经营费用总金额)为收费基数:标的成交总价在100万元及以下的,收取比例为1.2%;超过100万元至500万元的部分,为0.8%;超过500万元至1000万元的部分,为0.51%;超过1000万元至5000万元的部分,为0.29%;超过5000万元至10000万元的部分,为0.16%;超过10000万元的部分,为0.06%。交易服务费不足2000元的,按2000元收取。

七、其他说明

1.意向受让方可在公告截止之前工作时间内至合肥市产权交易中心项目负责人处查阅委托方向合肥市产权交易中心提供的相关项目材料。上述材料均为参考性意见,不构成合肥市产权交易中心对转让标的的任何担保责任;

2.对本项目公告内容要求澄清或有异议的意向受让方,应于公告截止日前3个工作日前,以书面形式向合肥市产权交易中心提出,逾期递交的不予受理。

3.合肥市产权交易中心对本公告进行的澄清、更正或更改,将在网站上及时发布(网址:http://www.ahggzyjt.com、https://www.haee.com.cn),该公告内容为转让公告的组成部分,对意向受让方具有约束力。意向受让方应主动上网查询。合肥市产权交易中心不承担意向受让方未及时关注相关信息的责任。

4.在公告截止时间前,合肥市产权交易中心可以视具体情况,延长公告截止时间,并在网站上发布变更公告。

八、联系方式

现场踏勘

联系人:王工;联系电话:0551-69008850。

主体库登记

联系电话:010-86483801转6-1

项目负责人

联系人:储工,联系电话:0551-66223146、66223191(合肥市滨湖新区徽州大道4872号金融港中心A9幢安徽公共资源交易集团4楼)。

项目意向受让方如需咨询,务必首先认真阅读本项目公告,并针对具体条款进行咨询。本公告为本项目唯一法定文书,一切解释以本公告为准。本公告及其附件解释权归合肥市产权交易中心。

 


附件

经营权转让合同

 

转让方(以下简称“甲方”):合肥城市轨道交通资源开发有限公司

受让方(以下简称“乙方”):

 

1条 总则

根据《中华人民共和国民法典》等相关法律法规、规章有关规定,为明确甲、乙双方的权利与义务关系,在乙方充分理解标的现状的前提下,甲、乙双方在平等、自愿的基础上,经协商一致,签订本合同。

2条  标的商业场地位置、面积及经营范围

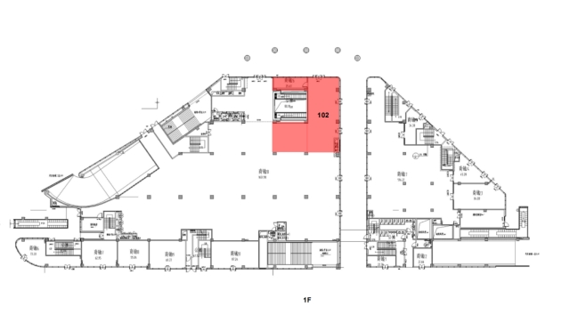
2.1 本合同所涉商业场地位于合肥市包河区历口路与青通河路交口东南角4号线伊宁路P+R停车场1102号商铺,建筑面积合计约285.64平方米(具体范围见图纸,最终以交付面积为准转让费不作调整)。

房号

楼层

建筑面积

(平方米)

102

1

285.64

合计

1

285.64

2.2 乙方在该商业场地内经营范围:仅限于以快餐、饮料、小吃为主的品牌连锁西式快餐。最终乙方的经营业态须书面向甲方申请备案,经甲方同意后方可营业。

2.3 乙方须确保:

不得经营以下业态:

①不得经营殡葬、易产生噪音、有害刺激性气体、严重油污等涉及环境污染、有碍东侧居民区日常生活的;

②废品回收、烟花爆竹等涉及危险品的;

③其他不符合法律法规规定的;

2.4 乙方需合理规划经营布局,实行规范化经营管理,否则甲方有权要求乙方限期纠正,逾期不改的,甲方有权解除合同。

3条 转让期限

3.1 乙方使用场地期限共 6 ,自    年    日至2030    日,(合同期最终以甲方移交标的物次日起满60日(该期间为免费用装修期)的次日起开始计算),商业场地装修完成后开业前乙方须向甲方提出开业申请,甲方同意后方可营业。如甲方认为乙方不具备开业条件,乙方应在10日内进行整改,整改完成后再向甲方提出开业申请,期间内转让费用仍正常缴纳。甲方有权根据场地的实际情况确定交付日期,甲方调整交付日期不构成违约,转让费用不变。

3.2 甲方向乙方提供第一合同年 1 个月免费用商业培育期(计入合同期),自        日至2025    日(期间不收取转让费用)。

3.3 转让期限采用“6+4”模式。即转让期限六年,期间内若乙方经营业态稳定,履约情况良好、无重大违法情形,合同期限届满前6个月,由乙方提出申请,经双方协商统一,并经甲方履行相关决策审批程序后可以续约四年,并另行签订合同。

 

 

4条 费用及支付方法

4.1 转让费用:乙方所经营的商业场地,第一、二合同年的年转让费用为人民币大写:XXXX(小写:XXX元 ),第三合同年开始转让费每年递增2%。首期(每半个合同年为一期)的1个月为免费用商业培育期首期实际费用金额=成交价/12*5。综上,转让费用即:

合同期限

年递增率

费用期

原费用金额(元)

实际费用金额(元)

第一年

/

第一期

 

 

第二期

 

 

第二年

/

第三期

 

 

第四期

 

 

第三年

2%

第五期

 

 

第六期

 

 

第四年

2%

第七期

 

 

第八期

 

 

第五年

2%

第九期

 

 

第十期

 

 

第六年

2%

第十一期

 

 

第十二期

 

 

合同总金额小写

 

合同总金额大写

 

4.2 转让费用支付:采取“先付后用”原则,按半个合同年支付一次。乙方须在本合同签订并交付标的5日内向甲方缴付第一期转让费用人民币大写:XXXXXXXXX(小写:XXXX元)。此后,乙方须在每期费用届满日30日前,预付下一期转让费用,甲方出具相应的票据。

4.3 履约保证金:乙方须在本合同签订前向甲方缴付履约保证金(为第一合同3个月转让费用成交价金额之和=成交价/12*3)人民币大写:XXXXXXXXXXX(小写:XXXX元)。

4.3.1 可采用银行转账或保函方式或保证保险或担保机构担保提交。

4.3.2 保函/担保有效期最晚不早于2030年XX月XX日,若保函/担保有效期满无法履约完成的,应提前一个月办理保函/担保续期或替换保函/担保,续期保函/担保或替换保函/担保有效期根据项目实际协商确定。

4.3.3 如乙方在合同期内无任何违约违法行为,合同期满或因不可抗力、法律政策变化致使合同无法履行,或协商终止后,且双方无争议后,履约保证金由甲方不计息退还给乙方。如乙方在合同期发生违约违法行为,甲方有权直接从履约保证金中扣除乙方应付的违约金和费用,不足部分由乙方补足,扣除后乙方须在10日内补足履约保证金至上述金额。

4.4 物业费:乙方须与甲方委托的物业管理公司另行签订物业管理服务合同,并遵守甲方及物业管理公司的各项管理制度。转让期间(包含免费用装修期免费用商业培育期)发生的物业费由乙方自行承担,不包含在本项目转让费用中,具体物业费收取标准及方式以乙方与物业管理公司签订的物业管理服务合同为准。

4.5 其他费用:乙方经营期间(包含免费用装修期免费用商业培育期)发生的水、电、采暖、通讯(网络)、停车等相关费用由乙方承担,不包含在本项目转让费用中。公共区域的水、电(包含但不限于公共照明、通风、空调、采暖等设施用电以及含水、电传送过程中的损耗)等费用按照乙方与物业管理公司制订的分摊原则进行缴纳。如发生政府征收上述未列出与本项目有关的费用,也均由乙方自行承担。

4.6 履约保证金、转让费用收取账户信息:

户名:合肥城市轨道交通资源开发有限公司

账号:551904036310107

开户行:招商银行股份有限公司合肥瑶海支行

如以上收款账户发生变化,甲方及时书面通知乙方即可,不承担任何责任。

4.7 乙方应付的其他费用,以甲方或物业管理公司另行通知的指定账户为准。

4.8 双方因签订和履行本合同而应当缴纳的税费,根据法律规定由双方各自依法承担。

5条 商业场地交付及进场装修

5.1 合同签订后甲方应及时将该商业场地及其附属设施交乙方使用,届时该商业场地现状交付,双方在交付时签署交付确认文件。乙方应在接到甲方通知后即时办理交接手续。若乙方在甲方通知交场地后7日内尚未办妥收场地手续,则甲方有权单方面解除本合同,提前收回该商业场地并不予退还履约保证金、转让费用等所有已交费用。

5.2 乙方对标的商业场地进行装修、装潢、改造,须遵守国家、省市相关规定施工,乙方应在装饰装修前(包括再次装修)向甲方及物业管理公司提交详细的设计施工计划、说明、图纸和效果图等资料,经甲方、物业管理公司及政府主管部门(如需要)书面批准后方可开始装修,由此发生的政府部门审批等有关费用(若有)均由乙方承担。装修期间以及装修完成后甲方有权随时对装修情况进行检查,发现装修不符的,乙方应无条件整改,并承担所有的费用及损失。

5.3 乙方应保证装饰装修使用的材料符合现行的中华人民共和国国家标准地铁设计规范及建筑内部装饰装修设计防火规范等有关安全质量要求。施工现场应严格按照《建设工程施工现场消防安全标准》加强施工现场消防安全监督管理,服从甲方现场统一施工管理。乙方自行办理消防报验、审批等所有相关手续,产生的一切费用由乙方自行承担,甲方协助配合。

5.4 装修过程中,乙方不得改动、破坏标的商业场地主体结构或擅自拆除承重墙体,否则所产生的一切损失全部由乙方承担。未经甲方书面同意,乙方不得改变该商业场地的建筑结构、外墙部分、门头以及甲方提供的任何设施设备(包括专用设施设备和共用设施设备)。乙方不得擅自改变该商业场地相关设施(包括但不限于楼道、通道、大门、走廊、设备用房)的设计用途,亦不得采用封堵或阻挡等任何方式妨碍其使用。对于设置于商业场地内或通过该商业场地的设施设备,乙方应当给予充分的注意和保护。

5.5 甲方及物业管理公司有权监督装修施工过程,并有权提出必要的整改意见,同时乙方应采取措施确保装修施工期的安全,按规定办理装修期间相关的保险事宜,因乙方装修原因所造成的安全事故及安全隐患,乙方应承担相应的安全事故责任及修复责任,并赔付由此给甲方及第三方带来的直接或间接的损失。甲方对于乙方因进行装修或设施改造施工等导致的安全事故不承担任何责任。

5.6 甲方及物业管理公司对乙方的装修、改造和增设的设施设备不负有修缮义务。

5.7 乙方承诺对装修设计文件自行承担全部责任,在装修过程中服从甲方及相关政府部门的管理和指挥,并按照甲方的规定缴纳装修相关费用,包括但不限于水费、电费等。如乙方对该商业场地进行装饰装修造成甲方或第三方损失,由乙方自行负责全部赔偿。

5.8 乙方须在甲方指定时间范围内进行商业场地装修,不得影响他人。装修期间产生的垃圾,由乙方当天及时自行清运。

5.9 乙方应自场地交付后尽快实施开业准备工作,装修完成后乙方须向甲方提出开业申请,甲方同意后方可营业。装修完成后未通过消防审批擅自开业的,一切后果由乙方承担。

5.10 乙方违反本合同约定的各项要求对该商业场地进行装饰装修的(包括但不限于未经甲方批准,乙方擅自变更装修设计方案的情形),甲方有权要求乙方改正。甲方按其对建筑物的妨碍或损害程度,有权对乙方做出下述决定:(1)立即停工,(2)即时整改,(3)停止水、电等供应,(4)没收履约保证金、收回该商业场地、终止合同,因此而发生的一切损失和费用均由乙方承担。

5.12 装修完毕后,乙方须在经消防等相关单位验收合格并获得验收合格批复后,相关批复文件报甲方、物业管理公司备案,经甲方同意后方可正式使用。

6条 经营服务规范要求

6.1 乙方必须是在中华人民共和国工商行政管理部门注册,具有有效法人资格的企业。同时须向甲方提供有效证件,包括但不限于营业执照副本、法定代表人身份证、法人代表授权委托书、税务登记证、商标注册证、产品质量检验报告、卫生许可证等与经营相关的证照资料的复印件。

6.2 甲方有权要求乙方出示经营范围内商号及经营商品商标有关的营业执照、注册资质证书、政府许可证、授权经营证明等文件;乙方保证对约定经营品牌及项目享有持续合法经营权,乙方若未能按要求提供合法有效的文件,甲方有权解除本合同,由乙方承担导致合同终止的违约责任。

6.3 乙方所经营的商品必须符合国家、省、市有关规定,严格规范商品进货流程,明确商品有合法来源。需要通过政府相关部门审批经营的商品、服务内容等应自行申报,并将批准材料报甲方审查备案。因违反相关规定及未通过审批而造成的一切后果和责任,由乙方全部承担,甲方不承担任何责任。商品销售过程中,消费者需要发票时,乙方必须提供,并根据相关行业标准保证提供商品的售后服务。

6.4 乙方经营的行业产品、商号、标识或提供的服务需要取得特殊行业专项批准的、乙方应取得相关的批准、代理权或经营销售许可等证明文件,并在转让期间持续合法有效。

6.5 乙方不得超范围经营,不得违反国家、安徽省、合肥市有关法律法规等相关要求。如要改变或增加经营范围,须经甲方的书面同意后方可执行。乙方如擅自增加或变更经营范围,甲方有权要求乙方限期纠正,逾期不改的,甲方有权终止合同。

6.6 乙方保证在该商业场地内遵守国家、地方及甲方有关的消防管理规定,未经甲方同意不使用易燃易爆、有毒有害材料,不堵塞或占用消防通道,不使用危险品、易燃物,执行公共区域禁止吸烟规定,配齐消防器具。

6.7 乙方须配合甲方组织的相关推广活动,以保证轨道交通商业的对外统一风格和良好声誉。乙方同意甲方免费将其品牌(包括公司名称、商标及其图形、文字)合理用于举办的各类媒体宣传、活动推广等之用。

6.8 乙方在经营期间不得在伊宁路P+R停车场及轨道交通站内公共区域内大声叫卖、播放过大音量的宣传口号、音乐及做出影响其他办公人群利益或轨道交通站内运营秩序的行为。

6.9 未经甲方书面同意乙方不得占用公共区域及公共设施、设备或影响其使用功能,不得在商业场地玻璃门、窗、商业场地外或其它公共任何部位张贴、张挂或展示任何广告、宣传标语、招牌、符号装饰、灯饰或其它任何物品。

6.10 转让期间,乙方对所经营商业场地实行“门前三包”管理,产生的垃圾应按照物业管理公司要求进行处理。

6.11 乙方正常营业时间应服从甲方管理要求,营业期间若因消防检查不合格要求停止营业的,乙方应无条件服从,甲方不承担任何责任。

7条 甲方的权利和义务

7.1 甲方按时向乙方收取转让费用及其它应由乙方承担的费用,开具相应票据。

7.2 甲方为乙方提供办理经营证照所需资产证明等现有相关材料,并保证该资产无产权纠纷,如有纠纷,由甲方负责处理并承担相关责任。

7.3 甲方享有停车场所有通道及公共区域的进出权。

7.4 甲方或其授权人(包括物业管理公司)有权派工作人员出于对标的商业场地或伊宁路P+R停车场进行保安、巡察、养护或维修之目的而进入标的商业场地内,但甲方或其授权人(包括物业管理公司)应提前通知乙方,但在发生紧急突发或危险事件时,甲方或其授权人(包括物业管理公司)可以未经乙方同意立刻进入标的商业场地内处理事件,但事后应在合理的时间内通知乙方。

7.5 甲方有权更改伊宁路P+R停车场的名称而无需征询乙方的同意。

7.6 甲方保留对伊宁路P+R停车场(包括伊宁路P+R停车场内资产或其它任何部分)的重新发展、拆卸的权利,但甲方应提前20日书面通知乙方,才得以终止本合同。同时甲方应向乙方返还履约保证金且乙方无须再向甲方支付其未履行转让期部分的转让费用。

7.7 甲方按现状提供标的商业场地内现有的附属设施、设备供乙方使用,但不承担转让期内此类设备的检测、维修、使用监管等义务,如转让期内此类设备发生安全责任事故,甲方不承担任何法律责任。

7.8 甲方委托的物业管理公司负责维持所有公共部分的设施设备及系统处于良好、正常的运行状态,保持公共区域卫生环境干净整洁,使乙方有一个适宜的经营环境。

7.9 在本转让期满前6个月内,甲方或其授权人(包括物业管理公司)在预先通知乙方的前提下,可带人进入标的商业场地内查看,甲方应尽最大努力不妨碍乙方的正常经营。

7.10 甲方应承担并履行国家规定的其他义务。

8条 乙方的权利和义务

8.1 遵守国家的法律法规和行业管理的有关规定,服从地方政府有关部门和甲方对经营活动的指导、监督和管理,主动协调各方关系,做到合法经营、依法纳税。

8.2 乙方自行承担其经营项目的经营风险、自负盈亏,不得要求甲方承担任何经营上的风险或要求甲方减免转让费用等费用。转让期内乙方应充分考虑客流变化、新增商业竞争、社会经济等各方面的影响,不得以此要求甲方降低转让费用及各项费用。

8.3 乙方不得超范围经营,否则由乙方承担全部责任。甲方有权对乙方超范围经营责令整改,直至甲方解除合同。同时乙方经营品项要做到明码标价,不得强买强卖,严禁出售变质、劣质商品。

8.4 转让期间,乙方不得以任何形式直接或变相将经营权整体转让给第三方经营管理、违法经营。若发生上述情形,甲方有权解除合同并追究其相关法律责任。

8.5 乙方是该场地的经营者和直接责任者,甲方负责对乙方的日常经营进行监督,乙方应按季度向甲方提交经营报表,使甲方及时准确的了解乙方经营场地的实际经营状况。

8.6 乙方在经营活动中必须严格执行公安、消防、工商、物价、税务、卫生防疫部门及国家其它有关行政部门的法规,根据国家安全生产法要求,建立安全生产管理制度,对经营范围内的一切经营活动负安全生产责任,如有违反,乙方须承担全部法律责任,并承担甲方因此而可能产生的任何连带的责任。甲方有权对乙方的经营活动进行定期检查,发现经营活动中有违法违规及安全隐患问题的,乙方接到甲方通知后应及时整改。

8.7 乙方自行负责本合同涉及商业场地的安全、保卫、消防、卫生等工作及商业场地内的设施、设备的日常检查、维护保养和保洁。维护保养前须报方案给甲方审查备案,无论设备因何种原因出现故障并因此导致损失,甲方不承担任何责任。如乙方依据本合同放置的设备须经强制性产品认证,乙方却没有进行强制性产品认证的,则因此而产生的一切责任均由乙方承担,并赔偿甲方因此而遭受的损失。烟囱、空调、化油池、噪音等设施的建设且应符合环保等部门要求。

8.8 乙方在经营中应严格应遵守环境保护、卫生、防疫、文化、物价、治安、消防管理在内的各项法律规定;按时向国家各主管部门缴纳税金、工商管理费等各类费用;按时向甲方缴纳本合同约定的各类费用。

8.9 乙方应建立和完善安全生产责任制度,建立安全生产保证体系,防止责任事故发生。乙方应为其雇员、代表或合法委托人提供适当的安全培训,包括参加甲方组织的安全培训课程,甲方有权按该课程的培训成本向乙方收取适当的费用。

8.10 若乙方或其经营范围内的任何相关工作人员(无论是否为乙方的工作人员)违法经营、过失或违约行为导致甲方承担或被追究责任的,都视为乙方违约,甲方有权从履约保证金中扣除相应的经济损失,不足部分向乙方追偿,同时甲方有权单方终止合同

8.11 乙方在经营中产生的所有非甲方原因的安全责任事故的后果由乙方承担,如政府部门对此进行处罚的,由乙方承担,如甲方因此受政府部门处罚的,有权向乙方追偿并追究其违约责任。

8.12 乙方应自费办理商业场地装修期间所有相关的保险事宜,并完全承担因装修施工所导致的一切人身财产损失。在转让期限内,乙方应对由其导致的任何第三方财产损失或/及人身伤亡购买相应的保险,若有关的保险的赔偿金不足以(或不能)赔偿受损方的损失,剩余部分全部由乙方承担。

8.13 乙方应安全合理的使用和爱护标的商业场地及甲方提供的各项设施,防止不正常损坏(正常磨损、折旧除外)。因乙方使用不当导致标的商业场地出现损坏或发生故障,乙方应负责及时维修,乙方经甲方通知后拒不维修或拖延维修,甲方可代为维修,维修费用由乙方承担。

8.14 乙方不得以本项目的名义进行相关的担保、抵押等融资活动。

9条 合同的变更、解除与终止

9.1 除本合同另有约定外,本合同的变更、补充或解除,须经甲、乙双方协商一致后,签署书面协议,方能生效。

有下列情形之一的,甲方有权提前解除本合同,且不返还乙方的履约保证金、预付转让费用等一切已缴付的费用,同时收回乙方商业场地,若履约保证金不足以弥补给甲方造成的损失,甲方有权向乙方索赔,同时本合同自动终止。

9.1.1 乙方在合同签订之日起30日内未足额缴纳转让费用等相关费用;

9.1.2 乙方在转让期内,延迟缴纳转让费用、电费用等超过30日的(其中电费自收到缴费通知单之日起算),或延迟缴纳此类费用累计达3次以上(含3次)以上的;

9.1.3 乙方未经甲方书面同意,变更经营品牌、经营项目或超范围经营(乙方按甲方要求做出限期整改的除外);

9.1.4 乙方因严重违反国家有关政策、法令,而被国家行政机关处罚或责令停业;

9.1.5 乙方未经甲方书面同意,擅自对该商业场地进行结构改造、装修;

9.1.6 乙方在转让期限内,擅自将经营的商业场地及设施设备以任何形式直接或变相将经营权整体转让给第三方经营管理,违法经营,擅自将经营的商业场地及设施设备以任何形式转借、调换,或对外实施抵押、担保、处分。;

9.1.7 乙方未经甲方同意擅自发布与自身经营无关的广告;

9.1.8 乙方严重违反本合同及附件所规定的相关条款,造成本合同无法继续履行或造成双方完全丧失信任及完全丧失合作基础的;

9.1.9 乙方在转让期限内,同一违约条款(包括合同附件相关规定)收到甲方开出的“违约整改通知单”达3次及以上的;

9.1.10 乙方无论被强迫或自愿破产、进入破产清算程序、进行清算(经甲方批准为了重组、合并的目的除外)、被接管人接收;

9.1.11 乙方严重违反本合同其它约定或法律规定。

9.2本合同第六个计费周期结束后,如其中一方有意提前解除本合同,需提前90天向对方提出书面申请,经双方协商一致并正式签订书面协议后,合同解除,已交纳的履约保证金按比例退还乙方(实际退还履约保证金金额=履约保证金金额/3*(所处合同年度-3)),乙方已交纳的该计费周期转让费按照实际使用时间扣除后退还乙方,不足整月的按整月计算。乙方不得擅自提前解除本合同,否则乙方应承担违约责任,履约保证金及乙方已交纳的该计费周期转让费不予退还乙方。

9.3 本合同项下之转让期限届满或本合同因任何原因而终止后10日内,乙方须付清应承担的应缴费用并将该商业场地按第11条交还甲方。该期限为本合同项下该商业场地之交还期,交还期内,乙方无需支付转让费,但仍应当承担在此期间发生的用电等各项费用。若乙方不按甲方要求的条件交还场地,甲方有权自行收回处置,因此产生的一切不利后果均由乙方承担,甲方有权从履约保证金中扣除因此发生的费用,不足部分向乙方索赔。

9.5 自交还期届满之日的次日起,甲方有权采取对该商业场地停止电等能源的供应、控制人员从商业场地进出、阻止乙方继续开业经营等强制措施。此种情况下,乙方所应承担的转让费用及其它相关费用并不因此而得到减免。

9.6 双方确认完成交接手续后或者在本合同项下之转让期限届满或本合同因任何原因而终止后10日内乙方仍未向甲方交还场地,乙方在该商业场地内遗留的任何设施设备、物品等均视为乙方放弃一切权利,甲方有权自行处置(产生的处置费用从履约保证金中扣除),乙方不得提出任何要求和赔偿,且乙方未经甲方同意无权再进入该场地。

 

10条 违约责任

10.1 乙方在合同期内如逾期支付转让费用的,每逾期一日,乙方须按其逾期金额的万分之四支付违约金,甲方核实相关逾期资料后,有权从乙方的履约保证金中扣除相应金额,并要求乙方在规定时间内补足履约保证金,乙方拒绝补足履约保证金超过10天时,甲方有权解除合同,乙方应按甲方要求无条件撤场,并立即付清拖欠甲方所有费用及违约金,且履约保证金不予退还。如累计扣除履约保证金达到40%(含),甲方有权解除合同,并不予退还剩余履约保证金。

10.2 转让期满合同终止或本合同提前解除时,乙方不能如期交还本合同商业场地的,每逾期一天,乙方应按照当年度日转让费用的两倍向甲方支付占用费;乙方不能按质按量交还经营标的及附属设备的,乙方应按实赔偿甲方损失,并另行支付缺损数量价值20%的违约金。以上费用优先从履约保证金中扣除,履约保证金不足以支付的,由乙方补足。

10.3 如乙方违反合同第5.4条,则赔偿甲方因此而遭受的全部损失,同时甲方有权单方终止合同。

10.4 未经甲方书面同意擅自扩大或变更经营范围,除责令乙方限期整改外,同时甲方有权解除本合同。

10.5 乙方未经甲方同意单方面解除本合同的或因乙方不履行、不完整履行本合同义务而导致合同解除的,除不予退回履约保证金外,还应向甲方支付违约行为发生当年的合同价20%的违约金,如该违约金不足以弥补损失的,乙方还应向甲方赔偿全部损失。

10.6 若乙方违约,除按本合同约定承担相应责任外,还应承担方为保护或实现本合同项下权利和救济所产生的所有合理费用(包括但不限于诉讼费、律师费、调查取证费、差旅费等)及其他所有损失。

11条 场地交还

11.1 转让期限届满或合同解除后,乙方必须在转让期限届满或合同解除后10日内无条件将标的商业场地及附属设施、设备归还甲方,乙方转让期间因经营需要所实施的装修改造部分,甲方不作任何形式的补偿。若乙方不按甲方要求的条件交付场地,自甲方发出书面通知之日起,甲方有权自行收回并有权处置场地内乙方及其商户的物品,因此产生的一切不利后果均由乙方承担,甲方有权从履约保证金中扣除因此发生的相关费用,不足部分向乙方追偿。

11.2 乙方交还场地时应保证场地本身及附属设施、设备处于完好状态,使用期内乙方添置的可移动的物品可自行搬离,保持场地建筑的完好状态,逾期未搬离的,甲方有权自行处理,涉及相关费用自履约保证金中扣除,不足部分由乙方承担。

11.3乙方对标的商业场地的装修、装潢、改造、升级后不可移动的建筑和设施设备等部分,甲方有权利视情况决定是否拆除或无偿拥有,甲方要求恢复原状或有其他要求的,乙方应无条件服从,不得擅自拆除、搬离、损毁。如乙方未按照甲方要求拆除并恢复原状的,甲方有权自行处置,由此产生的费用由乙方承担。

11.4 乙方应结清所有本合同项下尚未缴清的款项,同时一并结清标的场地使用期间的水、电、通讯、有线及/或数字电视费、宽带网络费、卫生、物业管理费、场地、附属物及相关设施设备的日常维修费等所有费用,未结清部分由甲方自乙方履约保证金中扣除,履约保证金不足以冲抵应付款项时,不足部分由乙方按甲方通知要求予以补齐,否则甲方有权向乙方追缴差额部分。

11.5 转让期间,乙方因经营需要以本项目为主体办理的项目(包括但不限于水、电、通讯、网络、燃气、有线/无线电视、保险、维修维保服务等),甲方有权视情况要求乙方注销、终止或移交,乙方应无条件配合。

11.6 乙方如在清场过程中对甲方或任何第三方造成损失或损害的,乙方须承担所有的赔偿责任。甲方有权在履约保证金中扣除对甲方造成的实际损失的赔偿。如果履约保证金不足抵扣的,乙方必须补足差额赔偿甲方,否则甲方有权向乙方继续索赔。

11.7 如乙方逾期交还场地的,每逾期一天,乙方应按当年度日转让费用的双倍向甲方支付占用费。如乙方逾期30天仍未将场地返还甲方,甲方有权采取强制清场措施,由此造成的一切损失及费用由乙方承担。

11.8 无论任何原因,交还期满后乙方仍未能将符合前述约定交还条件的该商业场地交还甲方的,则自交还期届满之日的次日起,乙方应当按照合同终止时该商业场地年度日让费标准的双倍向甲方支付商业场地使用费,并支付按照合同终止时该商业场地的用电等费用,直至乙方按照合同要求交还该商业场地为止。如因此造成甲方延迟向新经营方交付该商业场地而需承担违约金等费用,以及造成甲方其它损失的,乙方均应全额赔偿。

11.9 甲、乙、物业三方现场验收交接后在《资产现场交接清单》上签字,视为甲方收回场地。

12条 免责条款

12.1 不可抗力系指“发生了合同当事人无法预见、无法预防、无法避免和无法控制的事件”,包括因“战争、敌对行动(不论宣战与否)、入侵、外敌行动、军事政变、恐怖主义、动乱、空中飞行物坠落、自然灾害(地震、洪水、海啸、飓风、超强台风、雷击等),最终以国家相关法律法规定义条款为准。因不可抗力导致不能履行或不能完全履行签订本合同项下有关义务时,相互不承担违约责任。但遇不可抗力的一方应于不可抗力发生后15日内将情况告知对方,并提供有关证明。在不可抗力影响消除后的合理时间内,应当继续履行合同。

12.2 因政府及相关部门条令、政策变化等因素,不允许在项目所属范围内经营该业态,本合同将自动终止,给对方造成损失的,互不承担违约责任。

12.3 因政府及相关部门条令、政策变化等因素,造成政府部门没收、征收、征用导致本合同期提前终止,双方互不承担责任。。

12.4 因上述原因而终止合同的,转让费用及应缴费用按照实际使用时间计算,不足整月的按整月计算。

12.5 甲方无须对由非甲方之故意或过失而导致的包括但不限于以下事件在内的各类事件而引起的任何后果向乙方及其雇员、访客及授权人士承担任何赔偿及其它法律责任:

12.5.1 标的商业场所内发生火灾、水淹、触电或爆恐袭击等引发的后果;

12.5.2 标的商业场所内发生失窃及遭受破坏;

12.5.3 其它超越甲方管辖范围的(如停电、限电、停水、停运等)或在甲方合理的经营、控制、预防措施范围以外或意外等事件引起的损害。

12.6 在任何情况下甲方对本合同所述事项的审批、备案,不减轻、不免除乙方应当承担的合同责任和法律责任。

13条 通知及送达

13.1 甲方和乙方按以下地址发送通知:

甲方地址:合肥市蜀山区轨道交通4号线科学城车辆段综合楼6F合肥城市轨道交通资源开发有限公司

邮政编码:  230001   

乙方地址:XXX

人:      

邮政编码:            联系电话:            

传真或电子邮箱:                 

13.2 确定甲方有效送达的方式包括但不限于:

13.2.1 经专人送达的函件应于专人送交(包括乙方或乙方员工)当日视为有效送达;

13.2.2 按乙方通知地址经邮件(快递)发出的函件应于寄出日第三日(不论是否退件)视为有效送达;

13.2.3 经传真或电子邮箱发出的函件应于传送当日视为有效送达;

13.2.4 在乙方经营的标的商业场地处张贴通知视为有效送达;

13.2.5 在公开媒体刊登公告等。

13.3 一方若地址变更,须及时以书面形式通知另一方。怠于通知的一方应当承担对其不利的法律后果。

14条 争议的解决

本合同履行过程中,如发生争议,应友好协商解决。协商不成的,可向不动产所在地有管辖权的人民法院提起诉讼。

15条  合同的生效及其他

15.1 本合同经甲、乙双方法定代表人(或授权代表)签名、盖章后生效。

15.2 本合同附件构成合同的一部分,与本合同具有同等法律效力,如与本合同有冲突时,以本合同为准。

15.3 本合同一式  份,均具有同等法律效力,其中正本  份,甲方执  份、乙方执  份;副本  份,甲方执  份,乙方执  份。

 

甲方(盖章):                           乙方(盖章):             

法定代表人或授权代表:                 法定代表人或授权代表:

                                        

 

 


合同附件1:

 

 

伊宁路P+R停车场配套商业102号商铺平面示意图(经营权转让范围为红色区域)

 

合同附件2:

 

 

安全管理协议书

 

甲方(全称):合肥城市轨道交通资源开发有限公司

乙方(全称):                             

甲、乙双方于            日签订合肥市轨道交通4号线伊宁路P+R停车场配套商业102号商铺经营权转让(2025-2030年度)二次合同(编号:          ),(以下简称“主合同”),为明确职责,强化责任,切实做好生产经营、消防安全工作,预防各类安全、火灾事故发生,根据安全生产法、消防法律法规及安徽省、合肥市轨道交通管理法规、规章和规范性文件等有关规定,特制订本协议书以明确双方责任。

一、协议时效

自本协议签订之日起主合同终止之日止。

二、责任区域

按主合同约定乙方经营或使用、管理的物业、场地、设施设备、线路等为乙方的生产经营、消防安全责任区域。

三、责任目标

(一)甲方权责

1、甲方有权对乙方进行各项安全督查,并对乙方安全隐患提出整改要求,督促其整改。

2、甲方有权制止乙方违反安全、消防管理规定的行为。

3、如乙方违反本协议规定,甲方有权要求乙方限期整改,乙方应按要求完成整改工作;如乙方未能在限定的期限内按照要求完成整改,甲方将保留对乙方采取停业整改以及其他必要措施的权利。

4、甲方有权要求乙方参加甲方组织的消防等安全知识学习和演习,如乙方无故缺席,有权对乙方按本协议第四条违约责任作出相应处罚。

5、甲方指定乙方的法定代表人或负责人为所经营的经营场地安全管理责任人,乙方应接受任命,同时要指定属下各级安全管理人员并明确相关职责。

(二)乙方权责

1、乙方必须自觉遵守执行国家有关安全生产管理、消防法律法规和有关消防安全管理规定。接受消防、安监等管理部门和乙方的安全管理监督、指导、检查,如有整改要求,必须认真执行。

2、乙方对经营范围内的各种消防设施和器材负有保护责任,任何人不能用任何方式遮盖、涂改、弃置及挪动、损毁、破坏等,如出现人为损坏和遗失现象,必须及时更换补充或按价赔偿。

3、乙方如违反国家、省、市的安全生产、消防安全法规,不遵守甲方制定的安全管理规定,甲方视情况有权对乙方作出解除主合同的处理;因此导致发生事故,乙方承担全部责任。

4、乙方在转让期必须指定至少一名安全员并报甲方备案,全面负责生产经营、消防安全工作,如有人员变更,应重新报甲方备案。乙方每年至少要组织1次消防安全培训,并作好记录供甲方抽查。

5、乙方员工上岗前必须经过安全、消防等知识的培训,熟练掌握灭火器的使用和安全用电知识,熟悉各安全出口和消防设施的位置。甲方相关管理人员有权对乙方员工随时抽查安全管理知识,对抽查不合格的人员,有权要求重新培训。

6、乙方在转让期间应遵守以下规定:

6.1 乙方必须按有关消防规定配备足够数量的灭火器、消防安全设施等,以保证各项商业经营活动的安全。不得携带易燃易爆品、可燃物等进入经营场地区域内。

6.2 严禁在经营场地内加工、生产、储存、销售易燃易爆物品和危险化学品。

6.3 保管好本经营场地内的商品销售票据、印章、贵重物品,必要时加钥保管,钥匙要有专人保管,做好班前、班后的安全检查、清点和交接工作。

6.4 乙方所管的经营场地(商铺)营业结束后,必须将所有的柜灯等照明关闭,插座卸下,垃圾带出营业场地,放到指定位置,以确保安全。

6.5 经营场地范围内严禁吸烟,甲方如发现乙方员工抽烟,有权要求乙方调换该员工。

6.6 因更改布局、装修改造工程需要使用明火,乙方必须向甲方申报,经甲方批准后方可施工。营业中需要使用的电热设备(如:电饭煲、烘烤器皿、电取暖器等),应报甲方相关部门审核并备案,同意后方可使用。设专人负责管理,防止发生火灾及其他意外。

6.7 开展有针对性的消防应急演练,配合甲方开展消防应急演练。配合安全疏散,及时通知甲方,及时救助受伤人员并保护现场。

6.8 乙方经营过程中必须保障经营范围内疏散通道、安全出口、消防车通道畅通;服从配合甲方或者甲方指定的负责人对共用的疏散通道、安全出口、建筑消防设施和消防车通道的管理;保证防火防烟分区、防火间距符合消防技术标准。

6.9 乙方应不定期组织并做好对责任范围内设备设施和各种器材的维护保养,确保有效正常运转,重点部位应加强检查。

四、违约责任

1、乙方因未履行消防安全责任,发生消防安全事故,甲方有权解除合同并按本合同第9.1条要求乙方承担相应责任。

2、乙方如有违反本协议或主合同及甲方制定的相关管理规定,按其相应的违约条款进行处罚。未涉及条款的甲方有权按以下方式进行处罚:

2.1发放《违约整改通知单》,限期整改,并有权从履约保证金中支付违约金1000元;限期整改后仍达不到要求的,责令停业整顿(停业期间业主有权停电),直到满足要求才能营业。

2.2 一年内停业整顿三次以上的,甲方有权无条件提前终止原合同。

 

甲方:(公章)                   乙方:(公章)

地址:                          地址:

法定代表人:                    法定代表人:

或授权代表:                    或授权代表:

电话:                          电话:

开户银行:                      开户银行:

账号:                          账号:

 

 


合同附件3:

 

甲方:

乙方:

 

为保证双方平等合作,促进双方诚信经营、廉洁从业,防范违规违纪违法行为发生,维护双方权益,根据国家有关法律法规和中共合肥市轨道交通集团有限公司纪律检查委员会关于廉政建设的相关要求,甲乙双方特订立本协议。

第一条 甲乙双方共同的义务

(一)自觉遵守国家法律法规及纪检监察相关规定。

(二)严格执行《合肥市轨道交通4号线伊宁路P+R停车场配套商业102号商铺经营权转让(2025-2030年度)二次(以下简称主合同)的要求,自觉履行主合同约定的相关义务。

(三)建立健全廉政制度,开展廉政教育,在主要工作场所设置廉政宣传栏并公布举报电话。

(四)双方纪检机构间建立联系合作机制,共同加强对主合同履行过程的监督和对发生的违规违纪违法行为的查处。

第二条 甲方的义务

甲方及其人员不得有以下行为:

(一)甲方及其工作人员不得索要或接受乙方的礼金、有价证券和贵重物品,不得在乙方报销任何应由甲方单位或个人支付的费用等。

(二)甲方工作人员不得参加乙方安排的可能影响相关业务公开、公正、公平性的宴请和娱乐活动;不得参与任何形式的赌博,严禁通过赌博方式取得乙方及其工作人员的财物;不得接受乙方提供的通讯工具和高档办公用品等。

(三)甲方及其工作人员不得要求或者接受乙方为其住房装修、婚丧嫁娶活动、配偶子女工作安排以及出国出境、旅游等提供方便。

(四)甲方工作人员不得在乙方有股权关联的企业兼职,不得向乙方介绍家属或者亲友从事与甲方业务有关的经济活动。

(五)甲方工作人员不得以明显低于市场的价格向乙方购买房屋、汽车等物品;不得以明显高于市场的价格向乙方出售房屋、汽车等物品;不得以其他交易形式非法收受请托人财物。

(六)甲方工作人员不得利用职务之便收受乙方以回扣、手续费、加班费、咨询费、劳务费、协调费、辛苦费等各种名义给予或赠送的钱物。

(七)甲方工作人员不得接受乙方给予或赠送的干股或红利。

(八)甲方任何人不得以个人的名义向乙方推荐设备、部件等供货商以及其它合作单位。

甲方纪检机构应按规定及时处理本方人员违规违纪违法行为;对乙方移交的甲方人员违规违纪违法问题应按相关规定处理并将结果通报乙方纪检机构;乙方纪检机构在核查相关问题时需要甲方配合的,甲方纪检机构按规定予以配合。

第三条 乙方的义务

乙方及其人员不得有以下行为:

(一)乙方不得以任何理由向甲方及其工作人员、家属、亲友行贿或馈赠礼金、有价证券、贵重礼品。

(二)乙方不得以任何名义为甲方及其工作人员、家属、亲友报销应由甲方单位或个人支付的任何费用。

(三)乙方不得以任何理由安排甲方工作人员参加可能影响相关业务公开、公正、公平性的宴请及娱乐活动。

(四)乙方不得为甲方单位和个人购置或提供通讯工具和高档办公用品等物品,也不得为甲方提供与工作无关的房屋、汽车等。

(五)乙方不得与甲方工作人员就合同中的质量、数量、价格、工程量、验收等条款进行私下商谈或者达成默契。

(六)乙方不得以回扣、手续费、加班费、咨询费、劳务费、协调费、辛苦费等各种名义向甲方工作人员给予或赠送钱物。

(七)乙方不得向甲方工作人员提供干股或红利。

乙方纪检机构应按规定及时处理本方人员违规违纪违法行为;对甲方移交的乙方人员违规违纪违法问题应按相关规定处理并将结果通报甲方纪检机构;甲方纪检机构在核查相关问题时需要乙方配合的,乙方纪检机构按规定予以配合。

第四条 违约责任

甲方违约责任:

甲方及其工作人员违反本协议第一条、第二条第一款之规定,乙方有权向甲方纪检机构通报或向甲方主管部门投诉。

乙方违约责任:

乙方及其工作人员违反本协议第一条、第三条第一款之规定,甲方有权向乙方纪委(监察机构)通报或向乙方主管部门、招投标管理部门投诉;也可采取扣除乙方全部或部分履约保证金(视情节严重性而定)、解除合同等措施;给甲方单位造成经济损失的,甲方有权要求乙方予以赔偿。上述措施可单独使用,也可一并使用。

第五条 联系方式

纪检机构联系方式:甲方:0551-69009075    乙方:

第六条 双方约定

本协议由甲乙双方纪检机构负责监督实施。

第七条 本协议有效期自协议签订之日起至主合同权利义务完全履行完毕止。

第八条 本协议作为双方签订的主合同附件,与主合同具有同等法律效力。

 

甲方(盖章):                           乙方(盖章):

法定代表人或                           法定代表人或

授权代表:          (职务)              授权代表:          (职务)

姓名                                    姓名

签名:                                  签名:

 

 

廉政监督联系人                           廉政监督联系人

姓名                                     姓名

签名:                                   签名:

电话:0551-                              电话:

日期:                             日期:        


合同附件4


                保函号:

致:合肥城市轨道交通资源开发有限公司(受益人)

鉴于:你公司与                      (以下简称“承包人”)签订 《合肥市轨道交通4号线伊宁路P+R停车场配套商业102号商铺经营权转让(2025-2030年度)二次合同(以下称“主合同”),你公司在主合同中要求承包人向你公司提交下述金额的经担保机构开具的履约保函,作为承包人履行主合同责任的担保。

1、本机构同意为承包人开具本保函,向你公司承担金额不超过人民币(大写)                     (¥:)的担保责任。本保函效力独立于主合同。

2、在你公司书面提出要求得到上述金额范围内的任何款项后7日内,本机构即无条件予以支付,且不要求你公司出具证明或说明背景、理由。

    3、本机构放弃你公司应先向承包人要求赔偿上述金额然后再向本机构提出要求的权利。

    4、本机构同意:无论主合同及/或与主合同相关事项发生何变化,本机构承担本保函的责任也不改变,有关上述变化也无须通知本机构。

5、本保函不可撤销,不得转让。

6、本保函项下的所有权利、义务、责任适用中华人民共和国法律。

7、有关本保函的一切争议由主合同项目所在地法院管辖。

8、本保函自担保机构签字盖章之日起生效至_________ 一直有效。本保函到期自动失效,无需返还正本给本机构,受益人可自行处置。

               

担保机构名称:                     (盖章)

法定代表人/授权代表:       (签名)

   址:                          

   期:          

 

 

 

附件:附件1:竞价文件格式(网).docx 附件:附件2:安徽公共资源交易集团电子交易操作规程.docx 附件:附件3:网络连续竞价须知.docx