您现在的位置: 首页 >> 答疑变更 >> 安徽公共资源交易集团项目管理有限公司 >> 货物
一、原公告主要信息
原项目名称: 合肥轨道交通深圳路TOD、紫云湖TOD、紫云湖保障房供电工程
原项目编号: 2025BFFAZ02262
原公告日期: 2025年10月20日
二、公告内容(更正事项、内容及日期等)
合肥轨道交通深圳路TOD、紫云湖TOD、紫云湖保障房供电工程补疑3 
      
项目编号:2025BFFAZ02262 
    
 
    
第一部分:投标人疑问部分 
    
 
   1、 
   招标文件投标人资质要求,投标文件是否需要附电力施工总承包或输变电专业承包资质及安全生产许可证? 
    
答:无需提供。 
    
 
   2、 
   招标文件项目经理要求,投标文件只需附职称证书,是否需要附项目经理注册建造师证书和安全生产考核合格证(B证)? 
    
答:无需提供。 
    
 
   3、 
   项目现场负责人是否只需要提供社保,对证书无要求?项目技术负责人要求,我司技术负责人职称为建筑电气中级,是否符合要求? 
    
答:项目现场负责人按照招标文件要求执行。建筑电气中级符合要求。 
    
 
   4、 
   商务文件资格审查资料,项目经理、项目现场负责人、项目技术负责人资料在哪体现? 
    
答:可在“商务文件”的“其他资料”中体现。 
    
 
   5、 
   技术文件内容“投标货物技术性能指标的详细描述”及“技术支持资料”需要提供资料吗? 
    
答:以设计图纸及供电验收、移交相关规范及文件为准。 
    
6、请问本项目是否除充电桩电表箱外,住宅电表箱都不在本次招标范围内? 
    
答:住宅电表箱不在本次范围内。 
    
7、充电桩电表箱至充电桩电缆以及充电桩本体是否在本次范围内? 
    
答:深圳路TOD:充电桩预留表箱在本次范围,其余充电桩电表箱至充电桩电缆以及充电桩本体均不在本次范围内,具体详见补疑招标范围; 
    
紫云湖TOD:地上充电桩车位表箱至充电桩的电缆及充电桩在本次范围内,具体详见补疑招标范围; 
    
紫云湖保障房:充电桩电表箱至充电桩电缆以及充电桩本体不在本次范围内,具体详见补疑招标范围。 
    
8、经核对,清单工程量缺少,深圳路TOD项目外线电缆长度缺少500m,紫云湖TOD项目外线电缆长度缺少1200m,请问清单工程量是否有误,是否需要调整?  
    
答:清单工程量无误。 
    
9、如下图,紫云湖TOD年华云湖项目第二路外线在此开断,开断后分为两段,其中一段接入本项目作为第二路电源。开断后另一段图纸未说明如何处理,请问开断后另一段电缆处理是否在本次招标范围内?若在,请问如何处理? 
    
 
    
答:开断后另一段电缆不在本次范围内,无需处理。 
    
10、没有新点软件版的招标清单文件 
    
答:本项目为货物类招标,不提供软件版。 
    
11、没有综合单价分析表 
    
答:不提供综合单价分析表。 
    
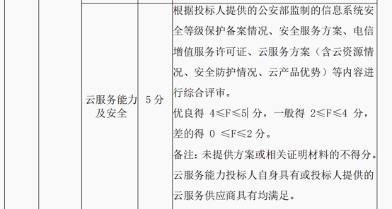
12、商务、技术及报价文件详细评审标准中“云服务能力及安全”备注里提到云服务能力投标人自身具有或投标人提供的云服务供应商具有均满足。请问此部分中要求投标人提供的公安部监制的信息系统安全等级保护备案情况和电信增值服务许可证,是否在投标阶段根据招标文件要求的“制造商授权书”填写授权即可? 
    
 
     
答:是。 
    
13、配电箱内各元器件采用ABB、西门子、施耐德,请问具体指哪些元器件? 
    
答:本项目品牌仅供参考,并无限制性。按照招标文件及补疑2执行。 
    
14、高低压配电柜内元器件是否有指定品牌要求? 
    
 
    
答:本项目品牌仅供参考,并无限制性。按照招标文件及补疑2执行。 
    
15、深圳路TOD中自管AA07柜至景观照明总箱AL-JG,图纸中未找到该景观照明箱。 
    
答:该景观照明箱在自管配电房内。 
    
16、招标文件中写明“技术要求中要求均不作为资格审查指标”,“采用其他品牌(或型号)的应在投标文件中《技术条款偏差表》中注明并提供有关技术性能指标证明资料等供评标委员会评审”,请问我单位响应推荐品牌,投标文件技术文件中“二、投标货物技术性能指标的详细描述”、“四、技术支持资料”相关资料能否中标后提供? 
    
答:中标后提供。 
    
17、最近铜价上涨幅度大,根据招标文件中的最高投标限价,经过市场询价,发现控制价过低,是否可以调整控制价? 
    
答:不做调整。详见本项目专用合同条款第11条。 
    
18、本项目工期短,根据招标文件的付款条件,本项目体量大,电缆、变压器、高低压柜等设备材料占比高、资金占用压力大,请问是否可以提高相关付款比例? 
    
答:不做调整。 
    
19、招标文件P39附表2其他主要管理人员和技术人员最低要求中的小注1:“本附表 2 为招标人按照住房和城乡建设部及安徽省相关标准规定要求投标人中标后需要配备其他主要管理人员和技术人员数量的最低要求。”请问:根据小注描述,投标文件中对附表2所要求的人员配置是否仅需提供承诺即可,无需提供人员相关资料? 
    
答:附表2材料标后提供。 
    
20、变压器、电缆、母线、铜排等主要材料涨价,最高限价低于该项目成本,造成该项目多次流标主要原因,是否可以调整最高限价? 
    
答:不做调整。详见本项目专用合同条款第11条。 
    
21、截止目前铜价上涨至8.9万/吨,波动性较大,已经超出一个有经验的承包商所能预见的范围,且本项目与铜相关的主要材料及相关设备占比达到最高限价总金额的70%左右,其风险是任何一家承包商不能够承担的,建议甲方合同签订时以市场实际采购价进行调价? 
    
答:不做调整。详见本项目专用合同条款第11条。 
    
22、深圳路TOD一期供电工程10kV外线清单第6条电缆保护管MPP200*15工程量为400米 图纸数量为20孔*50米,数量应为1000米;  
    
 
    
答:清单工程量无误,详见清单补疑第3条,图中标注长度含电缆进开闭所内长度。 
    
23、土建工程里清单电缆沟盖板(运输通道处)单位为m³,根据实际及图纸应为m²; 
    
 
    
 
    
 
    
 
 
    
 
    
24、关于变压器品牌:施耐德、西门子、ABB为合资同档次品牌,海南金盘、南京大全、新疆特变、广州顺德为国产同档次品牌,本次品牌表中新疆特变与ABB、西门子,不属于同档次,品牌档次存在不平衡。 
    
答:本项目品牌仅供参考,并无限制性。按照招标文件及补疑2执行。 
    
25、本招标项目的最高投标限价低于市场采购价,为了能够确保顺利实现本招标项目质量、安全、工期、高可靠用电等目标要求,请招标人提高最高投标限价。 
    
答:不做调整。详见本项目专用合同条款第11条。 
    
26、目前市场上电力电缆、变压器、DTU、母线等供电设备材料都要现款提货,垫资较多,为了能够确保顺利实现本招标项目质量、安全、工期、高可靠用电等目标要求,请招标人优化调整付款方式! 
    
答:不做调整。 
    
27、根据商务文件评分标准中的项目经理业绩要求,若我单位提供项目经理业绩的时间及合同金额均满足要求,相关证明资料齐全,分包工程范围及分包工作内容描述为“10kV供配电工程外线工程分包工程”,请明确此业绩是否认可? 
    
 
    
答:不认可。 
    
第二部分:招标人调整修改部分 
    
1、招标文件第四章合同条款及格式中“B:开标当日长江有色金属网“https://www.ccmn.cn/” 中“长江现货”1#铜铜价区间值的平均值(不含税价);”调整为“B:以招标清单挂网当日长江有色金属网“https://www.ccmn.cn/” 中“长江现货”1#铜铜价区间值的平均值(不含税价);”。 
    
 
     
注:此补疑视同招标文件的组成部分,与招标文件具有同等法律效力。 
    
招 标 人:合肥市轨道交通集团有限公司 
    
地 址:合肥市阜阳路17号 
    
联 系 人:王工 
    
 电 话:0551-69009059 
    
招标代理机构:安徽公共资源交易集团项目管理有限公司 
    
地 址:合肥市滨湖新区南京路2588号(徽州大道与南京路交口) 
    
     联 系 人:李工 
    
电 话:0551-66223644、66223831 
    
2025年11月4日 
    
三、附件
答疑发布日期:2025年11月04日