您现在的位置: 首页 >> 答疑变更 >> 安徽公共资源交易集团项目管理有限公司 >> 货物
一、原公告主要信息
原项目名称: 钢构设备平台采购
原项目编号: 2025BFFAZ02252
原公告日期: 2025年10月18日
二、公告内容(更正事项、内容及日期等)
钢构设备平台采购项目招标文件补疑 
    
项目编号:2025BFFAZ02252 
    
 
    
第一部分 投标人疑问回复内容 
    
 
   1.  
   请补充钢柱与钢梁、钢梁与钢梁连接节点、钢梁与原混凝土结构连接节点、钢柱柱脚节点、支撑节点以及预埋件做法。 
    
回复:参考节点详见补疑附件1。 
    
 
   2.  
   图纸中标注土建内梁预埋件已施工,是否所有预埋都已施工完毕,钢结构范围内是否无需考虑预埋?若需要考虑预埋件,请补充所有钢平台的预埋件的布置图,结构图预埋件长度lae标注不明确,请补充预埋件详图。 
    

 
    
回复:原则上,图中注明“土建内梁预埋件均已施工”处,在平面图中特别注明采用后植定型化学锚栓埋件在此次招标范围内,除此之外的梁预埋件均已施工完毕。现场可能存在极个别预埋件遗漏、错位的情况,以现场实际情况为准。但加建钢平台钢板与周边混凝土的连接在本次招标范围内,需要中标单位自行设计施工。 
    
 
   3.  
   本项目为加建项目涉及到拆除和拆除后垃圾清运,拆除和拆除后垃圾清运是否在本次投标范围内?若是,拆除所产生的人工机械费用是否可以在清单单独列项,拆除所产生的垃圾清运费是否可以在清单单独列项? 
    
回复:拆除及拆除后垃圾清运在本次招标范围内,综合考虑在投标报价中,相关费用无需单独列项。 
    
 
   4.  
   本次招标图纸无设计说明,油漆做法是否按照以前图纸设计说明油漆做法(无机富锌底漆80um(2x40um)金属锌含量大于等于80%,体积固体含量大于等于65%+环氧云铁中间漆120um(2x60um)体积固体含量大于80%+环氧封闭漆60um(2x30um)+丙烯酸聚氨酯80um(2x40um),丙烯酸聚氨酯面漆体积固体分不低于57%或者氟碳面漆80um(2x40um),氟碳面漆氟含量≥22%,体积固体份≥47%或者丙烯酸聚硅氧烷80um(2x40um),丙烯酸聚硅氧烷面漆的体积固体份≥65%(做法三选一))?若按照以前图纸油漆做法,请明确面漆具体油漆? 
    
 
    
 
    
回复:碳钢采用该要求,原则上按照氟碳喷涂,不锈钢不作要求。 
    
 
   5.  
   本项目防火是否在本次招标范围内?若是,请明确防火做法。 
    
回复:本项目钢结构无防火要求。 
    
 
   6.  
   平台花纹钢板下设置成品方管,未明确成品方管铺设方向,请明确成品方管是长边方向设置,还是短边方向设置?请在平面图上标注钢管的位置。 
    
回复:两个方向都可以,按照经济性原则布置。 
    
 
   7.  
   预埋件部分图纸标注化学锚栓,部分图纸未注明,是否标注有误?预埋件是否全部为化学锚栓,还是按照图纸标注?请在平面图上明确化学锚栓和预埋件。 
    

 
    
回复:详见前述问题回复。 
    
 
   8.  
   请补充图纸中的节点说明。 
    
 
    
回复:该处对应参考的节点图,详见补疑附件1。 
    
 
   9.  
   新增钢柱顶标高同梁顶标高,钢柱底标高是否为下一层梁顶标高?例如5-4诊断大厅3F夹层钢柱底标高为4.100m,钢柱顶标高为11.850m,5-1托克马克大厅3(1)钢夹层钢柱底标高为11.850m,钢柱顶标高为15.850m。 
    
 
    
回复:5-1托克马克大厅3(1)钢夹层在E-M轴~E-P轴交E-4轴~E-6轴钢柱底标高为11.700m,柱顶15.900m。 
    
 
   10.  
   所有钢平台花纹钢板是否都为扁豆型花纹钢板? 
    
 
    
回复:未注明的可以采用扁豆型花纹钢板,有原位标注的按原位标注,即E-G轴~E-R轴交E-4轴~E-14轴范围内加建夹层钢板采用S30408。 
    
 
   11.  
   部分钢平台上标注吊装口位置以及吊装口大小,本项目为加建项目吊装口以及吊装口后期恢复是由甲方负责,还是由投标单位负责?其他钢平台未注明吊装口是否需要做吊装孔?若需要,请明确吊装口位置和大小。 
    
 
    

 
    
回复:加建相关吊装口预留及处理,在深化阶段需要与工艺设备使用方沟通处理,该部分综合考虑在投标报价中。 
    
 
   12.  
   钢梁与钢骨交接时,平面图未注明埋件编号,请明确加建区域钢梁与钢骨梁交接时埋件的编号。 
    
 
    
回复:此处是钢梁与钢梁相连,无预埋件。 
    
 
   13.  
   主机大厅及周边平面图0521-加建楼梯详图中有标注加建楼梯,请明确哪些楼梯为钢楼梯是在本次投标范围内?请补充每一部钢楼梯的详图,节点做法。 
    
回复:楼梯在本次招标范围内,已提供建筑详图,结构详图需中标单位根据建筑详图自行设计补充并经业主及咨询方审核同意后方可施工。楼梯的材质同该区域钢结构平台的材质。 
    
 
   14.  
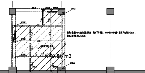
   关于3(2)加建20250530 -托克马克大厅中的疑问: 
    
水冷设备间夹层加建平台(标高28.45米)GL9/GL1/GL5/GKL1规格是否按照加建区域梁截面表的规格?水冷系统区域未注明钢梁材质标号,钢梁材质是S30408还是Q355B? 
    

 
    
回复:28.450标高区域的加建钢梁材质都用Q355B。 
    
 
   15.  
   关于3(2)加建20250530 -托克马克大厅中的疑问: 
    
波源厅1厅钢平台(标高20.4米)花纹钢板和成品方管口120*60*6材质是否为S30408? 
    
 
    
回复:是的。 
    
 
   16.  
   关于3(2)加建20250530 -托克马克大厅中的疑问: 
    
主机大厅东北角波源厅3(2)钢平台(标高19.6米)、主机大厅东南角波源厅3(2)钢平台(标高19.6米)、波源厅1厅钢平台(标高20.4米)、波源厅1厅钢平台(标高25.4米)加建区域梁截面表未注明材质,钢梁材质是否按照平面图标注的材质不锈钢S30408? 
    

 
    
回复:19.6m、20.4m、25.4m标高区域内的加建梁材质全部采用S30408。 
    
 
   17.  
   1关于5-1托克马克大厅-3(1)F钢夹层的疑问: 
    
3层TBM辅助设备间加建钢平台(标高15.9米)、主机大厅东北角3(1)钢平台(标高15.9米)、主机大厅东南角3(1)钢平台(标高15.9米)有加建楼梯,此楼梯是否在本次钢结构投标范围内?若是,请补充楼梯的详图、楼梯的标高尺寸、规格、材质以及具体做法。 
    
 
    

 
    
回复:详见前述问题回复。 
    
 
   18.  
   关于5-1托克马克大厅-3(1)F钢夹层的疑问: 
    
3层TBM辅助设备间加建钢平台(标高15.9米)材料表中GKL3材质为S22053,但平台未注明的钢梁钢柱材质为S30408,请明确无原位标注的GKL3是按照S22053还是S30408计算?若GKL3材质有S30408和S22053两种材质,请在平面图上明确标注材质。 
    

 
    
回复:本钢结构夹层平台GKL3未标注的均采用S22053。 
    
 
   19.  
   关于5-1托克马克大厅-3(1)F钢夹层的疑问: 
    
主机大厅东北角3(1)钢平台(标高15.9米)钢平台GL6未注明规格型号,请补充GL6的规格、材质。 
    
 
    
回复:此GL6截面按H600×300×12×30mm,材质采用S30408。 
    
 
   20.  
   关于5-1托克马克大厅-3(1)F钢夹层的疑问: 
    
主机大厅东南角3(1)钢平台(标高15.9米)钢平台此部位钢梁未注明编号,请明确此部位钢梁编号、规格、材质。 
    
 
    
回复:此位置按GL6截面按H600×300×12×30mm,材质采用S30408。 
    
 
   21.  
   关于5-1托克马克大厅-3F钢夹层EH轴磁体电源的疑问: 
    
南侧磁体电源加建平台(标高9.2米)有加建楼梯,此楼梯是否在本次钢结构投标范围内?若是,请补充楼梯的详图、楼梯的标高尺寸、规格、材质以及具体做法。 
    
 
    
回复:详见前述问题回复。 
    
 
   22.  
   关于B2层磁体电源大厅加建的疑问: 
    
B2层磁体电源大厅加建8厚带肋花纹钢板,带肋是否为下设成品方管?若是,请明确方管规格、材质以及铺设方向和间距?请补充8厚花纹钢板材质。 
    
 
    
回复:板下设120×60×6mm的成品方管,间距不大于500mm,铺设方向两个方向都可以,按照经济性原则布置。钢管和钢板材质均为Q355B。 
    
 
   23.  
   关于NBI钢结构平台-250221修改V2的疑问: 
    
请补充钢柱与钢梁、钢梁与钢梁连接节点、钢梁与原混凝土结构连接节点、钢柱柱脚节点以及预埋件做法。 
    

 
    
回复:参考节点详见补疑附件1。 
    
 
   24.  
   关于NBI钢结构平台-250221修改V2的疑问: 
    
NBI钢平台钢柱、钢梁以及平台板等所有钢结构材质是否为S30408? 
    
回复:所有均为S30408。 
    
 
   25.  
   关于NBI钢结构平台-250221修改V2的疑问: 
    
NBI钢平台钢柱总长度是否为10894mm? 
    
 
    
回复:不是柱长,此处表示板面位置。按照6.194板面标高深化,并确定柱长。 
    
 
   26.  
   关于5-2大厅的疑问: 
    
氚工厂西北角三层低压配电间顶部区域平台(标高22.6米)钢平台钢梁、花纹钢板以及方管未注明材质,请明确钢梁、花纹钢板、方管的材质。 
    
 
    
回复:该处采用Q355B。 
    
 
   27.  
   关于2层诊断大厅加建的疑问: 
    
集成大厅东侧加建平台(标高4米)花纹钢板材质是否为Q355B?8厚带肋花纹钢板,带肋是否为下设成品方管?若是,请明确方管规格、材质以及铺设方向和间距? 
    
 
    
回复:板下设120×60×6mm的成品方管,间距不大于500mm,铺设方向两个方向都可以,按照经济性原则布置。钢管和钢板材质均为Q355B。 
    
 
   28.  
   关于2层诊断大厅加建的疑问: 
    
集成大厅南侧及东南侧加建平台(标高5.95米)钢平台上是否铺设花纹钢板和成品方管?其他平台都铺设花纹钢板和成品方管;若是,请明确花纹钢板材质厚度,成品方管规格、材质以及铺设间距和方向?若不是,请补充钢梁上铺设什么板并且补充板型、材质和做法? 
    
 
    
回复:此处钢结构夹层楼板为钢筋桁架150厚混凝土楼板,不在本次招标范围内。 
    
 
   29.  
   关于2层诊断大厅加建的疑问: 
    
集成大厅南侧及东南侧加建平台(标高5.95米)有加建楼梯,此楼梯是否在本次钢结构投标范围内?若是,请补充楼梯的详图、楼梯的标高尺寸、规格、材质以及具体做法。 
    
 
    
回复:此楼梯为楼梯5-LT14,为原结构已有楼梯。 
    
 
    
 
   30.  
   关于5-4诊断大厅-3F钢夹层的疑问: 
    
集成大厅东侧加建平台(标高8米)、集成大厅东侧加建平台(标高12米)及集成大厅东南侧加建平台(标高11.85米)钢平台上是否铺设花纹钢板和成品方管?其他平台都铺设花纹钢板和成品方管;若是,请明确花纹钢板材质厚度,成品方管规格、材质以及铺设间距和方向?若不是,请补充钢梁上铺设什么板并且补充板型、材质和做法? 
    
 
    
回复:板下设 120x60x6mm 的成品方管,间距不大于500mm,铺设方向两个方向都可以,按照经济性原则布置。钢管和钢板材质均为Q355B。 
    
 
   31.  
   关于5-4诊断大厅-3F钢夹层的疑问: 
    
集成大厅东侧加建平台(标高8米)、集成大厅东侧加建平台(标高12米)有加建楼梯,此楼梯是否在本次钢结构投标范围内?若是,请补充楼梯的详图、楼梯的标高尺寸、规格、材质以及具体做法。 
    
 
    
回复:详见前述问题回复。 
    
 
   32.  
   关于5-4诊断大厅-3F钢夹层的疑问: 
    
集成大厅东南侧加建平台(标高11.85米)有加建楼梯,此楼梯是否在本次钢结构投标范围内?若是,请补充楼梯的详图、楼梯的标高尺寸、规格、材质以及具体做法。 
    
 
    
回复:详见前述问题回复。 
    
 
   33.  
   关于5-4诊断大厅-3F钢夹层的疑问: 
    
不锈钢H型材是否需要固溶处理,请明示? 
    
回复:本次招标文件中的钢材需要达到CECS410-2015表3.3.1中的指标要求,需要进行固溶处理。 
    
 
   34.  
   附录3关于业绩要求中“供货安装完毕并验收合格的相关证明文件(如验收证书或合同甲方开具的证明等,验收证书或合同甲方开具的证明等应盖合同甲方单位公章)”问:这个证明可否是加盖甲方公章的工程结算单? 
    
回复:加盖甲方公章的工程结算单可以视为供货安装完毕并验收合格的相关证明文件。 
    
 
   35.  
   项目经理业绩与初审及评审投标人业绩能不能共用? 
    
回复:不能。 
    
 
   36.  
   5-4 大厅 5-4诊断大厅-3F钢夹层20250917 图中钢平台上楼板仅显示为“花纹钢板”未注明该花纹钢板厚度及花纹板下加劲肋规格,请明确对应的规格及材质。 
    
 
    
回复:详见前述问题回复。 
    
 
   37.  
   5-4 大厅 2层诊断大厅加建-0917 图中花纹板显示为“8厚带肋花纹钢板”,未明确该带肋的规格及厚度,请明确对应的规格及材质。 
    
 
    
回复:详见前述问题回复。 
    
 
   38.  
   5-1 托卡马克大厅 5-1托克马克大厅-3(1)F钢夹层 图中无“GL3”“GL6”截面规格,请明确。 
    
 
    
回复:详见前述问题回复。 
    
 
   39.  
   5-2 氚处理中心3层变电所 5-2加建 图中钢梁材质未注明,请明确钢梁材质。 
    

 
    
回复:详见前述问题回复。 
    
 
   40.  
   5-1 托卡马克大厅 B2层磁体电源大厅加建 图中“GZ1”未注明截面及标高,请明确;图中花纹板显示为“8厚带肋花纹钢板”,未明确该带肋的规格及厚度,请明确对应的规格及材质。 
    

 
    
回复:钢柱GZ1为箱型300×300×20×20mm,Q355B。采用钢平台上铺8mm厚花纹钢板,钢板下方设置100×50×4mm钢管,间距不大于500mm。钢板及钢管采用Q355B。 
    
 
   41.  
   楼梯图 BEST园区——主机大厅及周边平面图0521_加建楼梯详图_t3 图中涉及的钢楼梯存在以下问题:(1)5-1 托卡马克大厅/加建20250627 -托克马克大厅内右侧钢楼梯注明为:固定式钢斜体,XT1a(14)-120x225-60(详图及15J401),但左侧楼梯未注明楼梯型钢,是否与右侧一致;(2)5-4 大厅/5-4诊断大厅-3F钢夹层20250917中有画楼梯,但楼梯无图集编号且无楼梯大样图,请提供;(3)5-1 托卡马克大厅/5-1托克马克大厅-3(1)F钢夹层中有注明“验收后拆除,钢制楼梯”,但无图集编号且无楼梯大样图,请提供;(4)其余位置楼梯因图纸较为繁杂,请明确具体的涉及到的钢楼梯位置及图集编号或楼梯大样图。 
    
回复:详见前述问题回复。 
    
 
   42.  
   工期问题:交货及安装周期要求:合同签订后,接招标人指令后3个月内(约90个日历天)完成交付。经过现场踏勘,现场周边土建仍在施工。何时具备施工条件,我司可以进场施工。各个平台施工是否要工期节点要求。 
    
回复:正常按具备进场条件移交后计算工期,每个平台具体工期以甲方实际指令为准。 
    
 
   43.  
   请提供钢结构设计说明。 
    
回复:详见补疑附件2。 
    
 
   44.  
   涂装要求:本项目招标技术规范书中要求碳钢构件,碳钢构件需根据技术文件要求进行镀锌或涂漆防腐处理,镀锌层厚度>80um,涂漆涂装前需喷砂除锈至Sa2.5级。请明确,不锈钢、合金钢等的防腐涂装要求和做法。 
    
 
    
回复:详见补疑附件2。 
    
 
   45.  
   厚板:本工程厚度40mm以上的钢板,是否有z向性能要求? 
    
回复:有。 
    
 
   46.  
   招标文件中投标人资格要求中“3.3条其他要求:本项目拟派项目负责人具备钢结构及相关专业中级工程师及以上职称。”提问:请问是否只对项目经理做职称要求,对建造师等级是否有要求? 
    
回复:投标人资格要求中的项目负责人要求不予修改,详细评审内容有修改,详见变更部分内容。 
    
 
   47.  
   ICRF波源加建(含电源)图纸中的加建结构不在招标范围?如在,请提供CAD图纸。 
    
 
    
回复:该处PDF有误,以CAD为准。 
    
 
   48.  
   三~三(一)层加建20250312图纸中的加建结构不在招标范围?如在,请提供CAD图纸。 
    
 
    
回复:该图中5-1主机大厅范围内的平台为本次招标内容,预装大厅不在本次招标范围内。PDF“三~三(一)层加建20250312.pdf”作废,以“5-1托克马克大厅-3(1)F钢夹层为准”。 
    
 
    
 
   49.  
   水冷设备间夹层加建平台(标高28.45米),请明确钢梁及埋件材质? 
    
 
    
回复:材料Q355B。 
    
 
   50.  
   3层TBM辅助设备间加建钢平台(标高15.9米),未注明的GKL3是什么材质? 
    
 
    
回复:本钢结构夹层平台GKL3未标注的均采用S22053。 
    
 
   51.  
   5-1托克马克大厅-3(1)F钢夹层图纸中,GL3/GL6截面未注明,请提供。 
    
 
    
回复:材质采用S30408。 
    
 
   52.  
   2层诊断大厅加建-0917图纸中,GKL4材质未注明,请提供。 
    
 
    
回复:材质为Q355B。 
    
 
   53.  
   5-4诊断大厅-3F钢夹层20250917图纸中,GKZ1 口600x600x35x35材质未注明,请明确。 
    
 
    
回复:材质为Q355B。 
    
 
   54.  
   5-4诊断大厅-3F钢夹层20250917图纸中,钢梁材质以材料表为准,还是备注为准? 
    
 
    
回复:以表中为准,该平台为碳钢,本项目中碳“420GJ”均为“Q420GJC”;注2中已经写明“E-G轴~E-R轴交E-4轴~E-14轴范围内加建夹层钢材未注明的均采用S30408”,该区域不属于这个轴线范围,二者并无矛盾。 
    
 
   55.  
   请明确各图纸中的钢柱顶标高和底标高? 
    
回复:柱顶标高同结构板面标高,柱底标高为下层楼面标高。 
    
 
   56.  
   请明确哪些埋件已施工,哪些埋件为后植入埋件? 
    
回复:(1)本项目原则上,绝大部分区域的梁柱预埋件均已施工,仅地下室的个别区域由于土建施工进度原因没有预埋;地上在土建预埋后工艺进行了调整需要补充预埋件,相关位置平面图钢梁具体位置注明“后植化学锚栓”字样,其它地方梁预埋件均已施工。但现场施工存在不确定性,可能存在极个别处错埋、漏埋、位置偏心的情况,需要本次中标单位施工。(2)所有的平台钢板与周边土建的连接埋件、钢楼梯的埋件均未施工,需要本次中标单位施工。(3)补充埋件原则上采用定型化学锚栓,以满足受力要求为准,平面中均已注明了平台需要承担的活荷载,具体中标单位自行深化设计并经业主及咨询单位审核确认。 
    
 
   57.  
   请明确混凝土楼板等非钢结构部分是否在本次招标范围? 
    
回复:混凝土楼板不在本次招标范围内。 
    
 
   58.  
   主机大厅东北角波源厅3(2)钢平台(标高19.6米)和主机大厅东南角波源厅3(2)钢平台(标高19.6米)图纸中,型钢柱是否在新建范围? 
    
 
    
回复:该型钢柱不属于加建范围。 
    
 
   59.  
   请明确钢板下方布置的钢管的方向? 
    
 
    
回复:两个方向均可,中标单位自行设计,以满足受力需求为准。 
    
 
   60.  
   5-1托克马克大厅-3(1)F钢夹层图纸中,东南角和东北角的柱子是否属于报价范围内,如在,请明确规格和材质。 
    
 
    
回复:该型钢柱不在本次招标范围内。 
    
 
   61.  
   B2层磁体电源大厅加建结构图纸中,柱子和埋板是否属于报价范围内,如在,请明确规格和材质。 
    
 
    
回复:钢柱GZ1为箱型300×300×20×20mm,Q355B。该处埋件是否施工以实际情况为准,可以提前踏勘。 
    
 
   62.  
   水冷系统PDF版和3(2)加建20250627-托克马克大厅图纸中三层TBM辅助设备是否是同一块内容,如是,花纹钢板厚度标注不一致,以哪一版为准? 
    
 
    
 
    
回复:按照6mm扁豆型花纹钢板。 
    
 
   63.  
   ICRF波源加建(含电源)PDF版和 3(2)加建20250627 -托克马克大厅图纸中主机大厅东北角和东南角是否是同一块内容,如是,以哪一版为准? 
    
回复:以3(2)加建20250627 -托克马克大厅为准。 
    
 
   64.  
   所有花纹钢板下都铺设有钢管吗?如有,2层诊断大厅加建,5-4诊断大厅-3F钢夹层图纸中的钢管规格是? 
    
 
    
回复:详见前述问题回复。 
    
 
   65.  
   2层诊断大厅加建图纸中集成大厅南侧及东南侧和5-4诊断大厅-3F钢夹层图纸中是否有花纹钢板,如有,花纹钢板的规格是? 
    
回复:此处钢结构夹层楼板为钢筋桁架150厚混凝土楼板,不在本次招标范围。 
    
 
    
 
   66.  
   5-4诊断大厅-3F钢夹层图纸中未标注标高的是否仅12.000标高有? 
    
 
    
回复:8.00和12.00标高均有,两个平台完全一致。需注意该处注明截面的钢柱也是本次招标范围。 
    
 
   67.  
   2层诊断大厅加建图纸中所示梁没有给规格和材质 
    
 
    
回复:该梁为现有混凝土梁,不属于本次招标范围。 
    
 
   68.  
   图纸中标注:土建内梁预埋件已施工,是否所有预埋件不用包含在本次报价范围内? 
    
 
    
回复:详见前述问题回复。 
    
 
   69.  
   请明确砌体墙或建筑门的拆除和重建费用是否包含在本次报价范围? 
    
 
    
回复:投标单位需自行详细勘探现场,该部分费用综合考虑在报价范围内。 
    
 
   70.  
   技术标目录与评分内容不符,请问以哪个为准? 
    
回复:技术标目录为范本内容,仅供参考,具体提供资料须符合评分要求。 
    
 
   71.  
   请问楼层内部既有行车吊是否可以免费提供使用,用于加建结构施工? 
    
回复:需中标单位与管理单位协商,发标单位给予必要的协调支持,如产生相关费用需中标人自行支付。 
    
 
   72.  
   请提供加建平台结构的开工日期? 
    
回复:以甲方实际指令为准。 
    
 
   73.  
   招标文件所述的3个月交付,是不包含钢结构深化设计、材料采购、加工制作周期(本工程材料特殊,采购和加工周期超60天),仅指包含现场施工工期? 
    
回复:工期以移交后开始计算,包含材料采购及加工周期,开工日期具体以甲方实际指令为准。 
    
 
   74.  
   请明确场地交付状态,是否为5#楼主体结构施工完毕,内部脚手架等拆除完毕? 
    
回复:5#主机大厅内部脚手架基本拆除完毕,5#南侧诊断大厅内部脚手架尚未拆除完毕,具体需投标单位自行详勘现场确认。 
    
 
   75.  
   请问钢楼梯是否在本次报价范围内,如是,请问钢楼梯归入清单哪一项中? 
    
回复:加建钢平台范围内的楼梯在本次招标范围内,已提供建筑详图,结构详图需中标单位根据建筑详图自行设计补充并经业主及咨询方审核同意后方可施工。楼梯的材质同该区域钢结构平台的材质。  
    
 
   76.  
   请明确哪些钢楼梯在本次报价范围内? 
    
回复:详见前述问题回复。 
    
 
   77.  
   请问本次报价第三方检测费是否包括? 
    
回复:包括。 
    
 
   78.  
   按招标文件要求不接受联合体投标,请问制作软件中联合体协议书这一章节无法删除,是否空白即可? 
    
回复:可以,须加盖投标人电子签章,否则可能导致投标文件无法合成。 
    
 
   79.  
   请明确本工程的防腐、防火要求? 
    
回复:本工程的钢结构没有防火要求,防腐及其他要求见补疑附件2。 
    
 
   80.  
   所提供的招标文件第212页单价分析表中要求单价为元/吨,而分析表中的单位为套,并且备注中要求“材料综合单价 =①+②+③总价 = 材料综合单价 * 数量 + 项目现场安装费”,请问,报价分析表如何填写? 
    

 
    
回复:报价表已更新,详见补疑附件3。 
    
 
   81.  
   所提供的技术规范书要求“乙方在提交投标报价及最终文件时,均应提供详细的材料表(BOM),分项列出使用的主要材料的材质、型号、规格、长度(或面积)及吨重等。”而所提供的招标文件中无此要求,请问本次投标报价阶段“主要材料的材质、型号、规格、长度(或面积)及吨重等”是否可以不提供,待中标后提供?若需提供,请问此部分内容是否放入“投标文件(报价文件)三、其他内容”中? 
    
 
    
回复:乙方提交投标报价及最终文件时需提供详细的材料表(BOM),分项列出使用的主要材料的材质、型号、规格、长度(或面积)及吨重等,在“项目特征”一栏填写主要材料的材质、型号、规格、长度(或面积)等,“吨重”按补疑附件3填写。 
    
 
   82.  
   支付方式是否可以采用银行转账或银行承兑。若因采用商业汇票支付,请明确商业汇票票面信息(出票人、承兑人等信息)以及贴息费用是否由发包人承担? 
    
回复:本项目支付方式:采用银行承兑汇票(6个月)支付方式。投标人的开户银行对投标人征收的与支付有关的任何银行费用均由投标人承担。 
    
 
   83.  
   请问是否可以提供EXCEL版钢构设备平台报价清单? 
    
回复:已提供可编辑版,详见补疑附件3。 
    
 
   84.  
   请问本工程开标时间是否可以延期? 
    
回复:详见延期部分内容。 
    
 
   85.  
   现场部分墙面预埋板是不锈钢材质,但构件是碳钢。如何连接。需提供节点图和相关要求。 
    
 
    
回复:原则上图中的钢平台材质与现场预埋件材质一致。 
    
 
   86.  
   B2层磁体电源现场部分墙面预埋板和钢柱预埋板,未预埋,如需植筋需提供节点。(如图内B2层磁体电源箭头处)现场植筋位置钢筋都比较密集,需考虑打到钢筋如何处理? 
    
 
    
回复:后植采用定型化学锚栓,以满足实际受力为准,中标单位自行设计,报业主及咨询单位审批。 
    
 
   87.  
   现场焊接碳钢和不锈钢各自需要达到什么标准?如需检测,是用什么方式进行检测?需说明。 
    
回复:详见补疑附件2。 
    
 
   88.  
   现场的行吊能否配合给我们使用,特别是预装大厅的行吊和100吨电梯。所有的材料都要经过行吊和电梯,到达各个单体,要用的时间和频率都很高。 
    
回复:行车具备使用条件,需中标单位自行与管理单位协商,涉及费用综合考虑在投标报价内,甲方给予必要的协调支持。 
    
 
   89.  
   对于安装顺序有没有要求,比如先装哪个单体,后装哪个单体。 
    
回复:以甲方实际指令为准。 
    
 
   90.  
   不锈钢构件之间以及碳钢和不锈钢之间的连接用什么类型和标准的螺栓,还请明确相关的标准。 
    
回复:原则上不存在碳钢与不锈钢之间的连接。螺栓按照常规深化设计。 
    
 
   91.  
   节点只有索引号没有详细的节点图,花纹钢板和框架的节点图也没有,请提供节点图。 
    
回复:见补疑附件1。花纹钢板与框架的节点中标单位自行深化设计。 
    
 
   92.  
   Q355B钢构件刷漆要求和不锈钢板饰面是否为原板面?及需要检测的项目,请给予明确。 
    
回复:Q355B钢构件刷漆见补疑附件1。不锈钢板表面采用本色白化处理即可,保持基本美观、整洁、平整。按照规范要求进行检测。 
    
 
   93.  
   原土建埋件和梁连接处连接板请明确尺寸。 
    
回复:已经给了螺栓的规格和数目,中标单位深化设计并报业主及咨询单位审核确认。 
    
 
   94.  
   请问此项目大致开工时间,如果春节前开工,期间赶上春节放假,3个月工期,包括深化分解图纸,双方沟通,且现场进材料全部依靠预装大厅的行吊,非常受限,3个月的工期非常紧张还请甲方酌情考虑。 
    
回复:开工日期以甲方实际指令为准,正常以移交场地后计算工期。 
    
 
   95.  
   投标报价清单是否只提供招标文件内要求提供的两种格式清单即可(二、分项报价表和附表一钢结构设备平台报价分析表)? 
    
回复:是的。 
    
 
   96.  
   甲方提供的清单单位是1套,缺漏项是指什么?如招标图纸未表现出来是否属于变更增项? 
    
回复:为完成钢平台必要的连接、楼梯等均在本次招标范围内,投标单位综合考虑在平台报价范围内。 
    
 
   97.  
   施工期间是否有其他单位在施工区域内施工,平台均为加建(加建暂视为本楼层二层或三层),一层是否有设备已安装? 
    
回复:可能存在共同施工情况,目前设备暂未安装,具体以现场实际情况为准,投标单位需综合考虑。 
    
 
   98.  
   商业承兑的手续费谁承担? 
    
回复:由中标人自行承担。 
    
 
   99.  
   中标单位是否只负责深化加工下料图即可。 
    
回复:需中标单位与甲方(包括使用方)沟通确认。 
    
 
   100.  
   楼梯全部为碳钢吗?请提供楼梯详图包括楼梯栏杆要求。 
    
回复:楼梯的材质同所在区域钢平台材质。楼梯详图参考建筑图自行深化设计并报业主及咨询单位审核确认。 
    
 
   101.  
   平台构件安装时部分房间需要自行自制安装工具,楼地面是否能承受20t吊车重量,现场的塔吊起重量? 
    
回复:具体位置施工时需与土建设计单位确认,甲方予以必要协调支持。 
    
 
   102.  
   房间内已有的行车在开工时是否具备使用条件,是否给配合使用,已有的上料平台是否能一直配合使用? 
    
回复:行车具备使用条件,需中标单位自行与管理单位协商,涉及费用综合考虑在投标报价内,甲方给予必要的协调支持。 
    
 
   103.  
   招标文件第六页要求“本项目拟派项目负责人具备钢结构及相关专业中级工程师及以上职称”,我司配置结构工程或建筑工程中级及以上职称人员作为项目负责人是否认可? 
    
回复:结构工程专业予以认可,建筑工程专业不予认可。 
    
 
   104.  
   5-4,2层诊断大厅和诊断大厅3F钢夹层2层诊断大厅和诊断大厅3F钢夹层,钢柱下预埋板是不锈钢材质,但是钢柱是碳钢材质,相关节点应该怎么处理,请提供图纸。 
    
 
    
回复:该处原设计为碳钢,请现场再次确认,如确实为不锈钢,可采用加焊转接钢板后与柱脚用螺栓连接,碳钢与不锈钢之间设置绝缘垫,后期深化设计。 
    
 
   105.  
   (1)层加建(标高15.9)此图内100吨电梯两侧,E形的两个单体,如图内标注所示,与100吨电梯的墙面有连接板,但是现场这面墙还没有施工,导致有部分钢梁安装不了。后期是否和周围区域内一起施工。 
    
 
    
回复:优化设计,调整连接方式及位置,待土建施工完成后,做加固处理。 
    
 
   106.  
   5-2托克马克-3F层中GL6梁、GL3梁未标注规格;本层图纸中原位标注的后置埋件未标注编号,不知参考什么尺寸,请明确。 
    
回复:GL3采用HW200×200×8×12mm,GL6截面按H600×300×12×30mm,材质均为S30408。 
    
 
   107.  
   5-1托克马克大厅-3F钢夹层中EQ轴中E-10轴交EQ轴位置是GL9还是通长的GL1? 
    
回复:该处为通长的GL1。 
    
 
   108.  
   B2层磁体电源大厅中请提供钢柱尺寸,花纹钢板下是否有钢管,如果有请补充具体规格。 
    
回复:钢板下方设置的成品钢管尺寸详见前述问题回复 
    
 
   109.  
   NBI平台中的钢板下有钢管吗? 
    
回复:钢板下方设置100×50×4mm成品钢管,材质S30408,间距不大于500mm。 
    
 
   110.  
   5-4大厅,2层诊断大厅GL7规格请补充完整;没有GKL4梁的规格型号,请补充;标高4m位置钢板下设置钢管吗? 
    
回复:钢板下方设置的成品钢管尺寸详见前述问题回复; 
    
 
   111.  
   5-4大厅-3F钢夹层和2层诊断大厅 有些位置未标注花纹钢板是否意味着没有花纹钢板。 
    
回复:5-4大厅-3F钢夹层采用扁豆型花纹钢板,钢板下方设置100×50×4mm钢管,间距不大于500mm,钢板及钢管材质Q355B。2层诊断大厅无花纹钢板。 
    
 
   112.  
   图纸名称:3(2)加建20250627 -托克马克大厅1 
    
标高28.45米一个平台,仅描述钢板及钢管材质是S30408,请明确该平台所有钢梁是否也是不锈钢S30408材质? 
    
 
    
回复:该钢平台所有钢梁材质为Q355B。 
    
 
   113.  
   标高19.6米两个平台,钢梁、花纹钢板、矩形管全是不锈钢S30408材质,请明确19.6米标高两个平台的四根十字劲性钢柱是否在已经施工完毕?若未施工,请明确是否在此次钢构招标范围?若在钢构范围,请提供材质规格及十字劲性钢柱底标高和顶标高? 
    
 
    
回复:该十字劲性钢柱已经施工完毕,不在本次招标范围。 
    
 
   114.  
   标高25.4米一个平台,请明确该平台所有钢梁、花纹钢板、矩形管是否全是不锈钢S30408材质? 
    
回复:都是S30408。 
    
 
   115.  
   图纸名称:5-1托克马克大厅-3(1)F钢夹层 
    
(1)15.9米平台4根GKZ1 口600x600x35x35高度未知,请明确顶标高和底标高? 
    
 
    
回复:5-1托克马克大厅3(1)钢夹层在E-M轴~E-P轴交E-4轴~E-6轴钢柱底标高为11.700m,柱顶15.900m。 
    
(2)标高15.9米两个平台的四根十字劲性钢柱是否在已经施工完毕?若未施工,请明确是否在此次钢构招标范围?若在钢构范围,请提供材质规格及十字劲性钢柱底标高和顶标高? 
    
 
    
回复:该钢骨柱不在本次招标范围内。 
    
 
   116.  
   爬梯图 图纸名称:BEST园区——主机大厅及周边平面图0521_加建楼梯详图_t3 
    
(1)爬梯图子项有屋面检修爬梯、钢梯,数量较多,图纸仅能看出位置布置,无法计算工程量无法报价,请明确屋面检修爬梯、钢梯是否在钢构范围?若在请提供具体工程量? 
    
回复:本次加建钢结构无爬梯,加建钢平台范围内的楼梯在本次招标范围内,已提供建筑详图,结构详图需中标单位根据建筑详图自行设计补充并经业主及咨询方审核同意后方可施工。楼梯的材质同该区域钢结构平台的材质。 
    
(2)以上子项不锈钢材质对磁导率是否有要求?是否需要做特殊检测? 
    
回复:无磁导率要求。 
    
(3)以上子项与钢梁相连接的混凝土中预埋件或后置埋件是否已经施工完毕?若没施工完毕请提供具体工程量? 
    
回复:本次招标范围无爬梯,钢梯的埋件未施工,需后植锚栓,在本次招标范围内。 
    
 
   117.  
   主结构图纸和现场总图能否提供,现场机械进出场以及场内可用施工空间不明 
    
回复:中标后提供相关主体结构图纸,现场实际施工情况需投标单位自行勘查现场。 
    
 
   118.  
   建筑图标注的波源厅部分阴影区域标高15.9m是否也同为钢结构所提供的钢结构夹层结构图纸中未含此项? 
    
 
    
回复:15.9m为该处土建标高,不在本次招标范围内。 
    
 
   119.  
   5-2 氚处理中心3层变电所加建钢平台构件材质图纸中未标注,请明确。 
    
 
    
回复:材质都是Q355B。 
    
 
   120.  
   5-4诊断大厅-3F钢夹层GKZ1材质图纸未标注,请明确。 
    
 
    
回复:材质为Q355B。 
    
 
   121.  
   招标文件仅明确“投标文件制作工具”可以通过电子交易系统下载。请问,投标文件制作工具是否为“新点投标文件制作软件(安徽省版)(版本号:8.2.1.45)”? 
    
回复:是的。 
    
 
   122.  
   招标公告明确“项目名称:紧凑型聚变能实验装置(BEST)项目;招标项目名称:钢构设备平台采购”,投标文件要求写明招标项目名称、 标段,请问,招标项目名称是否填写“钢构设备平台采购”,标段名称未明确,如何填写? 
    
回复:招标项目名称填写“钢构设备平台采购”,本项目仅一个标段,填写1标段或者不填写标段均予以认可。 
    
 
   123.  
   “附表 1-钢构设备平台报价分析表”中原材、加工等单位为元/吨,总价=材料综合单价*数量+项目现场安装费,但表格给定的单位为套,数量为1,无法按照“总价=材料综合单价*数量+项目现场安装费”计算,请问是否可以修改单位及数量,还是说不用修改,把吨位体现在项目特征即可,请明确如何操作。 
    
回复:详见补疑附件3。 
    
 
   124.  
   请提供钢结构设计说明? 
    
回复:详见补疑附件2。 
    
第二部分 招标文件变更及补充部分内容 
    
本项目人员资质评分项变更如下: 
    
|   人员资质 
           |  
        3分 
           |  
        1.本项目拟派项目负责人具备钢结构及相关专业高级工程师及以上职称(或二级及以上注册建造师资格),得1.5分。 
          2.本项目拟派人员中(项目负责人除外)具备钢结构及相关专业高级工程师及以上职称(或二级及以上注册建造师资格),得1.5分,满分1.5分。 
          1、2注:(1)如具有职称证书,须提供职称证书扫描件。如具有注册建造师证书,投标文件应提注册建造师电子注册证书,且应在个人签名处手写本人签名,未手写签名或与签名图像笔迹不一致的,该电子证书无效。 
          (2)须提供以上人员的社保证明材料,社保证明材料具体要求同投标人须知前附表附录中项目负责人社保要求。 
           |  
     
第三部分 延期部分内容 
    
1.原招标文件获取截止时间、开标时间延期到“2025年11月17日14:00”。 
    
2.开标地点变更为:合肥市滨湖新区南京路2588号要素交易市场A区(徽州大道与南京路交口)2楼2号开标室 
    
3.因本项目开标时间延期情况,投标人在投标时提供的银行保函、担保机构担保、保证保险等形式的投标保证金中,若涉及的开标时间为延期前的开标时间或者延期后的开标时间均予以认可。 
    
注:此补疑视同招标文件的组成部分,与招标文件具有同等法律效力。 
    
招标人:聚变新能(安徽)有限公司 
    
地址:安徽省合肥市庐阳区谭岗路与三国城路交叉口东北360米合肥综合性国家科学中心能源研究院 
    
联系人:刘老师 
    
电话:0551-65660519 
    
招标代理:安徽公共资源交易集团项目管理有限公司 
    
地址:合肥市滨湖新区南京路2588号(徽州大道与南京路交口)六楼 
    
联系人:李工 
    
联系方式:0551-66223905、66223831 
    
2025年10月31日 
    
 
    
三、附件
答疑发布日期:2025年10月31日
附件:钢构设备平台采购补疑定稿.pdf 附件:补疑附件.zip