您现在的位置: 首页 >> 答疑变更 >> 安徽公共资源交易集团项目管理有限公司 >> 货物

项目编号:

项目名称:

一、原公告主要信息

     原项目名称: 承寓·栖熙里商业地块电梯采购及安装

     原项目编号: 2025BFJAZ01376

     原公告日期: 2025年06月18日

二、公告内容(更正事项、内容及日期等)

    

承寓·栖熙里商业地块电梯采购及安装补疑2

项目编号:2025BFJAZ01376

 

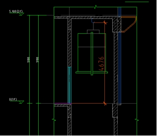
1.招标文件P104-105页,货梯1、货梯2、货梯3招标时顶层净高4.05m,如下图所示(详见补疑附件)

1)招标时给的土建图纸货梯1、货梯2顶层净高为4.076m

 

因此次招标文件约定货梯要求轿厢净高2300mm,此如安装图纸最大顶层净高,无法实现轿厢净高2300mm,如现场未施工到顶层,能否把图纸的顶层经度在提高300mm,使之满足验收要求?

2)货梯3招标文件所给顶层高度为4.05m,图纸上显示的顶层净高为4.676m

 

请问货梯3顶层净高以哪个为准?

答:货梯1、货梯2顶层吊钩下净高4.16米;货梯3顶层吊钩下净高4.765米。均满足轿厢尺寸要求。

2.关于轿厢尺寸的疑问。招标文件要求的轿厢尺寸在无柱子凸出时都可满足,但客梯1、3、4、6,四部电梯井道中有柱子凸出,实际情况有柱子凸出使之轿厢尺寸变化,我司在保证国标轿厢面积不变的情况下,微调轿厢尺寸,使之满足验收标准,是否满足招标文件要求?能否根据现场实际井道尺寸有工厂进行微调(1950*1800)?

答:同意微调轿厢尺寸,中标后须提供详细图纸报业主单位审核确认。

3.消防电梯2要求载重量1600kg,但轿厢尺寸却要求的为2000*1500的尺寸,此尺寸为载重量1350kg的轿厢尺寸。在使用条件和使用功能不变的情况下,轿厢尺寸2000*1500,建议修改载重量为1350kg,及能满足日常使用条件,又可降低电梯成本。

答:同意消防电梯2载重量修改为1350kg。

4.本招标项目名称为:承寓·栖熙里商业地块电梯采购及安装。如投标文件格式中出现项目名称为:承寓·栖熙里商业地块电梯采购安装,也予以认可,投标人也可以自行调整。

 

注:此补疑视同招标文件的组成部分,与招标文件具有同等法律效力。

 

招标人:合肥经济技术开发区重点工程建设管理中心

址:合肥市经开区翠微路1710号

联系人:刘工

话:0551-63879095

招标代理机构:安徽公共资源交易集团项目管理有限公司

地址:合肥市滨湖新区南京路2588号(徽州大道与南京路交口)六楼

联系人:张工

话:0551-66223862、66223831

2025年7月04日

三、附件

      答疑发布日期:2025年07月04日

附件:补疑2.pdf