您现在的位置: 首页 >> 答疑变更 >> 安徽公共资源交易集团项目管理有限公司 >> 工程
一、原公告主要信息
原项目名称: 合肥轨道BH202432号地块批量精装修及景观工程
原项目编号: 2025BFFGZ02082
原公告日期: 2025年09月19日
二、公告内容(更正事项、内容及日期等)
合肥轨道BH202432号地块批量精装修及景观工程补疑1
项目编号:2025BFFGZ02082
第一部分:投标人疑问答复部分
1、项目体量较大,标书制作任务繁重,再加上投标时间与节假日时间重合,建议适当延期,谢谢。
答:不予延期。
2、招标文件第75页中,自2020年1月1日以来(以竣工验收时间为准),投标人在中华人民共和国境内(不含港澳台)须具备单个合同金额不低于8000万元的民用建筑装饰装修工程施工业绩。
请问我司提供的民用建筑业绩中包含金额不低于8000万元的建筑装饰装修工程,业绩证明材料为提供业主证明请问是否认可?
答:不予认可。
3、招标文件第76页中,自2020年1月1日以来(以竣工验收时间为准),投标人在中华人民共和国境内(不含港澳台)须具备单个合同金额不低于5000万元的民用建筑幕墙工程施工业绩。
我单位提供的民用建筑业绩中包含金额不低于5000万元的建筑幕墙工程,业绩证明材料为提供业主证明请问是否认可?
答:不予认可。
4、投标人业绩要求:自 2020 年 1 月 1 日以来(以竣工验收时间为准), 投标人在中华人民共和国境内(不含港澳台)具有单个合同金额不低于 8000 万元的民用建筑装饰装修工程施工业绩。
请问我司业绩为单个施工总承包合同包含金额不少于8000万元的建筑装饰装修工程施工业绩,在全国建筑市场监管公共服务平台“四库一平台”数据等级为C级及以上,且业绩技术指标详情中能完整体现评审因素,是否被认可?
答:予以认可。
5、第三章《评标办法》详细评审标准第 2.2.1(1)企业实力要求:投标人自2021年1月1日以来,获得省级及以上住房城乡建设主管部门或在国内依法登记注册的行业协会(学会)公布的企业实力认定结果进行综合评价。采用投标截止时间前,投标人自2021年1月1日以来省级及以上住房城乡建设主管部门或在国内依法注册的行业协会(学会)公布的企业实力认定结果为准。若我司提供中国建筑装饰协会颁发的【综合数据统计】和【信用等级证书】,是否予以认可,请明确。
答:综合实力认定成果由评标委员会根据招标文件要求以及投标人提供的内容进行综合评价。
6、若采用联合体投标的,第三章《评标办法》详细评审标准第2.2.1(1)企业实力要求:投标人自2021年 1月1日以来,获得省级及以上住房城乡建设主管部门或在国内依法登记注册的行业协会(学会) 公布的企业实力认定结果进行综合评价。采用投标截止时间前,投标人自 2021 年 1 月 1 日以来省级及以上住房城乡建设主管部门或在国内依法注册的行业协会(学会)公布的企业实力认定结果为准。双方其中一方提供是否予以认可,请明确。
答:上述内容联合体任意一方提供,均予以认可。
7、若采用联合体投标的,第八章《投标文件格式》,诚信承诺书、施工过程管控服务承诺书、工程质量延保承诺书及涉及到相关承诺书说明的,只盖牵头单位的公章是否予以认可,请明确。
答:除《联合体协议》外,上述材料由联合体牵头方盖章即可。
8、请贵司明确本项目是否含开荒保洁费,若含,请明确做几遍保洁,以及对于保洁的要求?
答:关于保洁要求请参考《合肥轨道BH202432号地块批量精装修及景观工程招标工程量清单、最高投标限价编制补疑》文件中 三、设计文件及技术补充说明 中“本项目投标单位须对建筑室内外分阶段进行保洁工作(含开荒保洁和精保洁),范围包含本地块所有建筑物(含主楼、附属用房、地下车库)、室外景观及绿化等,同时须经发包人验收通过后,方可办理移交手续。先保洁一层作为样板层,由发包人确认保洁效果后方可大面积保洁,其余楼层的保洁需达到此标准。包括但不限于展示区开放、业主开放日、竣工验收前及交房前等节点,清单中按以下标准计入,投标人自行考虑报价,中标后不予调整”。开荒保洁次数根据后期现场管理确定,请投标人综合考虑报价,中标后不予调整。
9、请贵司明确本项目是否有超低能耗楼栋,若有,请明确是哪几栋楼,并提供安装节点。
答:本项目无超低能耗楼栋。
10、本项目《05.住宅门窗栏杆节点图250718》组合窗安装节点图中,均含防水透气膜,空腔位置无机保温砂浆填实,请贵司明确本项目所有窗型均含该项施工内容?
答:本项目所有防水透气膜、空腔位置无机保温砂浆填实均不在本次招标范围。
11、请贵司明确门窗的型材的隔热条为进口隔热条还是国产隔热条?
答:请投标人根据项目产品定位及技术要求自行选择。
12、贵司明确本次招标项目是否有精装修楼栋,若有请明确哪些楼栋为精装修,并明确精装修楼栋是否打内墙胶?
答:13栋住宅均为精装修,均有包含内墙胶施工内容。2栋P1、P2配套用房和2栋S1、S2商业楼本次招标仅含门窗幕墙工程。
13、幕墙窗结构穿条部分为14.8mm,不满足安徽省地方标准DB34/T 1589-2020《民用建筑外门窗工程技术标准》5.5.1中,穿条式隔热型材用隔热条高度应不小于18.6mm。
答:窗扇处需确保整体强度,满足节能及相关验收要求,施工时隔热条尺寸可参照型材表,请投标单位自行考虑。
14、请提供P1#楼幕墙图纸?
答:详见附件1.1:北入口门头、P1#幕墙施工图。
15、人造石,常规厚度为15mm厚,是否15mm厚即可?
答:以图纸要求为准。
16、品牌库中地暖品牌:威能、菲斯曼、林内,其主要产品为壁挂炉,热水器,请提供地暖品牌要求。(地暖主要设备集分水器其知名品牌有德国瑞好(REHAU)、意大利Caleffi(卡莱菲)、上海飞斯耐等)
答:壁挂炉,热水器见参考品牌要求,集分水器无品牌要求,需满足图纸设计参数要求,并经发包人确认后,方可实施。
17、128户型物料中瓷砖备注“128及139户型地面/地面统一(同交付)”,CR-04&05瓷砖128及139户型物料不统一,是否以各户型的选型为准?请明确。
答:各户型瓷砖选型均以各自对应材料表中信息为准。
18、户内精装修工程,6号&7号楼户型为168户型,依据图纸大样开放区处背板为不锈钢,清单为ST-07岩板(168户型ST-07为发光云石且有列项),是否为笔误?请复核调整。
答:经复核“ST-07 10厚雪山银狐岩板”有误,应为“1.2mm厚不锈钢”。本补疑项目ZHZB文件不再重新发布,投标人无需修改项目特征描述,但必须按照本补疑修正后的项目特征描述并结合项目实际,综合考虑报价,中标后不予调整。
19、户内精装修工程,168户型,浴缸处石材ST-09星灰大理石,未见列项,是否不在范围?若在,请补充列项并复核调整对应控制价。

答:浴缸处石材ST-09星灰大理石,在本次招标范围,包含在“浴缸清单项”中,投标人综合考虑在浴缸报价内,标后不予调整。
20、户内精装修工程,公卫&主卫台盆(石材台面)及玄关柜背衬石材,清单描述:含五金配件...,石材台面及背板部分未见五金,请明确含哪些五金。
答:经复核,玄关柜背衬石材五金配件为固定石材所用到的固定金属件;主卫台盆(石材台面)五金配件为石材所用到的固定金属件及卫生间不锈钢厕纸架;公卫台盆(石材台面)五金配件为石材所用到的固定金属件及卫生间不锈钢厕纸架。
21、公区精装修工程,公区首层及地下大堂ST-01 75mm厚泥客石仿石材造型(大样DT-05/01~03)未见列项,与大版面价格差异过大,请区分列项并复核调整对应控制价。

答:经复核,ST-01 75mm厚泥客石仿石材已包含在“石材墙(柱)面清单项”中,投标人综合考虑报价,中标后不予调整。
22、公区精装修工程,公区首层及地下大堂ST-01 45mm厚泥客石仿石材造型(大样DT-03/01~03)未见列项,与大版面价格差异过大,请区分列项并复核调整对应控制价。

答:经复核,ST-01 45mm厚泥客石仿石材已包含在“石材墙(柱)面清单项”中,投标人综合考虑报价,中标后不予调整。
23、户内精装修工程,6#&7#楼,168户型,主卧木地板为拼花地板,清单未见区分列项,拼花地板与其他区域普通地板价差较大,请区分列项并复核调整对应控制价。
答:经复核,“主卧木地板为拼花地板”已包含在“实木复合木地板清单项”中,投标人综合考虑在报价内,标后不予调整。
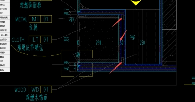
24、户内精装修工程,6#&7#楼,168户型,主卧背景图纸为:LT-01皮革硬包,清单为LT-04皮革硬包,以何为准,请澄清。
答:经复核“LT-04皮革硬包”有误,应为“LT-01皮革硬包”。本补疑项目ZHZB文件不再重新发布,投标人无需修改项目特征描述,但必须按照本补疑修正后的项目特征描述并结合项目实际,综合考虑报价,中标后不予调整。
25、户内精装修工程,139户型,主卧背景墙,依据物料LT-01“展示是难燃墙布硬包/交付是难燃皮革硬包”交付的皮革硬图片是与128户型及168户型LT-01一致还是与展示样板图片一致只是材质改为皮革?请明确。
答:户型主卧背景墙展示样板间按LT-01墙布硬包执行,批量精装交付按128户型LT-01皮革硬包执行,168户型批量精装交付也按128户型LT-01皮革硬包执行。
26、户内精装修工程,139户型,主卧背景图纸为:LT-01皮革硬包,清单为LT-04皮革硬包,以何为准,请澄清。
答:经复核“LT-04皮革硬包”有误,应为“LT-01皮革硬包”。本补疑项目ZHZB文件不再重新发布,投标人无需修改项目特征描述,但必须按照本补疑修正后的项目特征描述并结合项目实际,综合考虑报价,中标后不予调整。
27、户内精装修工程,128户型,主卧背景图纸为:LT-01皮革硬包,清单为LT-04皮革硬包,以何为准,请澄清。

答:经复核“LT-04皮革硬包”有误,应为“LT-01皮革硬包”。本补疑项目ZHZB文件不再重新发布,投标人无需修改项目特征描述,但必须按照本补疑修正后的项目特征描述并结合项目实际,综合考虑报价,中标后不予调整。
28、户内精装修工程,128户型样板间清单未见北次卧墙面WP-02主题壁布,及南次卧背景墙WP-03壁布列项,请复核澄清。

答:经复核,“WP-02主题壁布、WP-03壁布”已包含在“壁布墙面清单项”中,投标人综合考虑报价,中标后不予调整。
29、户内精装修工程,139户型样板间清单,未见南次卧背景墙WP-02壁布,及北次卧背景墙WP-03蓝色壁布列项,请复核澄清。
答:经复核,“WP-02主题壁布、WP-03壁布”已包含在“壁布墙面清单项”中,投标人综合考虑报价,中标后不予调整。
30、装饰风口工程量较多,建议单独列项,另请复核控制价是否已考虑。
答:经复核,“装饰风口”已包含在“吊顶清单项”中,投标人综合考虑报价,中标后不予调整。
31、公区精装修工程,架空层电器未见列项,是否不在招标范围?若在,请补充。
答:公区架空层电器在本次招标范围内,相关费用统一纳入本项目软装费用中。
32、公区、地库及架空层,灯具是否以二次机电图为准?物料与图纸不一致,请补充公区嵌装式脚灯&圆形吸顶灯,车库单管荧光灯&5W筒灯&5W明装式IP54防水筒灯,架空层LED嵌入式筒灯9W&LED嵌入式筒灯20W物料。

答:地库大区灯具以二次机电图为准,需参照上述参数提供灯具选型给设计确认;公区、架空层灯具选型详见装饰物料清单。
33、户内及公区精装修工程,厕纸架未见列项,是否不在招标范围?若在,请复核补充。
答:经复核,“户内不锈钢厕纸架”包含在“主卫台盆(石材台面)及公卫台盆(石材台面)清单中”,投标人综合考虑报价,中标后不予调整。
34、户内精装修工程,洗衣阳台,台下不锈钢水槽+龙头,未见列项,是否不在招标范围?若在,请复核补充。
答:户内精装修工程不含阳台柜。
35、户内精装修工程,168户型,主卫-浴巾架,南次卫-半挂盆,未见列项,是否不在招标范围?若在,请复核补充。

答:经复核,南次卫半挂盆清单中按“台盆”计入,“浴巾架”包含在“浴缸清单中”,投标人综合考虑报价,中标后不予调整。
36、公区精装修工程,架空层,洗手盆及龙头,地漏,坐便器,拖布池及龙头,未见对应物料,请补充。
答:经复核,23清单工程量多2个,综合单价为82.96元/个,合价为165.92元;24清单工程量多2组,综合单价为1192.02元/组,合价为2384.04元;25、27清单为多项,25项清单综合单价为661.32元/组,合价为1322.64元,27项清单综合单价为304.76元/组,合价为304.76元。本次清单最高投标限价不做调整,投标人投标时也无需减少清单子目,将此部分内容综合考虑在投标总价中,中标后须按图施工,不予调整。
37、地库物料中,台下盆,台盆感应龙头,卫生纸架,挂衣钩,抽拉龙头,水槽(台下安装),马桶地漏,马桶,清单未见列项,是否不在招标范围?若在请补充。
答:地库物料中台下盆,台盆感应龙头,卫生纸架,挂衣钩,抽拉龙头,水槽(台下安装),马桶地漏,马桶,均不在本次招标范围内。
38、架空层物料,水槽及水槽龙头,清单未见列项,是否不在招标范围?若在请补充列项。
答:经复核,水槽及水槽龙头清单未漏项,清单名称未按照物料表名称计入,本次清单按照洗手盆清单计入,详见架空层2#楼序号36项清单,11#楼序号24项清单,12#楼序号21项清单,投标人综合考虑报价,中标后不予调整。
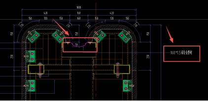
39、依据补疑中15条回复“每栋楼每个单元的地下大堂及首层大堂均设置一组壁灯及装饰画。”公区安装清单中未见双头装饰壁灯列项,为11*2+2*4=30套,请澄清。
答:经复核,双头装饰壁灯计入架空层清单中,但工程量有误。架空层清单中已计入14套,工程量少16套,经计算,此处双头装饰壁灯16套,综合单价为236.62元/套,合价为3785.92元,项目特征为双头壁灯,具体详见图纸。本次清单最高投标限价不做调整,投标人投标时也无需增加清单子目,将此部分内容综合考虑在投标总价中,中标后须按图施工,不予调整。
40、公区精装修工程,架空层清单中,有壁灯列项,是否仅清单列项部分在精装工程范围?请明确。
答:经复核,此部分清单为公区精装修内容。
41、户内精装修工程,128样板间,玄关柜尺寸与图纸不一致,工程量有误,图纸为:1300*2500*350+2200*2500*620,请复核调整。
答:经复核,清单特征描述有误,实际规格应1300*2500*350+2200*2500*620mm,工程量应为8.75m2,128、139样板间清单中的玄关柜树脂板柜门调整为皮革柜门,本补疑项目ZHZB文件不再重新发布,投标人无需修改项目特征描述,但必须按照本补疑修正后的项目特征描述并结合项目实际,综合考虑报价,中标后不予调整。
42、户内精装修工程,128样板间,老人房衣柜规格应为:1960*2500*600,属于笔误,请复核调整。
答:经复核,清单特征描述有误,实际规格应为1960*2500*600mm,,本补疑项目ZHZB文件不再重新发布,投标人无需修改项目特征描述,但必须按照本补疑修正后的项目特征描述并结合项目实际,综合考虑报价,中标后不予调整。
43、公区精装修工程,车库坡道处,ST-01泥客石45mm厚造型墙面 未见列项。(立面E1#2#车库坡道/L-01,大样DT-03)

答:经复核,ST-01 45mm厚泥客石仿石材已包含在“石材墙(柱)面清单项”中,投标人综合考虑报价,中标后不予调整。
44、公区精装修工程,2#架空层清单中,立面EL-01/02&04处2750&1750&2650mm铝板壁龛柜未计入,复核调整。
答:经复核,清单控制价无误。铝板壁龛柜已计入“铝板壁龛、铝板壁龛柜”中,投标人综合考虑报价,中标后不予调整。
45、公区精装修工程,3#架空层精装清单,缺少立面EL-07/26,异形置物柜列项,请补充列项及大样。
答:经复核,清单控制价无误。此柜已计入“铝板墙面造型”中,投标人综合考虑报价,中标后不予调整。详见附件2:3#架空层墙身大样图(D-5~11)。
46、公区精装修工程,3#架空层精装清单,依据平面,缺少立面EL-04/13&14,EL-05/15&116,EL-05/17&18,EL-06/19&20,EL-07/23,咖色木纹转印铝板MT-08造型柜列项,请补充清单列项及大样。
答:经复核,清单控制价无误。上述柜体已计入“铝板墙面造型、铝板壁龛柜、铝板壁龛”中,投标人综合考虑报价,中标后不予调整。详见附件2:3#架空层墙身大样图(D-5~11)。
47、公区精装修工程,11#架空层精装工程清单,未见ST-01泥客石仿石材造型列项,与平板石材价差较大,建议单独列项。
答:经复核,ST-01泥客石仿石材造型已包含在“石材墙(柱)面清单项”中,投标人综合考虑报价,中标后不予调整。
48、户内精装修工程,128户型&139户型玄关柜岩板背板及钢架是否在装修范围?清单未见列项及描述,请明确。
答:批量交付户内精装部分玄关柜背衬石材及五金(钢架)在本次范围。
49、户内精装修工程,168户型,玄关处硬包是否为玄关处硬包柜门不在精装范围?若在范围,其他户型玄关柜硬包柜门未见列项,请明确。
答:168户型玄关柜不在本次招标范围,但玄关柜背衬石材及五金(钢架)在本次招标范围。
50、户内精装修工程,6#&7#168户型清单,玄关地面拼花单套工程量为1.64m2*34套=55.76m2,量差较大请复核。
答:经复核,清单工程量复核无误。
51、各楼栋户型及套数是否可参考保洁费用中数据?若不是请提供各楼栋户型及套数。
答:可以参考,具体数据以已图纸为准。
52、户内精装修工程,168户型,厨房处吧台柜台面是否属于橱柜不在招标范围?若在请补充列项。
答:厨房处吧台面、柜台面不在本次招标范围。
53、户内精装修工程,168户型玄关衣柜处洞洞板是否属于衣柜范围,不在精装范围?若在请补充列项及物料。
答:图中储藏间内柜体及洞洞板均不在本次招标范围内。
54、户内精装修工程,入户门内侧不锈钢门套未见列项,是否不在精装修范围?若在请补充列项。(大样详见:装施-QD02a/03)
答:除展示样板间外,其余入户门及内侧不锈钢门套均不在本次招标范围。
55、户内精装修工程,玄关可视对讲处金属格栅未见列项,是否为不锈钢清单按展开面积计入?建议单独列项,请复核。(大样详见:装施-QD01/09)
答:经复核,玄关可视对讲处不锈钢墙面,按照展开面积计入“不锈钢板墙面”清单中,投标人综合考虑报价,中标后不予调整。
56、户内精装修工程,128户型,卫生间窗套,我司核量为2.12m2,量差较大,请复核调整对应各楼栋清单。
答:经复核,清单工程量无误,128户型卫生间窗套以各单体实际宽度为准,按照展开面积计入清单中,清单不予调整,投标人综合考虑报价中标后不予调整。
57、户内精装修工程,生活阳台金属门套未见列项,其他清单亦未计入,请复核补充。
答:经复核,“生活阳台金属门套”已包含在“玻璃门清单项”中,投标人综合考虑报价,中标后不予调整。
58、户内精装修工程,交付清单中阳台柜台面未见列项,是否不在招标范围?若在请补充列项。(参考展示户型大样台面为ST-05石材)
答:本项目仅展示样板间建有阳台柜,批量精装修中无阳台柜。
59、户内精装修工程,交付清单中128户型,主卫&公卫台盆(石材台面)下挂80mm未计入,如1号楼,主卫&公卫台盆(石材台面)单套工程量为:(0.84*0.55+0.08*0.84+0.55*0.08)=0.5732m2&1.19*0.68=0.8092m2,如1号楼清单,应为0.5732*34套=19.49m2&0.8092*34套=27.51m2,量差较大,请复核调整对应各楼栋清单。
答:经复核,清单工程量无误,根据清单工程量计算规则按投影面积计列,投标人综合考虑报价,中标后不予调整。
60、户内精装修工程,主卫台盆有两个,工程量应为2组/户,请复核调整对应各楼栋清单。
答:经复核,工程量无误,清单已按两个台盆为一组计入,投标人综合考虑报价,中标后不予调整。
61、户内精装修工程,洗衣机与设备平台各一个防臭地漏,工程量应为2个/户,请复核调整对应各楼栋清单。
答:经复核,工程量有误,洗衣机防臭地漏规格为DN75,设备平台防臭地漏规格为DN50,数量为286个,综合单价为95.88元/个,合价为27421.68元,本次清单最高投标限价不做调整,投标人投标时也无需增加清单子目,将此部分内容综合考虑在投标总价中,中标后须按图施工,不予调整。
62、板间品牌表,是否在原有品牌基础上增加品牌范围?其中:木门:志邦;电动晾衣架:奥普;墙布、软硬包布料:匠博士;公区墙地砖:简一;请明确品牌范围。
答:如需采用其它品牌,应在报价文件《招标人推荐的材料品牌响应表》中注明并提供相关技术性能指标、业绩等供评标委员会评审,未在《招标人推荐的材料品牌响应表》中注明且未提供相关技术性能指标、业绩,或经评标委员会评审未通过的,中标后只能从招标人推荐品牌中进行选择,合同价格不予调整。
63、项目范围较多,规模较大,又逢国庆假期,材料询价困难,恳请延期一周,以便准确报价。
答:不予延期。
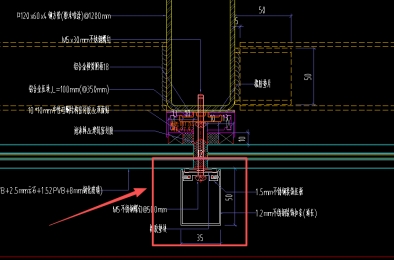
64、清单中是否缺少幕墙节点JD402-2的金属装饰条20x15、60x50、60x30?
答:经复核,石材幕墙石材内嵌线条已在石材幕墙清单特征中描述,包含在石材幕墙报价中,投标人综合考虑报价,中标后不予调整。
65、请问幕墙节点图JD401电动平移门外的不锈钢板装饰线条是否漏项?
答:经复核无误,已在电动移门清单特征中描述,综合单价已包含,投标人综合考虑报价,中标后不予调整。
66、请问1#楼清单第18项金属板幕墙(2.0mm厚氟碳喷涂铝单板)是哪个部位的格栅内衬?
答:经复核无误,具体详见幕墙图纸“250819-设计变更4(合肥市轨道交通集团方兴置业项目(BH202432地块)幕墙成本优化)”中第4条 修改后 JD306 节点大样。
67、请问1#楼清单第24项金属格栅指的是不是超级符号构件格栅?4mm穿孔铝板在什么位置?
答:经复核无误,具体详见幕墙图纸“250819-设计变更4(合肥市轨道交通集团方兴置业项目(BH202432地块)幕墙成本优化)”中第5条 修改后 MCDY109A~C及JD407 节点大样。
68、请问超级符号构件格栅的材质是铝合金还是不锈钢?
答:室外设备平台超级符号构件格栅,具体详见幕墙图纸“250819-设计变更4(合肥市轨道交通集团方兴置业项目(BH202432地块)幕墙成本优化)”中第5条 修改后 MCDY109A~C及JD407 节点大样;室内超级符号构件格栅,具体详见幕墙图纸“250819-设计变更4(合肥市轨道交通集团方兴置业项目(BH202432地块)幕墙成本优化)”中第6条 修改后 LGJD01 节点大样。
69、请问栏杆节点LGJD01两边的格栅栏杆和外立面的超级符号格栅是不是同一做法?
答:室外设备平台超级符号构件格栅,具体详见幕墙图纸“250819-设计变更4(合肥市轨道交通集团方兴置业项目(BH202432地块)幕墙成本优化)”中第5条 修改后 MCDY109A~C及JD407 节点大样;室内超级符号构件格栅,具体详见幕墙图纸“250819-设计变更4(合肥市轨道交通集团方兴置业项目(BH202432地块)幕墙成本优化)”中第6条 修改后 LGJD01 节点大样。
70、请问栏杆节点LGJD01两边的格栅栏杆是否对应1#楼清单中的第41、42项飘窗、封闭阳台位置的金属栏杆?清单的特征描述是2mm镀锌钢板(粉末喷涂),图纸中是焊接铝合金方管,两者不对应?
答:经复核无误,具体详见幕墙图纸“250819-设计变更4(合肥市轨道交通集团方兴置业项目(BH202432地块)幕墙成本优化)”中第6条 修改后 LGJD01 节点大样。
71、本项目楼栋较多,投标时间紧张,请问是否可以延期?
答:不予延期。
72、请问本项目的铝型材、钢材、玻璃是否可以调差?
答:上述材料不调差。具体调差范围详见《可调整价差人工和主要材料一览表》。
73、请明确本项目是否进行异常低价评审?
答:本项目不执行异常低价评审。
74、请提供本项目泛光图纸,及泛光相关参数。
答:泛光图纸及相关参数,请详见“安装图纸-2,《轨道C地块泛光电气图2025.07.18》”里相关内容。
75、清单中是否缺少P2#节点图HJD104的160*1.5mm铝合金线条?
答:经复核,“160*1.5mm铝合金线条”已按立面做法计入“铝单板幕墙清单项”中,投标人综合考虑报价,中标后不予调整。
76、清单中只有格栅内衬的2.5mm铝单板,JD305石材底部的2.5mm铝单板未单独列项,是否考虑在石材幕墙报价中?
答:经复核,“JD305石材底部的2.5mm铝单板”已包含在“石材幕墙清单项”中,投标人综合考虑报价,中标后不予调整。
77、请提供P1#楼图纸?
答:详见附件1.1:北入口门头、P1#幕墙施工图;附件1.2:P1#建筑结构图。
78、幕墙JD105、106透光云石幕墙外的不锈钢线条未单独列项,是否考虑在云石幕墙的报价中?
答:经复核,清单特征已描述,已包含透光云石幕墙在综合单价中,投标人综合考虑报价,中标后不予调整。
79、请问P2#楼清单19项1.5mm不锈钢板幕墙指的是不是T型钢外的1.5mm不锈钢板包边(BLJD101)?
答:经复核,此清单项包含图纸中所有未单独列项的1.5mm厚不锈钢板。
80、设计说明中要求 “本工程采用28mm厚毛面花岗岩板材”,节点图SJD204中标注“30mm花岗岩石材(毛面)”,两者厚度不一致,请明确以哪个为准?
答:毛面花岗岩板材厚度均以节点图SJD204中标注为准。
81、设计说明中要求“加强筋的规格和间距应满足图纸和计算要求,一般情况加强筋间距不宜大于400mm,加强筋与加强筋、加强筋与铝板折边应相互连接固定。”,节点图JD108中加强筋间距为@≤500,两者加强筋间距不一致,请明确以哪个为准?
答:以节点图JD108为准。
82、住宅部分节点图JD304,不锈钢连接件如何与铝合金立柱连接,图中无文字说明如何连接,请补充说明?
答:采用螺钉机械固定。
83、能否提供本项目模型,以便对本项目更好理解?
答:模型详见附件3:SU模型。
84、石材幕墙节点JD101,是否所有横向连接节点都是立柱与角钢一侧是栓接一侧是焊接?
答:一侧为栓接,一侧为焊接,按节点图JD101执行。
85、节点图JD305,石材底部 2.5mm 铝单板收口,是否可以调整为“1.5mm厚镀锌钢板” 封堵?
答:不予调整,按照节点图JD305执行。
87、请提供本工程施工总平面图布置图。
答:详见附件4:合肥轨道32地块总平面平面布置图。
88、诚信投标承诺书和投标人综合实力认定成果表格,投标软件里没有模块,是否一起放在商务文件—其他资料中?请明确
答:可以。
89、四川省装饰协会颁发的“四川省建筑装饰先进企业”,是否符合投标人企业综合实力认定?请明确
答:综合实力认定成果由评标委员会根据招标文件要求以及投标人提供的内容进行综合评价。
90、江苏省装饰协会办法的“江苏省优秀装饰企业”是否符合投标人企业综合实力认定?请明确
答:综合实力认定成果由评标委员会根据招标文件要求以及投标人提供的内容进行综合评价。
91、在做标软件中,有项目经理终身责任制承诺,但是在招标文件中项目经理质量终身责任制承诺为合同附件,投标时是否无需提供?
答:需同时提供。
92、由于本项目投标时间跨国庆、中秋节假日时间,能否开标延期?请明确
答:不予延期。
注:此补疑视同招标文件的组成部分,与招标文件具有同等法律效力。
招 标 人:合肥市轨道交通集团有限公司
地 址:阜阳路17号
联 系 人:蔡工
电 话:0551-62662887
招标代理机构:安徽公共资源交易集团项目管理有限公司
地 址:合肥市滨湖新区南京路2588号(徽州大道与南京路交口)
联 系 人:李工
电 话:0551-66223921、66223831
2025年10月11日
三、附件
答疑发布日期:2025年10月11日