您现在的位置: 首页 >> 答疑变更 >> 安徽公共资源交易集团项目管理有限公司 >> 工程
一、原公告主要信息
原项目名称: G4222和县至襄阳高速公路肥西(丰乐)至舒城(千人桥)段房建工程施工
原项目编号: 2025BFAGZ01131
原公告日期: 2025年05月16日
二、公告内容(更正事项、内容及日期等)
G4222和县至襄阳高速公路肥西(丰乐)至舒城(千人桥)段房建工程施工招标文件补疑2
2025BFAGZ01131
第一部分:工程量清单、最高投标限价内容
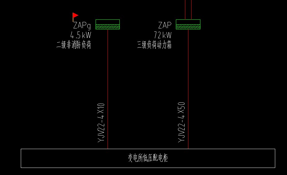
1、宿舍楼ZAP配电箱进户电缆系统图与平面图规格不一致,请明确。

答:宿舍楼ZAP配电箱进线电缆本次不计入,无需考虑。
2、配电箱ZAPg系统图标识该配电箱在一层,平面图却标识该配电箱在二层位置不一致,请明确。
答:以平面图为准。
3、室外消火栓设置是前端是否应设阀门以及阀门井,请图纸明确型号、规格。
答:图纸设计已明确,安装具体见图集13S201-16。清单中已考虑阀门及阀门井。
4、卫生间无LEB局部等电位,是否需要考虑?
答:图纸已设计,按图纸设计计入。
5、丰乐收费站设备房缺少发电间布置、电缆沟、电缆沟、变配电系统、发配间预埋管机电专业图纸,消防泵控制柜、生活泵控制柜SHBAA1、AL1、AL2照明配电箱电源电缆工程量无法计算。
答:招标补疑已明确,详见安装工程个性问题设备房第17条招标补疑。
6、《安装工程-宿舍楼》清单项“030225003001换热器”,图纸中无具体参数,厂商报价无参照。请提供换热器尺寸、型号、工作压力等参数。
答:满足换热器换热面积为15平方米。对其他参数无特定要求。
7、《安装工程-宿舍楼》清单项“031006004001补液膨胀箱”,图纸中无具体参数,厂商无参照。请提供箱体尺寸、型号等参数。请提供箱体尺寸、型号等参数。
答:补液膨胀箱容量为300L,开式箱体为不锈钢材质,采用聚氨酯发泡保温即可,对其他参数无特定要求,空气源热泵及太阳能系统可整体采购。
8、《投标人须知》第10.13条(招标人补充的其他内容)第(6)、(7)、(8)款涉及园区内外接水、接电相关费用由投标人报价,与《招标补疑》中“永久供水、供电接驳费”纳入暂估价,两者有冲突,以哪个为准?

答:不冲突,“永久供水、供电接驳费”暂估价为后期供水报装、供水管道(1km以外)施工,供电接驳、供电杆线(2km以外)施工相关费用,以实际发生为准,据实结算,且不得超过暂估价金额,供水管道(红线外1km以内)施工,供电杆线(红线外2km以内)施工所需的一切费用均包含在综合单价中,请投标阶段谨慎报价。
9、宿舍楼基础平面图,8轴DJP01与3轴DJP01尺寸不一致,具体以哪一个为准?
答:按照图纸尺寸。
10、宿舍楼屋面梁平法配筋图,B轴梁无编号。
答:详见宿舍楼招标补疑10。
11、宿舍楼一层结构平面图,红色所圈部分造型柱尺寸及配筋无,蓝色所圈部分尺寸详图不全,请明确。

答:红色是建筑图砌体,蓝色尺寸按建筑图实际尺寸。
12、宿舍楼清单序号66,木质门单位是否为平方米?
答:是的。
13、宿舍楼清单序号94:地面涂膜防水,涂膜厚度、遍数:1.5mm厚聚氨酯涂料+1.5mm厚聚氨酯涂料防水层为D3、L5的做法,无D1、L1、D4的1.5mm厚聚氨酯涂料防水层。
答:宿舍楼全部详见装饰图,防水统一为1.5mm厚聚氨酯涂料+1.5mm厚聚氨酯涂料防水层。
14、宿舍楼清单序号98:保温隔热楼地面,此项有工程量,图纸内未找到具体施工部位。
答:详见招标补疑23,即:综合楼二层楼板整体;宿舍楼二层和三层楼板整体。
15、宿舍楼,缺少地砖踢脚的清单。
答:详见宿舍楼招标补疑8以及装饰图纸,宿舍楼及综合楼踢脚全部以不锈钢踢脚计入。
16、综合楼屋面层结构图“4/21”节点与墙身大样图不符。
答:按照大样。
17、综合楼清单序号72,实木门单位是否为平方米?
答:是的。
注:此补疑视同招标文件的组成部分,与招标文件具有同等法律效力。
招标人名称:合肥交投合桐高速公路有限公司
地址:安徽省合肥市肥西县紫蓬镇森林大道和紫蓬路交叉口紫蓬镇政府国土所
联系人:徐工
联系方式:0551-66689527
招标代理:安徽公共资源交易集团项目管理有限公司
地址:合肥市滨湖新区南京路2588号(徽州大道与南京路交口)六楼
联系人:张工
联系方式:0551-66223236、66223831
2025年6月3日
三、附件
答疑发布日期:2025年06月03日