您现在的位置: 首页 >> 答疑变更 >> 安徽公共资源交易集团项目管理有限公司 >> 工程
一、原公告主要信息
原项目名称: 合肥市医疗器械检验检测中心项目(EPC)
原项目编号: 2024BFFGZ01392
原公告日期: 2024年07月02日
二、公告内容(更正事项、内容及日期等)
合肥市医疗器械检验检测中心项目(EPC)项目招标补疑4
项目编号:2024BFFGZ01392
各投标人:
现对本项目招标补疑如下。
1.投标人业绩、项目经理业绩、投标人奖项要求公共建筑工程施工业绩,请问公共建筑工程施工是否包含公共建筑装饰装修工程施工业绩、公共建筑装修装饰工程EPC总承包或设计施工一体化或设计、采购、施工工程总承包业绩(总建筑面积不低于5000平方米或施工部分金额不低于2500万元)、(装修)改造工程业绩?
答:需满足评审要求,予以认可。
2.投标人奖项荣誉要求提供投标人承接的项目获奖,请问投标人承建或参建的公共建筑工程项目得市级及以上优质工程奖项是否均予以认可?
答:参建项目予以认可,需满足评审要求。
3.如联合体投标的,招标文件未规定投标人业绩由哪一方提供,请贵司明确投标人业绩是否由联合体双方任何一方提供均予以认可?
答:均予以认可。
4.若为联合体中标,请贵司明确后期工程款是否根据联合体协议分工任务分别支付至联合体各单位账户?
答:分别支付。
5.本项目质量标准前后多处表述均不一致,具体如下:(1)招标文件第4页,招标公告2.11,表述为“质量标准:合格”;(2)招标文件第96页,第四章合同条款及格式,合同协议书,表述为“设计质量标准:合格,通过施工图审查和建设单位确认。工程质量标准:合格”;(3)招标文件第115页,专用合同6.4.1工程质量要求,表述为“设计要求的质量标准:提供合格设计成果资料。符合现行相应行业最新的设计规范,通过各项施工图审查并取得审图合格证,通过发包人审核确认,满足工程验收要求。施工要求的质量标准:验收合格。”请明确本项目质量标准以哪一种表述为准?
答:质量标准:合格。具体实施按招标文件约定执行。
6.如图所示,做法表中,环氧超耐磨地坪,做法说明与名称不一致,以哪个为准?
答:建议环氧超耐磨地坪做法如下,具体由中标人施工图深化,需满足招标人和现场工艺使用要求。
7.做法表中未见环氧金磨石地坪,请补充;
答:建议环氧金磨石地坪做法如下,具体由中标人施工图深化,需满足招标人和现场工艺使用要求。
8.如图所示,品牌表中,医疗板品牌为康普顿至高、亨特乐思龙、阿姆斯壮,据了解以上品牌为铝板产品,并无医疗板产品,请贵司明确医疗板材质;
答:以上品牌均有相应墙板产品。医疗板为复合墙板材料,材质详见设计说明。
9.做法表中,金属扣板吊顶,做法说明中显示材质为镀锌钢板,请贵司明确是否有误?
答:无误
10.如图所示,做法表中不锈钢踢脚为100mm高,平面图图例中为80mm,以哪个为准?
答:100mm高。
11.做法表中未见PVC同质透心卷材做法,请明确;
答:建议PVC地面做法如下,具体由中标人施工图深化,需满足招标人和现场工艺使用要求。
12.地下车库一(A区)火灾自动报警平面图中,根据图示“电源线+报警线、回路总线、消防广播线,在环境测试实验室边上就近接入原有消防系统”的管线无法计算其工程量,请提供具体接驳点或按多少米暂估?

答:接至B8交BF轴一层弱电间消防端子箱,详细路径由中标人深化设计,费用含在本次报价内。
13.地下车库一(A区)应急照明及疏散平面图中,“应急疏散照明回路,在环境测试实验室处就近接入原有应急疏散系统”的管线无法计算其工程量,请提供具体接驳点或按多少米暂估?
答:接至B8交BF轴一层强电间应急照明集中电源,详细路径由中标人深化设计,费用含在本次报价内。
14.暖通风阀未见图例及材质要求,可否补充图例及风阀材质。
答:暖通风阀补充图例供参考,中标人在施工图设计阶段深化,需满足工艺及相关规范要求。风阀材质投标人结合施工说明1.a及2.b综合考虑,中标人在施工图设计阶段深化,需满足工艺及规范相关要求。
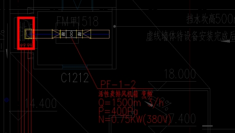
15.暖通系统中实验室排风区,废气是否需要废气处理装置,图纸中未见废气吸附设备参数,及相关图纸。
答:废气处理需满足工艺和环评要求,由中标人在施工图设计阶段深化,现PF-1-2补充说明为活性炭排风机箱供参考。其余排风设备实施阶段如工艺或环评有要求,中标人需无条件配合,相关费用含在本次报价范围内。
16.实验室通风设备是否在本次范围内?
答:有1台通风柜在本次范围。具体参数、规格由中标人根据工艺和试验设备要求施工图深化,费用含在本次报价内。
17.装饰平面图中,现有铅房做法仅墙面防辐射,地顶是否需要考虑防辐射做法?
答:需要,具体做法中标人结合环评和工艺要求深化,费用含在本次报价内。
18.本次增容变压器是否原配电房内还是新建一处配电房?如在原配电房内,本次是否需增设新的高压柜?原配电房内是否已预留变压器和低压柜基础,还是设备基础需新建?原配电房内照明、空调、除湿机等暖通设备是否齐全,是否需要增加?
答:在现状配电房内新增,不需要新增高压柜,设备需要新建基础,配电房内照明空调等设备不需要新增。
19.鉴于本项目专业涉及较多,建议投标截止日期延期至7月29日10:00点。
答:按招标文件载明的时间执行。
20.本项目招标文件中未明确投标人为联合体时“投标保证金”支付方,是否联合体中任意一方支付“投标保证金”均可。
答:均可。
21.本项目招标文件中未明确投标人为联合体中标时“履约保证金”支付方,是否联合体中任意一方支付“履约保证金”均可。
答:施工方支付履约保证金。
22.本项目招标文件中未明确投标人为联合体中标时“招标代理服务费”支付方,是否联合体中任意一方支付“招标代理服务费”均可。
答:均可。
23.招标文件第四章“合同条款及格式”中“合同协议书”最后部分合同各方签章页仅有“发包人”及一个“承包人”,与招标文件投标人须知中“1.4.2(3)联合体中标的,联合体各方应当共同与招标人签订合同”不符,采用联合体中标的签章页应联合体各方共同与发包人签订合同。(见招标文件P99-P100)
答:合同签章落款格式问题中标后根据实际情况进行签订。
24.招标文件第四章“合同条款及格式”中“第三部分专用合同条件”未明确设计费及建安工程费收款主体,采用联合体中标的是否可采用由发包人根据合同约定支付进度,别将设计费直接支付至联合体中承担设计任务的单位,将建安工程费支付至联合体中承担施工任务的单位。并在本次招标文件合同范本相关支付条款中明确以上内容。
答:分别支付。
注:此补疑视同招标文件的组成部分,与招标文件具有同等法律效力。
招 标 人:合肥市医疗器械检验检测中心有限公司
地址:安徽省合肥市高新区城西桥社区服务中心习友路和孔雀台路交口
国家健康大数据产业园D栋
联 系 人:翁工
电 话:0551-65177232
招标代理机构:安徽公共资源交易集团项目管理有限公司
地址:合肥市滨湖新区南京路2588号(徽州大道与南京路交口)六楼
联系人:张工
电 话:0551-66223261;66223831
2024年7月17日
三、附件
答疑发布日期:2024年07月17日