您现在的位置: 首页 >> 答疑变更 >> 安徽公共资源交易集团项目管理有限公司 >> 工程

项目编号:

项目名称:

一、原公告主要信息

     原项目名称: 合肥市望岳中学改扩建项目施工

     原项目编号: 2024BFSGZ01184

     原公告日期: 2024年06月06日

二、公告内容(更正事项、内容及日期等)

    

合肥市望岳中学改扩建项目施工招标文件补疑1

项目编号:2024BFSGZ01184

部分 延期部分内容

1.原招标文件获取截止时间为“2024年0626日11:00”,现延期到“2024年07041100”;

2.原开标时间及投标截止时间为“2024年0626日11:00”,现延期到“2024年07041100”;

3.开标地点变更为:合肥市滨湖新区南京路2588号要素交易市场A区(徽州大道与南京路交口)2楼5号开标室。

4.投标人在投标时提供的电子保函、银行保函、保证保险、担保机构担保等形式的投标保证金中,若涉及的开标时间为延期前的开标时间或者延期后的开标时间均予以认可。

第二部分 招标文件调整内容

1.本项目最新版的图纸《合肥市望岳中学改扩建项目施工图纸06.18.zip》详见本补疑附件,请及时下载查看,以此为准。

2.本项目最新版的清单控制价《2024BFSGZ01184合肥市望岳中学改扩建项目施工清单控制价-重新发布2024.6.18.zip》详见本补疑附件,请及时下载查看,以此为准。

3.根据调整后的最高投标限价,本招标项目评标办法中异常低价评审对应调整为“☑执行,异常低价规定指标:90%,异常低价:37299153.32元(具体金额,保留至小数点后两位,小数点后第三位四舍五入),具体见附件2”。

 

部分 投标人疑问答复内容

1.招标文件中详细评审标准:

评标委员会根据投标人承接的公共建筑工程项目,自 2019 年 1 月 1 日以来(以颁奖文件颁发日期或官网文件发布时间 为准)获得市级及以上优质工程奖项情况进行综合评价。

我公司获得的安徽省建筑安全生产标准化示范工地,是否符合该评分项要求。

答:不符合,市级及以上优质工程奖指得是投标人承接的公共建筑工程获得的优质工程奖项,如合肥市建筑工程“琥珀杯”奖(市优质工程)、安徽省建设工程“黄山杯”等,具体按招标文件要求执行。

2.基坑支护04-A1中设计砖砌排水沟尺寸为300*300mm,清单要求300*200mm,请明确具体尺寸。

 

 

答:经复核,清单特征描述有误:由“尺寸:300*200mm”调整为“尺寸:300*300mm”,以随本次补疑发布的工程量清单及最高投标限价文件为准。

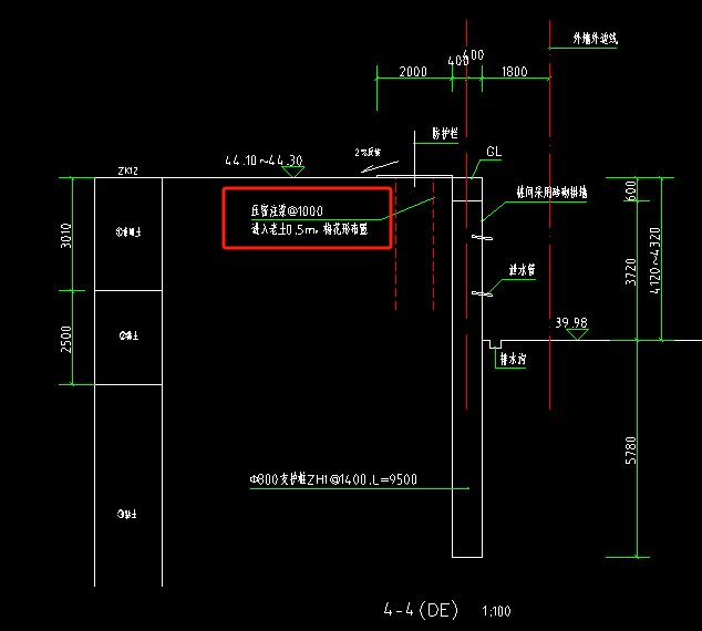
3.基坑支护图03-A1中设计有D-E段压密注浆工艺,但清单中无任何体现,请明确此部分是否在合同范围内。

 

答:在本次招标范围,以随本次补疑发布的工程量清单及最高投标限价文件为准。

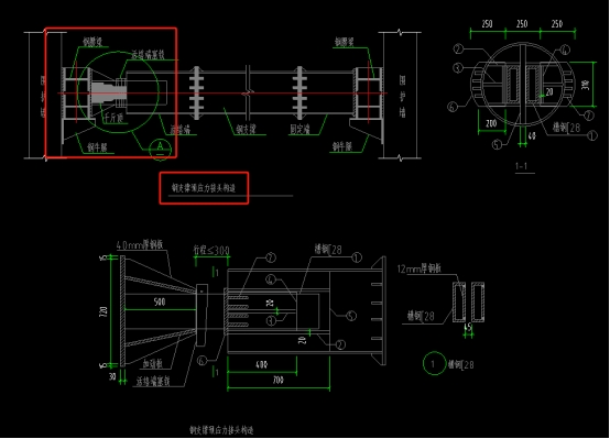
4.基坑支护图04-A1中钢斜撑与牛腿连接部位设计预埋缀板,清单中并未体现,请明确是否在合同范围内并提供缀板尺寸及厚度。

 

答:已计入“可周转钢支撑制作与安装”清单中,投标人结合图纸及相关情况,综合考虑报价,中标后不予调整。

5.请明确基坑支护04-A1图中桩间拱墙施工是否先开挖至基坑底部,然后再由下至上砌筑,还是先分层分段开挖砌筑,设置腰梁,若由上至下施工,请明确腰梁做法。

 

答:清单无误,设置腰梁由投标人根据施工工艺自行考虑,投标人结合图纸及相关情况,综合考虑报价,中标后不予调整。

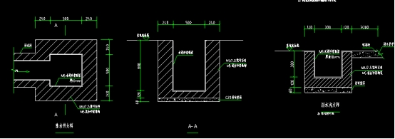
6.请明确基坑支护图04-A1中集水井与排水沟的具体位置。

 

答:具体位置由投标人根据设计图纸考虑

7.基坑支护图05-A1中人工挖孔桩范围是否如下所示?

 

答:详见“合肥市望岳中学改扩建项目施工招标工程量清单、最高投标限价编制补疑”设计文件及技术补充说明第15条。

8.基坑支护图04-A1中设计有钢支撑预应力结构,清单中未体现,是否在本次招标范围?

 

答:已综合考虑计入“可周转钢支撑制作与安装”清单中,投标人结合图纸及相关情况,综合考虑报价,中标后不予调整。

9.景观-09中只体现坡道改造示意图,请补充汽车坡道口截水沟、挡墙、汽车坡道的具体尺寸及配筋等具体做法。

 

 

答:做法以随本次补疑发布的补图文件为准;工程量清单及最高投标限价以随本次补疑发布的工程量清单及最高投标限价文件为准。

10.基坑支护图03-A1中显示整个支护面均设计有泄水孔,请明确泄水孔的间距。

答:详见图纸设计说明。

11.结构图08-36中显示外墙肥槽采用灰土回填,清单描述为素土回填,是否采用灰土,若采用请明确灰土比例及范围。

 

答:支护桩与外墙之间已按答疑描述按素砼回填计入,其余部位按素土回填考虑。投标人结合图纸及相关情况,综合考虑报价,中标后不予调整。

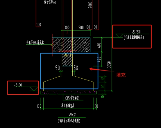
12.结构图07-36中DL-1的底标高是否为-8.0米,独立基础至防水底部间的空隙采用什么材质进行填充?

 

答:按素土回填。

13.结施图04-36中第14.3条描述的12G614-1已作废,是否继续使用?

 

 

答:图集做法改为22G614-1;投标人中标后需按修改后图集施工;投标人结合图纸及相关情况,综合考虑报价,中标后不予调整。

14.结施图04-36中第14.16条楼梯间或人流通道位置砌筑墙体是否满挂钢丝网?

 

答:按图施工。

15.建施-07中,A~G轴交1轴位置原建筑地库外墙与新建地库墙体距离仅123mm,无操作空间,影响地下室外墙支模、混凝土浇筑及防水施工。是否将此段新建外墙宽度由300mm改为423mm,将新建墙体与原地库墙体浇筑为整体。

 

答:按图施工。

16.结施图07-36中地下室电梯基坑尺寸及定位图未明确。

 

 

答:按建筑平面图位置。

17.建施-05中装饰装修做法表内显示主席台地面为15厚实木复合地板,装饰平面图5/6F-PM-06中描述为18厚实木复合地板,请明确具体厚度。

 

 

答:按18mm厚计入,清单特征已描述厚度。

18.建施-05中描述保温面层做无纺布隔离层,做法表显示为10厚低强度等级砂浆隔离层,且说明中设计为倒置式屋面,做法表中为正置式屋面,具体做法请明确。

 

 

答:按做法表计入。防水厚度详见“合肥市望岳中学改扩建项目施工招标工程量清单、最高投标限价编制补疑”。

19.建施-05中外墙保温一体化铝板是否设置角钢托架,若设置请明确几层一道及角钢型号?

 

答:按图施工。

20.建施-13中出屋面风井四根柱子是否为混凝土柱,请明确截面尺寸及配筋?

 

答:此处按构造柱计入,工程量已计入清单内,投标人结合图纸及相关情况,综合考虑报价,中标后不予调整。

21.建施-12中8-28此大样图缺失,请补充。

 

答:详见“合肥市望岳中学改扩建项目施工招标工程量清单、最高投标限价编制补疑” 设计文件及技术补充说明第39条。

22.装饰说明SM-07中,卫生间更衣室等房间设计的3mm丙纶防水在清单中未体现,是否在合同范围内?

 

答:详见“合肥市望岳中学改扩建项目施工招标工程量清单、最高投标限价编制补疑”描述防水做法以建筑设计做法为准。

23.景观-05中描述的50厚600*300mm火烧面芝麻黑花岗岩是否在招标范围内?

 

答:工程量已并入“石材铺装”清单中,清单项目特征描述已包含。投标人结合图纸及相关情况,综合考虑报价,中标后不予调整。

24.关于室内装饰吊顶铝板:招标清单仅计入卫生间、盥洗室600*600铝板吊顶工程量,三、四、五层教室,办公室等600*600吊顶数量未计入;

 

 

答:工程量有调整,以随本次补疑发布的工程量清单及最高投标限价文件为准。

25.清单中LED护眼灯80×300×1200mm,规格:1x38W色温5000K(±100K)光效102.42lm/W, 综合单价为356.82元/套;教学护眼黑板灯70×60×1200mm,规格:1x38W色温5000K(±100K)光效114.01lm/W,综合单价为386.01元/套;招标提供的品牌参考表中护眼灯品牌为:科盟、立达信、多能者。经市场询价后,三种品牌护眼灯的价格远远超出招标控制价,按控制价的金额采购不到推荐品牌中的护眼灯;

 

答:经复核,综合单价无误,投标人综合考虑报价,标后不予调整。

26.土石方工程(土建)平整场地的综合单价为0.85元/m2,该单价远远低于实际施工成本;

 

答:经复核,综合单价无误,投标人综合考虑报价,标后不予调整。

27.图纸设计运动场原有灯具拆除更换为篮球场专用LED防眩目灯,招标清单中项目特征与图纸不符,考虑到更换灯具的高度、难度、主材的市场价格,该项综合单价(144.01元/套)远远低于施工成本;

 

 

 

答:经复核,灯具名称根据电气图纸重新描述,以随本次补疑发布的工程量清单及最高投标限价文件为准。

28.现场勘察发现原地库入口处有一块景观石,影响后期施工,若由施工单位吊装移除,该项费用未计入;

 

答:此项清单不单独列项,投标人结合图纸及相关情况,综合考虑报价,中标后不予调整。

29.招标答疑中提出:请投标单位对现场进行详细深入勘查,对于现场实际与设计或投标文件及招标清单不相符的,或者可能导致施工顺序、施工工期、施工成本发生改变的,在投标之前提出,否则,认为费用已综合考虑在投标报价中,中标后不得以任何理由提出工期和费用索赔。

如果在实际施工过程中,原设计明显不合理,导致的设计变更或者应业主方要求导致的施工成本增加,是否予以认可?

答:因设计变更或业主要求增加的工程变更,须严格执行《蜀山区政府投资项目工程变更管理办法(试行)》,详见招标文件。

 

注:此补疑视同招标文件的组成部分,与招标文件具有同等法律效力。

人:合肥市蜀山区重点工程建设管理中心

     址:合肥市蜀山区樊洼路52号民生大厦9楼

        人:刘工

     话:0551-65123832

        招标代理机构:安徽公共资源交易集团项目管理有限公司

     址:合肥市滨湖新区南京路2588号六楼

         人:张工

     话:0551-66223831/66223912

2024年6月19

三、附件

      答疑发布日期:2024年06月19日

附件:合肥市望岳中学改扩建项目施工图纸06.18.zip 附件:2024BFSGZ01184合肥市望岳中学改扩建项目施工清单控制价-重新发布2024.6.18.zip 附件:2024BFSGZ01184项目补疑1.pdf