您现在的位置: 首页 >> 答疑变更 >> 安徽公共资源交易集团项目管理有限公司 >> 工程
一、原公告主要信息
原项目名称: 合肥市第六中学教育集团新桥校区装饰工程
原项目编号: 2024BFJGZ01040
原公告日期: 2024年05月22日
二、公告内容(更正事项、内容及日期等)
合肥市第六中学教育集团新桥校区装饰工程招标文件补疑2
项目编号:2024BFJGZ01040
各投标人:
1.文化交流中心
1)学术交流中心GS-01`06基础节点GS-02-01、02、03石材干挂与主体连接使用M12化学锚栓,化学锚栓在受热后性能大大降低,建议使用机械锚栓。
答:按图施工。
2)学术交流中心01区卫生间及负一层电梯厅平顶布置图WC-P01,无障碍卫生间轮椅回转直径小于1.50m,请考虑合理性,重新布局。
答:满足规范要求。
3)01区卫生间及负一层电梯厅平顶布置图WC-P01(左图)卫生间隔断位置、门开启大小及方向与01区一层立面图-03中1F-01-E03-C(右图)对应不上,以哪个为准?(门开启方向共性问题)

左图 右图
答:按平面图。
4)图号:1F-01-E03-C门离地100mm,门在反坎下面是否合理?

答:按图计入。
5)天花平面布置图中机电空调、排烟、新风等设备是否在格栅天花、铝方通天花上方。

答:是。
6)图号:1F-01-E04-12/13楼梯部位玻璃栏杆未标注分格尺寸,整块是否按1200mm分格尺寸?
答:是。
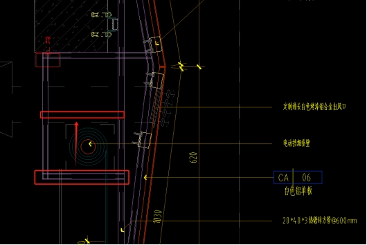
7)图号:1F01-S01-01中电动挡烟垂壁防火布会与钢方管干涉,建议往上调整。

答:现场优化。
8)图号:2F-S01-03消防箱隐藏门开启是否能满足开启160°?
答:能。
9)图号:GG-ZL-03图中部分材质补明确
答:均为木饰面。
2.是否能提供物料册,含材料品牌,规格,样式等具体信息。
答:详见品牌表和装饰材料表结合效果图。
3.招标文件载明:异常低价为招标控制价的87%,最新提供的清单控制价为102059431.44,是否异常低价修改为最新提供的清单控制价*87%,按88791705.35 执行。
答:本项目异常低价为88791705.35。
4.根据投标人给出的招标文件,我司就招标文件P67,2.2.1(1)企业实力,评分标准提出疑问:请问“认定成果”的具体体现是什么资料?除开颁发的奖项证书外,由省级及以上住房城乡建设主管部门或在国内依法注册的行业协会(学会)官方网站公示的名单,截图及网址是否可作为证明资料?
答:见招标文件第三章详细评审标准-商务及技术文件评审所需证明材料第(1)条。
5.招标文件P59页评标办法前附表3.5.6异常低价评审中规定:异常低价规定指标:87%,异常低价:89611064.26元。本项目发布的最高投标限价为103000938.80元,异常低价=103000938.80*0.87=89610816.76元,请复核招标文件P59中的异常低价金额是否正确。
答:见本补疑第3条。
6.软件里没有诚信投标承诺书的节点,请问是否可以上传到其他资料?
答:可以。
7.软件里商务文件详细评审资料里没有项目经理类似业绩的节点,请问是否可以上传到其他资料?
答:本项目招标文件未要求项目经理业绩。
8.企业实力证明奖项中同一类型的不同年份的奖项算一项还是可以代表多项?
答:本项目招标文件未限定企业实力认定结果类型。
9.为了更好的编制投标文件,请问能否提供本项目效果图?
答:不提供。
10.招标文件P130页第21.9.10条规定,合同价款(扣除暂列金)的 3%作为本工程总承包服务费,请明确软件中是否需要在其他项目列此项费用?若需要,我司进行解锁则提示“解锁后修改总承包服务费可能会引起废标”,请明确我司解锁软件填写总承包服务费是否会引起废标?
答:总包服务费清单控制价中不单独列项。
11.艺体中心装饰工程图纸材料表中定制彩色穿孔铝复合板,厚度为12mm,在高一教学楼装饰工程图纸材料表中白色穿孔铝复合板,厚度为2.5mm,请明确是否材料描述有误;
答:12mm为整体厚度,包含铝瓦楞折弯厚度。
12.交流中心02区域,门窗工程,图纸中为成品定制实木烤漆套装门,清单中为成品木纹烤漆钢质套装门,请明确以哪个为准;
答:钢制烤漆套装门。
13.答疑中所发控制价表格中未导出单位工程控制价总价,招标文件中规定单位工程报价不能低于控制价的87%,请提供相应价格;
答:招标文件第三章“附件 2:异常低价评审”已阐明。
14.给排水管道是否在本次招标范围内?请明确。
答:不在,在总包范围。
15.本次招标机电安装各专业的接驳界限请明确。
答:详见招标补疑范围。
16.等电位是否在本次招标范围内?请明确。
答:不在,在总包范围。
17.能否提供物料书、技术规格书、面层材料样品照片。
答:否。
18.招标文件中未明确变更签证价款的支付方式。建议明确:变更签证价款支付时间应约定为随合同进度款同期同比例支付,或把变更价款签订补充协议随合同进度款同期同比例支付。
答:变更签证价款经业主和发包人共同确认,并经相关部门审批后随进度款同比例支付。
19.招标文件“(7)因发包人原因导致工期延误的其他情形: / ”建议明确非乙方原因导致的工期延误,甲方应予以工期顺延并进行费用补偿。
答:不予修改,按招标文件执行。
20.招标文件P66页2.2.1(1)中投标人奖项荣誉要求提供自2019年1月1日以来(以颁奖文件颁发日期或官网文件发布时间为准)承接的公共建筑工程装饰装修施工项目获得市级及以上优质工程奖项,且要求评审所需证明材料需提供颁奖单位的颁奖文件或颁奖单位官网文件截图;如果我司提供中国建设工程鲁班奖颁奖单位的颁奖文件或颁奖文件官网文件截图,但鲁班奖颁奖文件或颁奖文件官网截图只能体现我司单位名称,而不能体现我司承接工程具体内容(比如装饰工程或幕墙工程),请问这种情况下是否可以提供施工合同或竣工验收资料作为证明材料补充说明我司承接本获奖工程的具体内容。
答:可以。
注:此补疑视同招标文件的组成部分,与招标文件具有同等法律效力。
招标人:合肥经济技术开发区重点工程建设管理中心
地 址:合经区翠微路1710号
联系人:李工
电 话:63879075
代理机构:安徽公共资源交易集团项目管理有限公司
地址:合肥市滨湖新区南京路2588号(徽州大道与南京路交口)六楼
联系人:张工
联系方式:0551-66223831、66223930
2024年6月4日
三、附件
答疑发布日期:2024年06月04日