您现在的位置: 首页 >> 答疑变更 >> 安徽公共资源交易集团项目管理有限公司 >> 工程
一、原公告主要信息
原项目名称: 外环西路(古城路-魏武路)DN600供水管道工程
原项目编号: 2023BFFGZ02772
原公告日期: 2023年12月11日
二、公告内容(更正事项、内容及日期等)
外环西路(古城路-魏武路)DN600供水管道工程招标工程量清单、最高投标限价编制补疑
项目编号:2023BFFGZ02772
一、重要提示
本工程措施项目费率和不可竞争费率按“市政工程取费标准”中“给水、燃气工程”的费率计取;其中市政工程中挖或填土石方量大于5000m3的大型土石方工程,措施项目费率和不可竞争费率按市政工程相应费率乘0.6系数。
二、招标需求
(一)招标范围:
市政专业:本项目分为一个标段,本标段为外环西路供水施工图设计,位于大科学装置集中区,设计起点为古城路,终点为魏武路,道路全长约1800米。除特殊说明外,图纸设计范围内的所有内容,均按图计入。
1.给水工程
1.1给水工程:外环西路(古城路-魏武路)DN600供水管道工程,新建DN600管道长约1800米、DN300长约246米,DN200约长90米,DN100约长12米。
2.甲供材:球管(DN600及以上)、胶圈(DN600及以上)、阀门(DN600及以上)、水表、止脱胶圈、警示牌、消火栓、复合排气阀(DN100)。
(二)暂定项目:
1.以下项目按照业主要求,以暂定工程量计入分部分项工程量清单,投标人综合考虑报价,标后按实际工程量结算。
2.本项目按照业主要求,暂列金额为 15 万元,计入外环西路(古城路-魏武路)DN600供水管道工程单位工程其他项目清单,投标人应按招标人所列的金额计入投标总价。
3.执行暂估价的材料、设备、专业工程及其金额如下:无
3.1发包人供应材料、工程设备的采购、保管费,最高投标限价中不再另行计取费用,投标人在总报价中综合考虑此费用。
(三)按项列入清单的内容,标后不予调整:
以下项目按照业主要求,按项计入,投标人自行踏勘现场,综合考虑报价,中标后不予调整。
(四)补充图纸及修改图纸的说明:
本工程在第一次发放图纸后,无补充图纸,具体详见图纸目录。
(五)总承包服务费:无
(六)温馨提示:投标人投标报价还须仔细阅读本项目招标文件,慎重报价。
1、关键点的定位GPS数据信息费用:含本项目阀门、弯头、三通、变径、变材点及管尾处GPS定位等全部费用,投标人应自行勘察现场,综合考虑在报价中,清单不再单独列项,中标后不予调整。
2、临时水电接引:含项目实施过程中临时水电接引报装等全部费用,投标人应自行勘察现场,综合考虑在报价中,清单不再单独列项,中标后不予调整。
3、本次设计图纸已避让雨污水支管,其他管线因没有资料,设计无法考虑,故实施中按实处理,设计说明处仅提供实施的指导意见,投标单位自行勘察现场,自行考虑此部分可能发生的费用,费用含在投标总价中,清单不单独列项。
三、设计文件及技术补充说明
(一)共性问题
1.本项目土方开挖、运输及运距投标人自行考虑
1.1本项目工程量清单土方按大样图计算。
1.2本项目最高投标限价余土外弃运距按20公里计算,投标人应自行踏勘现场并结合项目周边取、弃土点情况以及管理部门相关要求,综合考虑报价,费用包干,中标后不予调整。
1.3本项目土方运输中产生的涉及渣土消纳处置、土场费、土源费、保洁费及相关管理部门收取的管理费等所有费用均由投标人自行考虑并含在投标报价中,中标后不得以任何理由提出索赔。
2、安装工程
1、本项目的混凝土是否均为商品混凝土?砂浆均使用预拌砂浆?
答:是。
2、请明确本项目土方、建筑垃圾运距如何考虑?
答:投标人踏勘现场,自行考虑综合报价,报价应综合考虑地方城市管理协调费、土方运距、渣土费、取弃土场费用、土源费用、保洁费用、取弃土场场内便道、取土场清表等,弃土须随挖随运,不得堆放于施工现场,同时必须满足合肥市文明创建相关规定。中标后不予调整,并确保验收移交。
3、本项目给水等工程土石方是否按利用考虑?
答:根据地勘报告,符合回填要求的土方考虑利用,其余不考虑利用。投标人自行踏勘现场,综合考虑,自行报价,中标后不得调整。
4、消防水表及水表井是否在本次招标范围内?如在请提供具体做法或图集,请明确。

答:在本次范围内,消防水表材料甲供,水表井做法按图集07MS101-2第41页。
5、平面图中哪些管材属于甲供材,管道安装是否都在本次招标范围内?
答:球管(DN600及以上)、钢管(DN600及以上)、胶圈(DN600及以上)、阀门(DN600及以上)、水表、止脱胶圈、警示牌、消火栓、复合排气阀(DN100)。仅计安装费、材保费。其余为乙供材。所有管道安装均在本次招标范围内。
6、本次招标项目图纸中涉及拆除道路、移植绿化、道路恢复如何考虑,请明确。
答:拆除人行道、非机动车道、绿化带、机动车道、侧石等附属设施按250m2,拆除交叉处临时道路25m2,恢复机动车道75m2,恢复交叉处临时道路25m2,恢复非机动车道75m2,恢复人行道75m2,恢复主干道侧石工程25m,恢复非机动车道侧石25m,恢复人行道侧石工程375m,恢复树池石125m。投标人自行踏勘现场,结合现场及图纸管道走向综合考虑,中标后工程量不予调整。
7、本次招标项目中所有钢管具体材质是什么,请明确。
答:钢管使用压力等级不低于1.0MPa,钢管规范水平采用PSL1,材质为Q235B。
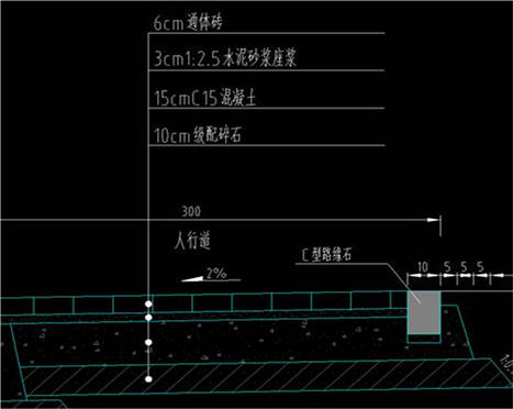
8、请提供机动车道,非机动车道,人行道的恢复做法
答:机动车道做法如下:其中粘层做法为:PC-3乳化沥青粘层油,用量宜为0.5L/㎡和阳离子改性乳化沥青(PCR),用量宜为0.3~0.6L/㎡。透层做法为慢裂乳化沥青(PC-2),用量控制在0.7~1.5L/m2。C30砼36cm厚 ,36cm水泥稳定碎石(18cm+18cm)水泥含量为5%。表面增加沥青表面处治做法为乳化沥青,厚度:0.6cm,乳化沥青用量0.9-1.0kg/m2,集料S14用量7-9m3/250m2。

非机动车道做法如下:
其中粘层做法为:PC-3乳化沥青粘层油,用量宜为0.5L/㎡。透层做法为慢裂乳化沥青(PC-2),用量控制在0.7~1.5L/m2。20cmC20混凝土,18cm水泥稳定碎石水泥含量为5%。

人行道做法如下:

9、本项目钢管是否需要超声波和X射线无损探伤检测?
答:钢管100%超声波检测。
10、本项目新旧管连接(碰头点)应怎么考虑?
答:头尾共2处,一处DN400碰头点,一处DN600碰头点。
11、如下图所示:

请明确自动测压系统是否在本次招标范围内;如在,请提供平面图,方便计算工程量?请提供水压变送器设备箱的设备参数,方便询价?太阳能设备是否在本次招标范围内,如在,请提供参数?
答:1.
2.在招标范围内
二、设备参数:
1、 数据采集单元
DTU(含安装附件)
通信制式:NB-IOT 全网通;
输入电压:+24VDC;
工作温度:-40至+85℃;
保护等级:IP41;
SIM卡:外置抽屉式;
定位:GPS/北斗;
接口:RS485、4-20mA;
一路RS485数据采集,二路4-20mA数据采集,工业级设计,结构紧凑,信号强、功耗低,适合中低速率数据传输;设备具备网络异常检测功能;数据传输间隔、数据上下限等参数可实现远程设置。
2、压力变送器
工作电压:24VDC,电流:1A,二线制;
量程:0-0.6MPa;
精度:0.2%F.S.;
输出: 4-20mA;
螺纹连接:M20*1.5;
抗干扰、防水型(IP68)、耐高温、过压保护、具备防感应雷电功能;
线缆(RVVP2*1.0)具备防水、防腐、屏蔽抗干扰功能。
3、太阳板(防锈蚀支架根据太阳板面积订制)
面积不小于:0.25㎡;
输出:12V (串接24V、200W)。
4、光电控制器
恒压24VDC、稳电流1A;
具备防过充、过放保护、工作状态显示等功能。
5、电池(锂电)
输出12V(串接24V);
100AH以上;
工作温度:-25至+60℃。
6、立杆(预制地笼、四面螺栓固定安装)
长约3-4米;
12、如下图所示:

根据招标需求内容,设计停水翻表,请提供具体翻表工程量?
答:新建管道无翻表.
此补疑视同招标文件的组成部分,与招标文件具有同等法律效力。
招标人名称:合肥供水集团有限公司
地址:合肥市屯溪路70号
联系人:张工
联系方式:0551-64422826
招标代理:安徽公共资源交易集团项目管理有限公司
地址:合肥市滨湖新区南京路2588号六楼
联系人:张工
联系方式:0551-66223231
2023年12月12日
三、附件
答疑发布日期:2023年12月12日