您现在的位置: 首页 >> 答疑变更 >> 安徽公共资源交易集团项目管理有限公司 >> 工程

项目编号:

项目名称:

一、原公告主要信息

     原项目名称: 沈阳路(辽宁路-巢湖南路)道路工程项目

     原项目编号: 2023BFBGZ01976

     原公告日期: 2023年09月13日

二、公告内容(更正事项、内容及日期等)

    

沈阳路(辽宁路-巢湖南路)道路工程项目

招标文件补疑1

项目编号:2023BFBGZ01976

 

各投标人

2023年9月13日上传的工程量清单与最高投标限价文件“沈阳路(辽宁路-巢湖南路)道路工程定稿及补疑0913.zip”作废,本次招标项目的工程量清单与最高投标限价文件以已上传的“沈阳路(辽宁路-巢湖南路)道路工程成果文件0918”文件为准,最新版工程量清单与最高投标限价文件已上传至清单文件端口,请投标人自行下载并查看。2023年9月14日上传到的图纸“沈阳路(辽宁路~巢湖南路)施工图纸230818.zip作废,本次招标项目的图纸以已上传的“沈阳路最终版图纸.zip”文件为准,最新版图纸已上传至工程补图端口请投标人自行下载并查看。

一、重要提示

1、本工程措施项目费率和不可竞争费率按市政工程取费标准”中“道路工程的费率计取;其企业管理费率11%、利润率12%。其中挖或填土石方量大于5000m3的大型土石方工程其企业管理费率8%、利润率8%,措施项目费率和不可竞争费率按市政工程相应费率乘0.6系数。

按业主要求,现对本项目招标工程量清单、最高投标限价编制作出如下补充:

二、招标需求

(一)招标范围:

招标内容主要有: 沈阳路(辽宁路-巢湖南路)道路工程位于包河区,本次设计沈阳路(辽宁路~巢湖南路)位于现状辽宁路与在建巢湖南路之间,规划红线宽36米,长1988.22米,规划为城市次干路。设计内容为:道路工程、排水工程、照明工程、绿化景观工程、管线综合工程及电力(土建)工程。

除特殊说明外,图纸设计范围内的所有内容,均按图计入。

施工内容主要包括:

1.1 大型土石方工程:包括挖、填、外弃、外借等设计图纸范围内的所有内容;

1.2 道路工程:包含机动车道、辅道、非机动车道、人行道(含公交站台、二次过街岛)路基防护路基及路面排水车止石及道路附属工程等

1.3 排水工程:包含雨水、污水、检查井、雨水口箱涵等设计图纸范围内的所有内容;

1.4 照明工程:包括灯杆灯具、路灯基础、灯杆具中的引下线、穿线管、电缆、过路管、手孔井、箱变改造路灯控制终端及图纸设计全部内容;

1.5 绿化工程:绿化种植、养护及图纸设计全部内容;

1.6 电排工程:电力排管、手井及工井等

1. 7补充说明:图纸上已设计,但不计入本次招标范围的:

(二)暂定项目:

1.以下项目按照业主要求,以暂定工程量计入分部分项工程量清单,投标人综合考虑报价,标后按实际工程量结算。

1.1、箱变引入,管线长度按5000米HDPE100管和YJV22-8.7/10kV-3x50电缆计入,计入路灯工程;

1.2、箱变引出1AL1和1AL2的管线长度按1000米HDPE100管和VV-1KV-(4x70+1x35)电缆计入,计入路灯工程

2.本项目按照业主要求,暂列金额为 500 万元,计入沈阳路道路工程单位工程其他项目清单,投标人应按招标人所列的金额计入投标总价。

3.执行暂估价的材料、设备、专业工程及其金额如下:

3.1、材料的名称、规格型号、金额:无

3.2、设备的名称、规格型号、金额:无

3.3、专业工程名称、工程内容、金额:160KVA箱变基础,包含土方开挖、回填、弃置、基础砌筑、接地等,以暂估价3万元计入“路灯工程”单位工程其他项目清单。

3.4、发包人供应材料、工程设备的采购、保管费,控制价中不再另行计取费用,投标人在总报价中综合考虑此费用

)补充图纸及修改图纸的说明:

最终图纸详见图纸目录。

)总承包服务费:详见招标文件。

)甲供材:无

)温馨提示:投标人投标报价还须仔细阅读本项目招标文件,慎重报价。

1、承包人在工程结束后至移交手续办理完毕之前,路灯含移交后六个月亮灯电费、夜间照明所发生的一切电费均由承包人支付,其费用清单不单独列项,由投标单位综合考虑在投标总报价中。

2、本工程安全文明施工要求高,投标人必须符合有关文件安全、文明施工的规定和针对本工程所作出的安全、文明措施,必须符合合肥市创建文明卫生城市要求。施工现场卫生保洁自开工至工程竣工移交。为有效做好扬尘防污染治理,要求在工地围挡出入口必须配备泥土机冲洗台(4米*6米*1.3米,设三级沉淀池、自动喷射装置),对渣土车进行冲洗,施工沥青时必须配备真空吸尘车对作业面进行清扫,以及红线外土方覆盖或撒草籽扬尘防治,围挡设置标准、文明提示和警示标志、标牌等文明施工措施,施工过程需严格落实,其费用清单不单独列项,由投标单位综合考虑在投标总报价中。

3、施工便道和居民通行便道新建、维护及拆除等费用项目:施工便道和居民通行便道(施工期间需确保沿线单位、居民出行修建通行便道,方案需报交警、属地政府、城管等部门审批),含修建道路施工期间交通导行疏导员、便道新建、维护及拆除等费用,工程量、运距、渣土费、土源费、保洁费及其他一切辅助措施费用投标人应自行勘察现场,综合考虑在报价中,清单不再单独列项,中标后不予调整。施工便道的规格、材料等具体技术要求必须满足本工程实际需求及招标人需求,包含维护费用,投标人在投标报价时应充分考虑;

4、施工范围内需拆除、清理、弃置的工程费用:含施工范围内的地上、地下需拆除的结构、构筑物及障碍物,如现状水泥砼地坪、便道、排水管及箱涵、涵洞、交通标牌(广告牌)、围墙、挡土墙、护坡、堤岸护砌、房屋基础,因房屋拆迁引起地上、地下的或沿线单位外弃的建筑垃圾和生活垃圾、基础、建构筑物、化粪池、水井、自然坑洞、垃圾池、树桩、树根挖除及树穴处理、路灯及基础、交通杆件及基础、电气设备及基础、电力工井及电排等(其中路灯、交通杆件需按建设单位要求和相关规范进行处理),其费用清单不单独列项,由投标单位综合考虑在投标总报价中。

5、影响本工程施工的现场所有苗木移植(含红线外影响本工程施工的苗木,除设计图纸中要求移植的苗木),按招标人要求进行移植或直接拆除,对不需移植的苗木及其他不拆除物进行必要的保护措施,移植点为业主指定地点,确保二级养护标准和成活率,其费用清单不单独列项,由投标单位综合考虑在投标总报价中。

6、新旧道路路基、路面连接处理项目(除图纸设计范围外):内容主要包括新建道路与周边道路路基、路面衔接处理,接缝衔接及加固处理等措施;衔接处面层及基层拉结、加固及基底填料分层填实等措施满足现场要求,做法详见设计及规范要求,施工方式自行考虑,需满足现场要求,满足设计及规范要求,投标人自行勘察现场,综合考虑在报价中,清单不再单独列项,中标后不予调整。

7、管道交叉保护费用,施工范围内管道交叉垂直净距小于规范要求时,需采取保护措施,具体措施需满足设计要求,投标人根据图纸并结合现场踏勘情况后综合考虑在报价中,清单不再单独列项,中标后不予调整。

8、施工范围内涉及部分原有综合管线(含检查井)及杆线的保护、移位、升降、加固、井盖更换(铺装部位加装隐形装饰盖板,包含园路等部位),新建的其他综合管线(含检查井)的升降与加固,杆管线保护所引起的临时支护等保护费用,杆洞等回填处理(迁移后的杆洞回填需满足设计需求)产生的费用,上述所产生的费用,投标人综合考虑在报价中,清单不再单独列项,总价包死,结算时不予调整。

9、为确保施工及周边环境的安全,需对施工影响范围内的建、构筑物等进行沉降、变形监测需委托有相关资质的单位实施,定期出具监测报告,监测费用投标人应根据施工方案及现场情况计算,上述所产生的费用,投标人综合考虑在报价中,清单不再单独列项,中标后不予调整。

10、沟槽开挖存在深基坑作业,在施工中需充分考虑施工的安全性和周边住户、建筑(构筑物)安全,采取相应的工程措施(如钢板桩等),包含深基坑支护的方案优化设计、审图、专家论证、施工等,所产生费用由投标人应自行勘察现场,综合考虑在报价中,清单不再单独列项,中标后不予调整。

11、混凝土检查井筒无论采用现浇还是预制,检查井筒壁厚度除要符合设计规范外最薄厚度不得低于15cm;同时,为保证排水管道质量,每种钢筋砼管道,按照不低于工程量5%抽检比例进行破坏试验检测管道强度及配筋,投标人综合考虑在报价中,清单不再单独列项,中标后不予调整。

12、排水工程施工一段检测一段,中标人需委托专业公司,对完工管道进行成像CCTV检测(采用管道机器人、电法测漏仪、声呐检测成像系统、潜望镜QV成像检测系统等检测设备)并提供成套影像资料,作为验收和移交的附件资料(排水工程需满足合肥市排水导则及网格化普查等有关要求)。因上述要求所产生的费用,投标人须详细了解合肥市有关规定,综合考虑在报价中,清单不再单独列项,中标后不予调整。

13、对老管道进行加固、改造,新建杆管线与旧系统的连接、上下游管道的清淤及疏通:雨污水管道、箱涵和其他管道等清淤、疏通、增加管线、增加管配件、更换老旧管线、改造维修管井、凿洞进井并修复;对老管道在开挖过程中进行加固、改造;原管位重建新管道时的临时排水;现状保留利用以及新建与原管道衔接时的临时排水截流、上下游管网及检查井需清淤、疏通,管道清淤范围为上下游300米范围,施工前应调查并探沟明确,施工中必须做好安全保护,投标人自行勘察现场,综合考虑在报价中,清单不再单独列项,中标后不予调整,并确保验收移交。

14.考虑到施工质量及安全,所有过路弱电管线均应采用大于4mm的镀锌钢管;另外,工地现场的安全文明施工必须执行相关规定,相关费用投标人在投标报价中综合考虑。

15、其它杆管线沟槽余土外弃,回填工程(回填6%灰土或级配碎石,其中燃气管道须砂包管至管顶30公分),所产生费用由投标人自行勘察现场,综合考虑在报价中,清单不再单独列项,中标后不予调整。

16、所有过路管道,管位位于道路路床和路面结构层范围内的(图纸设计中雨水口连接管及过路管除外,雨水口连接管及过路管按照图纸设计的加固措施实施),全部采取C20混凝土包管;构造物与路基结合部位,以机械夯实为主、人工夯实为辅,管顶回填50cm以上必须采用机械静压,以此满足路基压实度和承载力要求,保证路基稳固。所产生的费用根据图纸并结合现场踏勘情况后综合考虑在报价中,清单不再单独列项,中标后不予调整。

17、投标人报价时需详细勘查现场并根据供水工程特点自行综合考虑局部不同管线高程或位置发生的管件增设,后期不予调整,清单不再单独列项,中标后不予调整。

18、本工程施工范围内,须配合供水、供热、供电、燃气及弱电管网等施工。施工时确保施工和配套的管线同步施工,对上述的管线施工时,投标人必须采取探沟方案,调查周边管线埋设状况,避免对已埋供水、供电、燃气及弱电管网等管线造成破坏,开挖后需采取加固保护措施,加固保护措施采取镀锌钢管套管和C20混凝土包管。施工范围内各种管线施工配合费,对于其他分包及参建单位,中标人需及时无偿提供施工场地、材料堆放场地、施工临时用水用电、进出场道路等;同时,中标人需对相关单位施工完成的检查井、管道等进行保护,避免施工造成损坏,损坏部分由中标人负责修复。对于预埋管线回填(含有关工井破坏恢复),因回填操作不当或其他原因,造成管线损坏(含有关工井破坏恢复),需重新更换所产生的二次开挖回填仍然由中标人实施;另外,投标人报价中应包括交叉施工降低施工效率所产生的费用,以上费用投标人需根据图纸并结合现场踏勘情况后综合考虑在报价中,清单不再单独列项,中标后不予调整。

19、投标人在施工前必须对雨污水、供电、供水、弱电等专业管线的位置进行综合考虑、把关、召开管线综合协调会,严禁在侧石位置布置各种井盖,否则由投标人对井盖进行移位、加固、升降等,该项清单中不单独列项,投标人结合图纸,综合考虑在投标报价内,中标后不予调整。

20、本项目施工需到城管、燃气、供水、供电、属地政府等部门或单位办理有关施工手续,涉及到既有道路衔接施工、排水衔接施工、围墙影响、周边房屋及其他在建项目驻地影响施工,需充分考虑外围环境的不利影响所导致的功效降低及执行环保措施、安全措施而产生的费用,确保施工顺利进行和周边住户出行方便,上述所产生的费用,投标人综合考虑在报价中,清单不再单独列项,中标后不予调整。

21、临时交通组织设施:本工程的交通导行方案须经道路交通主管部门审批后实施,需要在道路全线安装封闭围挡,封闭材料、封闭形式及安全性均需符合相关文件要求,并应做好行人、社会车辆的通行、交通警示、疏导工作,在相关路口须按道路交通主管部门的要求设立警示牌、导向牌、公示牌、太阳能信号灯、临时照明等,包含封路、安排专人进行交通疏导(人员数量及相关要求按照道路交通主管部门要求为准)等。为防止交通安全隐患,在道路交口信号灯未安装完毕就通车放行的情况下,道路施工单位负责各通行交口处必须设置移动式信号灯,确保车辆通行安全。同时,根据合肥市有关文件要求或业主需要,施工期间必须保证围合的完整性,并按要求张贴宣传广告及标语相关费用均需考虑到投标报价中。该项清单中不单独列项,投标人自行踏勘现场,结合图纸,综合考虑在投标报价内,中标后不予调整。

22、该项目必须采用样板引路选择代表性节点位置进行样板施工,包括但不限于:100道路结构雨污水管道及检查井、人行道样板段路灯样板该项清单中不单独列项,投标人结合图纸,综合考虑在投标报价内,中标后不予调整。

23、行车道和非机动车道上的检查井盖一律为宽边防沉降检查井盖,必须安装调节环,所有检查井增加铭牌及防坠网,铭牌尺寸规格8cm×6cm,材质:铝合金;投标人结合图纸,综合考虑在投标报价内,该项清单中不单独列项,中标后不予调整。

24、道路圆弧段路侧石必须采用工厂定制加工,道路侧石靠背必须立模后浇筑混凝土;如有预埋管道一律摆放在背离主车道一侧分隔带靠背中,该项清单中不单独列项,投标人结合图纸,综合考虑在投标报价内,该项清单中不单独列项,中标后不予调整。

25、路灯工程含土建及安装工程,其包括灯杆灯具及光源等材料采购、路灯安装、基础、灯杆具中的引下线、穿线管、电缆、过路管、工井及施工后期的穿线、调试等,以及包含路灯灯杆外铭牌,铭牌材质及规格根据接管单位要求另行规定;路灯控制柜增加路灯监控终端,具有远程抄表、远程节能控制接口,符合包河区现有监控终端协议要求,该项清单中不单独列项,投标人报价中应充分考虑。

26、中标人负责“包验收、包移交”。路灯等工程验收与市政管养、交警等主管部门协调所产生的费用,投标人综合考虑在报价中,清单不再单独列项,中标后不予调整。

27、临时租地(因道路、杆管线、配电、控制柜等施工或临时设施用地需超出红线范围临时用地的协调和租赁费用,投标人综合考虑在报价中,清单不再单独列项,中标后不予调整。

28、按照《合肥市市政管线探测技术导则》的要求,施工单位必须保证提供所承担施工的地下管线竣工资料电子版文件,满足工程竣工档案验收的移交要求。同时执行市建委合建[2011]101号文《关于印发建设工程声像档案归档整理规定》的通知,所涉及的档案扫描费用,竣工验收材料电子、声像等档案费用,含在相应工程报价中,不单独计算费用。

29、周边产权单位的围墙、绿化、道路及天网工程杆件的拆除与恢复:施工范围内影响施工的周边产权单位的围墙、绿化及天网工程杆件的协调、拆除、清运、恢复所发生的费用,投标人综合考虑在报价中,清单不再单独列项,中标后不予调整。

30、工程存在沟、塘等需清淤工程量按照图纸量列入,投标人需根据现场考察后确定实际清淤量并在投标报价中充分考虑,总价包死,结算时不予调整。

31、本项目路灯向主管部门的移交需要的检测费用,投标人综合考虑在报价中,清单不再单独列项,中标后不予调整。

32、本项目箱变电源引入带电接火或停电接火由投标人自行考虑选择,所产生的费用,投标人综合考虑在报价中,清单不再单独列项,中标后不予调整。

三、设计文件及技术补充说明

共性问题

1.本项目土方开挖、运输及运距

1.1本项目最高投标限价余土外弃运距按15公里计算,借土运距按15公里计算,投标人应自行踏勘现场并结合项目周边取、弃土点情况以及管理部门相关要求,综合考虑报价,费用包干,中标后不予调整。

1.2道路土方工程挖方含:清表、设计土路床以下换填反挖、清淤的工程量。淤泥土层含水量较大时,需先采取排水晾干,再进行装车外运处理。清单项挖一般土方(清表一层土方)工程量为174162m3,含地表附着物、拆迁遗留的建筑垃圾、各类基础等清表(不含挖淤泥)及设计土路床标高以下换填反挖土方工程量。

1.3本项目土方运输中产生的涉及土场费、土源费、保洁费及相关管理部门收取的管理费等所有费用均由投标人自行考虑并含在投标报价中,中标后不得以任何理由提出索赔。

1.4投标单位在投标前应考察现场,对招标人提供的现状标高数据进行复测,投标报价时应考虑用地附近可能影响施工的土方外运,所有现状土方(含地形地貌变化工程量)挖、外运费用包含在投标报价内,算不再对以上费用进行调整。

1.5本项目开挖土方按设计图纸要求,相关弃土、取土费用,综合考虑报价,费用包干,中标后不予调整。

1.6图纸(包括图集)中涉及的所有C15混凝土均调整为C20。

1.7清单工程量是以招标内容为准,综合考虑报价,中标后不予调整

个性问题

(一)排水工程

1、  雨水管道基础及沟槽回填大样图,附表中管基尺寸与图集06MS201-11不同,以哪个为准?

答复:以图集为准。

2、  雨污水管道沟槽回填大样图中,下图所示区域大样图回填材料均为6%灰土,文字说明中雨水沟槽为中粗砂,污水沟槽为细砂,请明确此部分具体使用何种材料回填?

答复:6%灰土。

3、  雨水连接管是否需要满包?若需要,采用哪种做法?

答复:需要满包,横断按照大样图,接口按照图集。

4、  大样图中箱涵垫层为15cm厚C20混凝土,设计说明中为15cm厚C15混凝土,请明确以哪个为准?

答复:15cm厚C20混凝土

5、  请明确下图中箱涵底板厚度为多少?

 

答复:40cm。

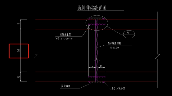
6、  箱涵大样图中侧墙高度为150cm,沉降缝大样图侧墙高度为160cm,请问以哪个为准?

 

答复:150cm

7、  箱涵沟槽是否为放坡开挖?采用何种材料回填?

答复:箱涵沟槽是放坡开挖,6%灰土对称回填夯实至路床底。

8、  根据图纸八字出水口边坡,箱涵长度不符。

答复:根据边坡计算,箱涵需伸出红线6米,总长调整为48米。

9、  本项目所有出水口是否均为浆砌块石出水口?

答复:是。

10、雨水口、检查井加固采用何种型号的混凝土

答复:采用C40混凝土。

11、雨水工程量表中沈Y4/44-1,23/43采用Φ1800雨水检查井3座是否正确?

答复:更改为2400*2100矩形四通钢筋混凝土雨水检查井。

 

绿化工程

12、图纸说明中存活期养护三个月,保存养护一年。该项目是否需要日常养护?若需要,请明确日常养护期限。

答复:存活期养护一个月,保存养护三个月,日常养护期限一年

13、图纸说明中道路分隔带处回填含15-30%泥炭土的种植土,请明确泥炭土的具体含量。

答复:种植土与泥炭土按7:3比例拌和回填

 

电排工程

14、10kV土建设计说明(二) 5.11 混凝土抗渗等级要求为P6,是否指工井(含手井)的底板、顶板、侧壁及井圈混凝土?

答复:是。

15、10kV土建设计说明(二) 5.11 若地基处在回填土、软弱土层、有不均匀下沉的土层上或地下水水位较高时,采用级配碎石分层夯实填至老土层,请明确工井及排管沟槽具体回填材料

答复:全部按6%灰土回填。

16、2进4出环网柜基础平面图说明1.结构混凝土强度等级为C30,是否按抗渗等级为P6考虑

答复:P6考虑。

17、2进4出环网柜基础平面图说明7.所有线管穿混凝土结构处设置防水套管,套管与线管间填充沥青麻丝、防水材料密封。请明确防水套管规格及型号。

答复:取消防水套管,电力排管直接进环网柜基础。

18、2进4出环网柜基础平面图说明4.电缆进出线埋管方向和数量应按实际情况确定。请明确本次招标电缆进出线埋管方向和数量

答复:电缆进出线埋管方向和数量见平面布置图。

19、2进4出环网柜基础平面图说明8.围栏可根据实际需要设置,围栏具设备需满足相关要求。请问该项目本次招标是否考虑围栏?如考虑,请明确围栏做法。

答复:环网柜四周设置,不锈钢材质护栏,样式由业主确认。

20、图纸中的1、2、3#环网柜基础是否对应下图序号的尺寸?

 

答复:1、2、3#环网柜基础均为二进四出为6间隔,此尺寸为标准图集中尺寸,供招标参考,具体以设备采购中标单位提供的尺寸微调整。

21、如图所示的电缆沟可在本次招标范围内?如在,请明确详细做法及长度。2进4出环网柜基础平面图说明9.柜前设置电缆沟时,基础宽度应做相应调整。请问如设置电缆沟,基础宽度怎么调整?

 

答复:不设置电缆沟,整体浇筑。

22、请提供如图所示的通风百叶窗的尺寸及做法。

 

答复:取消通风百叶窗,原通风百叶窗部分采用钢筋混凝土结构填实。调整为槽钢基础通风。

 

(四)道路工程

23、低剂量水泥稳定碎石是否为3%水泥稳定碎石?

答复:是。

24、人行道隔离护栏预埋件钢板厚度是多少?见下图; 钢栏杆材质有何要求?

答复: 预埋件钢板为-10 厚钢板: 钢栏杆材质是否为为镀锌方管。

25、请明确提示盲道及行进盲道材质。

答复:仿石砖。

(五)路灯工程

26、10KV电源点位置未明确,请明确。

答复10kv电源点到箱变距离按5km暂定,详见“暂定项目”描述。

27、箱变位置确定在绿化带内吗?若箱变宽度大于绿化带宽度,放不下,该如何调整,请明确。

答复:箱变位置在绿化带内,投标人自行勘测现场,箱变尺寸应根据现场绿化带尺寸调整,确保放在绿化带内,此部分费用投标人综合考虑。

28、图纸中给出了拟新建160KV箱式变压器一台,仅为示意,应由电力专业单位设计,请明确该部分是否在招标范围内?

答复:在本次招标范围内,具体做法由中标单位委托有资质的设计院二次深化设计,包括箱变基础、围栏、供电报装及验收等相关一切费用,投标人综合报价,中标后不再调整。

 

注:此补疑视同招标文件的组成部分,与招标文件具有同等法律效力。

招标人:合肥市包河城市建设投资有限公司

址:合肥市包河区花园大道582号

联系人:刘工

话:0551-63770558

招标代理机构:安徽公共资源交易集团项目管理有限公司

址:合肥市滨湖新区南京路 2588 号

(徽州大道与南京路交口)六楼

联系人:张工

话:0551-66223212

2023 年 9 月 20 

三、附件

      答疑发布日期:2023年09月20日

附件:2023BFBGZ01976补疑1.pdf