您现在的位置: 首页 >> 答疑变更 >> 安徽公共资源交易集团项目管理有限公司 >> 工程
一、原公告主要信息
原项目名称: 集成电路标准化厂房二期项目室外工程
原项目编号: 2022BFGGZ00267
原公告日期: 2022年02月12日
二、公告内容(更正事项、内容及日期等)
集成电路标准化厂房二期项目室外工程补疑5
项目编号:2022BFGGZ00267
各投标人:
1、本项目因故延期,原开标时间及投标截止时间为2022年03月07日10:00”,现延期到“2022年3月23日10:00”;开标地点变更为合肥市滨湖新区南京路 2588 号要素交易市场 A 区(徽州大道与南京路交口)3 楼 11号开标室。请各投标人做好相关投标工作安排。
2、招标公告3.2投标人业绩须满足下列条件之一:(2)自2017年1月1日以来(以竣工验收时间为准),投标人在中华人民共和国境内(不含港澳台)须具备一个房屋建筑工程施工业绩,此业绩中须包含单个合同金额不低于6000万元的房屋建筑室外附属工程施工业绩,且该业绩中须包含室外道排和景观工程施工内容。请问:房屋建筑工程施工总承包合同中未体现室外道排和景观工程施工内容,且没有单独签订合同,开具业主证明是否予以认可?
答:若投标人提供的业绩材料不能充分体现评审因素的,须另行提供建设单位或建设行政主管部门出具的证明材料予以证明(格式自拟),否则不予认可。
3、招标公告3.2投标人业绩须满足下列条件之一:(2)自2017年1月1日以来(以竣工验收时间为准),投标人在中华人民共和国境内(不含港澳台)须具备一个房屋建筑工程施工业绩,此业绩中须包含单个合同金额不低于6000万元的房屋建筑室外附属工程施工业绩,且该业绩中须包含室外道排和景观工程施工内容。请问:地铁车辆段项目,在工程施工承包合同中未体现具体施工内容,也没有单独签订合同,该项目施工中包含规模相当的室外道排和景观内容,开具业主证明,该业绩是否予以认可?
答:按招标文件执行,评委会将根据投标人提供的业绩材料予以评审。
4、投标保证金采用银行保函形式的,投标文件中提供银行出具的保函扫描件,保函原件在中标公示前提供即可?
答:银行保函原件在中标公示前无须提供。
5、
本招标文件第二章前附表“1.3.2计划工期”内容修改为:
“计划工期:240 日历天
计划开工日期:2022年3月28日(具体开工日期以开工通知为准)
计划竣工日期:2022 年11 月29日
除上述总工期外,发包人还要求以下区段工期:分阶段实施,其中第一阶段:2022年3月28日至2022年9月23日,180天内必须完成室外道路、雨污水、铺装及景观构筑物、红线外绿线内绿化及所有绿化土方换填等除红线内绿化苗木种植外的所有工程。
第二阶段:10月1日至11月29日60天内完成所有绿化工程和室外工程的总体竣工验收。”
6、本招标文件第四章 合同条款及格式“二、合同工期”内容修改为:“计划开工日期:2022年3月28日。
计划竣工日期:2022年11月29日。
工期总日历天数:240天。工期总日历天数与根据前述计划开竣工日期计算的工期天数不一致的,以工期总日历天数为准。
分阶段实施,其中第一阶段:2022年3月28日至2022年9月23日,180天内必须完成室外道路、雨污水、铺装及景观构筑物、红线外绿线内绿化及所有绿化土方换填等除红线内绿化苗木种植外的所有工程。
第二阶段:10月1日至11月29日60天内完成所有绿化工程和室外工程的总体竣工验收。”
7、本招标文件第四章 第三节 专用合同条款“21.11工程进度管理”内容修改为:“本工程总工期240日历天,本项目计划2022年3月28日开工,具体开工时间以业主的开工令为准,其中,180天内必须完成室外道路、雨污水、铺装等除绿化外的所有工程,240天内完成剩余绿化工程和室外工程的总体竣工验收。
(1)2022年4月30日前完成地下室顶土方的换填,路床下路基的处理;
(2)2022年6月20日前完成所有管道、管线的埋设,检查井的砌筑,隔油池、化粪池、雨水收集系统的实施等;
(3)2022年8月20日前完成车行道路和铺装基层的施工、红线内的土方换填及绿线内的绿化种植;
(4)2022年9月23日前完成道路面层沥青及铺装面层施工等除红线内绿化工程外的所有工程。
(5)2022年10月1至11月29日前完成红线内绿化施工及工程整体竣工验收。”
8、经现场勘察,现场总包单位的施工便道与本项目招标范围中的道路冲突。涉及到的总包单位的施工便道改造、拆除、外运等费用,是否包含在本次报价中?
答:投标人报价时综合考虑相关费用,标后不予调整。
9、施工时的临时堆土、外运弃土,请问业主是否协调指定场地?若有指定场地,运距多少KM?
答:详见补疑1相关内容。
10、补疑1共性问题第1条回复(1)原内容为:本项目土方工程量按图计算,现状土方全部不考虑利用;现调整为:本项目土方工程量按图计算,其中车库上道路结构层以下、非车库道路结构层以下土方反挖后利用,沟槽回填利用现场土方,其余土方不考虑利用。
11、景观工程增加以下技术补充说明:
(1)请明确D6楼南侧景观挡土墙结构图上有栏杆而栏杆平面图上没有,以那个为准?
答:以栏杆平面图为准。
(2)请明确南入口平面图铺装面与节点详图铺装面不同,以那个为准?
答:以详图为准。
(3)请明确北侧围挡范围?
答:北侧东西红线之间。
(4)请明确篮球场地面详细做法?
答:详见LD4-1.1图纸做法。
(5)请明确场区波形钢梁护栏位置?
答:场区没有波形钢梁护栏,全部为玻璃栏杆。
12、安装工程增加以下技术补充说明:
(1)请明确如下图所示,粗砂或碎石屑回填,具体选用哪种材料?
答:选用粗砂。
(2)给排水设计说明中,消防管材两处标注不一致,以哪个为准?
答:室外消防管道采用球墨铸铁管。
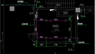
(3)空气源热泵机组的配电本次是否需要考虑?
答:空气源热泵机组的配电本次考虑,按照下图所示:
(4)请明确太阳能系统水管的保温厚度及防潮层的厚度,防潮层图纸两处标注不一致,请问以哪个为准?
答:保温材料采用30mm厚的橡塑保温管,外包0.5mm厚的铝箔。
(5)太阳能系统的水泵前后阀门,系统图与平面图不一致,以哪个为准?
答:以系统图为准。
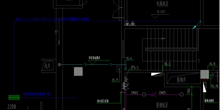
(6)如下图所示内容,是否在本次招标范围内?
答:不在本次招标范围。
(7)请明确阀门井是否设置隐形井盖?
答:是,具体做法参考景观工程隐形井盖做法。
注:此补疑视同招标文件的组成部分,与招标文件具有同等法律效力。
招标人名称:合肥高新股份有限公司
地址:合肥高新区创新大道2800号创新产业园二期H2楼
联系人:王工
联系方式:0551-65326506
招标代理:安徽诚信项目管理有限公司
地址:合肥市滨湖新区南京路2588号六楼
联系人:张工
联系方式:0551-66223284
2022年3月8日
三、附件
答疑发布日期:2022年03月08日