您现在的位置: 首页 >> 答疑变更 >> 安徽公共资源交易集团项目管理有限公司 >> 工程
一、原公告主要信息
原项目名称: 创智天地三期(B-1号~B-3号、B-5号~B-12号厂房及地下车库)施工总承包
原项目编号: 2021BFFGZ02023
原公告日期: 2021年09月14日
二、公告内容(更正事项、内容及日期等)
创智天地三期(B-1 号~B-3 号、B-5 号~B-12 号厂房及地下车库)施工总承包招标文件补疑4
招标项目编号:2021BFFGZ02023
各投标人:
本项目疑问回复:
疑问1:土石方清单,临时围墙基础土方开挖、回填是否有遗漏?
答:围墙土石方工程量列在大型土石方工程中,未遗漏。
疑问2:基坑支护图纸,基坑支护平面图中未见有地标沉降观测点布置位置
答:基坑周边除需要拆除的建筑物外,距离四周建构筑物均较远,无需布设地表沉降观测点。
疑问3:地下车库土建装饰,地库区域未见桩基设计,清单中桩基是否是与地库相邻的B2/B3/B5#楼中的桩基?
答:是。
疑问4:地下室标线、车档、护角、减速带、转角镜等一系列标志标线工程是否在施工范围内?
答:不在范围,详见招标补遗。
疑问5:地下室侧墙防水图纸中有2
中做法,是否采用做法表中的做法?
`
答:按装饰做法表中做法计入,详见招标补疑第113项。
疑问6:地下室顶棚清单做法与图纸不符,清单中描述为:1、部位:地下室顶棚(除消防水池)2、2厚耐水腻子刮平3、具体详见图纸、图集、答疑、招标文件、政府相关文件、规范等其它资料,满足验收要求。
而图纸中还有3厚底基防裂腻子分遍刮平。是否有误?
答:清单描述遗漏3厚底基防裂腻子分遍刮平,但2厚耐水腻子刮平及3厚底基防裂腻子分遍刮平费用均包含在综合单价中,投标单位综合考虑报价。
疑问7:地下室总说明中提到:3、踢脚:墙、柱根部墙面作200mm高深灰色防霉弹性涂料,墙、柱根地坪刷20mm宽深灰色防霉弹性涂料(界面翻边),墙面彩色弹性涂料和安全防撞设施的具体位置详见导视系统二次设计。此项是否属于施工范围?
答:二次设计,不在本次清单范围。
疑问8:地下室踢脚做法清单做法与图纸不符,清单中描述为:水泥砂浆踢脚线。而图纸中为涂料踢脚线。是否有误?
答:水泥砂浆踢脚线列项仅为踢脚线底部水泥砂浆基层;踢脚线涂料面层工程量包含在清单131、134项墙面腻子及涂料清单项中。定额无涂料踢脚套项,踢脚涂料面层套用涂料墙面定额。
疑问9:地下室区域出现的楼面做法:如楼面四楼面五,不适用于地下室电梯厅和楼梯间。是否有误?
答:地下室电梯厅及楼梯间位于主楼地下部位,按主楼电梯厅及楼梯间做法计入。详见招标补遗第115项。
疑问10:建筑做法表中:1.5厚JSII型聚合物水泥防水涂料,上翻1800(两遍成活)(仅水井),
未在清单中
描述。是否有误?
答:水井位于主楼,地下室无水井。且防水单列,不在地面做法中描述。
疑问11:图纸中地下室排水沟是否可分为3类,①泵房内的截水沟(做法详17J927-1),底板结构做沟;②坡道处排水沟500*500(17J927-1第3-16页节点1做法),底板结构做沟;③普通排水沟。
问:排水沟分为3类的描述是否准确?③的做法?及其深度如何消化,包含在面层内吗?
答:三类描述正确。③的做法就是面层做浅沟,包含在面层内。
疑问12:说明中楼梯靠墙扶手做法为K10-3,而楼栋中的楼梯靠墙扶手做法为E4-K3?以哪个做法为准?
答:以楼栋靠墙扶手做法为准。
疑问13:地库结构图中这个位置的标高是否标注有误,应该
为+0.35
答:是,为+0.35。
疑问14:地库结构图中(B3#楼位置)顶板结构模板图与顶板结构配筋图此处标高不一致。

答:主楼区域标高详见主楼结构图。
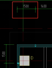
疑问15:地下室4~5/D~E轴位置的水箱基础具体构造尺寸及混凝土强度?
答:此处水箱基础已包含在地下车库(安装)工程中,具体详见地下车库(安装)工程量清单第246项。
土建装饰幕墙共性问题
疑问16:B1-B5#楼中,未见清单中有承台基础混凝土、砖胎膜、桩基,是否有误?
答:地库顶板以上楼栋与地库按水平划分,详见招标补遗。
疑问17:节点大样图中,隔墙与外窗交界处封堵方法示意、建筑内立管包管示意、屋面透气管护墩做法是否在施工范围内?
答:
隔墙与外窗交界处封堵、建筑内立管包管、屋面透气管护墩在施工范围内,投标单位在洞口封堵、防火处理等清单项中综合考虑报价。
疑问18:B1楼幕墙玻璃雨棚中图纸采用250系列不锈钢驳接爪系列,清单中描述为220系列。是否有误?
答:见招标补疑第40条
疑问19:答疑中提到:防火门为甲供材,那么一层的防火防盗门、二层以上的铝合金 10 厚钢化安全玻璃门、门窗表中的钢制木纹门是否属于施工范围?
答:一层防火防盗门及二层以上10厚钢化玻璃安全门均在施工范围,详见招标补疑第25项。
钢制木纹门实为卫生间门,不在本次招标范围;

疑问20:图纸中防雨百叶风口、防火百叶风口未在清单中体现,是否有误?
答:在安装暖通清单中计列。
疑问21:清单中给出防滑条为1:1金刚砂防滑条,而图纸中为15J403 24/E7 金属防滑条。是否有误?
答:楼梯防滑条做法参照建施图纸10.6条

疑问22:室外景墙的结构及装饰是否包含在施工范围内?
答:景墙底部基础梁在本次清单编制范围内,景墙墙身结构及装饰不计入本次清单范围。
疑问23:图纸中说明的9.除层间幕墙设置后背板的区域,其他玻璃幕墙内侧墙柱面粉刷后涂刷深灰色外墙涂料,详见室外装修5.5.6条,余同。此部位根据补疑2按照相应楼栋无机白色涂料内墙面装饰做法计入。请问在清单中此项计入下列哪条?
答:工程量含在下图红色方框中清单项内。
疑问24:B07-B12#楼结构图无墙身大样图
答:节点见每层板结构平面图;
疑问25:建筑图中缺少出屋面管井具体大样
答:参照招标补疑回复
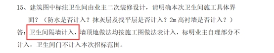
疑问26:建筑图中有个别楼栋显示卫生间墙体为虚线,个别楼栋注明用户自理。是否代表卫生间墙体不在施工范围?
答:卫生间隔墙计入,详见招标补遗第15条。
疑问27:B7#楼电动挡烟垂壁是否不在施工范围内。
答:在施工范围,已计入安装工程清单中。
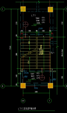
疑问28:各楼栋中有如下形式的楼梯(比如B7#楼TL1),在3层以下红粗线范围内是踏步,3-5层以上为平板。而结构图并未按建筑出图。已哪个做法为准?

答:已核实B7#楼LT1建筑图与结构图无此问题,其余楼栋有此问题时,按招标补疑第84项回复计入。
疑问29:B1一层幕墙埋件图与一层幕墙平面图D/2轴标注不一致,以哪个为准

答:以埋件图为准
疑问30:一层幕墙平面图D/2轴处阳角无具体节点做法
答:详见图纸标准节点
疑问31:B1#在建筑图五层平面图中有电动高窗,而幕墙图纸中未有任何说明,请确认电动高窗是电动上悬窗还是中悬窗。
答:见招标补疑第39条
疑问32:幕墙里面图中未标注详细节点做法的门是否参照05004做法,是否均为地弹门
答:见招标补疑第67条。
疑问34:建筑图一层北立面无高窗,而幕墙图上有有高窗,以哪个为准
答:以幕墙图纸为准。
疑问35:B11#楼的配电房,施工至何种程度?
答:按图纸设计配电间装饰做法计入。
疑问36:各别楼栋有上屋面钢梯、机房内钢梯,但清单中描述不全(如下图)。是否已包含在其中?
答:所有的钢梯均综合包含在内,投标单位自行考虑报价。
疑问37:建筑墙身大样图与幕墙墙身大样图不符,是否混凝土结构及砌体结构按照建筑图施工。
答:
临时围墙土建
疑问38:2.5m高围墙描述中,缺少200*200*6钢板,是否有误?
答:200*200*6钢板工程量含在清单第13项镀锌钢骨架工程量内,投标单位综合考虑报价。
疑问39:围墙描述中,缺少钢结构防腐和装饰漆描述。是否有误?
答:钢结构防腐包含在钢结构清单项内计入,油漆涂料在清单第17项计入,投标单位综合考虑报价。
疑问40:6m高围墙中的60*60*4mm厚的镀锌方管次龙骨是否
包含在箭头所指处?
答:是。
疑问41:围墙的防雷是否包含在施工范围内,清单中未见描述。是否有误?
答:防雷包含在施工范围内,清单不单独开项,费用包含在投标总价中,投标人综合考虑,标后不予调整。
疑问42.招标文件前附表第3.2.5条第79项:“79、发包人支付给承包人专业分包工程(含电梯、防火门)合同价款(不含设备价格和暂列金额)的 3%作为总承包服务费用(需招标人、分包单位共同书面证明实际发生),总承包服务费一次包死,不随分包工程结算价款的调整而调整;配合工程的总承包配合费已含在合同价款内,不再另行计算;总承包服务费仅计取税金。......”
问题:1、总承包服务费是否必须计取?
2、总承包服务费如需计取:
(1)专业土石方工程中其他项目中总承包服务费费率按3%,投标报价时计算基数栏是否自行输入专业工程暂估价金额?
(2)如自行输入专业工程暂估价金额,专业工程暂估价内含设备费用,扣除设备费价格如何确定确定?
答:上述说明仅为总承包服务费计算方式,总承包服务费在投标报价中不计取,待分包专业合同价款确定后按上述费用计算方式计算费用。
疑问43.招标文件工程量清单除土石方工程专业外其他所有专业的安全文明施工费费率均为民用建筑工程费率,且计价软件导入招标清单时不能修改专业,投标报价时是否以电子清单生成费率为准?
答:投标报价中取费执行“本工程取费按“ 建筑 工程取费标准”中“ 工业建筑 ”的费率计取;其中建筑工程中挖或填土石方量大于5000m3的大型土石方工程,其企业管理费率8%、利润率8%,措施项目费率和不可竞争费率按建筑工程相应费率乘0.6系数。”
疑问44.招标文件P167页安全文明施工费费率中无土石方工程专业费率值,土石方专业安全文明施工费费率是否以电子清单生成费率为准?
答:投标报价中土石方单位工程取费执行“本工程取费按“ 建筑 工程取费标准”中“ 工业建筑 ”的费率计取;其中建筑工程中挖或填土石方量大于5000m3的大型土石方工程,其企业管理费率8%、利润率8%,措施项目费率和不可竞争费率按建筑工程相应费率乘0.6系数。”。
疑问45.根据2021年9月27日补疑文件提疑:
招标文件第66页:2.1.3响应性评审标准款“投标报价(1)投标报价未超过招标文件设定的最高投标限价(如有)”,2021年9月27日补疑文件提供的招标控制价文件为一个完整的excel最高投标限价文件。
请明确未超过招标文件设定的最高投标限价是指:“D.1 建设项目最高投标限价汇总表”表中对应的总价,还是指“D.2 单项工程最高投标限价汇总表”表中每个单位工程对应的总价,还是指excel最高投标限价文件内给出的包括清单项的单价、总价在内的所有对应的价格都不超控制价?
答:本项目最高投标限价的金额为扉页中金额,即“264804532.99元”
疑问46.根据补疑2第2条“本工程取费按建筑工程取费标准中“工业建筑”的费率计取;其中建筑工程中挖或填土石方量大于5000m3的大型土石方工程,其企业管理费率8%,利润率8%,措施项目费率和不可竞争费率按建筑工程相应费率乘0.6系数.”,招标清单默认的专业均为民用建筑;
问题(1)请明确投标时是否可以自行将“民用建筑”专业修改为“工业建筑”专业?
答:请咨询所选用的计价软件单位。
问题(2)专业土石方工程在工业建筑基础上按补疑2规定费率调整?
答:投标报价中土石方单位工程取费执行“本工程取费按“ 建筑 工程取费标准”中“ 工业建筑 ”的费率计取;其中建筑工程中挖或填土石方量大于5000m3的大型土石方工程,其企业管理费率8%、利润率8%,措施项目费率和不可竞争费率按建筑工程相应费率乘0.6系数。”。
注:此补疑视同招标文件的组成部分,与招标文件具有同等法律效力。
招标人:合肥庐阳工投工业科技有限公司
地 址:合肥市庐阳区庐阳工业区工投研发楼10-12层
联系人:贺工
电 话:0551-65679205
招标代理机构:安徽诚信项目管理有限公司
地 址:合肥市滨湖新区南京路2588号(徽州大道与南京路交口)六楼
联系人:张工
电 话:0551-66223831、66223928
2021年10月8日
三、附件
答疑发布日期:2021年10月08日