您现在的位置: 首页 >> 答疑变更 >> 安徽公共资源交易集团项目管理有限公司 >> 工程

项目编号:

项目名称:

一、原公告主要信息

     原项目名称: 新站高新区智慧产业园A14号楼孵化器改造升级项目施工

     原项目编号: 2021BFXGZ00749

     原公告日期: 2021年04月21日

二、公告内容(更正事项、内容及日期等)

    

新站高新区智慧产业园A14号楼孵化器改造升级项目施工招标文件补疑2

项目编号:2021BFXGZ00749

第一部分:开标通知

1.本项目具体开标时间延期至 20215311100分,投标文件递交截止时间为20215311100分。开标地点为合肥市滨湖新区南京路2588号要素交易市场A 区(徽州大道与南京路交口)310号开标室。

2.本项目招标人要求澄清招标文件时间:2021052017 30 分前。

3. 新站高新区智慧产业园A14号楼孵化器改造升级项目施工项目最新的清单控制价及图纸已上传,本次招标以清单文件通道发放的“2021BFXGZ00749项目工程量清单控制价及补疑(2021.05.14发)”和工程补图通道发放的“新站智慧产业园A14#图纸定稿(2021.05.14发)”为准,请各位投标人及时下载查阅并按最新发放的文件编制投标文件。

第二部分:工程量清单与最高投标限价编制补疑

各投标人:

重要提示

1、人工费执行《关于贯彻执行2018版安徽省建设工程计价依据的通知》(合造价【201813号文)。其中定额人工费参与取费、取税,其相对于定额人工费增加的部分  0   元只计取税金。

2、本工程取费按“  安装   工程取费标准”中“  电气设备、自动化控制仪表、建筑智能化工程   ”的费率计取;

按业主要求,现对本项目招标工程量清单、最高投标限价编制作出如下补充:

1部分:招标需求

一、招标范围:

    房建专业: 本项目分为1个标段,包括新站高新区智慧产业园A14号楼孵化器改造升级项目施工。除特殊说明外,图纸设计范围内的所有内容,均按图计入。

(一)建筑工程

1、土建工程

图纸设计的结构加固改造工程:

1)二、七层局部柱粘贴碳纤维布进行加固;

2)一层~十层局部板面粘贴碳纤维布进行加固;

3)一层~屋面局部梁底采用粘贴碳纤维布进行加固;

4)屋面局部梁底采用向下扩大截面进行加固;

5)一层~屋面局部梁顶采用粘贴碳纤维布进行支座加固;

6)一层~屋面局部新增次梁、楼板开洞;

7)屋面局部新增机房等。

2、装饰工程

图纸设计的装饰工程:室内门窗(楼梯前室防火门及电梯厅防火门除外)、内墙面、楼地面、顶棚装饰工程,含一楼配电房、弱电机房、监控室及屋顶新建机房装饰。

(二)安装工程

1、给排水工程

新增公共卫生间给排水管、阀门、各类套管、所有公共卫生间洁具、地漏、原有消火栓系统拆除及新建消火栓系统(含消火栓管道、阀门及消火栓箱等)、原有喷淋系统(保留主干管)拆除及新建喷淋系统安装(含喷淋管道、喷淋头、末端试装置等)。

2、暖通工程

   原有消防防排烟系统拆除、新建消防防排烟系统及新风系统、一层空调系统(含风机、风管、风阀、风口、消声器、室外机、风机盘管、液晶面板、冷媒管、冷凝管、管道保温、设备支架等)。

    3、电气工程

电气包括:除图纸设计利用的桥架、电缆及配电柜(箱)以外的其它桥架、电缆、配电柜拆除,新建配电柜(箱)、桥架及配管、电力电缆、配线、照明灯具、集中控制应急照明灯具、开关插座、 各类套管等。

4、弱电工程

1)消防火灾报警联动系统、消防设备电源监控系统、电气火灾监控系统等三个系统的主机均设在厂区消防主控室内,本次设计利用,其它按本次招标图纸新建。

2)防火门监控系统已由总包施工完成,本次设计新增三个防火门监控(一层物业监控室双开防火门、机房双开防火门、外网接入间单开防火门)。

3)新建智能化系统内容如下:

互联网综合布线系统(1-10)层;内网综合布线系统(9-10)层;视频监控系统(1-10)层;电子巡更系统(1-10)层;入侵报警系统、人脸识别门禁控制系统(1层、910);信息发布系统1-10层;一层会议系统及九、十层会议系统;机房七氟丙烷无管网灭火系统等。

(三)补充说明:

图纸上已设计,但不计入本次招标范围的有:

1、现场已由总包施工的配电箱:AA1AA4XAA1XAA2

2、开水器;

3、电梯、电梯控制箱及电梯控制箱的进线电缆;

4、厂区消防主室消防火灾联动报警主机;

5、消防设备电源监控主机;

6、电气火灾监控主机;

7、防火门监控系统(新增三个防火门除外);

8、雨水系统、冷凝水系统。

9、无线对讲系统、无纸化会议、公共广播系统(预埋管及线除外)。

二、暂定项目:

(一)以下项目按照业主要求,以暂定工程量计入分部分项工程量清单,投标人综合考虑报价,标后按实际工程量结算。

本项目无

(二)以下项目按照业主要求,暂列金额为  0  万元。

(三)执行暂估价的材料、设备、专业工程及其金额如下:

1、材料的名称、规格型号、金额;本项目无

2设备的名称、规格型号、金额;本项目无

3、专业工程名称、工程内容、金额;本项目无

4、发包人供应材料、工程设备的采购、保管费,控制价中不再另行计取费用,投标人在总报价中综合考虑此费用。

本项目无

三、按项列入清单的内容,标后不予调整:

以下项目按照业主要求,按项计入,投标人自行踏勘现场,综合考虑报价,中标后不予调整。

本项目无。

四、补充图纸及修改图纸的说明:

本工程在第一次发放图纸后,有补充图纸,具体详见图纸目录。

五、总承包服务费:

  本工程无。

六、温馨提示:

投标人投标报价还须仔细阅读本项目招标文件,慎重报价。

1、控制柜、配电柜、箱及插座等可能存在后期安装调整位置费用,费用包含在投标总价中,不单独列项,投标人综合考虑,自行报价,标后不予调整。

2、各专业管线交叉较多、各投标人应综合考虑管线避让等技术处理措施引起的工程量变化,综合报价,中标后不得以此为由增加相关费用。

3、临时支撑架制作、安装、拆除:梁加固、柱加固、板加固、新建机房层加固等所有临时支撑的制作、安装、拆除。工程量清单及最高投标限价不单独列项,投标人自行踏勘现场,综合考虑报价,中标后不予调整。

 

2部分:设计文件及技术补充说明

一、安装专业

1、卫生间给排水管是否在本次招标范围内?请补充14-15轴卫生间给排水大样图、详图和给水立管、排水立管系统图。

答:6-7轴卫生间给排水管已按总包图纸安装到位,14-15轴卫生间为本次招标新增,给排水管、开孔、相关套管、污水井及新建污水井与室外附属污水管网相连接(连接管为HDPE双壁波纹管DN300)等相关内容均在本次标范围内。

2、卫生间洁具是否在本次招标范围内?

答:所有卫生间洁具均在本次招标范围内。

3、雨水系统及冷凝水系统是否在本次招标范围内?

答:雨水系统及冷凝水系统已由总包施工,不在本次招标范围内。

4、消火栓系统是否在本次招标范围内?

答:原有消火栓系统拆除、弃置,按本次招标图纸新建。

5、喷淋系统是否在本次招标范围内?

答:保留喷淋主干管,其他喷淋拆除,按本次招标图纸喷淋系统有关内容新建。

6、厂区变电所位置在哪里?

答:厂区变电所设在A15#负一层。

7、低压配电柜AA1AA5BA1BA2XAA1XAA2及相关进线电缆是否在本次招标范围内?

答:低压配电柜AA1AA4XAA1XAA2及相关进线电缆已由总包施工,不在本次招标范围内。现场已安装的BA1BA2AA5负荷及进线电缆规格型号与本次招标设计不同,需拆除现场配电柜及进线电缆。重新安装配电柜BA1BA2AA5及相关进线电缆。

8、电梯、电梯配电箱及进线电缆是否在本次招标范围内?

答:电梯、电梯配电箱及进线电缆不在本次招标范围内,但装饰注意保护电梯有关设备及墙面上的召唤盒等工作。

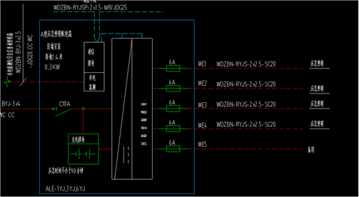
9、现场已完成总包图纸中有关应急照明设计:(见下面截图)

现场应急灯具接线如下:

而在本次招标图纸设计

请问以哪种方式为准?如果以集中电源集中控制型应急照明系统为准,现场灯具及配电箱如何处理?

答:保护性拆除现场应急灯具及相关配电箱,设备交回甲方。应急照明系统按本次招标图纸新建。

10、按原总包图纸已做的层配电箱配置、编号等与本次招标图纸有很大差别,请问如何处理?

答:原总包图纸已做的层配电箱拆除并交回甲方。

11、按原总包图纸已安装到位的普通照明灯具如何处理?

答:现场普通照明灯具全部拆除。

12、请明确消防主控室位置?请补充相关图纸。

答:厂区A9#楼一层。

13、消防火灾报警联动系统、消防设备电源监控系统、电气火灾监控系统是在本次招标范围内?

答:消防火灾报警联动系统、消防设备电源监控系统、电气火灾监控系统等三个系统的主机均设在厂区消防主控室内利旧,其它按本次招标图纸新建。

14、防火门监控系统是否在本次招标范围内?

答:防火门监控系统控制分机及与消防主控室相连接的有关线缆均已由总包施工,已有部分防火门监控已施工到位,本次招标利旧,本次招标只增加3处防火门监控(2处双门、1处单门)。

15、开水器是否在本次招标范围内?

答:开水器不在本次招标范围内。

16、现场暖通系统已按总包图纸施工完毕,如何处理?

答:现场暖通系统全部拆除,有关暖通设备交还甲方。暖通空调系统按本次招标图纸新建。

17、请明确空调的控制面板数量和参数。

答:空调的控制面板数量与风机盘管数量一致,控制面板为液晶显示,与设备配套。

18、空调弱电控制系统线缆如何敷设?

答:空调弱电控制系统线缆为设备自带,与设备配套,穿JDG20管暗敷。

19、请确定智初图纸中有关机房强电照明灯具参数。

    答:智初图纸中有关机房强电照明灯具参照电施图中相同灯具参数。

20、智初图纸中有关机房强电插座参数?

答:智初图纸中有关机房强电插座参照电施图中相同插座参数。

21、智初图纸中智能化机房强电回路平面配管、配线与智初图的配电箱系统图中材质、规格型号不同,且与电施图纸照明回路材质规格型号也不相同,请问以哪个为准?

答:均电施图为准,配管均为JDG材质,配线参数也以电施图中相似回路为准。

22、电施图纸中智能化机房配电箱进线为WDZB-YJY-4*70+1*35,在智初图纸中此配电箱进线为WDZB-YJY-4*95+1*50,请问以哪个为准?

答:智能化机房配电箱进线为WDZB-YJY-4x70+1x35 CT/SC100-WE

23、请确定集中控制型应急照明系统应急照明控制器中位置。

答:在A14楼一层物业监控室内,应急照明控制器相关消防联动控制管线与A9楼消防主控室主机相连。

24、控制型应急照明系统配管、配线多处描述有矛盾之处,请确认。

答:以下图为准

25、无纸化会议、公共广播系统、无线对讲系统是否在本次招标范围内?

答:无纸化会议、广播系统、无线对讲系统除系统预留管、盒外,均不在本次招标范围内。

2646寸液晶拼接屏在图纸显示为12块,参数表中是9块,请确定以哪个为准?

答:46寸液晶拼接屏以9块为准。

27、外网接入间智能化图纸中有UPS6KVA)一台,参数表中未列出,请确定这台UPS是否在本次招标范围内?

答:外网接入间UPS6KVA)一台在本次招标范围内。

(二)结构加固

28、结构图纸设计说明中碳纤维加固和粘钢加固可涂刷界面剂或采取其他措施进行处理,请明确具体做法。

   
答:确定为涂刷界面剂。

(三)装饰

29、一层大会议室设备间地面材质标注是否有误?图纸标注为“2.5厚仿地毯花纹橡胶地板”。如图:

答:一层大会议室设备间地面材质参照机房地面。

301层箭头所指此处地面是否需要计算?图纸未标注。如图:

答:此处地面不在招标范围内。

311-10层地面是否有门槛石?图纸未标注,请明确。

答:不同材质之间地面采用20mm深啡网纹大理石石材门槛石

321层走廊地面是否有200mm宽波打线?图纸不明确。

答:1层走廊地面有200mm宽波打线。

33、请提供一层大会议室吊顶节点详图。另外大会议室设备间是否吊顶?请明确。

答:详见节点补图。

34、请提供一层VIP接待室、小会议室、展厅吊顶节点详图。

答:详见节点补图。

35、请提供二层洽谈区吊顶节点详图,并注明材质。

答:详见节点补图。

36、装饰空间材料表(2)中地面做法说明中提到“基层按照原建筑地面做法”,请问原建筑地面基层是否包含在招标范围?

答:原基层已由总包单位完成,不在本次招标范围内。

37、现场勘察后,楼梯间现为地坪漆,图纸中楼梯间也做了精装设计,请问楼梯间墙面、顶面、地面是否需要计算?

答:楼梯间装饰不在本次招标范围内。

38、现场电梯厅已做了地面及墙面,请问电梯厅是否按照本次装饰图纸重新计算?

答:按照本次新图计算。

39、现场现有的护窗栏杆是否保留?

答:先拆除,窗台板安装完成后再次安装,主材利旧.

40、暖通空调系统中屋顶风机基础和室外机基础等设备基础只有尺寸(见下截图),请明确相关设备的基础做法。

 

说明: IMG_256

答:C30混凝土基础

41120厚加气混凝土隔墙砌到板顶,一层原始层高4.4米,是否需要加圈梁?

答:墙高度大于4.0m时,应在墙高度中部(一般结合门窗洞口上方过梁位置)设置通长的钢筋混凝土圈梁,圈梁截面为墙宽*300,配纵筋   箍筋4φ10。柱(砼墙)施工时预埋Φ6@200与圈梁筋焊接或搭接。

42、轻钢龙骨隔墙高度到吊顶处,是否应该向上延伸100mm高?另外,请提供轻钢龙骨石膏板隔墙详图。一层吊顶基本都在4米及4米以上,轻钢龙骨基层是否需要加固?

答:超过3.5米以上的低于6米以下的轻钢龙骨隔墙采用C75系列龙骨,安装通贯龙骨。

   43、一层小会议室D立面标注有LED显示屏,但是图纸上墙面均为18mm厚陶铝木纹吸音板,请问是否需要扣减LED屏的面积?如需扣减请提供显示屏的尺寸。

答:不考虑扣减LED屏的面积。

44、电梯门套需要提供竖向节点图。横向节点图与立面不对应,不能反映2厚亚克力透光饰面板的做法。

答:详见节点补图。

45、请注明电梯厅此处墙面材料(电梯按钮处)。如图:

答:详见电梯厅立面图。

462层以上走廊立面1200以下是陶瓷薄板,新建隔墙图上标注为轻钢龙骨石膏板隔墙,是否有误?如图:

答:所有靠走廊一侧的隔墙采用12厚水泥板1200以下墙面挂钢丝网粘贴陶瓷薄板;1200以上刷白色无机涂料。

47、立面图号为“装初-57/74”图中,立面与平面不一致,请明确(立面中没有玻璃隔断)。另外装饰说明中走廊只标注了陶瓷薄板,立面中还有乳胶漆。如图:

答:详见补充立图。

482层此处走廊隔墙未标注材质,请明确。如图:

答:参照走廊做法

49、此处是否为伸缩缝?如果是,是否需要计算?如需计算请提供详图。如图:

答:

50、图纸地面做法中给的是“3.5mm厚橡胶地板”,地面材料标注中给的是2.5mm厚,请问以哪个为准?

答:3.5mm橡胶地板

51、地面塑胶地板做法中没有标注找平层的配比及厚度,请明确。

答:地面塑胶地板找平层预留50mm

52、“装饰空间材料表(2)”中的做法与节点做法不一致,已那个为准?如图:

 

答:按照节点图

531层展厅地面标注“灰色磨石整体地面”,请问是水磨石地面,还是仿水磨石石材或地砖地面?

答:环氧磨石地坪系统:1、抗渗耐污罩面;210厚环氧磨石面层;54、基层封闭剂(内置抗裂纤维网);430厚抗裂垫层自流平(内置抗裂纤维网)。

55、灯膜吊顶节点图中请注明基层材料的名称。

答:详见补图

56、墙面18mm厚陶铝木纹吸音板请提供节点做法详图。

答:参照4mm金属板做法

571层大会议室及只要是之间的电动屏风是否在计算范围内?如在需提供具体做法。

答:按照手动计入,按照一项预留。

58、卫生间、卫生间前室及盥洗间墙面防水高度是否按照地面做法标主的1800mm计算?

答:按照1800mm计算。

59、玻璃隔断项目,平面图标注的玻璃为“5+12A+5中空加百叶玻璃隔断”,立面图的标注的玻璃为“6mm+6mm钢化安全玻璃中空玻铝合金玻璃隔断(中间带铝合金百叶)”,节点图标注的玻璃为“6mm防火玻璃”,请明确玻璃种类。

答:6mm钢化+6mm钢化+百叶帘。

60、窗台节点图中标注有“20mm厚白色人造石窗台板”,但是立面图中未反映,请问窗台板是否计算?

答:按照节点计算。仅计算墙面为乳胶漆的房间。

61、请问“新闻发布室舞台节点图 (1:10)”相对应的地面平面图的部位在哪里?

答:大会议室舞台处。

62、平面图中未标注门的型号,是否默认为单开门为M1,双开门为M2?另外原始平面图中没有的门是否都需计入?

答:一层监控机房为防火门,其他按照图纸所示门表计算。

63、请提供大会议室活动屏风隔断具体参数及做法。

答:具体参数详见下图:

注:此补疑视同招标文件的组成部分,与招标文件具有同等法律效力,请投标人及时下载。

招标人:合肥鑫城国有资产经营有限公司

    址:合肥新站高新区文忠路999

        联系人:朱工

    话:055165777285

       招标代理机构:安徽诚信项目管理有限公司

    址:合肥市滨湖新区南京路2588号(徽州大道与南京路交口)六楼

        联系人:张工

话:0551-66223912

2021514

 

 

 

 

三、附件

      答疑发布日期:2021年05月14日

附件:2021BFXGZ00749项目补疑2.pdf