您现在的位置: 首页 >> 答疑变更 >> 安徽公共资源交易集团项目管理有限公司 >> 工程

项目编号:

项目名称:

一、原公告主要信息

     原项目名称: 阜阳合肥现代产业园区2020年市政综合工程

     原项目编号: 2020BFTGZ01976

     原公告日期: 2020年12月10日

二、公告内容(更正事项、内容及日期等)

    

阜阳合肥现代产业园区2020年市政综合工程项目补疑1

(项目编号:2020BFTGZ01976

各投标人:

重要提示

1、人工费执行《关于贯彻执行2018版安徽省建设工程计价依据的通知》(合造价【201813号文)。其中定额人工费参与取费、取税,其相对于定额人工费增加的部分   0   元只计取税金。

2、本工程取费按“ 市政 工程取费标准”中“ 道路、排水、桥涵 ”的费率计取;其中房屋建筑、市政工程中挖或填土石方量大于5000m3的大型土石方工程,其企业管理费率8%、利润率8%,措施项目费率和不可竞争费率按市政工程相应费率乘0.6系数。

按业主要求,现对本项目招标工程量清单、最高投标限价编制作出如下补充:

第一部分:招标文件修改

1、招标文件第三章评标办法中商务及技术文件评审所需证明材料中“(4)投标人获得合肥市施工总承包企业信用综合评价结果分级情况确认方式如下(如采用):采用投标截止时间前,合肥市城乡建设局官网发布的合肥市施工总承包企业信用综合评价最新分级结果相应专业的分级评分”现修改为 “(4)投标人信用综合评价结果分级情况确认方式如下(如采用):以投标截止时间前,合肥市城乡建设局官网最新公布的合肥市施工总承包企业信用综合评价结果的通知为准”;

2、招标文件前附表3.4.1 增加第(4):如采用保证保险,中标候选人须在中标结果公示发布前将其开具至本项目的保证保险原件提交招标人(或招标代理机构),且原件须与投标文件中提供的扫描件一致,如存在未按规定提交、提交内容不一致或弄虚作假情形的,招标人有权取消其中标资格,并将报监管部门处理。

3、招标文件前附表10.9招标人补充的其他内容中的“2本项目中标候选人公示中将对中标候选人采用的银行保函或担保机构担保形式的投标保证金进行网上公示调整为 “2、本项目中标候选人公示中将对中标候选人采用的银行保函或担保机构担保或保证保险形式的投标保证金进行网上公示”。

4、第八章投标文件格式中投标保证金格式调整详见 “附件1”。

5、合同中付款周期增加备注说明:如承包人采用“银行保函或保证保险等方式”提交等额工程质量保证金,则在工程竣工结算完成后招标人应付至最终结算价款的100%(无息)。

6、合同15.3.1 承包人提供质量保证金的方式修改如下:

质量保证金采用以下第    种方式:

1)质量保证金保函,保证金额为:     

23%的工程款;

3)工程担保机构担保,担保金额为:     

4)保证保险,保险金额为:     

5)其他方式:  

7招标文件前附表10.3.3相关政策要求增加:(6)关于投标保证金、履约保证金、工程质量保证金执行《关于加快推进房屋建筑和市政基础设施工程实行工程担保制度的通知》(建市[2020]84号文件)

8、在招标文件前附表10.3.3相关政策要求增加:(8)保证保险产品应按《中国银保监会办公厅关于进一步加强和改进财产保险公司产品监管有关问题的通知》执行。

9、删除商务文件初步评审标准2.1.3响应性评审标准中权利义务中 “符合第四章“合同条款及格式”中的实质性要求和条件”评审内容。

 

 

附件1

投标保证金

 

如采用电汇或转账,投标人应在此提供基本账户开户许可证扫描件(或基本存款账户编号),并建议在此提供银行回单的扫描件。

如采用银行保函或担保机构担保或保证保险,银行保函或担保机构担保或保证保险扫描件提供在投标文件中,格式如下。

           (招标人名称):

 

鉴于       (投标人名称)(以下称“投标人”)参加       (招标项目名称)    标段,  (招标项目标段编号) 的投标,           (担保人名称,以下简称“我方”)无条件地、不可撤销地保证:若投标人在投标有效期内撤销投标文件,中标后无正当理由不与招标人订立合同,在签订合同时向招标人提出附加条件,不按照招标文件要求提交履约保证金,或发生招标文件明确规定可以不予退还投标保证金的其他情形,我方承担保证责任。收到你方书面通知后,我方在7日内向你方无条件支付人民币(大写)      元。

本保函或担保在投标有效期内保持有效。要求我方承担保证责任的通知应在投标有效期内送达我方。

 

担保人名称:                                        (盖单位章)

法定代表人(单位负责人)或其委托代理人:            (签字或盖章)

地址:                                         

邮政编码:                                    

  话:                                       

传真:                                        

 

               

 

 

 

注:

1、允许投标人实际开具的银行保函或担保机构或保证保险机构出具的担保的格式与本文件提供的格式有所不同,但不得更改本文件提供的银行保函或担保格式中的实质性内容。

2、投标人开具的银行保函(或担保机构担保或保证保险)必须具有明确有效的查询途径。

 

第二部分:招标需求

一、招标范围:

本项目分为一个标段,涉及8条道路及1座桥梁及附属工程 ,包括翡翠湖路(滨湖路-华山路)、嵩山路(天鹅湖路-岱山湖路)、滨湖路(翡翠湖路-合肥大道)、岱山湖路(衡山路-嵩山路)、少荃湖路(衡山路-嵩山路)、蜀西湖路(衡山路-嵩山路)、阜颍河(天鹅湖路-蜀峰湖路段)沿河绿道景观绿化设计、三桥及附属工程设计项目、彩蝶湖路人行道工程。

单位工程包括:

(一)     道路工程:包含土方、路基、路面、人行道、道路附属工程等设计图纸施工范围内的所有工作内容(含道口衔接等),具体详见设计图纸、招标文件及本招标文件补遗。

(二)     排水工程:包括排水管道沟槽土石方工程、雨污水管道铺设、检查井及附属工程等设计图纸施工范围内的所有工作内容,具体详见设计图纸、招标文件及本招标文件补遗。

(三)     交通工程:含杆件、标志板、地面标线、标志等设计图纸施工范围内的所有工作内容,具体详见设计图纸、招标文件及本招标文件补遗。

(四)     交通信号、监控工程:杆件基础、管材及管道施工、设备施工等设计图纸施工范围内的所有工作内容,具体详见设计图纸、招标文件及本招标文件补遗。

(五)     照明工程:包含路灯基础、路灯安装及所涉及的一切灯杆灯具及光源等材料采购安装、灯杆灯具中的引下线、电缆、穿线管、过路管、配电柜、电源进线、防雷接地、手孔井及施工后期的穿线、调试、箱变等设计图纸施工范围内的所有工作内容,具体详见设计图纸、招标文件及本招标文件补遗。

(六)     绿化工程:种植土换填。

(七)     桥梁工程:三桥工程按图计入。

(八)     给水工程:包含给水管道敷设、阀门附件安装、检查井砌筑等设计图纸施工范围内的所有内容,具体详见设计图纸、招标文件及本招标文件补遗。

(九)     电排工程:嵩山路(天鹅湖路-岱山湖路)过路电排管道一道,包括3*3孔过路管道施工、四通工井施工。

图纸上已设计,但不计入本次招标范围的有:

1、苗木种植、养护、树池篦子、通气管、支撑;

2、机非隔离护栏。

3、阜颍河(天鹅湖路-蜀峰湖路段)沿河绿道景观绿化设计工程中的四角亭、休憩区、条石、坐凳、垃圾桶。

4、仿石侧石、人行道仿石砖主材甲供,主材不在本次招标范围,但除主材外的其他费用(包括安装、辅材等)均在本次招标范围。发包人供应材料、工程设备的采购、保管费,控制价中不再另行计取费用,投标人在总报价中综合考虑此费用。

二、暂定项目:

以下项目按照业主要求,暂列金额为  1000  万元,计入翡翠湖路(滨湖路-华山路)土石方工程单位工程,投标人应按招标人所列的金额计入投标总价。

三、按项列入清单的内容,标后不予调整:

以下项目按照业主要求,按项计入,投标人自行踏勘现场,综合考虑报价,中标后不予调整。

1、施工范围内需拆除、清理、外弃的所有工程:

含侧石、排水、路灯、围墙、挡土墙、护坡、现状工地围挡、拆除后的房屋砼地坪及基础,因拆迁引起地上、地下的或沿线单位外弃的建筑垃圾、其他生活垃圾、基础、建构筑物、化粪池、水井、自然坑洞、垃圾池、道路、树木、树桩,树根挖除,树穴处理等所有(图纸已提供拆除工程除外),按1项列入各土石方工程分部分项工程量清单,控制价各单位工程分别按如下金额计入:

1)翡翠湖路(滨湖路-华山路)土石方工程:30000元;

2)嵩山路(天鹅湖路-岱山湖路)土石方工程:10000元;

3)岱山湖路(衡山路-嵩山路)土石方工程:10000元;

4)少荃湖路(衡山路-嵩山路)土石方工程:10000元;

5)蜀西湖路(衡山路-嵩山路)土石方工程:10000元;

6)三桥及附属工程设计项目土石方工程:10000元;

7)阜颖河路(天鹅湖路-蜀峰湖路段)土石方工程:10000元;

8)滨湖路(翡翠湖路-合肥大道)土石方工程:10000元;

9)彩蝶湖路人行道土石方工程:5000元。

投标人需根据图纸内容和现场勘察情况充分考虑需要拆除的工作内容综合报价,结算时不再调整。

2、与相邻道路、道口路基路面连接处理项目:

内容主要包括新建道路与周边道路路基、路面衔接处理,接缝衔接及加固处理等措施;衔接处面层及基层拉结、加固及基底填料分层填实等措施满足现场要求,做法详见设计及规范要求并经过设计及业主同意,按1项列入各土石方工程分部分项工程量清单。控制价各单位工程分别按如下计入:

1)翡翠湖路(滨湖路-华山路)土石方工程:20000元;

2)嵩山路(天鹅湖路-岱山湖路)土石方工程:10000元;

3)岱山湖路(衡山路-嵩山路)土石方工程:10000元;

4)少荃湖路(衡山路-嵩山路)土石方工程:10000元;

5)蜀西湖路(衡山路-嵩山路)土石方工程:10000元;

6)三桥及附属工程设计项目土石方工程:10000元;

7)阜颖河路(天鹅湖路-蜀峰湖路段)土石方工程:10000元;

8)滨湖路(翡翠湖路-合肥大道)土石方工程:10000元;

9)彩蝶湖路人行道土石方工程:5000元。

投标人根据图纸并结合现场情况后综合考虑报价,一次性包死,结算时不再调整。

3、施工便道和居民通行便道新建、维护及拆除等费用项目:

施工便道和居民通行便道(施工期间需确保沿线单位、居民出行修建通行便道,方案需报交警、属地政府、城管等部门审批),含便道新建、维护及拆除等费用,以上按1项列入各土石方工程分部分项工程量清单(施工便道的规格、材料等具体技术要求必须满足本工程的需求及业主要求,包含日常维护费用,投标人在投标报价时应充分考虑)。控制价各单位工程分别按如下金额计入:

1)翡翠湖路(滨湖路-华山路)土石方工程:20000元;

2)嵩山路(天鹅湖路-岱山湖路)土石方工程:10000元;

3)岱山湖路(衡山路-嵩山路)土石方工程:10000元;

4)少荃湖路(衡山路-嵩山路)土石方工程:10000元;

5)蜀西湖路(衡山路-嵩山路)土石方工程:10000元;

6)三桥及附属工程设计项目土石方工程:10000元;

7)阜颖河路(天鹅湖路-蜀峰湖路段)土石方工程:10000元;

8)滨湖路(翡翠湖路-合肥大道)土石方工程:10000元;

9)彩蝶湖路人行道土石方工程:5000元。

投标人根据图纸并结合现场情况后综合考虑报价,一次性包死,结算时不再调整。

4、各种杆管线维护、支撑、加固、保护和迁移:

按业主要求对施工范围内各种杆线、管线进行维护、支撑、加固、保护和迁移(采用但不限于焊接钢管就地支撑、维护,C25商品砼加固等,维护、支撑、加固、保护和迁移方案需经设计、监理、建设单位、产权单位确认后方可实施)。按1项列入各土石方工程分部分项工程量清单中。控制价各单位工程分别按如下金额计入:

1)翡翠湖路(滨湖路-华山路)土石方工程:10000元;

2)嵩山路(天鹅湖路-岱山湖路)土石方工程:10000元;

3)岱山湖路(衡山路-嵩山路)土石方工程:10000元;

4)少荃湖路(衡山路-嵩山路)土石方工程:10000元;

5)蜀西湖路(衡山路-嵩山路)土石方工程:10000元;

6)三桥及附属工程设计项目土石方工程:10000元;

7)阜颖河路(天鹅湖路-蜀峰湖路段)土石方工程:10000元;

8)滨湖路(翡翠湖路-合肥大道)土石方工程:10000元;

9)彩蝶湖路人行道土石方工程:5000元。

投标人根据图纸并结合现场情况后综合考虑报价,一次性包死,结算时不再调整。

5、施工范围绿化苗木移植、保护:

按业主要求对施工范围内零星绿化苗木进行移植和保护(移植到要求地点栽植,运距、运输费用投标人自行考虑,包含移植点场地平整等所有内容,养护等级一级,养护期一年;保护标准不低于采用钢管架或彩钢板围挡对苗木周边进行维护等),清单中已经明确的苗木移植除外;按1项列入各土石方工程分部分项工程量项目清单中。 控制价各单位工程分别按如下金额计入:

1)翡翠湖路(滨湖路-华山路)土石方工程:10000元;

2)嵩山路(天鹅湖路-岱山湖路)土石方工程:5000元;

3)岱山湖路(衡山路-嵩山路)土石方工程:5000元;

4)少荃湖路(衡山路-嵩山路)土石方工程:5000元;

5)蜀西湖路(衡山路-嵩山路)土石方工程:5000元;

6)三桥及附属工程设计项目土石方工程:5000元;

7)阜颖河路(天鹅湖路-蜀峰湖路段)土石方工程:5000元;

8)滨湖路(翡翠湖路-合肥大道)土石方工程:5000元;

9)彩蝶湖路人行道土石方工程:2000元。

投标人根据图纸并结合现场情况后综合考虑报价,一次性包死,结算时不再调整。

6、临时用水用电接引:

含报装、销户等一切费用,本工程水电接引费用(包含变压器购买及架设、报装费以及与供电、供水部门协调开通、下火以及报装期间、水电接引完成之前的发电机发电等一切费用)由投标单位自行踏勘现场后,自行架设,水电接引方案必须符合临时用电相关要求及招标人同意后才可以实施,建设单位会同监管部门定期检查,所产生的一切费用按1项列入各土石方工程分部分项工程量清单中,控制价各单位工程分别按如下金额计入:

1)翡翠湖路(滨湖路-华山路)土石方工程:50000元;

2)嵩山路(天鹅湖路-岱山湖路)土石方工程:30000元;

3)岱山湖路(衡山路-嵩山路)土石方工程:30000元;

4)少荃湖路(衡山路-嵩山路)土石方工程:30000元;

5)蜀西湖路(衡山路-嵩山路)土石方工程:30000元;

6)三桥及附属工程设计项目土石方工程:30000元;

7)阜颖河路(天鹅湖路-蜀峰湖路段)土石方工程:30000元;

8)滨湖路(翡翠湖路-合肥大道)土石方工程:30000元;

9)彩蝶湖路人行道土石方工程:10000元。

投标人自行现场踏勘,根据现状的水电接引点,自行考虑接引方案,满足施工需要,投标人自行报价,结算时不予调整。

7、清淤、排水、疏通费:

现状明渠、河道扩挖、疏浚等费用,根据现场及业主要求,需对现状明渠、河道需进行扩挖、疏浚施工;与原有雨污水管道连接处清淤、与现状水系沟通(确保现状水系水流通常),原管道利用的雨、污水管道清淤疏通、新建管道与现状管道沟通(确保现状管道畅通)、新建管道与现状管道连接处的破除及加固(含涵顶开孔)等费用,按1项列入各排水工程分部分项工程量清单,控制价各单位工程分别按如下金额计入:

1)翡翠湖路(滨湖路-华山路)排水工程:90000元;

2)嵩山路(天鹅湖路-岱山湖路)排水工程:30000元;

3)岱山湖路(衡山路-嵩山路)排水工程:30000元;

4)少荃湖路(衡山路-嵩山路)排水工程:30000元;

5)蜀西湖路(衡山路-嵩山路)排水工程:30000元;

6)三桥及附属工程设计项目排水工程:15000元;

7)阜颖河路(天鹅湖路-蜀峰湖路段)排水工程:8000元;

8)滨湖路(翡翠湖路-合肥大道)排水工程:30000元。

投标人根据图纸并结合现场情况后综合考虑报价,一次性包死,结算时不再调整。

8、施工降排水(含沟塘排水):包括明排水、湿土排水;投标人自行踏勘现场,根据设计图纸及现状情况,自行考虑排水方案和协调地方关系,满足施工要求,自行报价。此内容按1项列入各排水工程分部分项工程量清单中,控制价各单位工程分别按如下金额计入:

1)翡翠湖路(滨湖路-华山路)排水工程:70000元;

2)嵩山路(天鹅湖路-岱山湖路)排水工程:20000元;

3)岱山湖路(衡山路-嵩山路)排水工程:20000元;

4)少荃湖路(衡山路-嵩山路)排水工程:20000元;

5)蜀西湖路(衡山路-嵩山路)排水工程:20000元;

6)三桥及附属工程设计项目排水工程:10000元;

7)阜颖河路(天鹅湖路-蜀峰湖路段)排水工程:5000元;

8)滨湖路(翡翠湖路-合肥大道)排水工程:20000元。

投标人根据图纸并结合现场情况后综合考虑报价,一次性包死,结算时不再调整。

9、原有管道与各类现状检查井相关费用:

施工范围内的各种原有管道与各类现状检查井井座的加固、临时保护、升降、更换井盖等均属于本工程招标范围,该部分费用按1项列入各排水工程分部分项工程量清单中,控制价各单位工程分别按如下金额计入:

1)翡翠湖路(滨湖路-华山路)排水工程:90000元;

2)嵩山路(天鹅湖路-岱山湖路)排水工程:20000元;

3)岱山湖路(衡山路-嵩山路)排水工程:20000元;

4)少荃湖路(衡山路-嵩山路)排水工程:20000元;

5)蜀西湖路(衡山路-嵩山路)排水工程:20000元;

6)三桥及附属工程设计项目排水工程:10000元;

7)阜颖河路(天鹅湖路-蜀峰湖路段)排水工程:8000元;

8)滨湖路(翡翠湖路-合肥大道)排水工程:20000元。

投标人根据图纸并结合现场情况后综合考虑报价,一次性包死,结算时不再调整。

10、各类管网破除、恢复费:

包含给排水等各类管网施工所需拆除恢复、现状车行道、人行道的破除及恢复等全部等费用。清单中已经明确的拆除恢复费用除外。此内容按1项列入各排水工程分部分项工程量清单中,控制价各单位工程分别按如下金额计入:

1)翡翠湖路(滨湖路-华山路)排水工程:30000元;

2)嵩山路(天鹅湖路-岱山湖路)排水工程:10000元;

3)岱山湖路(衡山路-嵩山路)排水工程:10000元;

4)少荃湖路(衡山路-嵩山路)排水工程:10000元;

5)蜀西湖路(衡山路-嵩山路)排水工程:10000元;

6)三桥及附属工程设计项目排水工程:3000元;

7)阜颖河路(天鹅湖路-蜀峰湖路段)排水工程:3000元;

8)滨湖路(翡翠湖路-合肥大道)排水工程:10000元。

投标人根据图纸并结合现场情况后综合考虑报价,一次性包死,结算时不再调整。

四、补充图纸及修改图纸的说明:

本工程在第一次发放图纸后,有补充图纸,以最终版本图纸为准,具体详见图纸目录。

五、总承包服务费:详见招标文件。

六、温馨提示:投标人投标报价还须仔细阅读本项目招标文件,慎重报价。

1、投标人自行勘察现场,招标人不统一组织。现状土方与设计可能存在偏差,投标人综合考虑报价,费用含在总价中。

2、滨湖路现状复杂,投标人必须勘察现场,慎重考虑报价,中标后不予调整。施工单位自行踏勘现场,并在现有施工工作面上完成后续工作且对已实施工程进行无条件修复(满足设计要求),质保期内投标单位应对道路整体质量负责。同时受制于现场条件,清单内工作量、措施费等仅为编制清单及控制价的参考,请投标人慎重考虑,综合报价,中标后不得以工程量不符、地质条件异常等任何理由提出变更。

3、关于桥梁施工临时工程,包括但不限于围堰、支架、支架预压、支架基础处理、施工降排水费用等,清单中按照设计提供的一般做法计入,包括围堰的高度、规格、长度、支架的数量等均只作为编制清单及控制价的参考,投标人须自行勘察现场,结合图纸,综合考虑;报价中含桥梁施工方案设计、评审、实施等所有费用。中标后,投标人可根据现场实际设计不同的施工方案,该方案需报业主并按相关程序批准后实施。无论选用哪种方案,费用均包含在投标报价中,中标后不予调整。

4、除设计图纸中已经明确的管道基础需超挖换填的工程量外,现场管道基础施工如遇淤泥等不良基础时,需按照图纸设计要求进行换填加固,施工前必须报设计及业主批准。投标人自行勘察现场,结合图纸及相关资料综合考虑,清单不单独列项,费用含在总价中,中标后不予调整。

 

第三部分:设计文件及技术补充说明

一、共性问题

(一)、土方工程

土方:现场情况与地形图不一致,包括挖、填、运、内倒、外弃等,取土点、弃土点不指定,控制价运距按3公里计入,土源费按5/方计入,投标人综合考虑,自行报价,含土源费、渣土费等所有费用,结算时不予调整。道路利用土方按照设计图纸工程量计入。

(二)、本项目绿化苗木不在本次招标范围,请问植草护坡的草籽及养护施工是否在本次招标范围?若在,请明确草籽种类。

答:狗牙根、百慕大混播,养护期一年,养护等级二级。

(三)除阜颖河路、三桥桥梁面外,人行道面层、树池侧石、侧石统一调整为仿石材质,仿石主材甲供,中标人负责施工。三桥及附属工程设计项目侧石调整为仿石材质,主材甲供,中标人负责施工。

(四)车止石统一调整为芝麻白花岗岩材质,直径为Φ30cm,高度70cm,样式等经过业主批准后实施。

(五)箱变低压出线预留回路不少于10个。

(六)路灯灯杆样式应经业主同意后实施,由此引起的各相关费用不作调整。

(七)原设计中的人行道基础20cm12%灰土调整为20cm级配碎石。

(八)沥青道路上面层沥青砼粗集料采用玄武岩。

(九)翡翠湖路与滨湖路交口西侧的临时便道做法为25cmC35砼面层+40cm6%灰土,含交口转角扩大。

(十)本工程箱变按如下计入:翡翠湖路箱变100KVA2台;岱山湖路箱变100KVA1台;少荃湖路箱变50KVA1台;蜀西湖路箱变50KVA1台;三桥及附属工程箱变100KVA1台。

(十一) 监控、车行灯、人行灯、电子警察杆件基础砼为C30砼,垫层为C20砼。

(十二)交通安全工程、交通控制系统(高清监控系统、信号灯控制系统、电子警察及卡口综合系统)工程量及设备参数以设计图纸《交通监控最终修改(2020129日)》文件夹内清单对比文档中“修改后”设备参数及工程量为准。如图箭头所示位置。

二、个性问题

道路工程

(一)翡翠湖路

1、如图,低填浅挖及挖方段路床处理,机动车道路床顶面以下0~80cm是否全部用6%石灰改善土,还是路床顶面以下40-80cm4%石灰土、0-40cm6%灰土。


答:按照0~80cm全部用6%石灰改善土。

2、请明确沟塘处理回填的碎石具体要求?

答:采用山皮石。

3、本项目道路工程开挖土方是否可以利用,请提供相关工程量。

答:可利用其中一部分,具体工程量按设计图纸工程数量表计入。

(二)嵩山路(天鹅湖路-岱山湖路)

1、本项目道路工程开挖土方是否可以利用,若利用,请提供相关工程量。

答:不利用。

(三)岱山湖路(衡山路-嵩山路)

1、路基工程数量表中低填、挖方段路床反挖方1074方是否包含在挖方37182方内?

答:岱山湖路路基工程数量表中低填、挖方段路床反挖方1074方包含在挖方37182方内。

2、本项目道路工程开挖土方是否可以利用,若利用,请提供相关工程量。

答:可利用其中一部分,具体工程量按设计图纸工程数量表计入。

(四)少荃湖路(衡山路-嵩山路)

1、本项目道路工程开挖土方是否可以利用,若利用,请提供相关工程量。

答:答:可利用其中一部分,具体工程量按设计图纸工程数量表计入。

(五)蜀西湖路(衡山路-嵩山路)

1、本项目道路工程开挖土方是否可以利用,若利用,请提供相关工程量。

答:可利用其中一部分,具体工程量按设计图纸工程数量表计入。

2、路面结构设计图与工程数量表中关于机动车道路面结构的做法不一致,请问以何为准?

答:以路面结构设计图为准。

(六)三桥及附属工程设计项目

1、本项目道路工程开挖土方是否可以利用,若利用,请提供相关工程量。

答:不利用

(七)阜颍河(天鹅湖路-蜀峰湖路段)沿河绿道景观绿化设计

1、现状地形是否需要进行土方挖填整理至设计高程,若需要请提供相关工程量

答:现场需填方5300方,投标人自行勘察现场,综合考虑,中标后不调整。

说明: 护栏基础

2、场地护栏做法请明确?

答:护栏基础调整为独立基础,做法如下。

3、图纸内车行道路混凝土厚度为150C25+300厚级配碎石,是否合适,若调整,请明确做法?


答:现将车行沥青路面做法调整如下:

4、考虑到场地修建绿道及广场平台对现状绿化的影响,请给出解决办法,并明确工程量?


答:对场地内现状绿化进行场外移植,移植到业主指定位置;移植苗木养护等级为一级养护,养护期一年;满足设计及业主要求。苗木移植面积约为2850平方米。

5、施工完成后,绿道及平台与现状绿化之间是否需要处理,若需处理,请提供具体做法并明确具体工程量?

答:该部分区域采用满铺草坪修复,草坪种类为马尼拉,面积为2000m²


,满铺,养护等级二级,养护期一年。

6、场地北侧高差较大,如何处理?


答:现场增加景观挡土墙,共129米,位置及做法如下:面层改为真石漆。


7、绿化装饰井盖做法是否调整?

答:调整为复合材料隐形草坪井盖。

8、人行道铺装基础做法为何?

答:花岗岩面层+3013干硬性水泥砂浆结合层+15cmC20+20cm级配碎石。

(八)滨湖路(翡翠湖路-合肥大道)

1、滨湖路已经施工了部分工程量,请提供已经施工的工程量。

答:现场灰土已经施工,但经过雨水浸泡,需重新反挖施工。原设计图纸清表、路基挖方不计入,本次招标道路土方按以下计入:

1)、挖方:28308方(原路床灰土+现场临时弃土);开挖土方不利用

2)、回填:26308方(其中6%灰土19917方,4%灰土6391方);该工程量为压实方。

3)、弃土28308方。

2、路面结构设计图中,非机动车道路面结构最底层为20cm厚级配碎石,工程数量表中该部位为20cm低剂量水泥稳定碎石,请问以何为准?

答:采用20cm厚级配碎石。

(九)彩蝶湖路人行道

1、人行道路基土方是否在本次招标范围?

答:在本次招标范围。

排水工程

1、排水管道回填,做法统一如下:

a.正常砂包管做法:(道路基层回填材料按各段路设计说明)

b.井室上下游与井室连接的第一节管段包管做法:采用180°混凝土基础,参见06MS201-1,页19

c.连接管做法:

2、翡翠路与蜀西湖路的雨水口连接管做法不一致,是否统一?

答:翡翠湖路的图纸中多篦雨水口,实际为四篦雨水口,连接管同蜀西湖路,采用d300II级承插式钢筋混凝土管。

3、滨湖路前期已施工部分具体工程量为何?本次招标如何考虑?

答:前期已施工工程量如下,

1)东侧DN1000雨水管完成76米;

2)东侧DN800雨水管已完成110米;

3)东侧DN500雨水管已完成27米;

4)东侧DN600雨水支管已完成37米;

5)西侧DN500雨水管已完成261米;

6)西侧DN600雨水管已完成10米;

7DN500污水管已完成362.1米。

相应的涉及的排水专业工程量,如雨污水管、检查井等在本次招标工程量中予以扣除,各投标人自行勘察现场,中标后不予调整。

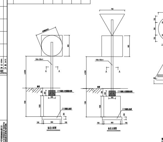
4、如图所示,翡翠湖路排水明沟的具体浆砌厚度为何?

答:浆砌厚度35cm

5、如图所示,翡翠湖路八字排水口的具体节点做法为何?

答:做法参考图集06MS201-9P5

6、如图,翡翠湖路与华山路交口东南角沟塘处理,要求疏浚管道约150m

说明: PX_9XC`1YQS4[MI2)G`8M{3

,请问该管道是否属于新建,另明确管径为何?

答:需要新建,管径为1500mm,同圆管涵做法。

给水工程

(一)翡翠湖路(滨湖路-华山路)

1、节点图中,此图例无释义。

答:图例为相应管道接头表示方法。

2、管道穿越行车道,是否需要混凝土包管?

答:不需要,以设计说明为准。

3、平面图中WT20JS12JS11等均无节点大样图,请明确。

答:平面图中JS11JS12等类似节点取消,实际施工由管节允许借转角度借转实现。平面图中WT20节点为90°上下弯头,作用为避让雨污水管道。

(二)嵩山路(天鹅湖路~岱山湖路)

1、管道内外防腐未说明,请明确防腐做法。

答:管道防腐做法同滨湖路、翡翠湖路。

2、嵩山路给水管道施工是否需要拆除现状沥青路面?

答:机动车道及非机动车道、接现状给水管需破除部分现状地面,工程量按30㎡计入。

(三)岱山湖路(衡山路-嵩山路)

1、闸阀、蝶阀等管道附件,安装方式是否为法兰连接?设计说明及图纸未说明,请设计明确。

答:不同管材之间及管道与闸阀、蝶阀之间均采用法兰连接。

2、岱山湖路消火栓给水支管,是否更改为球墨铸铁管?消火栓型号是否需要更改?

答:岱山湖路、少荃湖路、蜀西湖路原设计消火栓型号由SS150/80-1.0型改为SS150/65-1.0型,原设计少荃湖路、蜀西湖路消火栓连接管采用DN150钢管现修改为DN150球墨铸铁管。

(四)少荃湖路(衡山路-嵩山路)

1、本次招标是否涉及到少荃湖路、蜀西湖路给水设计说明中的钢管防腐做法?

答:不涉及钢管防腐,设计给水管材均为球墨铸铁管,无钢管管材。

(五)滨湖路(合肥大道-翡翠湖路)

1、与合肥大道给水管道接口处管道直径请设计明确,是否设置接口井?

答:该接口处管道直径为DN600,此处设置接口井。

2、此处三通无规格,请明确。

答:此处三通型号为球墨铸铁三通(DN600×DN500,三通下边再接一个双承渐缩管(DN500×DN300

3、此处支管管径为DN300,节点为DN200,以哪个为准?

答:J31此处节点为DN300管径,阀门、盲板调整为DN300

4、给水管道施工是否需要拆除现状沥青路面,请提供具体做法及工程量?

答:需要,给排水工程拆除并恢复现状道路共计120平方米,其中给水管道施工需拆除恢复40平方米计入。现状做法投标人自行勘察现场,综合考虑,恢复做法同新建道路做法。

(六)阜颍河(天鹅湖路-蜀峰湖路段)景观给水

1、给水点预留管道多长?

答:预留长度按50米计入。

2、管道埋地深度多少?是否有障碍物或破除现状地面恢复?

答:给水管埋深至土层700mm以下;没有障碍物及路面破除内容。

3、设计说明中,阜颍河室外消防水系统,是否在范围内?

答:现场仅做灌溉给水。消防给水不在本次招标范围。

4、灌溉给水,主管道和支管道材质请明确。

答:场地给水管主管材质统一调整为φ80球墨铸铁管,支管调整为φ25球墨铸铁管。

交通安全工程

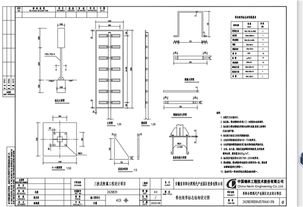
(一)三桥及附属工程设计项目.

1、说明中各规格的立柱数量各有多少?

答:单悬臂立柱取消,普通单柱标杆11根,组合式单柱标杆3根,单柱矩形标杆2根,如下所示左边为普通单柱标杆,右边为组合式,二图为单柱矩形标杆。

(二)岱山湖、少荃湖、蜀西湖

1、如下所示岱山湖、少荃湖、蜀西湖交通说明中提供的禁令标志规格是否有误?是否均为组合式禁令标志?

答:均按240*120组合式矩形标志施工,数量均除2

(三)裴翠湖路

1、悬臂式标杆数量有多少?

答:标杆16套,标牌为双面共32个。

监控工程

(一)岱山湖路

1、手井大样图尺寸和设计说明不一样,请问以哪个为准?

答:按大样图尺寸。

2、公交站牌灯是否在本次招标范围?

答:不在本次招标范围。

3、交通信号工程的车行灯工程数量表内的描述与大样图不符。请问以何为准?

答:尺寸按大样图计取,数量为66米横杆车行灯,210米横杆车行灯。

(二)三桥及附属工程设计

1、平面图纸中为枪机,设备清单图纸中为球机,请问以何为准?

答:以设备清单为准

2、手井大样图尺寸和设计说明不一样,请问以哪个为准?

答:按大样图尺寸。

(三)少荃湖路

1、少荃湖路的交通监控的高清摄像机是网络摄像机还是光纤摄像机?

答:光纤摄像机。

2、手井大样图尺寸和设计说明不一样,请问以哪个为准?

答:按大样图尺寸。

照明工程

(一)翡翠湖路

1、双臂路灯大样图尺寸与量表尺寸不一致,请问以何为准?

答:以大样图为准。

(二)滨湖路

1、双臂路灯大样图中灯杆高度尺寸为何?

答:灯杆高度为10m+12m

三桥及其附属工程

1、手井大样图尺寸和设计说明不一样,请问以哪个为准?

答:按大样图尺寸。

阜颖河路

1、请明确手井尺寸。

回复:

 

招标人名称:安徽省阜阳合肥现代产业园区投资有限公司

地址:阜阳合肥现代产业园区合肥大道8

联系人:耿朋朋

联系方式:0558-2539060

 

招标代理:安徽诚信项目管理有限公司

地 址:合肥市滨湖新区南京路2588号(徽州大道与南京路交口)六楼

联系人:张工

联系方式:0551-66223672

 

2020128

三、附件

      答疑发布日期:2020年12月15日

附件:2020BFTGZ01976项目招标补疑1.pdf