您现在的位置: 首页 >> 答疑变更 >> 安徽公共资源交易集团项目管理有限公司 >> 工程
一、原公告主要信息
原项目名称: 包河经济开发区延安路(徽州大道-新疆路)工程施工
原项目编号: 2020BFBGZ01484
原公告日期: 2020年07月17日
二、公告内容(更正事项、内容及日期等)
包河经济开发区延安路(徽州大道-新疆路)工程施工
招标补疑1
项目编号:2020BFBGZ01484-补1
各投标人:
重要提示
1、人工费执行《关于贯彻执行2018版安徽省建设工程计价依据的通知》(合造价【2018】13号文)。其中定额人工费参与取费、取税,其相对于定额人工费增加的部分 0 元只计取税金。
2、本工程取费按“ 市政 工程取费标准”中“ 道路、排水、桥涵工程 ”的费率计取;其中房屋建筑、市政工程中挖或填土石方量大于5000m3的大型土石方工程,其企业管理费率8%、利润率8%,措施项目费率和不可竞争费率按房屋建筑工程或市政工程相应费率乘0.6系数。
按业主要求,现对本项目招标工程量清单、最高投标限价编制作出如下补充:
第一部分:招标需求
一、招标范围:
本项目共1个标段,招标范围主要为包河经济开发区延安路(徽州大道-新疆路)道排建设工程,道路长度约379米,标准段红线宽度36米;单位工程包括:
(一)
土石方工程:土石方挖、运、填,种植土换填、现状道路破除及外弃等,包含图纸设计范围内全部施工内容。
(二)
道路工程:路基处理;车行道、人行道面层及基层;含与现状道路衔接及各类拆除、迁移及保护等项目,包含图纸设计范围内全部施工内容;
(三)
排水工程:包括雨污水管网、检查井、与既有管网衔接等其他项目,包含图纸设计范围内全部施工内容。
(四)
交通工程:①交通标志标线标牌工程:包含基础、标线、标杆、标牌工程等设计图纸施工范围内的所有内容;②交通信号及监控工程:设备、基础、管道、手井等设计图纸施工范围内的所有内容。
(五)
照明工程:路灯基础施工和螺栓预埋、管线、电缆穿线和接线手井、路灯安装及调试、灯杆灯具采购安装等所有照明工程的设计内容。
(六)
绿化工程:包括苗木种植、养护、苗木支撑等设计图纸施工范围内的所有内容。
(七)
电力排管工程:包括管道铺设、工井、手井等图纸设计所有内容;
(八)
补充说明:
图纸上已设计,但不计入本次招标范围的有:
1、
盲文地图、盲文标志。
2、
路基边坡植草。
二、暂定项目:
(一)以下项目按照业主要求,以暂定工程量计入分部分项工程量清单,投标人综合考虑报价,标后按实际工程量结算。
1、DN100的镀锌钢管敷设按暂定量150米计入包河经济开发区延安路(徽州大道-新疆路)工程施工-照明工程分部分项工程中。
2、箱变进线VV-1kV 4x50+1x25敷设按暂定量500米计入包河经济开发区延安路(徽州大道-新疆路)工程施工-照明工程分部分项工程中。
3、PE80保护管敷设按暂定量500米计入包河经济开发区延安路(徽州大道-新疆路)工程施工-照明工程分部分项工程中。
(二)以下项目按照业主要求,暂列金额为 100 万元,计入包河经济开发区延安路(徽州大道-新疆路)工程施工-道路工程其他项目中,投标人应按招标人所列的金额计入投标总价。
(三)执行暂估价的材料、设备、专业工程及其金额如下:
无。
三、按项列入清单的内容,标后不予调整:
以下项目按照业主要求,按项计入,投标人自行踏勘现场,综合考虑报价,中标后不予调整。
1、原有道路、地坪拆除外弃工程,按一项列入包河经济开发区延安路(徽州大道-新疆路)工程施工-土方工程分部分项清单中,控制价按98036.66元计入,投标单位自行考察现场,综合考虑报价,结算不予调整。内容包含:路基、路面、侧石等。
2、其它拆除外弃工程,按一项列入包河经济开发区延安路(徽州大道-新疆路)工程施工-土方工程分部分项清单中,控制价按82434.02元计入,投标单位自行考察现场,综合考虑报价,结算不予调整。内容包含:施工范围内的构筑物基础、拆除后的房屋基础、挡土墙、围墙、大门、废弃的工棚等所有需拆除外弃工程。
3、施工排水、降水工程,按一项列入包河经济开发区延安路(徽州大道-新疆路)工程施工-土方工程分部分项清单中,控制价按5000元计入,投标单位根据地勘报告,自行考察现场,综合考虑报价,结算不予调整。内容包含:排水等沟槽降水、现场施工需要的明排水及暗塘等施工时发生的地下水。
4、其它杆管线沟槽回填及余土外弃,按一项列入包河经济开发区延安路(徽州大道-新疆路)工程施工-土方工程分部分项清单中,控制价按62127.99元计入,投标单位自行考察现场,综合考虑报价,结算不予调整。内容包含:燃气、给水、弱电等所有其他管线沟槽按排水沟槽回填标准进行回填,剩余土方进行外弃。
5、杆管线支撑、迁移和保护,按一项列入包河经济开发区延安路(徽州大道-新疆路)工程施工-道路工程分部分项清单中,投标单位自行考察现场,综合考虑报价,结算不予调整。内容包含:施工范围内给排水、电讯光缆、电力杆线、配电箱柜、学校及居民表外自来水、燃气等支管线及地下、地上杆管线等支撑、保护、加固、迁移,地下管线物探及明挖探查保护等所有内容,中标单位如在进场施工过程中造成地下管线损坏,需按原样恢复或按相关部门要求、规范进行恢复,费用及相关责任均由中标单位承担,控制价按20000元计入,投标单位需自行现场踏勘,自行报价,以后不再调整。
6、沿线临时通行便道及交通组织设施,按一项列入包河经济开发区延安路(徽州大道-新疆路)工程施工-道路工程分部分项清单中,控制价按87556.9元计入,投标单位自行考察现场,综合考虑报价,结算不予调整。内容包含:施工时应保证沿线车辆、居民通行(包括交通限速牌、警示牌、改道牌、护栏及警示灯等交通维护、交通指挥费用、学校及居民通行顺畅安全维护等),必须满足交通组织需要,严格执行交通管理部门和业主单位过程中的具体要求等。
7、临时水电接引,按一项列入包河经济开发区延安路(徽州大道-新疆路)工程施工-道路工程分部分项清单中,投标单位自行考察现场,综合考虑报价,结算不予调整。内容包含:投标单位应自行解决水电问题,以满足施工需要,含包括自来水开口费、接引费、自备发电机、供电报装费、变压器架设的主材及安装等全部费用。控制价按20000元计入,投标单位需自行现场踏勘,自行报价,以后不再调整。
8、施工现场围挡,按一项列入按一项列入包河经济开发区延安路(徽州大道-新疆路)工程施工-道路工程分部分项清单中,控制价按83114.9元计入,投标单位自行考察现场,综合考虑报价,结算不予调整。内容包含:围挡高度3米,上下设置槽型金属边框压顶,与立柱之间设置连接,下方设置3米高挡板,采用5cm厚双面彩钢板夹心,立柱基础采用C25砼等,彩钢板上贴标语、反光标志等,具体内容有业主单位定,围挡等需业主认可;施工围挡做法参照下图。
9、其它现状绿化保护、移植及养护(不含徽州大道交口处),按一项列入包河经济开发区延安路(徽州大道-新疆路)工程施工-道路工程分部分项清单中,投标单位自行考察现场,综合考虑报价,结算不予调整。内容包含:现状苗木保护、养护及部分苗木移植,需移植的苗木业主单位不指定移栽地点,中标单位自行与管养产权单位对接,按管养产权单位要求移栽到位并负责移交,现状保留苗木及移植苗木需保证养护等级标准及苗木成活率,成活率保证100%(若保护、养护时枯萎,需补种规格不小于现状品种的苗木);控制价按5000元计入,投标单位需自行现场踏勘,自行报价,以后不再调整。
9、挡墙施工引起的破复工程,按一项列入包河经济开发区延安路(徽州大道-新疆路)工程施工-道路工程分部分项清单中,投标单位自行考察现场,综合考虑报价,结算不予调整。内容包含:现状停车场等由于挡墙施工需拆除并原样恢复的工程;控制价按20000元计入,投标单位需自行现场踏勘,自行报价,以后不再调整。
10、管线衔接,按一项列入包河经济开发区延安路(徽州大道-新疆路)工程施工-排水工程分部分项清单中,投标单位自行考察现场,综合考虑报价,结算不予调整。内容包含:雨、污水、给水、电排等新旧管线衔接(包括原有检查井井壁凿孔、破除、接缝衔接、加固处理及管道施工需对原有道路等破除并原样恢复等,道路衔接需参照车行道下钢筋砼管道沟槽及检查井周边路面结构衔接大样图施工),新旧管线衔接处理做法投标单位自行考虑,需满足设计及施工规范要求等;控制价按40000元计入,投标单位需自行现场踏勘,自行报价,以后不再调整。
四、补充图纸及修改图纸的说明:
本工程在第一次发放图纸后,有补充图纸:
以最终发放的图纸为准,具体详见图纸目录。
五、总承包服务费:
无。
六、温馨提示:投标人投标报价还须仔细阅读本项目招标文件,慎重报价。
1、施工红线范围内杆洞、水井迁移后采用C20砼回填,其费用清单不单独列项,由投标单位综合考虑在投标总报价中。
2、承包人在工程结束后至移交手续办理完毕之前,路灯、信号灯亮灯、发生的一切电费、移交后两年光纤租赁费均由承包人支付,其费用清单不单独列项,由投标单位综合考虑在投标总报价中。
3、本次招标范围内的应由中标人承担的所有试验、检测费及灰土拌和场地费,其费用清单不单独列项,由投标单位综合考虑在投标总报价中。
4、路幅内各种管线施工配合费,对于其他分包及参建单位,中标单位需及时无偿提供施工场地、材料堆放场地、施工临时用水用电、进出场道路等;同时,中标单位需对相关单位施工完成的检查井、管道等进行保护,避免施工造成损坏,损坏部分由中标人负责修复。对于预埋管线回填(含有关工井等破坏恢复),因回填操作不当或其他原因,造成管线损坏,需重新更换所产生的二次开挖回填仍然由中标单位实施;另外,投标单位报价中应包括交叉施工降低施工效率所产生的费用,上述所产生的费用作为施工配合费,其费用清单不单独列项,由投标单位综合考虑在投标总报价中。
第二部分:设计文件及技术补充说明
一、共性问题
1、弃土外运,借土回填等土方运距控制价按多少公里计入?是否考虑渣土费、渣土运输清理费、保洁费和选择弃土点等费用?
回复:借土、弃土清单控制价按25km计入,投标单位自行勘察现场自行考虑取(弃)土运距、取土点、弃土点、渣土费、土资源费等相关费用,综合报价,中标后不再调整。
二、个性问题
土方工程:
1、
根据现场踏勘,由于学校施工,现场地形与设计图已不相同,现场多出的土方如何考虑?
回复:经现场测算,现场新增13600m3清表土,其它按设计图纸不变;投标单位需自行踏勘现场,自行报价,以后不再调整。
2、沟塘回填40cm宕渣工程量不明?
回复:沟塘回填1600m3,投标单位根据地勘报告及自行现场踏勘,综合考虑,以后不再调整。
3、沟塘清淤回填的2400m3灰土是否已包含在总的灰土回填工程量内了?
回复:沟塘清淤灰土回填2400m3已包含在总填方工程量中,不再单独计算。
4、路基6%灰土处理的边坡坡度不明?
回复:1:1.5。
5、挡墙、电排、交通、照明、排水处余土是否考虑利用?
回复:排水沟槽回填后余土考虑利用于道路路基,挡墙、电排、交通、照明处余土不考虑利用。
道路工程:
1、1+100处交口衔接如何处理?
回复:增设一道缘石,缘石做法参照人行道外缘石。
2、K3+00处北侧红线外设置挡墙,是否为45米长?挡墙按那种做法?挡墙垫层砼是C20还是C15?挡墙栏杆基座图与挡墙图冲突?钢边止水带规格不明?挡墙B2数值是否有误?挡墙泄水管规格是否需调整?
回复:按45m计,挡墙选用X3型,挡墙垫层为C20,取消栏杆基座设置;成品钢边止水带3×360mm,挡墙B2为0.4m,泄水管直径改为8cm。
3、路中交口是否施工至道路红线处?
回复:路中道口除图纸标明外,其他按红线外5米范围进行顺接,结构同机动车道路面结构。
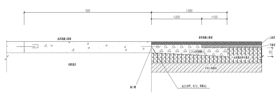
4、1+90处交口顺接顺接原路为砼结构,顺接做法不明?
回复:按刚柔接头做法进行顺接,详见下图:
5、侧石是否采用芝麻灰花岗岩?
回复:是。
6、道路二次过街是否按人行道做法实施?
回复:是。
7、路基边坡植草工程量不明,草皮品种不明?
回复:取消。
8、人行道砖采用何种材质?
回复:6cm厚仿石砖。
9、根据会议要求,树池盖板空隙处需撒布草籽,品种不明?
回复:综合计入树池工程内,采用马尼拉草籽,草籽用量15g/m2。
排水工程:
1、下图是指所有车行道下管道是否都填砼?
回复:仅指徽州大道交口处,破除现状徽州大道路面后的回填结构。
2、K2+00处雨水外接Y5-1无管径及管长。
回复:管径d600,长度9.6m。
3、K2+00处污水外接W3-1无管径及管长。
回复:管径d500,长度32.6m
交通工程:
1、设计说明:“在公交站点除设置盲道外,建议增设盲文站牌。在中心城区主要交叉口及残疾人活动中心处,建议增设盲文地图、盲文标志”无设计详图?
回复:取消。
2、交通工程保质期从何时开始计算?
回复:交通工程以移交交警部门后开始计算质保期。
照明工程
1、配电箱进线排管、电缆是否计入?
回复:配电箱进线电缆,配电箱进线高强度PE管,配电箱进线热镀锌焊接钢管计入。
2、路灯专用箱变如何考虑?
回复:需增设箱式变压器:包含变压器购安、设计、高压电缆、电源报装、箱变基础、接地、自动化远程控制系统、监理费等;变压器容量80kVA,SC11-80kVA, SC11-80kVA10(10.5)±2x2.5%/0.4kV,D/yn 11 UK=4.5%;按一套计入照明工程分部分项工程量清单中,投标单位需现场勘查现场进线接入点位置,自行报价,以后不再调整。
绿化工程
1、绿化工程苗木的养护等级、成活养护期、保存养护期不明?
回复:一级养护,成活养护期3个月,保存养护期21个月。
2、延安路与徽州大道交口绿化如何考虑?
回复:进行移植,在20km范围内移植位置由建设单位现场指定;清单控制价按乔木:胸径25-28cm 100株;色块:高度1米,面积800m2计入;其品种、数量、规格、种植密度施工单位自行勘查现场进行核对,以后不再调整,养护标准同新种植绿化,不考虑换填土,需保证苗木100%成活。
注:此补疑视同招标文件的组成部分,与招标文件具有同等法律效力。
2020年7月20日
三、附件
答疑发布日期:2020年07月20日