您现在的位置: 首页 >> 答疑变更 >> 安徽公共资源交易集团项目管理有限公司 >> 工程

项目编号:

项目名称:

一、原公告主要信息

     原项目名称: 庐江水西门景观附属工程

     原项目编号: 2020BFBGZ00200

     原公告日期: 2020年07月10日

二、公告内容(更正事项、内容及日期等)

    

庐江水西门景观附属工程招标文件补疑1

(项目编号:2020BFBGZ00200)

各投标人:

重要提示

1、人工费执行《关于贯彻执行2018版安徽省建设工程计价依据的通知》(合造价【201813号文)。其中定额人工费参与取费、取税,其相对于定额人工费增加的部分0元只计取税金。

2、本工程取费按“园林绿化工程取费标准”中“绿化、景观工程”的费率计取;其中土石方工程,其企业管理费率8%、利润率8%,措施项目费率和不可竞争费率按园林绿化工程相应费率乘0.6系数。

按业主要求,现对本项目招标工程量清单、最高投标限价编制作出如下补充:

第一部分:招标需求

一、招标范围:

本项目为1个标段,工程地点位于合肥市庐江县,主要建设内容有园林工程、绿化工程、配套设施施工等,本次招标范围见总平面图施工范围线内所有内容,包含绿化、景观、公共设施、雨水管道、雨水检查井、给水管道、喷灌系统、照明工程及其他零星工程等。

单位工程包括:

(一)土石方工程:包括挖、填、外弃、外借等所有内容;

(二)景观工程:含园路、铺装、侧石、景石、景墙、门楼、坐凳、汀步、廊架、树池、片山、旱喷、公共设施等设计图纸范围内的所有内容;

(三)绿化工程:种植土换填及苗木栽植养护等设计图纸范围内的所有内容;

(四)排水工程:含雨水、污水、废水管道、检查井等设计图纸范围内的所有内容;

(五)安装工程:室外景观电气照明;室外给水、喷灌系统;

(六)零星工程:采光井、钢楼梯、采光顶等内容。

二、暂定项目:

(一)以下项目按照业主要求,以暂定工程量计入分部分项工程量清单,投标人综合考虑报价,标后按实际工程量结算。

1、泥炭土:包括运输、回填、拌和等内容,以暂定量800m³计入土石方工程”单位工程分部分项清单中。

2、隐形井盖(采用整体成型石材形式,304系列不锈钢材质,底厚4mm4mm厚内框,4mm厚外框,井盖具体厚度要满足铺装要求,综合报价,中标后不得调整,面层同铺装面层):井盖尺寸700×700mm暂定120套、井盖尺寸1200×1200mm暂定65套、井盖尺寸1600×1600mm暂定71套计入景观工程”单位工程分部分项清单中。

3、砖砌雨水口:平篦式单篦雨水口,雨水口做法见图集16s5188,以暂定量20座计入排水工程”单位工程分部分项清单中。

4、雨、污、废水出户管:材质UPVC,尺寸DN100,包括沟槽开挖、回填、余方弃置及管道安装等内容,以暂定量1200m计入排水工程”单位工程分部分项清单中。

5、PE40管:包括沟槽开挖、回填、余方弃置及管道安装等内容,以暂定量350m计入安装工程”单位工程分部分项清单中。

(二)本项目暂列金额:无

三、按项列入清单的内容,标后不予调整:

1、临时用水用电接引:包括自来水开口费、接引费、自备发电机、供电报装费、变压器架设的主材及安装等全部费用,如不具备水电接引到位的情况,投标人应自行解决水电问题,以满足施工需要,按1项列入景观工程”单位工程分部分项清单中,控制价按20000元计入,投标人自行踏勘现场,综合考虑报价,中标后不予调整。

2、各种现有杆、管线支撑、保护、加固等:中标单位制定加固保护措施,施工单位如果在施工过程中造成地上地下杆管线损坏,恢复及维修费用由施工单位自行负责,按1项列入景观工程”单位工程分部分项清单中,控制价按20000元计入,投标人自行踏勘现场,综合考虑报价,中标后不予调整。

3、配合各种管线施工费:投标人须积极配合招标范围内各种管线施工,严格按照招标人要求做好各项配合工作,按1项列入景观工程”单位工程分部分项清单中,控制价按20000元计入,投标人自行踏勘现场,综合考虑报价,中标后不予调整。

4、建筑垃圾、生活垃圾清运:包含施工范围内存在的建筑垃圾、生活垃圾,按1项列入景观工程”单位工程分部分项清单中,控制价按30000元计入,投标人自行踏勘现场,综合考虑报价,中标后不予调整。

5、管道无缝连接:现状管道与新建管道无缝连接、雨污水管等外接需破除和修复市政道路接引点的,相关费用及破复手续的办理由投标人负责,按1项列入排水工程”单位工程分部分项清单中,控制价按50000元计入,投标人自行踏勘现场,综合考虑报价,中标后不予调整。

四、补充图纸及修改图纸的说明:

本工程在第一次发放图纸后,有补充图纸,具体详见图纸目录。

五、总承包服务费:无。

六、温馨提示:

投标人投标报价还须仔细阅读本项目招标文件,慎重报价。

七、业主提示:

1、所有管道的覆土厚度不满足规范要求时,投标人需按照相关规范采取保护措施,所产生费用含在投标报价中,清单不单独列项,中标后不予调整。

第二部分:设计文件及技术补充说明

一、景观工程

1、本项目所有铺装需在混凝土基层中安装钢筋网片,设置间距20×20cm,钢筋直径6.5mm

2、沥青道路下200mm厚碎石垫层调整为400mm厚碎石垫层。

3、本项目所有铺装面砖由原设计40mm厚的调整为25mm(仿古青砖、青瓦、老枕木、小青砖厚度不作调整)。

4、本项目所有铺装垫层、基层由原设计20cmC20+20cm厚级配碎石调整为10cmC20+15cm厚级配碎石。

5、外弃土方,弃土场、弃土运距、渣土费、外借土方,取土场、借土运距、土源费如何考虑?

答复:外借及外运的取弃土场、取弃土场场内便道、取土场清表、运距、土源费、渣土费、保洁费用等由投标人自行踏勘现场后确定,弃土须随挖随运,不得堆放于施工现场。清单控制价中的运土距离按照25KM考虑,实际运距投标人现场勘察后在投标报价中综合考虑,中标后不予调整。

6、本次招标室外是否存在挖填方?

答复:存在,室外铺装、室外道路、室外绿化用地范围内的高程已由总包单位实施至比完成面高程低20cm处(室外铺装、室外道路需考虑结构层挖方,结构层挖方可利用在合院外围缺方处);合院外围存在填方12454.2m3,挖方315.1m3(挖方考虑利用)。

7、图纸《图号LD-01》沥青路基础做法中请明确①粘层品种、②封层材料品种是否有误?③透层每平方米用油量、④混凝土基层是否需要设置横缝?

答复:①粘层采用乳化沥青PC-3,用油量0.5L/m2;②封层采用稀浆封层ES-2型,厚度5mm;③0.7-1.5L/m2;④需要设置,每4米设置一道横缝,缝宽为5mm,缝深为基层厚度的1/4,缝内填普通沥青。

8、图中铺装面层材料标注是否有误?是否应为300×300×40荔枝面芝麻灰花岗岩?

答复:标注有误,应为100×100×25荔枝面芝麻灰花岗岩。

9、 平面图中仿古青砖厚度为50mm,图例中仿古青砖厚度为30mm,请复核。

答复:正确尺寸为200×30×40()

10、 平面图中青瓦厚度为50mm,图例中青瓦厚度为40mm,请复核。

答复:正确尺寸为200×30×40()

11、厚度50mm是否有误?

答复:有误,本次招标范围内花岗岩铺装面层厚度全部为25mm

12、 请明确图中两种压边材质颜色有何区别?

答复:上左图不带填充的压边,均按芝麻黑花岗岩考虑;上右图带填充的压边,均按芝麻灰花岗岩考虑。

13、广场铺装混凝土基础是否考虑设置纵横缝?若考虑,请明确①纵横缝设置间距、②切缝深度、③填缝材料。

答复:需要设置,①4m×4m分块做缝;②缝宽为5mm,缝深为基层厚度的1/4;③缝内填普通沥青。

14、请明确混凝土仿旧石板、老枕木、小青砖、花岗岩雕花老石板、仿古青砖、青瓦、抛光卵石立铺及抛光卵石散置的基础结构做法是否均参照图纸中《通用大样图-广场基础做法》?

答复:是的。

15、请明确汀步石材质厚度。

答复:荔枝面芝麻灰花岗岩1000×500×100mm()

16、请明确①老枕木厚度、②小青砖厚度。

答复:①老枕木厚度100mm;②小青砖厚度40mm

17、图中箭头所指处是否为种植池?

答复:否,应为路牙石,具体做法见图纸《图号LD-01》中路牙石立面图。

18、箭头处停车位是否在本次招标范围?

答复:图中停车位在红线范围外,不在本次招标范围。

19、箭头处为何物?是否在本次招标范围?

答复:不在本次招标范围。

20、箭头所指处位于图纸《图号ZT-02-17》处,请明确图中该处种植池型号。

答复:按种植池1(图号LD-01-7)型号考虑。

21、左图为种植池1剖面图,请明确青筒瓦内是否需要填混凝土?若需要,混凝土强度等级如何考虑?

答复:箭头处需要填混凝土,混凝土强度等级按C20砼。

22、请明确原木廊架立柱基础做法。

答复:具体做法见图纸《旱喷,原木廊架基础详图》中原木廊架基础。

23、请明确图中①箭头处高度如何考虑?②KZ1结构混凝土强度等级?

答复:①高度850mm;②C30砼。

24、请提供铜制栓马柱180×180×1200mm及铜制栓马柱250×250×1800mm基础尺寸。

答复:铜制栓马柱180×180×1200mm:级配碎石垫层280×280×50mm+C25砼基础280×280×280mm;铜制栓马柱250×250×1800mm:级配碎石垫层350×350×50mm+C25砼基础350×350×350mm

25、图中桌凳是否在本次招标范围?若在,请提供桌凳材质尺寸。

答复:在本次招标范围,休憩桌凳材质为藤制,一个桌子配四把椅子(桌子1.5×2×0.5m,椅子1×1×0.45m),成品采购放置。

26、图纸《总平面图》中组合条石设置部位与图纸《雕塑大样图-组合条石平面图》中组合条石设置部位不相符,请复核。

答复:以大样图为准。

27、图纸《总平面图》中组合景墙设置部位与图纸《组合景墙大样图一-组合景墙平面图》中组合景墙设置部位不相符,请复核。

答复:以大样图为准。

28、请明确图纸《景墙基础详图》中景墙基础一及景墙基础二混凝土强度等级。

答复:均为C25砼。

29、请明确图纸《组合景墙大样图一》中景墙3墙身砌筑材料品种。

答复:M7.5水泥砂浆砌筑MU10砖。

30、左图为景墙3剖面图,请明确①箭头处高度(900mm)是否有误?②图中标注景墙砌体宽度(240mm)是否有误?

答复:①高度有误,正确高度应为500mm;②宽度有误,正确宽度应为250mm

31、请完善旱喷基础结构做法。

答复:旱喷基础做法及配筋要求见图纸《旱喷,原木廊架基础详图》。

32、本次招标范围是否只存在三处门楼?

答复:是的。

33、垃圾桶及休闲坐凳基础做法如何考虑?

答复:垃圾桶不在本次招标范围;休闲坐凳成品采购,由厂家统一安装(含基础),需满足设计及相关规范要求。

34、请提供①泵坑尺寸、②泵坑井壁外侧砌体材料品种。

答复:①2100mm()×2100mm()×1200mm();②M7.5水泥砂浆砌筑MU10砖。

35、平面图中未标识出植物组团镶边的具体实施位置,请明确具体实施部位。

答复:箭头处填充图案为小卵石(粒径1cm)面层,小卵石面层四周为瓦当镶边,具体做法见图纸《树池大样图-镶边基础做法》。

36、图中景石材质与绿化工程中景石材质不一致,请复核。

答复:本工程景石工程量及材质以绿化图纸为准。

37、左图数量表中拴马柱数量为四组,平面图中拴马柱数量为两组,请复核。

答复:拴马柱数量按四组考虑。

二、门楼1

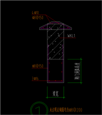
38、 wkl1结构图中下部至洞口为混凝土,建筑图2-2节点剖面图中为砖砌体,以哪个为准?

答复:内部结构做法,以结构图为准。

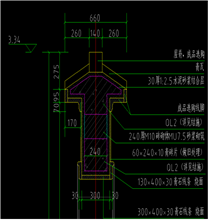
39、GZ1尺寸与结构图KZ1尺寸不一致,请明确尺寸,如以GZ1尺寸为准请补充配筋。

答复:GZ1为装饰面层做法,KZ1为混凝土结构断面,混凝土结构尺寸均相同,以KZ1为内部结构做法。

40、成品线脚、屋脊、挂耳、上访、木匾额、材质和厚度请明确。

答复:挂耳,上访、木匾额为芬兰木做旧处理。脚线为GRC脚线。

三、门楼2

41、 GZ1GZ2尺寸与结构图KZ1KZ2不一致,请明确尺寸,如以GZ1GZ2尺寸为准请补充配筋。

答复:以GZ1GZ2为准,详见最新结构施工图。

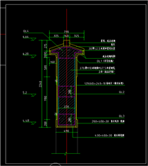
42、结构图WKL1尺寸400*750WKL2尺寸240*575,但4-41-1剖面图中为砌体结构,是否以结构图为准?

答复:以结构图为准。

43、1-1剖面图中QL2结施中未描述,请补充。

答复:QL代表圈梁,QL1=WKL1, QL2=WKL2

44、砌筑砂浆是否为水泥砂浆?

答复:是的。

四、门楼3

45、2-2剖面图中DL1尺寸中结构图未描述,请补充。

答复:详见最新结构施工图。

46、 wkl1结构图中下部至洞口为混凝土,建筑图4-4节点剖面图中为砖砌体,以哪个为准?

答复:以结构图为准。

五、排水工程

47、本项目雨水口球墨铸铁箅子调整为不锈钢雨水箅子,雨水篦具体要求根据现场进行优化。

48、沟槽挖方是否考虑利用?

答复:考虑利用。

49、管径>500mm时选用II级钢筋混凝土平口管还是II级钢筋混凝土承插管?

答复:采用钢筋混凝土II级承插管,橡胶圈接口,接口做法见图集04S51623

50、请提供①HDPE双壁波纹管基础做法及基础以上沟槽回填填料品种、②混凝土管道基础以上沟槽回填填料品种。

答复:①10cm中粗砂垫层,垫层至管顶以上10cm范围采用中粗砂回填,管顶10cm以上采用素土回填;②素土。

51、DE200雨水连接管材质是否为HDPE双壁波纹管(环刚度为8KN/m2)?

答复:是的。

52、本次招标范围是否存在雨水收集系统?若存在,请补充相关图纸。

答复:不存在。

53、请明确①位于绿地处检查井井盖座是否采用五防轻型球墨铸铁井盖座(B200)?②位于非绿地处检查井井盖座是否采用五防重型球墨铸铁井盖座(D400)?

答复:①否,位于绿地处井盖采用草坪井盖;②采用双层井盖,五防重型球墨铸铁井盖座(D400)上加隐形井盖(隐形井盖做法见图纸《检修井盖大样图》)。

54、图纸说明“道路雨水口应采用带沉泥室的井座”,该段说明为何意?

答复:此条删除,按图集选用雨水口即可。

55、本次招标范围内的雨水口及检查井是否均考虑加固?

答复:位于消防车道及停车位上的雨水口及检查井井圈考虑加固,雨水口加固做法见图集皖2015S20993,检查井井圈加固做法见图集皖2015S20983

56、请明确平篦式单篦雨水口做法参照图集16S518那一页?

答复:第8页。

57、雨水、污水及废水管道是否均考虑做闭水试验?

答复:是的。

58、箭头处管道是否为新建管道?若是,请提供该段管道材质尺寸。

答复:按新建管道考虑,d600钢筋混凝土II级承插管。

59、图中箭头所指处均为雨水管,为何一处管道用虚线表示,一处管道用实线表示?

答复:排水平面图中虚线代表新建管道,实线代表现状管道。

60、请提供图中跌水井结构做法。

答复:见图集02S515104

61、图中管道是否在本次招标范围?

答复:不在本次招标范围。

62、本次招标范围是否存在燃气调压阀?

答复:不存在。

63、图中化粪池是否在本次招标范围?

答复:图中化粪池为现状化粪池,不在本次招标范围。

64、类似图中新建管道接入现状检查井时,现状检查井是否考虑拆除新建?

答复:否,现状检查井保留利用。

65、请提供化粪池及隔油池具体结构做法。

答复:化粪池做法参照图集03S702(型号G10-40SQF),隔油池做法参照图集04S519(型号GG-3SF)。

六、绿化工程

66、请明确绿化养护等级及养护期。

答复:绿化成活养护期3个月,保存养护期21个月,养护等级一级。

67、树穴挖方是否考虑利用?

答复:考虑利用。

68、本项目苗木工程量是否按苗木表计入?

答复:是的。

69、绿化栽植色带、乔灌木树穴是否考虑掺入腐熟饼肥?若考虑,每平方米色带掺入多少腐熟饼肥?每个树穴掺入多少腐熟饼肥?

答复:考虑,每平方米色带考虑掺入0.25kg,每个树穴考虑掺入0.5kg

70、灌木树穴及乔木树穴是否考虑掺入泥炭土?若考虑,请明确掺入比例。

答复:考虑,种植土按掺入30%泥炭土考虑。

71、灌木及乔木支撑如何考虑?

答复:灌木按扁担撑,乔木按井字撑,具体满足合肥市绿化施工导则及相关规范要求。

72、紫竹栽植密度是否按每平方米25株考虑?

答复:是的。

73、苗木运输、栽植损耗如何考虑?

答复:投标人需综合考虑由于损耗引起的相关费用,综合考虑报价,中标后不予调整。

七、景观照明

74、配电箱AP-PS箱是否均为落地安装?请提供配电箱基础做法。

答复:落地安装,做法参照照明配电箱基础做法。

75、AP-PS箱出线回路的敷设方式是顶面、墙内暗敷是否有误?

答复:埋地暗敷。

76、排水泵配电系统图设计排水泵2台,图例表中循环泵为1个,是否有误?

答复:以水专业数量为准,数量为1台。

77、请问开关电源设置在何处?开关电源的规格型号?电源后电缆穿管的规格型号。

答复:本项目所选灯具均为220V,无开关电源。

78、电缆管道埋设是否有回填要求。

答复:有。配线管道沟的规格按照设计图施工,原土回填。回填时应注意管道顶部30cm以内及管道两侧的回填土内不应含有直径大于5cm的砾石、碎砖等坚硬物;每回填30cm厚应用木夯排夯两遍,直至回填、夯实与地表平齐。

79、请提供景观射灯、灯箱、筒灯基础做法大样图。

答复:专业厂家给图纸,基础包含在灯具中综合报价。

80、景观电气安装大样图中灯具安装是否全部预留防水接线盒100*100*40

81、答复:全部预留防水接线盒100*100*40

八、室外喷灌给水

82、室外给水是否计至接市政给水阀门井处(含阀门)。

答复:室外给水灌溉直接从室外给水管网上取水,两者图纸重新整合,全部计入本次招标范围。图中箭头所示给水管已施工,本次不计入,其余均从阀门后计入(不含阀门)。

83、景观循环泵是否在此次招标范围内?

答复:是。

84、室外给水灌溉直接从室外给水管网上取水,请明确灌溉给水管道材质以及连接方式。

答复:PE 80,热熔连接。

85、请提供音乐喷泉图纸及相关设备参数?

答复:不在本次招标范围。

九、室外供水管网

86、室外给水是否在本次招标范围?若在,请补充给水管网材质、连接方式、埋设深度、回填方式等设计说明。

答复:在本次招标范围。室外埋地生活给水管采用钢丝网骨架塑料复合管,管道连接采用电热熔连接。管道压力等级1.60Mpa。钢丝网骨架聚乙烯塑料复合管:采用砂垫层基础,基础做法及管槽开挖及回填参见10S507《建筑小区埋地塑料给水管道施工》第40页做法。埋设深度按0.8米计入。

87、接单体未标注管道规格型号。

答复:详见单体楼图纸。

88、单体未设计水表数量、规格型号?水表具备哪些功能要求?

答复:水表型号比管径低一级,如DN50管道设LXS-40C水表。水表具备远传功能的智能水表。

89、水表井的做法。

答复:DN50以下的水表井,单个井内不超过6块表,尺寸1000*500*500,砖砌。

90、单体楼进户管道管径与室外图纸管径不一致 以哪个为准。

答复:以单体楼为准。

91、室外给水图中水表后的入户支管的管材材质也是钢丝网骨架增强聚乙烯复合管吗?

答复:是钢塑管。

92、室外给水图中阀门井与水表井井盖材质是否为普通铸铁井盖?

答复:是。

十、零星工程

93、采光井玻璃采光顶各单体无尺寸及详细做法?

答复:按照附件尺寸,计算面积为249.63m2,玻璃采用8+1.14PVB+8钢化夹胶玻璃,固定件自行优化报价,中标后不予调整。

94、采光井下百叶各单体无具体尺寸图及做法?

答复:面积按149.76m2,壁厚按1.2mm,成品百叶,综合报价,中标后不予调整。

95、采光顶处钢柱、钢梁表面氟碳漆做法不明确。

答复:氟碳漆一底两面。

注:此补疑视同招标文件的组成部分,与招标文件具有同等法律效力。

 

                                                                  2020710

三、附件

      答疑发布日期:2020年07月10日