您现在的位置: 首页 >> 答疑变更 >> 安徽公共资源交易集团项目管理有限公司 >> 工程
一、原公告主要信息
原项目名称: 2019老旧小区改造、2018老旧小区改造剩余部分、南区公交站场维修改造工程施工
原项目编号: 2020BFJGZ00062
原公告日期: 2020年07月01日
二、公告内容(更正事项、内容及日期等)
2019老旧小区改造、2018老旧小区改造剩余部分、南区公交站场维修改造工程
招标工程量清单、最高投标限价编制补疑
项目编号:2020BFJGZ00062-补1
各投标人:
对本项目招标文件补充如下:
重要提示
1、人工费执行《关于贯彻执行2018版安徽省建设工程计价依据的通知》(合造价【2018】7号文)。其中定额人工费参与取费、取税,其相对于定额人工费增加的部分 / 元只计取税金。
2、本工程取费按“ 建筑 工程取费标准”中“ 民用建筑 ”的费率计取;其中房屋建筑中挖或填土石方量大于5000m3的大型土石方工程,其企业管理费率8%、利润率8%,措施项目费率和不可竞争费率按房屋建筑工程相应费率乘0.6系数。
按业主要求,现对本项目招标工程量清单、最高投标限价编制作出如下补充:
第一部分:招标需求
一、招标范围:
本项目位于合肥经济开发区,涉及始信花园、方兴南(北)园、芙蓉社区翠微南(北)园、锦绣社区桃源小区、海恒社区康利B区、福禄南园、锦绣社区紫云花园、海恒社区枣庙园及南区公交场站的维修改造工程。主要工程内容包括:(1)改造、翻新始信花园、方兴南(北)园道路、雨污水管网(不含方兴北园)、阳台水(不含方兴北园)、弱电、照明、智能化、安防设施(含智慧小区建设)、消防设施、环卫设施等;翻新始信花园外立面、屋面防水,修缮方兴居委会居民活动中心内部装饰、外立面等;(2)芙蓉社区包含翠微南园部分单体屋面防水、楼道和外立面粉刷、非机动车棚改造;翠微北园永红幼儿园东侧围墙外硬化、团结路增加沥青路面等内容;(3)锦绣社区新增桃源小区围墙翻建、蓬莱花园围墙及减速带等内容;(4)海恒社区康利B区新增车棚、福禄南园地下车库改造及雨棚等内容;(5)2018老旧小区改造锦绣社区紫云花园剩余工程;海恒社区枣庙园改造剩余工程;(6)南区公交场站维修改造项目:卧云站和临湖站改造,主要内容有卧云站室外附属配套场地改造工程,临湖站新建门卫室2个、卫生间改造1个及室外附属配套场地改造工程。(7)出口加工区内、外部提升项目绿篱工程
(一)方兴北园
1、建筑工程:包含拆除部分、铺装工程、机动车与非机动车停车位、小区道路硬化、树池、小品警示牌、楼道粉刷(1、2、3层及顶层为过道、楼梯间墙面粉刷,其他楼层过道墙面粉刷)及围墙新建及改造、车库改造、幕墙维修、百叶窗维修、各类管线整理、已建各类检查井升降、加固及井盖座更换、水电接引等,具体详见设计图纸、招标文件及本招标文件补遗;
2、绿化工程:包含绿地整理;绿化移植、栽植苗木等;
3、排水工程:雨、污水检查井、排水管道、化粪池清淤、车库排污泵等
4、安装工程:包含楼梯间照明工程、智能化工程、充电桩管道预埋、弱电线路整理、楼道内表箱洁化、电梯按钮更换、雨水管改造、完善消防设备等;
补充说明:
图纸上已设计,但不计入本次招标范围的有:
1)普通垃圾桶不在本次招标范围;
2)充电桩不在本次招标范围。
(二)方兴居民活动中心
1、建筑工程:包含拆除部分、铺装工程、乳胶漆面积、瓷砖改铝塑板、强化地板、入口铭牌、新建透水混凝土地面、侧石、花池、屋面防水、外墙砂浆、已建各类检查井升降、加固及井盖座更换、水电接引等,具体详见设计图纸、招标文件及本招标文件补遗;
补充说明:
图纸上已设计,但不计入本次招标范围的有:无
(三)方兴南园
1、建筑工程:包含拆除部分、铺装工程、机动车与非机动车停车位、小区道路硬化、树池、小品警示牌、楼道粉刷(1、2、3层及顶层为过道、楼梯间墙面粉刷,其他楼层过道墙面粉刷)、围墙新建及改造、车库改造、幕墙维修、百叶窗维修、各类管线整理、已建各类检查井升降、加固及井盖座更换、水电接引等,具体详见设计图纸、招标文件及本招标文件补遗;
2、绿化工程:包含绿地整理;绿化移植、栽植苗木等;
3、排水工程:雨、污水检查井、排水管道、化粪池清淤等
4、安装工程:包含楼梯间照明工程、路灯工程、智能化工程、充电桩管道预埋、弱电线路整理、楼道内表箱洁化、电梯按钮更换、雨水管改造、完善消防设备等;
补充说明:
图纸上已设计,但不计入本次招标范围的有:
1)普通垃圾桶不在本次招标范围;
2)充电桩不在本次招标范围。
(四)始信花园
1、建筑工程:包含拆除部分、铺装工程、机动车与非机动车停车位、非机动车碰维修、小区道路硬化、树池、小品警示牌、健身器材、建筑外立面改造、屋面防水修复、屋面瓦更换、阳台封闭、楼道粉刷及栏杆喷漆、楼梯走道墙面、围墙、树池、新建门卫室、更换铁艺门、各类管线整理、太阳能移位及重新安装建筑工程、已建各类检查井升降、加固及井盖座更换、水电接引等,具体详见设计图纸、招标文件及本招标文件补遗;
2、绿化工程:包含绿地整理;栽植地被植物、场区内移栽苗木等;
3、排水工程:雨、污水检查井、排水管道;其他雨水及污水设施等。
4、安装工程:包含楼梯间照明工程、路灯工程、智能化工程、三网通信工程预埋管及手孔井、充电桩管道预埋、弱电线路整理、楼道内表箱洁化、电梯按钮更换、雨水管改造、完善消防设备等;
补充说明:
图纸上已设计,但不计入本次招标范围的有:
1)普通垃圾桶不在本次招标范围;
2)充电桩不在本次招标范围;
3)三网通信工程设备及配线不在本次招标范围;
(五)紫云花园
1、建筑工程:包含拆除部分、新建非机动车库、铺装工程、机动车与非机动车停车位、小区道路硬化、树池、小品警示牌、建筑外立面改造、屋面防水修复、楼道粉刷及栏杆喷漆、楼梯走道墙面、楼栋单元户号牌、围墙、挡土墙、出入口景墙、单元进户门更换、各类管线整理、太阳能移位及重新安装建筑工程、已建各类检查井升降、加固及井盖座更换、水电接引等,具体详见设计图纸、招标文件及本招标文件补遗;
2、绿化工程:包含绿地整理;栽植地被等;场区内移栽苗木等
3、排水工程:雨、污水检查井、排水管道;其他雨水及污水设施等。
4、安装工程:包含楼梯间照明工程、路灯工程、智能化工程、三网通信工程预埋管及手孔井、充电桩管道预埋、弱电线路整理、完善消防设备、垃圾集中收集点给排水工程、非机动车库安装工程等;
补充说明:
图纸上已设计,但不计入本次招标范围的有:
1)充电桩不在本次招标范围;
2)三网通信工程设备及配线不在本次招标范围;
(六)芙蓉社区老旧小区改造增补
1、建筑工程:包含拆除部分、铺装工程、扩建非机动车库、翻新非机动车库、小区道路硬化、树池、建筑外立面改造、屋面防水修复、楼道粉刷及栏杆喷漆、楼梯走道墙面、围墙、挡土墙、各类管线整理、太阳能移位及重新安装建筑工程、已建各类检查井升降、加固及井盖座更换、水电接引等,具体详见设计图纸、招标文件及本招标文件补遗;
2、绿化工程:包含绿地整理;栽植地被等;场区内移栽苗木等;
3、排水工程:雨检查井、雨水管道等。
补充说明:
图纸上已设计,但不计入本次招标范围的有:无
(七)锦绣社区(蓬莱花园、桃园小区)新增改造
1、建筑工程:包含拆除部分、小区场地硬化、围墙、挡土墙、河道清理等,具体详见设计图纸、招标文件及本招标文件补遗;
2、绿化工程:包含绿地整理;栽植地被等;场区内移栽苗木等
补充说明:
图纸上已设计,但不计入本次招标范围的有:无
(八)枣庙园2期
1、建筑工程:包含拆除部分、成品岗亭、铺装工程、机动车与非机动车停车位、小区道路硬化、小品警示牌、院墙外立面改造、屋面防水修复、楼道粉刷及栏杆喷漆、楼梯走道墙面、楼栋单元户号牌、围墙、单元进户门、各类管线整理、已建各类检查井升降、加固及井盖座更换、水电接引等,具体详见设计图纸、招标文件及本招标文件补遗;
2、安装工程:包含路灯工程、智能化工程、三网通信工程预埋管及手孔井、完善消防设备、垃圾集中收集点给排水工程、排水系统改造、非机动车库安装工程、门卫安装工程等;
补充说明:
图纸上已设计,但不计入本次招标范围的有:
1)平屋面、檐口修缮不在本次招标范围;
2)住宅楼及南侧商业街北侧建筑立面改造不在本次招标范围;
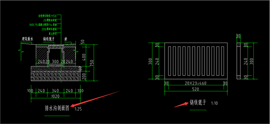
3)排水沟不在本次招标范围;
4)绿化不在本次招标范围;
5)三网通信工程设备及配线不在本次招标范围;
(九)海恒社区增补项目
1、建筑工程:包含拆除部分、新建康利B新建非机动车棚、福禄南园地下车库改造及入库坡道雨棚新建、康利园若干门面房背立面改造、海恒各小区入口宣传栏新建、福禄园3期单元入口非机动车位铺装、康利B园两个室外人行坡道不锈钢栏杆增设等,具体详见设计图纸、招标文件及本招标文件补遗;
2、安装工程:包含非机动车棚安装工程、污水立管改造、福禄南园地下车库道闸等;
图纸上已设计,但不计入本次招标范围的有:
1)福禄南园5、7、8、9#楼,非机动车坡道雨棚不计入。
(十)合肥经开区公交站场维修改造
1、建筑工程:包含拆除部分、门卫室工程、道路翻新、人行铁艺门、铸铁滑门、排水沟、停车位划线、洗车池等,具体详见设计图纸、招标文件及本招标文件补遗;
2、排水工程:雨、污水检查井、排水管道;其他雨水及污水设施等。
3、安装工程:包含路灯工程、监控工程、给水工程、强电预埋管、卫生间改造安装工程、门卫安装工程等;
补充说明:
图纸上已设计,但不计入本次招标范围的有:无
(十一)出口加工区内、外部环境提升工程
1、绿化工程:包含绿地整理;栽植地被等;
补充说明:
图纸上已设计,但不计入本次招标范围的有:无
二、暂定项目:
(一)以下项目按照业主要求,以暂定工程量计入分部分项工程量清单,投标人综合考虑报价,标后按实际工程量结算。
1、无
(二)以下项目按照业主要求,暂列金总额为100万元,计入始信花园改造工程(土建)单位工程:
投标人应按招标人所列的金额计入投标总价。
(三)执行暂估价的材料、设备、专业工程及其金额如下:
1、无
三、按项列入清单的内容,标后不予调整:
以下项目按照业主要求,按项计入,投标人自行踏勘现场,综合考虑报价,中标后不予调整。
1、项目名称:已建各类需升降检查井、加固及破损井盖座更换(涉及本工程人行道、停车位、景观等部位):检查井升降加固做法满足设计及建设单位要求,井盖座均更换为“五防”重型球墨铸铁井盖座,按一项分别列入含方兴北园、方兴居民活动中心、方兴南园、始信花园、紫云花园、芙蓉社区老旧小区改造增补工程、锦绣社区新增改造、枣庙园2期、海恒社区增补项目、合肥经开区公交站场维修改造土建工程分部分项工程量清单中,投标人根据图纸并结合现场踏勘情况后综合考虑报价,一次性包死,结算时不再调整。
2、项目名称:施工范围内需拆除的工程(不含现状路面、铺装、停车位及侧石等拆除),设计图纸施工范围内各种拆除工程,包含拆除后的房屋砼地坪及基础;各类附属结构物、建筑物、排水管道、管道基础、检查井、排水渠、排水沟等;护坡、挡墙、广告牌、宣传栏、大门、各类围挡、台阶、踏步、杆线基础、设备基础、伐树、各类树根、原非机动车库、门头立柱、GRC构件等,所涉及的一切费用,按一项分别列入含方兴北园、方兴居民活动中心、方兴南园、始信花园、紫云花园、芙蓉社区老旧小区改造增补工程、锦绣社区新增改造、枣庙园2期、海恒社区增补项目、合肥经开区公交站场维修改造土建工程分部分项工程量清单中,投标人根据图纸并结合现场踏勘情况后综合考虑报价,一次性包死,结算时不再调整。
3、项目名称:道路衔接:新建路面与已建路面衔接等,包含路基拆除、外运、挖台阶、铺设土工合成材料、基层、面层铺筑、压实等全部内容,所涉及的一切费用,按一项分别列入含方兴北园、方兴居民活动中心、方兴南园、始信花园、紫云花园、芙蓉社区老旧小区改造增补工程、锦绣社区新增改造、枣庙园2期、海恒社区增补项目、合肥经开区公交站场维修改造土建工程分部分项工程量清单中,投标人根据图纸并结合现场踏勘情况后综合考虑报价,一次性包死,结算时不再调整。
4、项目名称:楼外墙面、楼梯走道墙面、各类管线整理等:楼外墙面丶楼梯走道墙面,各种管线整理,要求:不影响墙面施工,不影响使用功能,整理后横平竖直,视觉美观,具体满足设计及建设单位要求,按一项分别列入含方兴北园、方兴居民活动中心、方兴南园、始信花园、紫云花园、芙蓉社区老旧小区改造增补工程、锦绣社区新增改造、枣庙园2期、海恒社区增补项目、合肥经开区公交站场维修改造土建工程分部分项工程量清单中,投标人根据设计图纸并结合现场踏勘情况后综合考虑报价,一次性包死,结算时不再调整。
5、项目名称:水电接引,本工程水电接引费用(含临时变压器及临时水表的购买及架设、报装费以及与供电、供水部门协调开通、下火以及报装期间、水电接引完成之前的发电机发电等一切费用)由投标单位自行踏勘现场后,自行架设,水电接引方案必须符合临时用电相关要求及招标人同意后才可以实施,建设单位会同监管部门定期检查,所产生的一切费用按一项分别列入含方兴北园、方兴居民活动中心、方兴南园、始信花园、紫云花园、芙蓉社区老旧小区改造增补工程、锦绣社区新增改造、枣庙园2期、海恒社区增补项目、合肥经开区公交站场维修改造土建工程分部分项工程量清单中,投标人根据施工方案和图纸并结合现场踏勘情况综合考虑报价,一次性包死,结算时不再调整,并确保移交验收。
6、项目名称:新建排水管道接入现状排水管网,包含管道沟槽土方挖、填、弃、检查井井壁开孔、修复及施工引起的路面破除、恢复等全部工作内容,按一项分别计入有排水工程小区雨污水工程分部分项工程量清单中,投标人根据设计图纸并结合现场踏勘情况后综合考虑报价,一次性包死,结算时不再调整。
7、项目名称:破除恢复现状道路、绿化等市政设施费用,包含新建给水、雨污水管道、电气管道等需要破除现状道路、绿化等市政设施,施工完成后均需原状恢复,按一项分别列入含方兴北园、方兴居民活动中心、方兴南园、始信花园、紫云花园、芙蓉社区老旧小区改造增补工程、锦绣社区新增改造、枣庙园2期、海恒社区增补项目、合肥经开区公交站场维修改造土建工程分部分项工程量清单中,投标人根据设计图纸并结合现场踏勘情况后综合考虑报价,一次性包死,结算时不再调整。
8、项目名称:智慧工地建设平台,按照智慧工地建设指南要求配齐相应设备。智慧工地建设费用按一项列入方兴南园改造工程(土建)工程分部分项工程量清单中,根据现场实际情况满足项目要求综合考虑报价,该项费用包干使用,中标后不予调整。
四、补充图纸及修改图纸的说明:
本工程在第一次发放图纸后,补充图纸,具体详见图纸目录。
五、总承包服务费:无
六、甲控材:
| 单体名称 |
甲控材名称 |
含税综合单价(元/m2) |
不含税综合单价 |
工程量(m2) |
合价(元) |
备注(写使用部位) |
| 方兴北园 |
大分割颗粒状装饰砂浆 |
76.34 |
69.4 |
2112.29 |
146592.93 |
围墙 |
| 方兴居民活动中心改造工程 |
大分割颗粒状装饰砂浆 |
76.34 |
69.4 |
1500 |
104100.00 |
外立面 |
| 方兴南园 |
大分割颗粒状装饰砂浆 |
76.34 |
69.4 |
2426.03 |
168366.48 |
围墙 |
| 始信花园 |
大分割颗粒状装饰砂浆 |
76.34 |
69.4 |
50271.08 |
3488812.96 |
门卫、挡墙及围墙、外立面 |
| 仿石材条纹状装饰砂浆 |
95.9 |
87.18 |
17040 |
1485547.20 |
外立面 |
|
| 真彩仿石材形颗粒状装饰砂浆 |
161.64 |
146.95 |
1180 |
173401.00 |
外立面 |
|
| 大分割条纹状装饰砂浆(不可竞争) |
103.66 |
94.24 |
1200 |
113088 |
外立面 |
|
| 始信花园 |
Bituflex20B水性沥青橡胶高弹防水涂料(内置DV110 聚酯布)液体卷材系统 |
114.3 |
103.91 |
23880 |
2481370.80 |
屋面 |
| Ruflex 20D水性非塑化丙烯酸防水涂料(内置DV110 聚酯布)液体卷材系统 |
170.3 |
154.82 |
23880 |
3697101.60 |
屋面 |
|
| 紫云花园 |
大分割颗粒状装饰砂浆 |
76.34 |
69.4 |
150950.57 |
10475969.56 |
门卫、挡墙及围墙、车库、外立面等 |
| 芙蓉社区 |
大分隔颗粒状装饰砂浆 |
76.34 |
69.4 |
17034.39 |
1182186.67 |
门卫、挡墙及围墙、车库、外立面等 |
| 锦绣社区 |
大分隔颗粒状装饰砂浆 |
76.34 |
69.4 |
706 |
48996.40 |
门卫、挡墙及围墙、车库、外立面等 |
| 栆庙园二期 |
大分隔颗粒状装饰砂浆 |
76.34 |
69.4 |
1207.53 |
83802.58 |
围墙 |
| 海恒社区增补项目 |
大分隔颗粒状装饰砂浆 |
76.34 |
69.4 |
2959.37 |
205380.28 |
非机动车棚、外立面 |
|
|
合 计 |
|
|
|
23854716.45 |
|
以上甲控材控制价按上述不含税综合单价(不含税综合单价包含施工费、不含税主材费、安全教育、安全管理;并提供材料堆放场所、提供脚手架、垂直运输等与之相关的一切费用)计入各单体单位工程分部分项工程清单中。该单价依据合经区重点局与相关单位签订的合作协议执行,属于战略合作框架协议施工的报价不得优惠。投标人应充分调研此部分材料供货价格,投标报价应考虑施工费(快可美价格含施工)、管理费、利润、配合费等其它全部费用,中标后不得提出各种形式的索赔。
七、温馨提示:投标人投标报价还须仔细阅读本项目招标文件,慎重报价。
1、本工程现状保留园路、围栏等建筑物(构筑物)的保护费不单独列项,投标人自行勘察现场,费用包含在投标报价中,中标后不予调整;
2、本工程若涉及施工便道费清单不单独列项,投标人自行勘察场,费用包含在投标报价中,中标后不予调整,清单不单独列项。
3、安装工程改造后的工程须与原工程衔接、兼容等产生的费用不再单独列项,投标人综合考虑此部分费用,综合报价,中标后不予调整。
4、墙面施工时需对原门窗等构件进行保护措施,费用包含在投标报价中,中标后不予调整,清单不单独列项。
5、管道开挖及拆除工作须保证原建筑不被破坏,此部分不再单独列项,投标人综合考虑此部分费用,综合报价,中标后不予调整。
6、智能化技术规范书中的辅材辅配件不再单独列项,投标人综合考虑此部分费用,综合报价,中标后不予调整。
7、本项目所涉及的太阳能移位及重新安装不单独列项,投标人综合考虑报价,中标后不予调整。
8、本项目所涉及的垂直运输费不单独列项,投标人综合考虑报价,中标后不予调整。
9、本工程为维修改造施工,投标人的报价要包括所有材料的检测费用,并提供检测报告。
10、本项目所涉及的拆除路灯、监控等现状设施残值处理及外运费用不单独列项,投标人综合考虑报价,中标后不予调整。
第二部分:设计文件及技术补充说明
一、共性问题
1、本工程土方运距如何考虑?
答:控制价运距按30km考虑,投标人在勘察现场后自行考虑报价,实际运距或超出部分的运距、土源费、渣土费、弃土场等由投标单位勘察现场后自行考虑;投标报价中充分考虑弃土场费、土源费、保洁费、渣土费、协调费、清表、修建运输通道及地下障碍物等费用,以及市容、路政、环保部门征收的等一切费用,综合考虑在报价中,中标后综合单价一律不予调整
2、本工程一级钢φ6的钢筋是否按照φ6.5计入?
答:是。
3、在平面图中如何区分仅更换面层和新建塑胶铺装做法?
答:按新建塑胶铺装做法。面层为13mmEDPM环保型彩色塑胶面层。
4、请明确沥青道路、新建停车位、改造停车位做法是否统一?
答:做法统一;素土夯实、180厚级配碎石(压实度≥96%、180厚C25细石混凝土(4-6M分仓跳格浇筑)、双向玻璃纤维格栅、50厚中粒式沥青混凝土碾压平整(AC-16)、粘层(喷PC-3型粘层油)、30厚细粒式沥青混凝土面层碾压平整(AC-13)。芙蓉社区与公交站沥青道路除外,紫云花园新建/改造停车位按图纸做法计入。
5、请明确透水砼做法是否统一?
答:做法统一;素土夯实、150厚级配碎石、30mm沙滤层、50mm厚10mm粒径C25透水混凝土、30mm厚6mm粒径C25彩色强固透水混凝土、双丙聚氨酯密封处理。
6、装饰砂浆构造做法请明确?
答:1)无机水泥基干粉装饰砂浆层、2)一遍水性封闭底漆、3)两遍装饰砂浆专用涂料
7、请明确外墙装饰砂浆改造具体做法。
答:1)原饰面铲除,清理干净,铲除修补空鼓、起皮、开裂部位;2)墙面批刮5厚专用抗裂砂浆,并压入专用网格布3)装饰砂浆。
住宅外墙一层为仿石材颗粒状装饰砂浆,住宅二层以上及其他外立面均为大分割颗粒状装饰砂浆。(始信花园除外)
8、请明确新建围墙、挡土墙装饰砂浆做法?
答:1)20厚1:2防水水泥砂浆(内掺5%防水剂)2)墙面批刮5厚专用抗裂砂浆,并压入专用网格布;3)大分割颗粒状装饰砂浆。
9、请明确粉刷单元入户门头具体工程量及做法。
答:按外墙装饰砂浆做法。
10、请明确楼道内粉刷具体做法。
答:楼道内墙面、顶棚做法为1)铲除原涂料腻子面;2)原砂浆层(修补缝隙、局部腻子,磨平);3)白色乳胶漆一底两涂。
11、请明确平屋面防水改造做法。
答:1、铲除至原有屋面结构层,如板面有裂缝需进行处理;2、20mm厚1:2水泥砂浆找平层;3、厚度不小于1.5厚聚氨酯涂膜防水;4、4mm厚SBS聚酯胎沥青防水卷材;5、最薄30mm厚发泡混凝土找坡;6、40mmC25细石混凝土面层。防水上翻高度综合考虑报价。(始信花园除外)
12、请明确瓦屋面防水改造做法?
答:1、铲除至原有屋面结构层,如板面有裂缝需进行处理; 2、20mm厚1:3水泥砂浆找平层;3、1.5厚MBS-S防晒抗皱膜自粘防水卷材;4、C20细石混凝土保护层厚40(配φ4@150*150钢筋网);5、顺水条-25*5 中距600;6、挂瓦条L30*4,中距按瓦材规格;7、与原屋面瓦同类型的新瓦,专用螺钉固定。防水上翻高度综合考虑报价。(始信花园除外)
13、请设计明确檐沟防水各部位尺寸及做法?
答:尺寸同原结构,具体由投标人自行勘察现场确定,综合考虑报价,中标后不予调整。具体做法:1、最薄处20厚1:3水泥砂浆找平层;2、1.0厚MPU白色聚氨酯;3、4mm厚SBS聚酯胎防水卷材4、5厚专用抗裂砂浆保护层,并压入专用网格布;(始信花园除外)
14、请明确是否地上停车位处每车位装2块橡胶安全防撞座?
答:是的。
15、请明确是否考虑种植土?种植土工程量多少?泥炭土含量按多少?
答:种植土按照绿化面积*0.3m厚计入,其中泥炭土含量按照30%考虑
16、请明确苗木表中移除苗木是否为清除不考虑回收利用?
答:不考虑回收利用。
17、请明确苗木是否考虑支撑?若考虑需分别明确支撑方式。
答:乔灌木采用四角支撑。
18、请明确苗木养护年限、养护等级。
答:成活养护1个月,保存养护2年,养护等级为1级。
19、请明确移栽苗木是否考虑养护?
答:考虑,成活养护1个月,保存养护2年,养护等级为1级。
20、本工程所有新建室外部分原有地面是否均需拆除至结构层?如何考虑请设计明确。
答:现场道路及铺装面层拆除厚度均按照150mm厚混凝土面层,200mm厚碎石基层拆除考虑,拆除到的底标高与设计新建底标高保持一致;现场停车位拆除按照150mm厚混凝土面层,150mm厚碎石基层拆除考虑,拆除到的底标高与设计新建底标高保持一致。投标人自行踏勘现场确定实际规格及材质,综合考虑报价,中标后不予调整。
21、请设计明确围墙拆除如何计入?
答:各个小区统一按照每米砌体拆除工程量0.36m³、混凝土结构每米拆除工程量0.21m³,栏杆每米拆除1m计入拆除部分,投标人自行踏勘现场确定实际规格及材质,综合考虑报价,中标后不予调整。
22、请设计明确楼道内扶手重新刷漆的具体做法?
答:原有油漆面铲除,木质基层刷酚醛调和漆,做法详标准图集05J909-TL18-油20,颜色同原有色;钢构件应除锈处理,采用防锈漆二度,面漆二度,金属基层刷酚醛调和漆,做法详标准图集05J909-TL19-油25。颜色同原有色。
23、所有小区外立面改造处外脚手架采用何种方案?
答:均按外墙钢管脚手架考虑。
24、请设计明确单元门的具体材质?
答:均采用304不锈钢单元门,壁厚不小于1.5mm,样式甲方确定后方可安装,每户配4把钥匙。
25、标牌部分:其中提示牌、公约牌、公告栏、指示牌、通道牌是否需要基础,如需要,请明确做法?
答:基础为C25混凝土,具体做法如下:

26、请明确标记标线做法:其中地上标记标线采用道路专用冷涂料、地上停车位采用路专用冷涂料,地下停车库采用热熔漆。做法不一,是否为统一做法?
答:统一采用热熔漆加玻璃微珠的反光标线
27、不锈钢信报箱及奶箱专业厂家深化设计,请明确具体材质及做法?

答:材质为1.2mm厚304#拉丝不锈钢弯折成型电镀
28、请提供成品岗亭参数?

答:岗亭采用不锈钢成品移动式岗亭。尺寸4x3m,含空调及办公桌椅;采购前需报业主确认,选型参考如下


29、运动器材及儿童游乐设施是否在本次招标范围内?
答:计入
30、请明确新建道路、停车位、铺装等处多余绿化土方如何考虑?
答:多余绿化土方外运,按0.8m深度考虑,含结构层土方。
31、请明确户外晾衣架具体材质及做法?
答:不锈钢晾晒架,钢管直径25MM,壁厚2.0MM,室外晾晒架尺寸高1.6米,长2.4米,宽0.8米
32、老旧小区中各新建非机动车库、门卫内外墙体材料统一为MU5.0煤矸石空心砖。
33、各新建非机动车库、门卫外墙保温材料为岩棉板(涂料饰面)密度 120kg/m3 ,导热系数0.040,蓄热系数0.70 修正系数:1.20;保温厚度详见各单体设计。
34、各新建非机动车库、门卫屋面保温材料为挤塑聚苯板(燃烧性能B1级)。密度 30kg/m3 ,导热系数0.030,蓄热系数 :0.36 修正系数:1.20;保温厚度详见各单体设计。
35、所有标示、标牌材质及做法统一按照方兴北园小区计入。
36、本项目所有道闸均采用广告闸(百叶闸)形式,一台(套)道闸均为一进一出两道闸,投标人综合考虑报价,中标后不予调整。
二、个性问题
(一)、方兴北园
37、请明确玻璃幕墙修复做法及工程量?
答:仅更换外层玻璃(8+8双层夹胶玻璃),按50m2计入。
38、请明确修复花岗岩、修复透水砖品种及规格,做法是否均为人行石材路做法?
答:中心活动区域按照人行石材标准,道路修复按照车行标准(50mm厚)中心活动区域按照人行石材标准,道路修复按照车行标准(50mm厚)。透水砖规格100*200*60mm。
透水砖修复按下列做法:

39、地下车库地面改造面层材料,改造量表中显示为环氧自流平,图中说明中为金刚砂耐磨地坪,请明确以何为准?
答:为金刚砂耐磨地坪。
40、请明确地下车库出入口此类“集水坑带盖”是否在本次招标范围内?
答:在,材质为15cm厚C25钢筋混凝土盖板(φ16@150双向钢筋网)。(方兴南园盖板相同做法)。
41、小区封闭新建围墙部分工程量表与图纸不一致,请明确以何为准?
答:新建5米。
42、请明确平立侧石的混凝土垫层厚度?图纸尺寸不一,如下图

答:100厚C20混凝土垫层。
43、以下爱心警示牌、标志牌、限速牌标牌规格尺寸、位置?单元牌、单元公告牌、楼栋牌数量是否采用工程量表内数量?工程量表中无消防通道牌,是否计入?请明确是否有楼层牌?
答:限速牌为消防通道牌;无标志牌、楼层牌和户号牌;单元牌、单元公告牌、楼栋牌数采用工程量表内数据。爱心警示牌大样图如下:爱心警示牌工程量为9个。

44、改造停车位的侧石是否拆除重建,如在范围内,请明确侧石做法?
答:图中已明确标出哪些侧石需要拆除重建,详见图纸SZ-03
45、消防栓围栏图纸4组与工程量表不一致,哪个为准?

工程量表中景观垃圾桶在图纸中什么位置?
答:共计13组消防栓,景观垃圾桶分别布置在2个活动场所周边,每个活动场所配置2个,共4个,景观垃圾桶位置现场施工时确定位置,垃圾桶样式详见JD-03-5。
46、明确排水沟范围?是否只有垃圾集中点处有6.403m排水沟?垃圾集中点构造柱混凝土等级?

答:只有垃圾集中点处有排水沟,构造柱混凝土等级为C20混凝土。
47、请明确土建中楼梯道铁艺栏杆除旧翻新工程量?百叶是否采用工程量表内数据,明确百叶材质? 
答:无楼梯道铁艺栏杆除旧翻新;百叶更换量为250㎡,使用彩涂铝板百叶。
48、明确排风帽具体做法?
答:排风帽做法如下图:方兴南园同此做法

49、请明确画圈处工程量,图纸中无此项工程量?

答:按统计量表计入。
50、请明确下图紫荆数量?

答:2棵。
51、请复核方框中(苗木表)麦冬与香樟数量是否有误?
答:图纸复核麦冬量为9862m2,香樟为17棵。
52、请明确工程量统计表中部分数据不完善,无法复核工程量的项目(翻新铁艺栏杆、围墙粉刷、车库粉刷、楼道内粉刷、楼道内表箱洁化、电梯内部清洁),是否按表内工程量计入?
答:翻新铁艺栏杆450m、围墙粉刷2100m2、车库粉刷15500m2、车库出入口侧墙粉刷650m2、楼道内粉刷35220m2、楼道内表箱洁化、电梯内部清洁以工程量表统计数据为准,其余工程量参照图纸设计。
(二)、方兴居委会活动中心
53、请明确工程量统计表中部分数据不完善,无法复核工程量的项目(外墙砂浆粉刷、现状破除),是否按表内工程量计入?
答:以工程量表统计数据为准,其余工程量参照图纸设计。
(三)、方兴南园
54、请明确现代中式景观亭地面石材材质、木材材质、油漆做法?
答:地面石材:仿石材
木材材质:菠萝格(两遍硬木专用木蜡油)
55、请明确百叶工程量?
答:地下车库通风口百叶量为120㎡。空调外机金属百叶护栏工程量为250㎡,,
56、楼道内粉刷面积,工程量表与图纸不一致,请明确以何为准?请明确车库内墙及顶面油漆是否包括出入口侧墙粉刷量?
答:楼道内粉刷面积工程量为31932平方米。车库墙面及顶面粉刷面积19461平方米,车库侧墙粉刷面积698平方米。
57、请明确围墙粉刷及铁艺翻新工程量?
答:围墙粉刷工程量为2340m2,铁艺翻新工程量为945m。
58、单元牌、单元公告牌、楼栋牌数量是否采用工程量表内数量?请明确限速牌做法、警示牌做法?
答:单元牌、单元公告牌、楼栋牌数量是采用工程量表中数量。限速牌、爱心警示牌大样图如下:


59、垃圾桶是否为19组,请明确垃圾桶面层混凝土等级?
答:景观垃圾桶4组,生活垃圾桶15组,生活垃圾桶不在本次招标范围内。垃圾桶面层混凝土等级C25。
60、请明确修复花岗岩、修复透水砖品种及规格,做法是否均为人行石材路做法?
答:中心活动区域按照人行石材标准,道路修复按照车行标准(50mm厚)中心活动区域按照人行石材标准,道路修复按照车行标准(50mm厚)。透水砖规格100*200*60mm。
透水砖修复按下列做法:

61、消防栓护栏图纸中就一处、量表中有13处,以哪个为准?
答:13处。
62、请明确下图箭头及所框选位置是否在本次招标范围内改造?如在,请提供做法
答:不在本次招标范围内改造。
63、是否更换单元门、多少樘,什么做法?(如有,做法是否同方兴北园)
答:不更换单元门。方兴北园也不更换单元门。
64、请明确高度和冠幅是否颠倒?
答:是颠倒了
(四)、始信花园
65、请明确垃圾桶放置点尺寸、个数?
答:新增垃圾桶存放点共53个,尺寸为2m*3.3m的16个和2m*2.5m的37个,部分停放点因避让停车位长度可现场情况而定,但深度均为2m。
66、请明确非机动停车场地维修翻新做法?
答:地面做法采用金刚砂地坪。做法同方兴北园车库地面金刚砂做法。
67、图纸中未指引做法的圆形树池是否均采用JD-03/1做法?
答:所有圆形树池均采用JD-03/1做法。
68、请明确图纸JS-07画圈处是否指引有误?
答:画圈处指引有误,此处没有景观坐凳。
69、增加9处消防栓围栏,做法同方兴北园。
70、请明确非机动车彩钢瓦屋面做法?
答:小区内两个非机动车棚具体改造范围及工程量详见修改后工程量表,采钢瓦屋面做法:仅更换面层彩钢瓦面层,彩钢瓦厚度:0.6mm。
71、此处无做法指引,是否在招标范围内?

答:不在此次招标范围内。
72、请明确工程量统计表中部分数据不完善,无法复核工程量的项目(单元门更换数量、楼道内表箱洁化、电梯内部清洁、楼梯栏杆刷漆、门卫翻新、铁艺围墙柱子及基部粉刷翻新、防水、外墙装饰砂浆),是否按表内工程量计入?
答:单元门更换数量、楼道内表箱洁化、电梯内部清洁、楼梯栏杆刷漆、门卫翻新以工程量表统计数据为准,铁艺围墙柱子及基部粉刷翻新1450m2计入,防水与外墙装饰砂浆以下表为准
其余工程量参照图纸设计。
73、始信花园阳台封闭是否在本次招标范围内?若在请提供做法和工程量?
答:在本次招标范围内,做法阳台封堵:
1)窗类型:铝合金内开内倒中空玻璃窗(阳台外窗)
2)型材要求:采用铝合金型材(含纱窗滑道),窗户主型材壁厚不低于1.4mm,窗采用90系列
3)玻璃品种、厚度:中空玻璃5+9A+5
4)五金件要求:五金配齐
5)所有单块面积大于1.5平方米的玻璃以及距地高度低于500以下的玻璃均采用安全玻璃;玻璃的采用须符合《建筑玻璃应用技术规程》、《建筑安全玻璃管理规定》及相关规范
6)窗框与外墙之间应用弹性防水保温材料填充,外口留5~8mm深缝隙,嵌填防水硅胶密封,以防渗水。
7)具体位置以实际现场施工为准。工程量为2525平方。
74、请明确始信花园防水做法?
答:始信花园屋面一、三期(1-4#、22-32#)及商业、檐沟防水施工工序:原屋面盖瓦掀掉→基层清理干净→20厚1:3水泥砂浆找平→安装挂瓦条→涂刷 UG界面剂→Bituflex 20B水性沥青橡胶高弹防水涂料(内置DV110 聚酯布)液体卷材系统(甲控材)→Ruflex 20D水性非塑化丙烯酸防水涂料(内置DV110 聚酯布)液体卷材系统(甲控材)→验收→盖瓦恢复

始信花园屋面二期(5-21#)防水施工工序:原屋面盖瓦掀掉→清理基层→使用3mm厚SBS自粘式卷材打底→安装挂瓦条→涂刷 UG界面剂→Bituflex 20B水性沥青橡胶高弹防水涂料(内置DV110 聚酯布)液体卷材系统(甲控材)→Ruflex 20D水性非塑化丙烯酸防水涂料(内置DV110 聚酯布)液体卷材系统(甲控材)→验收→盖瓦恢复(注:屋面瓦下木檩条全部更换为防腐木条)

75、门卫说明中基础混凝土为C30p6,结构图基础平面图基础混凝土为C30,独立基础是否需要抗渗?![]()
答:不需要抗渗。
76、门卫建筑图标高0.45m处线条,建筑及结构图均无具体做法,请明确
答:此处为100厚300宽结构压顶。

77、门卫建筑图墙身大样图一和大样图二与平面图不符,是否标错?
答:0.45标高处设有一圈混凝土线脚,做法详第二条。
78、门卫建筑图中铝板(图纸设计为:厂家二次设计)是否在本次招标范围?如在,请明确做法
答:取消铝板做法。
79、门卫建筑图中
电动闸门是否在本次招标范围?如在,请明确参数?
答:电闸门计入智能化中,详见始信花园附件中智能化图纸及清单。
80、门卫建筑图中亚克力字体是否在本次招标范围?
答:计入。
81、门卫建筑说明中此处
屋面、外墙及柱等做法与室内外装修做法表不一致,以哪种做法为准?
答:以装修做法表为准。
82、门卫建筑图装修表中

请明确面砖具体厚度?
答:均为10厚。
83、门卫建筑图装修表中外墙面层做法做法不一致,请明确哪种为准?
答:以装修做法表为准。
84、门卫装修表中顶棚、内墙面面层为涂料饰面,请明确面层材料厚度及具体做法
答:白色涂料两道饰面。
85、门卫请明确此处屋面做法?
答:按外墙做法。
86、始信花园增加三处门禁系统(百叶闸)及两处岗亭(成品)。
(五)、紫云花园
87、请明确建筑图“改造项目一览表(建筑)”中无图纸无法计算工程量的项目(非机动车库翻新、1-77#住宅外立面翻修、屋面防水翻修、楼道整治、出入口升级及2#门面房改造等),是否按表内工程量计入?
答:因无建筑图纸,部分工程量无法复核,图纸中无明确详细施工部位的工程量以“改造项目一览表(建筑)”中的工程量为准,其余参照图纸设计。
88、请明确更换地面铺装对应哪个大样?
答:健身及活动场地地面铺装以景观施工图大样为准,铺装做法采用景观图纸12-5(原有活动场地改为塑胶场地)。
89、请明确移栽树木工程量及具体参数?
答:图纸上已标注移栽树木位置,胸径大于9mm的具体参数规格见附图,其余胸径小于9mm,数量位置见下图,移栽至区域也已标注明确。

90、请明确艺术压印地坪处现状为混凝土地面,与图纸中基层做法不符,请明确具体做法?

答:现场为混凝土面层,现仅需在混凝土面层上增加20mm厚1:3水泥砂浆找平层后铺设4mm厚艺术压印地坪。
91、请明确此处是否实施?如实施,请明确沥青摊铺厚度规格,移栽树苗规格?如不实施,请明确地面喷绘做法,树木平树池围合做法,彩色沥青硬化场地做法?
答:西门处按改造为停车场计,现状燃气柜设置不锈钢围栏防护,其余场地均硬化,与沥青道路及停车位做法一致,现状树木移栽由业主自理。围栏范围如图,高度不小于1.2m,采取防攀爬措施,并悬挂安全警示牌和燃气设施保护提示牌,围栏靠近车行道及停车位一侧涂刷反光漆。
![]() |
92、请明确草坪具体为?
答:采用马尼拉草坪。
93、请明确具体绿化补植规格?
答:绿化补种品种为麦冬。麦冬规格高度15cm 冠幅15cm,64丛/㎡。
94、请明确拆除路缘石工程量?
答:拆除路缘石工程量7500米。
95、请明确铁门具体材质、规格、参数?
答:铁门为成品镀锌钢管材质,样式由业主方选定,宽度尺寸按图纸测量,高度按2.2米计。
96、请明确此处1688m2工程量是铲除后重做装饰砂浆工程量还是不铲除冲洗,仅为冲洗外墙面工程量?
答:按铲除重做计,颜色与住宅外墙颜色统一,建筑外墙的面积约1688㎡。
97、请明确原有混凝土车位是否拆除?![]()
答:按全部拆除。
98、请明确是否存在塑胶地坪新建、及改造?如在,请提供具体位置?
答:塑胶地坪仅为现状健身活动场地修整,图中已标注现状健身活动场地位置。
99、请明确大样中彩色混凝土1、2对应位置?
答:新建活动场地及硬化场地做法为大样图1,即图中所注现状为绿地改造为活动场地、硬化场地等处,位置详见图纸。
100、请明确自行车库翻新,内外墙面积如何划分?
答:外墙面积按1400㎡计入,内墙面积按1352.8㎡计入。
101、请明确楼梯扶手如何计入?![]()
答:按2100米计
102、请明确大样中垃圾集中收治点1、2、3对应位置?
答:均按大样1做法计,共三处。
103、请明确值班室内外墙工程量如何划分?
答:顶棚做法同内墙,顶棚、内墙按320平方米计,外墙按330平方米。
104、请明确新建停车位处划线做法?
答:增加道路中心线、边缘线、停车位划线
105、请明确石桌石椅一组配套内容?
答复:每组含1张石桌、配套4个石凳计,样式由业主方选定。
106、请明确此处如何计入?
答:此处按改造为停车场地计,停车位数量、矮墙砌筑量以及绿化补植量已分别列入新建机动车停车位工程量及绿化工程量,矮墙做法参见图集12J003-C24页大样B,平均高度按1m计,外饰面颜色与住宅外墙协调一致。
107、阳台栏杆是否按“做法见15J403-1第D16页PA4型,刷防锈漆一道深灰色面漆两道”,空调机位翻新是否按“采用40x40x1.5厚方钢管(深灰色)间距200,围护高度600”?如按此做法,请明确工程量如何划分,空调机位油漆做法?
答:阳台栏杆按4800㎡计,空调机位按4036㎡计(空调机位为1210.8m2拆除重做,2825.2m2为翻新),翻新做法同统一做法,空调栏杆做法为采用40x40x1.5厚方钢管(深灰色)间距200,围护高度600(15J403-1第D16页PA4型),刷防锈漆一道深灰色面漆两道。
108、请明确此处如何计入?
答:以上场地平树池做法见下图,按20个计。

109、篮球场地内篮球架是否更换?
答:更换4组成品篮球架(8个)
110、请明确类似处台阶及挡墙做法、高度?
答:小区东北角游园与宅前相接步行台阶共8处,台阶做法参见图集12J003-B1页大样2B;台阶栏杆做法参见图集12J003-B11页大样1A;小挡墙做法参见图集12J003-C24页大样B,平均高度按1m计,外饰面颜色与住宅外墙协调一致。
111、请明确人行步道是否有条石景观步道,如含请明确人行步道及条石景观步道做法?
答:条石景观步道不在本次范围,人行步道做法如下图:

112、所有外立面均采用大分割颗粒状装饰砂浆。
113、非机动车库结构设计说明中基础必须进入持力层内200,且应留200厚待浇筑混凝土垫层时人工挖除.局部埋深未至持力层,需清除至持力层,素混凝土换填,回填土两侧均匀回填,分层夯实,素混凝土换填如何考虑请明确?

答:换填清单不考虑。
114、非机动车库栏板、雨棚混凝土等级请明确?
答:同主体混凝土等级。
115、2#非机动车库一层平面图中未设计散水,是否增加?请明确?
答:沿建筑外边缘增加1.2m宽散水
116、非机动车库建筑装修表中无障碍坡道做法与备注图集做法不一致,以何为准,请明确?


答:无障碍坡道做法在原图纸做法基础上增加一层300mm厚粒径5~32卵石(砾石)灌M2.5混合砂浆,宽出面层300mm。
117、非机动车库建筑装修表中散水做法与备注图集做法不一致,以何为准,请明确?


答:散水做法在原图纸做法基础上增加一层300mm厚粒径5~32卵石(砾石)灌M2.5混合砂浆,宽出面层300mm。
118、非机动车库外墙未设计抹灰层是否增加,请明确?

答:外墙涂料系统的具体设计详见修改变更单第2条。
119、非机动车库雨棚顶部是否增加防水砂浆,请明确?
答:20厚1:2防水砂浆找平(防水剂为水泥重量5%)
120、非机动车库内墙及顶棚涂料饰面遍数,请明确?

答:白色乳胶漆一底两面
121、非机动车库滴水线材质请明确?
答:成品PVC滴水线
(六)、芙蓉社区
122、请明确建筑图“翠微南园改造工程量统计表、翠微北园改造工程量统计表、翠微西园改造工程量统计表”中无图纸无法计算工程量的项目(如住宅外立面翻修、楼道整治、楼梯扶手栏杆翻新等),是否按表内工程量计入?
答:因无建筑图纸,部分工程量无法复核,图纸中无明确详细施工部位的工程量以“翠微南园、北园、西园改造工程量统计表”中的工程量为准,其余参照图纸设计。
87、请明确说明中有三种饰面基层处理方法,请明确如何划分?
答:本次改造涉及的面砖饰面不做粉刷处理,面砖饰面以清洗为主。本次改造外墙粉刷部分饰面基层按涂料饰面基层处理。
123、请明确修补门卫门窗如何计入?具体材质、规格?![]()
答:门窗清洗,重新打白色结构胶,现场如有破损构建,应及时通知业主单位和设计单位,业主单位同意后方可更换。
124、请明确翠微北苑新增树池盖板材质、规格?
答复:详见06号图“①120宽平树池做法”下方“2、、树池盖板做法详见国标图集《15J012-1》H11页,a为100mm,b为80mm,c=600mm,金属篦子为1000*1000*30厚圆形铸铁篦子成品定制。树池篦子缝隙内撒草籽,约21㎡。”
125、请提供翠微南苑新增雨棚骨架平面图及棚顶材质规格?
答复:翠微南园新增雨棚骨架平面图详见11号图纸“5#楼北侧非机动车棚入口新增内容平面布置图、详图索引图”以及12号图纸“雨棚立柱定位示意图”。原车棚不拆除。
126、请提供翠微北苑非机动车库平面图、立面图等详细图纸,否则无法计算工程量?原车棚是否拆除?
答复:

翠微北园非机动车库按照一侧14跨(两侧共28跨,包括车库东侧,共计29跨计算),立面详见1-1立面图,原车棚主要立柱、围墙柱、墙身不拆除,具体详见图纸非机动车棚立面示意
(七)、锦绣社区新增改造
127、请明确由业主自行移栽是否在本次范围?如在,请提供具体数量、规格、养护年限
答:此两处树木由业主自行移栽,不在本次范围。
128、请明确减速带材质、规格?
答:材质规格及数量均详见改造一览表。
129、请明确大样图中铁艺围墙是否在范围内?如在请提供具体规格、材质?
答:改造范围详见改造一览表。
另附一览表,与施工图内一览表完全相同。

(八)、枣庙园2期
130、楼梯间改造无图纸,请明确是否计入?
答:计入,墙面改造为5600m2,楼梯间扶手刷漆1400m。
131、阳台下沉无平面图纸,请补充?
答:阳台下沉清单按照55平方米计入。做法为阳台地面挖开夯实,重新浇混凝土:1)、40厚C20细石混凝土,表面撒1:1水泥砂子随打随抹光。2)、水泥浆一道(内掺建筑胶)。 3)、60厚C15混凝土垫层。4)、150厚3:7灰土。5)、素土夯实
132、室外散水、入口台阶无平面图纸,请明确是否计入?

答:枣庙园车棚散水计入,其余散水及入口台阶均不计入。
133、枣庙园居民楼围墙立面图中花格窗出新是否计入,请明确,如计入请明确具体材质及规格?图纸设计小区围墙总长约430m,是否按430m计入?
答:原花格窗拆除,更新同款花格窗,花格窗面积为270m2;围墙按742.5米计入。
134、檐口改造无图纸,请明确工程量?
答:不计入
135、排水沟无平面图,请提供?
答:不计入
136、枣庙园车棚正立面图中花格窗出新、铁艺栏杆出新、彩钢瓦出新、外墙涂料材质规格请明确?

答:原花格窗拆除,更新同款花格窗;铁艺栏杆做法具体做法详见图集15J403-1第D13页节点PB1;采钢瓦屋面做法:仅更换面层彩钢瓦面层,彩钢瓦厚度:0.6mm。外墙涂料做法外墙腻子两遍+外墙乳胶漆两遍,罩面漆一遍。
137、垃圾收集点平面图设计高度为50cm,大样图设计为40cm,以何为准,抹灰厚度请明确?外墙涂料遍数及腻子请明确?

答:按高度50厘米;抹灰厚度为20厚;外墙涂料做法外墙腻子两遍+外墙乳胶漆两遍,罩面漆一遍。
138、126#南侧增加停车位平面大样图、122#西侧增加停车位调整道路方向平面大样图中、新增停车位,做法见原施工图,请明确该停车位做法?
。
答:做法同车行道路做法;
139、室外台阶做法请明确?

答:不计入
140、请提供现状挡土墙图纸及小广场内廊架图纸?

答:挡墙高度按照800mm计入;瓷砖采用专用粘结剂粘贴;小区廊架外墙涂料按照500m2计入,外墙涂料做法外墙腻子两遍+外墙乳胶漆两遍,罩面漆一遍。
141、122#南侧增加硬质铺装平面大样图中,施工破坏面,后期补种草坪,请明确草坪种类及具体工程量?

回复:不计入
142、铺装改造图中停车场改造原混凝土上铺设沥青面层,改造道路沥青面层做法清明确? 
答:做法如下:
143、小区内增加铁艺大门一趟,尺寸5*2.1m做法同紫云花园。
144、新建围墙结构混凝土标号请明确?
答:C25,垫层为C15混凝土
145、新建围墙砖墙材质请明确?

答:M5水泥砂浆砌MU10全煤矸石实心砖
146、枣庙园增加36樘单元门,均采用304不锈钢单元门,壁厚不小于1.5mm,样式甲方确定后方可安装,每户配4把钥匙。
(九)、海恒社区增补项目
147、康利B新建非机动车棚散水、坡道做法是否同紫云花园非机动车库?
答:是
148、康利B新建非机动车棚室内装修做法是否同紫云花园非机动车库?
答:是
149、康利B新建非机动车棚金属栏杆材质及做法请明确?

答:具体做法详见图集15J403-1第D13页节点PB1
150、康利B园两个室外人行坡道不锈钢栏杆增设,请明确栏杆长度?
答:栏杆长度为75.4米
151、海恒各小区入口宣传栏新建,请明确宣传栏数量?
答:宣传栏共计19个
152、福禄南园地下车库改造中坡道做法详见坡道作法:详12J003图集第A7页节点台3A,是否有误?


回复:1)素水砂浆结合层一道(内掺建筑胶)、2)100厚C25细石混凝土压实,内配 6@150单层双向钢筋网、3)6厚无振动止滑坡道
153、福禄南园地下车库改造中集水坑做法不一致?


答:集水坑盖板详见图集05J927第49页做法1,盖板混凝土标号为C30,仅更换盖板,原有盖板拆除
154、福禄南园车库地面改造平面图各功能房间是否不计入金刚砂地坪?

回复:除车库外其他功能房间不计入
155、福禄南园车库地面改造平面中减速挡是否仅坡道上下设置?
回复:是
156、福禄园3期单元入口非机动车位铺装图纸有整个福禄园3期景观改造图纸,是否仅计入3期单元入口非机动车位铺装?

回复:是
(十)、合肥经开区公交站场
157、请明确门卫室防水是否采用屋面2做法?卷材厚度是否为4厚?
答:采用屋面2,卷材厚度为4厚。
158、请明确屋面图集做法12J201做法中浅灰色涂料保护层具体为?
答:涂膜防水面层涂浅色涂料。
159、请明确地砖踢脚高度是否为120mm?厚度为?
答:10mm。
160、请明确地砖大小及厚度?找平层是否为20mm厚?
答:300*300mm,找平层为20mm。
161、此处节点建筑图、结构图中均无大样体现,请明确具体做法?
答:线脚做法见结施2中压顶详图。为节省成本,取消悬挑空调板,将空调放在散水上。
162、请明确卫生间改造图中拆除是否考虑?如何计入?
答:考虑,拆除面砖和卫生间挡板等,
163、请明确卫生间拆除中墙面砖规格?
答:300*300mm
164、请明确卫生间高度?
答:吊顶3m
安装工程:
方兴北园改造:
1、如下图所示:
![]()
请明确现状路灯线路电缆配管的规格型号(电专业图纸未见做法)?
答:配管:pvc32,电缆:YJV-1KV-2x6。
2、请明确直流充电桩和交流充电桩技术参数?
答:充电桩系统仅做预埋管、电缆井。
3、如下图所示:
![]()
请明确楼梯间内增设防火型PVC线槽的规格型号及具体工程量(具体改造做法智能化专业未见)?
答:方兴北园不需要进行弱电整理,不计入招标范围。
4、如下图所示:

请明确地下车库监控总平面图中桥架是否为新建,如果是,是否均为200*100槽式金属桥架?
答:桥架为示意布局,地下室桥架利旧,不计入招标范围。
5、如下图所示:

请明确声控面板的规格型号?
答:86型声控开关。
6、如下图所示:

请明确水枪、水带、闸阀、灭火器的规格型号;明确消防管道的规格型号、连接方式、明配暗配?
答:水枪:喷量19mm的铝合金水枪;
水带:dn65内衬里;
闸阀:dn25全铜;
灭火器:MF/ABC3*2;
消火栓立管管径:DN150镀锌钢管;
连接方式:立管是法兰连接,支管是卡箍连接;
安装方式:明装。
7、如下图所示:
![]()
请明确整套外呼盒及指令按钮的规格型号?
答:KDS30外呼面板,整套外呼盒是KDS30外呼面板,电梯按钮是KDS50嵌入式圆型带耳按钮,电梯内按键更新是28组,每一组是1~18层的,包括开关门,警铃这些按钮。
8、如下图所示:
![]()
请明确排污泵及中间继电器的规格型号?
答:排污泵是1.5千瓦2880转速,带法兰的输出口径50的;接触器型号CJX21201,交流接触器型号CJX21201,中间继电器24伏或者240伏,如有变压器,分交流和直流。
9、请明确更换的新建阳台雨水管连接方式?
答:阳台雨水管采用UPVC管胶粘连接。
10、如下图所示:

请明确新建污水管的规格型号、材质及连接方式?
答:污水管采用DN300钢筋砼承插管,橡胶圈柔性接口,砂石基础。
11、如下图所示:

请明确化粪池的容积及具体维修内容?
答:每座化粪池清淤量按50立方米计,维修工程为更换化粪池清通口的矩形钢筋砼盖板,每座按2块计。
12、请明确智能化系统是否计入本次招标范围?
答:按设计图纸及技术参数清单全部计入。
13、请明确小区室外消防水管道管路检查泄漏点及泄漏点修复是否计入本次招标范围?
答:计入本次招标范围,修复后的消防管网,满足消防使用及验收要求,检查消防管网工程量为1200m。。
方兴南园改造:
14、如下图所示:
![]()
请明确楼梯间内增设防火型PVC线槽的规格型号及具体工程量(具体改造做法智能化专业未见)?
答:方兴南园不需要进行弱电整理,不计入招标范围。
15、如下图所示:

请明确地下车库监控总平面图中桥架是否为新建,如果是,是否均为200*100槽式金属桥架?
答:桥架为示意布局,地下室桥架利旧,不计入招标范围。
16、如下图所示:
![]()
请明确声控面板的规格型号?
答:86型声控开关,更换声控面板数量为990组。
17、如下图所示:

请明确水枪、水带、闸阀、灭火器的规格型号;明确消防管道的规格型号及连接方式?
答:水枪:喷量19mm的铝合金水枪;
水带:dn65内衬里;
闸阀:dn25全铜;
灭火器:MF/ABC3*2;
消火栓立管管径:DN150镀锌钢管;
连接方式:立管是法兰连接,支管是卡箍连接;
安装方式:明装。
18、如下图所示:

请明确声控LED照明灯的规格型号?
答:86型声控开关。
19、如下图所示:

请明确截水沟盖板及截雨口具体做法详图?
答:按多篦雨水口做法,单座为6连篦。
20、如下图所示:
![]()
请明确排水立管的材质、连接方式、管径?
答:雨水管采用DN150防紫外光UPVC管胶粘连接。
21、如下图所示:

请明确维修化粪池的容积及更换盖板的具体做法?
答:单座化粪池清淤量按50立方米计,维修工程为按化粪池顶面无覆土可通车的钢筋砼盖板进行更换,做法参见国标图集03S702。
22、请明确直流充电桩和交流充电桩技术参数?
答:充电桩系统仅做预埋管、电缆井。
23、请明确智能化系统是否计入本次招标范围?
答:按设计图纸及技术参数清单全部计入。
24、请明确方兴南园现状排水立管更换量。
答:2450m,请核对现场及图纸SZ-07-11。
25、请明确小区室外消防水管道管路检查泄漏点及泄漏点修复是否计入本次招标范围?
答:计入本次招标范围,修复后的消防管网,满足消防使用及验收要求,检查消防管网工程量为1200m。
始信花园改造:
26、如下图所示:
![]()
请明确楼梯间内增设防火型PVC线槽的规格型号及具体工程量(具体改造做法智能化专业未见)?
答:规格型号:PVC线槽60*30mm,工程量为1535.6M。
27、如下图所示:

请明确灭火器规格型号?
答:4公斤手提式磷酸铵盐干粉灭火器。
159、如下图所示:

请明确声控LED照明灯的规格型号?
答:5W,LED。
28、请明确直流充电桩和交流充电桩技术参数?
答:充电桩系统仅做预埋管、电缆井。
29、请明确智能化系统是否计入本次招标范围?
答:按设计图纸及技术参数清单全部计入。
30、三网通信工程是否计入本次招标范围?
答:仅计预埋管、手孔井。
160、请明确始信花园现状排水立管更换量。
答:3197m,详见图纸ps-02-04。
紫云花园改造:
31、请明确直流充电桩和交流充电桩技术参数?
答:充电桩系统仅做预埋管、电缆井。
29、如下图所示:

请明确三网预埋管基础及回填做法?
答:采用砂基础的铺设方法,将基坑底面夯实再铺设砂子一层夯实,其厚度约为50mm,详见图集05X101-2第25页。

30、请明确雨水检查井材质及参考图集号?
答:检查井采用混凝土模块式排水检查井;做法参见2015S209;700X700方井采用砖砌检查井,做法参见02S515。
31、如下图所示:

平面布置图中未见增设给水冲洗龙头、给水管道、阀门、排水管道等,请设计提供图纸或具体过程量表?
答:垃圾集中收集点设计详见建施09/12大样图,具体位置及面积由物业公司会同居委会商定,清单按3处集中收集点计,每处面积72㎡,土建专业根据大样图计列清单。另,增设给水冲洗龙头按3个,给水衬塑钢管按100米,管径DN20,阀门及水表(含井)3组,网框式排水地漏DN150三个,UPVC排水管按30米,管径DN150,模块式排水检查井3个,DN300钢筋混凝土管90米。
32、请明确直流充电桩和交流充电桩技术参数?
答:充电桩系统仅做预埋管、电缆井。
33、请明确智能化系统是否计入本次招标范围?
答:按设计图纸及技术参数清单全部计入。
34、三网通信工程是否计入本次招标范围?
答:仅计预埋管、手孔井。
35、三网通信工程、照明工程、智能化工程预埋管过现状道路等设施是否需要破除恢复?
答:现状道路内预埋管已敷设,不需要破除恢复。
海恒社区增补项目设计:
166、如下图所示:

请明确康利自行车库配电箱电源引自变电所电缆和配管的具体工程量?
答:工程量为760M。
168、如下图所示:

请明确康利园自行车库室外消火栓接入管的具体工程量?
答:按照1.5m计入。
169、如下图所示:

请明确康利园部分门面房立面改造工程中每户增加冷水管的具体工程量?
答:总计600m。
枣庙园2期改造:
170、如下图所示:

红色箭头所指照明灯具是否均计入本次招标范围,如果计入,请明确其规格型号?
答:黄色计入,红色为现在路灯不计入,型号与现状路灯一致。
172、请设计提供枣园二期门卫B、车棚给排水图纸?
答:门卫B无排水图,车棚排水见详图。
临湖路公交站改造:
173、如下图所示:

请明确监控系统中摄像机及其他配套设备的详细工程量清单?
答:室外枪式摄像机:支持绊线入侵,区域入侵,快速移动,物品遗留,物品搬移,徘徊检测,人员聚集,停车检测,热度图,人脸检测,人数统计;采用高性能200万像素1/2.8英寸CMOS图像传感器,低照度效果好,图像清晰度高;最大可输出200万(1920x1080)@25fps;支持H.265编码,压缩比高,实现超低码流传输;内置红外补光灯,最大红外监控距离80米;支持走廊模式,宽动态,3D降噪,强光抑制,背光补偿,数字水印,适用不同监控环境;支持Smart H.265/H.264H智能编码,ROI区域增强,SVC自适应编码,适用不同带宽和存储环境;支持报警3进2出,音频1进1出,128G Micro SD卡;
支持DC12V/POE供电方式;支持IP67,IK10防护等级;新增设备需要与现状设备兼容,满足业主使用要求。
室外网络球型摄像机:
1/2.8英寸CMOS;200万;1920×1080;最低照度彩色:0.005Lux@F1.6 黑白:0.0005Lux@F1.6 0Lux(红外灯开启);150m(红外);镜头焦距5.0mm~115mm;23倍;可视域功能支持;支持绊线入侵;支持区域入侵;支持穿越围栏;支持徘徊检测;支持物品遗留;支持物品搬移;支持快速移动;支持停车检测;支持人员聚集;电子防抖;电子透雾;音频输入1路(LINE IN;裸线);音频输出1路(LINE OUT;裸线);报警接口2进1出;语音对讲支持;报警输入2路,开关量输入(0~5V DC);供电方式AC24V/2.2A±25%(标配);接口类型RJ45接口;新增设备需要与现状设备兼容,满足业主使用要求。
卧云公交站改造:
174、如下图所示:

请明确监控系统中摄像机及其他配套设备的详细工程量清单?
答:室外枪式摄像机:支持绊线入侵,区域入侵,快速移动,物品遗留,物品搬移,徘徊检测,人员聚集,停车检测,热度图,人脸检测,人数统计;采用高性能200万像素1/2.8英寸CMOS图像传感器,低照度效果好,图像清晰度高;最大可输出200万(1920x1080)@25fps;支持H.265编码,压缩比高,实现超低码流传输;内置红外补光灯,最大红外监控距离80米;支持走廊模式,宽动态,3D降噪,强光抑制,背光补偿,数字水印,适用不同监控环境;支持Smart H.265/H.264H智能编码,ROI区域增强,SVC自适应编码,适用不同带宽和存储环境;支持报警3进2出,音频1进1出,128G Micro SD卡;
支持DC12V/POE供电方式;支持IP67,IK10防护等级;新增设备需要与现状设备兼容,满足业主使用要求。
室外网络球型摄像机:
1/2.8英寸CMOS;200万;1920×1080;最低照度彩色:0.005Lux@F1.6 黑白:0.0005Lux@F1.6 0Lux(红外灯开启);150m(红外);镜头焦距5.0mm~115mm;23倍;可视域功能支持;支持绊线入侵;支持区域入侵;支持穿越围栏;支持徘徊检测;支持物品遗留;支持物品搬移;支持快速移动;支持停车检测;支持人员聚集;电子防抖;电子透雾;音频输入1路(LINE IN;裸线);音频输出1路(LINE OUT;裸线);报警接口2进1出;语音对讲支持;报警输入2路,开关量输入(0~5V DC);供电方式AC24V/2.2A±25%(标配);接口类型RJ45接口;新增设备需要与现状设备兼容,满足业主使用要求。
海恒社区增补项目:
175、福禄南园地下车库是否新增2套道闸系统(含其他配套设备),如果是请明确具体技术参数?
答:是,技术参数详见下表:
| 车辆出入管理系统 |
|
|
|
|
| 1 |
出入口道闸 |
0.9~1.2s,全向,百叶闸,直杆,3m,橙色。一套为一进一出两道闸 |
套 |
2 |
| 2 |
车辆检测处理器 |
2路地感线圈接入,2路继电器输出,用于车辆检测。 |
台 |
2 |
| 3 |
出入口抓拍机 |
1、摄像机类型:200万像素彩色逐行扫描CMOS高清智能摄像机; |
套 |
2 |
| 4 |
一体机立柱 |
安装柱装补光抓拍一体机 |
根 |
2 |
| 5 |
LED显示屏 |
可用于余位显示,车牌提示,语音播报等功能 |
块 |
2 |
| 6 |
出入口控制终端 |
1、网络接入功能:可直接接入网络同时支持6路10M/100M/1000M网口、1路4G全网无线通信功能; |
台 |
2 |
三、附件
答疑发布日期:2020年07月03日