您现在的位置: 首页 >> 答疑变更 >> 安徽公共资源交易集团项目管理有限公司 >> 工程
一、原公告主要信息
原项目名称: 东城新海苑复建点项目施工
原项目编号: 2020BFYGZ00603
原公告日期: 2020年06月24日
二、公告内容(更正事项、内容及日期等)
东城新海苑复建点项目施工招标文件补疑1
(项目编号:2020BFYGZ00603)
各投标人:
重要提示
1、人工费执行《关于贯彻执行2018版安徽省建设工程计价依据的通知》(合造价【2018】13号文)。其中定额人工费参与取费、取税,其相对于定额人工费增加的部分 / 元只计取税金。
2、本工程取费按“ 建筑 工程取费标准”中“ 民用建筑 ”的费率计取;其中房屋建筑、市政工程中挖或填土石方量大于5000m3的大型土石方工程,其企业管理费率8%、利润率8%,措施项目费率和不可竞争费率按房屋建筑工程相应费率乘0.6系数。
按业主要求,现对本项目招标工程量清单、最高投标限价编制作出如下补充:
第一部分:招标需求
一、 招标范围:
本次招标为东城新海苑复建点项目,该地块位于瑶海区大兴镇龙岗路以东,裕溪路以北,和平路以南;本项目规划用地净面积45777.71平方米(约68.67亩),总建筑面积122623.87平方米,其中地上建筑面积94095.65平方米,地下面积27170平方米(含人防6040平方米),地下室一层;容积率为2.06。住宅总户数776户,居住总人数2483。招标范围包括但不仅限于1#~10#楼(24层2栋,21层2栋、18层6栋)、开闭所、总配电房、地下车库各住宅单体及配套设施的建筑、结构、照明、电力、弱电系统、电梯、给排水、室外道排、景观绿化、通风及消防工程、小区配套大兴路(小区配套)及交通工程等图纸范围内所有工程。
具体内容详见图纸、招标文件及招标文件附件要求等。
(一)土建装饰工程
1、土建工程:包含土石方工程、桩基工程、基坑支护、主体钢筋砼结构、墙体、保温、停车位标志、标线、标识、车档、减速挡、防撞板等,室外台阶和坡道、防水等。地下室战时临战封堵不计入。
2、装饰工程:含单体、地下车库、公建的内、外墙面、地面及顶棚装饰工程、门窗工程、栏杆、竣工标识牌、人防指示牌、人防标示牌等。
3、地下车库与主楼各单体划分范围(不含社区中心),以地下室顶板为准,顶板以上为主楼,地下室顶板及以下划入地下车库;不在地下车库内的基础部分计入单体楼。
4、人防门防护、防化计入本次招标范围。
(二)安装工程
1、给排水工程:住宅楼给水从分户水表后按图纸计入(不含水表以及前后阀门),表前仅计入预留预埋、孔洞预留及后期封堵;其中9#屋面消防水箱给水计至管井内与管井内干管对接;公建部分接至供水集团水表 (不含水表,投标人在投标报价中需综合考虑水表后期安装位置及二次优化设计所涉及的无缝对接等费用);单体楼雨、污水管计入室外第一个雨污水井(雨污水井及室外管道计入室外工程);卫生洁具除住宅外均按图计入,住宅每户仅计一个阳台处水龙头(材质304不锈钢),其余均按塑料堵头计入;太阳能集热器按图计入,燃气热水器不计入;生活泵房内供水设备及进出管道、泵房到各单体楼的管道不在招标范围内,仅计入预留预埋及后期封堵;地库排水计至室外雨污水井。
2、消防水工程:消火栓、喷淋系统全部按图计入,地下室消防泵房、气体灭火系统等均按图计入。
3、强电工程:自管配电房内高低压配电设备及高压进线不计入本次招标范围,低压出线按配电房内平面半周长预留计至各单体配电总箱;地下车库消防泵房按图计入,生活泵房引自自管配电房电缆仅计进线电源(电源箱按图计入):住宅楼从局管电表箱后按图纸计入,局管电表箱前仅计入预留、单体仅考虑预埋管至墙边1.5M处,室外部分管线由总体计入、预埋及桥架安装,其中电表箱仅计安装费;公建及社区配套综合楼自管表箱由总包负责采购和安装。地下车库的充电桩按图纸全部计入。
4、弱电工程:单体楼电视、电话、宽带系统自家庭弱电信息箱后(含信息箱)全部计入,箱前仅计桥架、预埋管盒,预留预埋(由中标单位负责后期封堵工作)至室外弱电井;公建及社区配套综合楼综合布线系统由配线架后(含配线架)全部计入,进线仅预留预埋(由中标单位负责后期封堵工作)至室外弱电井;远程抄表仅按图预留管、盒。
5、智能化工程:视频监控系统、周界报警系统、电子巡更系统、可视对讲及家居安防系统、门禁系统、停车场管理系统、电梯五方对讲系统、多媒体信息发布系统、背景音乐系统、机房工程等,,各系统按设计提供的工程量清单参数表全部计入;能耗管理系统按图全部计入。
6、消防电工程:火灾自动报警系统、消防设备电源监控系统、电气火灾监控系统、防火门监控系统、室内空气质量监控系统、余压监测系统、消控室内设备等均按图全部计入。
7、通风工程:电梯机房、配电房空调系统按图全部计入;社区中心通风空调按图全部计入;地下室通风系统均按图计入。
8、人防地下室安装工程:①战时电气:战时强电图纸设计按图计入;DZ配电柜及出线电缆计入,移动电站内柴油发电机组及出线电缆均不计入。②战时三防信号系统:按图记入。③战时通信按图计入。④战时给水:仅记套管预留预埋。⑤战时排水:均按图计入。⑥战时通风系统:均按图计入。
9、电梯工程:均按图计入本次招标范围。
10、室外工程:
①室外供水及消防水工程:室外供水不计入,排水按图计入,室外消防水按图全部计入,室外绿化给水管线从水表后按图全部计入。
②室外电气工程:强弱电排管及线缆,景观照明(含配电箱进线)按图全部计入,室外消防电气(含管网)按图全部计入。室外三网工程仅计预埋管及井室安装。
③雨水回收系统、一体化污水处理系统:按图全部计入。
11、安装工程界线划分(不含社区中心):
(1)排水:住宅单体楼雨、污水管道计至室外排水图中第一个检查井内(就近接入),单体楼图纸内所示检查井仅为示意,具体位置及数量见室外排水图,检查井计入室外排水工程,其他单体楼设计的内容均计入单体楼。
(2)强电:公共照明引至单体配电箱的计至单体,引至地库的计至地库。各住宅单体配电总箱引自自管配电房的电缆记至各单体。
(3)弱电:单体楼电视、电话、宽带系统、对讲系统、电梯五方对讲系统、远程抄表系统、安防监控系统预埋管单体计至室外第一个井(不含井),其他计至室外或智能化工程;可视对讲系统接入层交换机至机房核心交换机光纤计至智能化工程,其他计至各单体;智能化机房及机房内设备计至智能化工程。
(4)消防:住宅单体楼内消火栓系统管道、设备全部按图计入,出单体楼外消防管道计至室外第一个阀门井(不含井、阀门)、无室外阀门井的住宅单体楼计至室外消防水泵接合器(含消防水泵接合器)。住宅自动报警、防火门监控、智能应急照明等引自消控室内线缆,单体计至垂直桥架末端,其他从控制室引出干线计至室外或地下室工程。
(5)其他未明确的均按图纸内容计入各单位工程中。
(三)大兴路(龙岗路-天门山路)建设工程
1、K0+000至+120段。
二、暂定项目:
(一)以下项目按照业主要求,以暂定工程量计入分部分项工程量清单,投标人综合考虑报价,标后按实际工程量结算。
无
(二)以下项目按照业主要求,暂列金额为人民币 2000 万元,按一项列入基坑支护单位工程中,投标人应按招标人所列的金额计入投标总价。
三、按项列入清单的内容,标后不予调整:
以下项目按照业主要求,按项计入,投标人自行踏勘现场,综合考虑报价,中标后不予调整。
1、基坑周边地表裂缝监测:按一项3000元列入基坑支护分部分项工程量清单中,需派现场专人巡视,投标单位自行勘察现场,自行报价,中标后不予调整。
2、临时水、电报装及接引:按一项600000元列入基坑支护分部分项清单中,由施工单位自行报装和接引,施工用电变压器不得小于400KVA,施工用水容量必须考虑后期各单项分包总用水容量(不小于一个80水表),投标人自行报价,中标后不予调整。工程完工后,水电设施应在发包人要求的时限内无条件完成拆除、清运出场后自行处理。
3、现状建筑物,构筑物、杆线、地下基础、地下管线、建筑垃圾、房屋基础、、苗木等一切影响施工的障碍物拆除、清运按一项100000元列入土方工程分部分项工程量清单中,投标单位自行勘察现场,自行报价,中标后不予调整。
4、大体积混凝土施工增加费:按一项183240.56元列入地下车库(含人防)工程分部分项工程量清单中,大体积与超长结构砼施工前应编制专项施工方案,施工与养护要求均按混凝土结构施工规范执行,砼浇筑前施工单位必须做好详尽的施工组织设计,经有关部门审核认可,必要时需经专家评审,一旦确定须严格执行,投标单位自行勘察现场,自行报价,中标后不予调整。
5、B区地下车库沉降观测点预埋:按一项2000元列入地下车库(含人防)工程分部分项工程量清单中,预埋件规格、埋设位置、数量满足图纸设计及观测单位要求,投标单位自行勘察现场,自行报价,中标后不予调整。
6、预留洞封堵:所有洞口、管道洞口封堵,防火封堵等按一项10000元列入地下车库(含人防)工程分部分项工程量清单中,预埋件规格、埋设位置、数量满足图纸设计及观测单位要求,投标单位自行勘察现场,自行报价,中标后不予调整。
7、抗震支吊架:各投标单位在投标报价时应充分考虑抗震支架后期专业厂家深化设计并完成制作、安装等一切相关费用,验收要满足符合《建筑机电工程抗震设计规范》GB50981-2014、《建筑机电设备抗震支吊架通用技术条件》(CJ/T 476-2015)、《建筑抗震设计规范》GB50011-2010等规范要求,确保整个抗震支吊架验收通过;清单A区按一项计入社区中心安装工程分部分项工程量清单中,B区按1项计入地库安装工程分部分项工程量清单中(地下车库、社区中心控制价按建筑面积按30元/m2计入;单体住宅地上部分及配电房不计),投标人自行报价,中标后不予调整。
8、接管:雨污水管道及其他需接入市政管网的按一项30000元计入室外排水工程分部分项工程量清单中,投标单位自行勘察现场,自行报价,中标后不予调整。
9、埋地管网敷设施工范围内破复:道路和障碍物破除,恢复及多余土方、垃圾外运等,按一项50000元列入B地块室外总体(给水、电力等)分项清单中,投标单位自行勘察现场,自行报价,中标后不予调整。
10、主楼沉降观测点预埋:按一项2000元列入各个主楼单体(土建装饰)分部分项工程量清单中,预埋件规格、埋设位置、数量满足图纸设计及观测单位要求,投标单位自行勘察现场,自行报价,中标后不予调整。
11、洞口开洞、封堵:含门洞、室内管、井等在内的各种管道封堵按一项10000元列入各个主楼单体(土建装饰)分部分项工程量清单中,包括但不限于防火封堵、给水、排水、供水、电气、弱电、燃气、消防等配套单位的洞口预埋、开洞、封堵(含一次封堵及二次封堵)、修复、清理等一切工序及费用,满足防火构造及防火封堵要求,投标单位自行勘察现场,自行报价,中标后不予调整。
四、补充图纸及修改图纸的说明:
本工程在第一次发放图纸后,有补充图纸,具体详见图纸目录。
五、总承包服务费:
详见招标文件。
六、温馨提示:投标人投标报价还须仔细阅读本项目招标文件,慎重报价。
应满足《合肥市住宅工程质量通病防治导则》、钢筋(合建质安监[2011]64号)文件规定(施工过程中不得因连接方式不同、工艺调整等原因,提出影响造价的要求)、《绿化导则》及业主对现场文明施工的要求等。
七、业主的其他要求及提示:
1、完全按照《合肥市住宅工程质量通病防治导则》执行,费用包含在投标总价中,不单独列项,投标人综合考虑,标后不予调整。
2、严格根据(合建质安监[2011]64号)文件执行,投标人必须在施工过程中,达到规范及验收要求,费用投标报价中综合考虑,施工过程中不得因连接方式不同、工艺调整等原因,提出影响造价的要求。
3、土方平衡总平面图的平整后土方标高与图纸设计室外标高有偏差,此部分偏差由投标人自行踏勘现场,费用包含在投标总价中,不单独列项,投标人综合考虑,标后不予调整。
4、请投标单位对现场进行详细深入勘查,对于现场实际与设计或投标文件及招标清单不相符的,或者可能导致施工顺序、施工工期、施工成本发生改变的,在投标之前提出,否则,认为费用已综合考虑在投标报价中,不单独列项,中标后不得以任何理由提出工期和费用索赔。
5、所有的专家评审、专家论证费用,包含在投标总价中,不单独列项,投标人综合考虑,标后不予调整。
6、施工单位中标后需无条件配合业主办理施工许可证直至竣工备案结束的一切相关手续所产生的费用,费用包含在投标总价中,不单独列项,投标人综合考虑,标后不予调整。
7、投标单位自行踏勘现场,应做好周边建筑物、构筑物(含管网)等的安全防护工作,安全防护费用包含在投标总价中,不单独列项,投标人综合考虑,标后不予调整。
8、钢结构、幕墙工程,投标人慎重报价,后期施工因需满足设计需求及质量验收要求,可能需进行局部优化设计,因此造成费用增减,不单独列项,投标人综合考虑,标后不予调整。
9、室外水、电管道的覆土厚度不满足规范要求,需按照相关规范采取保护措施,费用包含在投标总价中,不单独列项,投标人综合考虑,标后不予调整。
10、控制柜、配电柜、箱后期安装调整位置费用,费用包含在投标总价中,不单独列项,投标人综合考虑,标后不予调整。
11、请投标单位综合考虑临时设施等需要的场地租赁费用,费用包含在投标总价中,不单独列项,投标人综合考虑,标后不予调整。
12、基坑支护工程里,部分支撑后期需要拆除,费用包含在投标总价中,不单独列项,投标人综合考虑,标后不予调整。
13、投标报价除考虑临时设施费用外,还应考虑临时设施的拆除、及其拆除后建筑垃圾外运等费用,做到工程完工时“工完、料尽、场地清”。临时设施包括:施工现场的临时房屋及其基础、临时道路、场地硬化、临时围挡及其基础、塔吊等设备砼基础及其它为满足施工需要的临时建筑物和构筑物,费用包含在投标总价中,不单独列项,投标人综合考虑,标后不予调整。
14、现场施工场地狭小,无办公区、生活区等场地,投标人须勘察现场充分考虑上述因素,费用包含在投标总价中,不单独列项,投标人综合考虑,标后不予调整。
15、施工围墙铺挂绿篱,费用包含在投标总价中,不单独列项,投标人综合考虑,标后不予调整。
16、地下室人防封堵除图纸设计外,其他平时及战时封堵需满足人防验收要求,保证人防验收合格,新增的封堵费用,费用包含在投标总价中,不单独列项,投标人综合考虑,标后不予调整。
17、电梯安装验收合格后至工程竣工交付使用期间,总包单位不得以任何理由拒绝附属单位使用电梯,期间电梯发生故障及定期的维护保养产生的相关费用,费用包含在投标总价中,不单独列项,投标人综合考虑,标后不予调整。
18、所有与设备调试相关产生的人工、材料、机械等费用,费用包含在投标总价中,不单独列项,投标人综合考虑,标后不予调整。
19、施工进场道路使用时可能未移交交警和城管等进行管理,需投标单位进行道路综合管理养护,包括但不限于道路清扫、洒水、维修、路口交通指挥、道路安全保障、夜间照明等;费用包含在投标总价中,不单独列项,投标人综合考虑,标后不予调整。
20、基坑应急措施处理费,含坡顶水平位移及竖向沉降、深层水平位移、锚杆内力、管线应急处理措施等,费用包含在投标总价中,不单独列项,投标人综合考虑,标后不予调整。
21、供水、供电、燃气、三网、有线等管线外接,需破除和修复市政道路接引点的,相关破复费用、手续的办理费用由总包单位负责;费用包含在投标总价中,不单独列项,投标人综合考虑,标后不予调整。
22、供水、供电、燃气、三网、有线电视、太阳能等附属单位进场施工,总包单位需无条件配合,包含土方回填及多余土方、垃圾的外运,二次施工、拆除、修补、封堵、开孔、开槽、清理、布管穿线、局部改造、室外交叉施工所导致的破复等为满足后期安装以及主管部门验收要求的全部整改,并及时提供临时材料堆放仓库、提供人货电梯、室内电梯、电源接引点等服务;总包单位不得以任何理由阻挠施工,不得以任何理由拒绝提供供水、供电、燃气、三网、有线电视等电源接引点,不得以任何理由拒绝提供临时材料堆放仓库,不得以任何理由拒绝提供人货电梯及室内电梯使用;中标人不得以为满足燃气、有线电视、电信等政府行业部门验收为理由办理任何签证。配合费及水电费包含在投标总价中,不单独列项,投标人综合考虑,中标后不予调整。
23、地下室照明费、外墙后浇带先回填外围留置工作井费,费用包含在投标总价中,不单独列项,投标人综合考虑,标后不予调整。
24、止水螺栓:所有地下室外墙剪力墙及人防墙部位采用止水螺栓,含穿墙止水螺栓、凿槽、切割、阻锈、封堵,不得采用套管,螺栓不循环使用;费用包含在投标总价中,不单独列项,投标人综合考虑,标后不予调整。
25、地库所有穿墙、板的预留洞口、预留钢套管、管道穿墙板的开洞、封堵等费用,费用包含在投标总价中,不单独列项,投标人综合考虑,标后不予调整。
26、室外综合管线及地下管线交叉较多、各投标人应综合考虑管线避让等技术处理措施引起的工程量变化,不单独列项,投标人综合报价,中标后不得以此为由增加相关费用。
27、基础不良地基、基础超挖换填处理费:基础开挖中如遇不良地基、基础超挖,需用C15商品混凝土填充共计360m3,现场淤泥需要挖、翻晒、运等;投标人自行勘查现场,不再另行增加费用,综合考虑,标后不予调整。
28、配电房零星项目:该项目所有配电房轴流风机、排气扇等;供电部门施工完成后污染的墙地面修复、垃圾外运等,弃置点、弃置运距自行考虑;电缆沟桥架、上进上出桥架、改造大门、内门、线路、插座、照明、配电房低压柜至配电房照明控制箱接线电缆等;满足供电部门验收的其他一切要求,不单独列项,投标人综合考虑,标后不予调整。
29、施工围挡:执行《关于落实建筑工地安装智能围挡喷雾降尘系统的通知》瑶住建[2018]59号文规定计入相关费用;由投标人自行踏看现场,费用包含在投标总价中,不单独列项,投标人综合考虑,标后不予调整。
30、施工过程中由外部测绘引入施工内部高程基准点等相关费用投标人自行勘查现场,用包含在投标总价中,不单独列项,投标人综合考虑,标后不予调整。
31、施工现场临时道路等相关费用用包含在投标总价中,不单独列项,投标人自行勘查现场,综合考虑,标后不予调整。
32、特别提示:因本次招标的渣土费含在投标报价中,办理施工许可证需要缴纳的建筑垃圾消纳费由中标人先行交付给招标人,再由招标人统一交至市财政,招标人仅提供给中标人建筑垃圾消纳费收据。
第二部分:设计文件及技术补充说明
第一节、土方工程
1、现场是否需要考虑清表、苗木迁移?是否有障碍物需要拆除?本工程开挖的土方是否全部外运?用于基础回填的土方是否堆放在现场?运距按多少公里考虑?
回复: 考虑清表;苗木迁移及障碍物等拆除,由投标人勘察现场自行考虑费用,含在综合报价中,中标后不予调整;土方全部考虑外运出,投标人自行勘察现场,综合报价,中标后不予调整。包括土方(含建筑垃圾、场内遗留物、建筑垃圾、房屋基础挖运及场地清理等)、装车、场内运输、场外运输、卸土及整平等涉及到的全部施工内容。临时便道修建及养护、场内回填、场内及弃土场地面积水排除等全部施工内容。外运运距:清单控制价按照25Km编制,投标单位踏勘现场、自行考虑,该报价含土源费、弃土场费用、办理渣土证费用、城市道路卫生清扫保洁费用等一切可能发生的相关费用,并且中标单位负责办理渣土外运等相关行政许可手续并承担相关费用且严格执行瑶海区渣土运输管理规定,回填土全部考虑外购回填。以上费用:投标单位综合考虑,自行报价,中标后不予调整。
2、挖基础土方时,用于基础回填的土方是否堆放在现场?
答:基础回填土方不堆放现场,全部外购土方回填(报价含土源费、弃土场费用、办理渣土证费用、城市道路卫生清扫保洁费用等一切可能发生的相关费用),运距由投标单位踏勘现场、自行考虑,以上费用:投标单位综合考虑,自行报价,中标后不予调整。
3、7#楼桩基底部注明需在CFG桩施工前将设计标高下的杂填土挖除再进行桩基施工及主楼筏板底部未达设计标高需用C15混凝土浇筑至设计标高需挖除的土方量,请明确此部分的土方挖除的工程量?
回复:基础开挖中如遇不良地基、基础超挖,需用C15商品混凝土填充共计360m3,现场淤泥需要挖、翻晒、运等;投标人综合考虑,标后不予调整。
4、土方平衡图纸中的挖土范围是是否为实际挖土范围?土方回填范围是否为建筑红线内还是平衡图纸中的所有挖土范围??


回复:建筑红线外土方挖填平衡至设计标高19.52m.建筑红线内按照设计图纸挖填。
5、B区地下室回填采用2:8灰土回填,顶板以上进行覆土,请问覆土是否为素土,请明确?
回复:以地下室顶板为界限,顶板以上为素土回填,顶板以下全部为2:8灰土回填。
6、社区中心图纸中的地下室2:8灰土回填结构总说明跟地下室结构说明不一致,以哪个为准,且是否以地下室顶板为分界线,以上为素土回填,以下为灰土回填,请明确??


回复:同B区地下车库,以地下室顶板为界限,顶板以上为素土回填,顶板以下全部为2:8灰土回填。
第二节、土建工程
一、共性问题
1、本工程完全按照钢筋(合建质安监[2011]64号)文件规定及相关最新文件执行?
回复:是
2、图纸设计中一级钢直径6的钢筋是否采用直径为6.5的钢筋计入?
回复:同意
3、请明确本次工程所用混凝土模板的材质?
回复:现浇混凝土模板材质控制价按复合木模板计入,投标单位可自行考虑,自行报价,中标后不得调整;止水螺栓由投标人综合考虑在报价中,控制价不单列项,投标单位根据现有的图纸资料、招标文件和施工规范等资料,自行考虑,综合报价,中标后不得调整。
4、请明确脚手架搭设方式?
回复:搭设方式由投标单位依据施工组织设计方案及相关规范综合考虑,中标后不得调整。
5、图纸设计采用的煤矸石砖材料是否为全煤矸石烧结砖?
回复:是
6、本工程未见图纸审查回复,关于图纸审查回复修改是否在图纸中修改了?
回复:是
7、楼栋牌、单元牌、楼层牌、房号牌、高空警示牌、无障碍通道牌、信息告示栏、门禁推拉牌、门禁安全提示牌、电梯使用须知、设备提示牌是否计入,如计入请明确数量、材质及做法?
回复:计入,详见标识标牌工程量清单
8、请明确信报箱材质及具体做法?
回复:详见标识标牌工程量清单
9、是否增设竣工铭牌,如需增设,请明确具体做法及数量?
回复:详见标识标牌工程量清单
10、电梯轿厢是否设置防护,如设,请明确做法?
回复:设置,电梯机轿箱四周及底板用不小于18mm木工板进行防护,必须满足业主要求,投标报价中充分考虑,一次性包干,中标后不再调整。
11、请明确铝合金门窗铝型材系列?
回复:门采用100系列。窗户采用70系列;
12、请明确铝合金百叶窗壁厚及规格?
回复: 铝合金百叶窗壁厚及规格详见室内外装修做法表。
13、止回阀图集设计为BPS型止回阀有侧开式和自控式两种,请明确具体采用哪种?
回复:侧开式
14、成品风帽材质请明确?
回复: 材质为不锈钢
15、装修表中电梯门套为不锈钢门套,做法见11J930第H66页节点2?该图集节点做法为石材门套,是否有误请明确?

回复:图集有误;采用1.5mm厚304拉丝不锈钢包边,基层板改为18mm阻燃板,详见附图:
16、结构设计说明电梯圈梁最终根据电梯厂家要求设置,请提供电梯相关图纸?
回复:电梯圈梁每层设置一道
17、结构说明中“楼梯间、走廊填充墙采用钢丝网砂浆面层加强,内设Φ4@200钢筋网片,30厚M7.5水泥砂浆粉刷”。建筑说明中“楼梯间和人流通道的砌体填充墙应满铺热镀锌电焊网砂浆面层加强”,建筑与结构设计说明不一致,请明确?建筑装修表中抹灰做法与结构设计说明不一致,是否以装修表为准?
![]()

回复:以建筑为准,楼梯间和人流通道的砌体填充墙应满铺直径1.0MM铺热镀锌电焊网砂浆面层加强,抹灰以建筑装修做法为准。
18、建筑设计说明中“填充墙在两种不同材料交接处,外,内墙面采用加强带距离接缝部位的宽度为300mm宽的直径1.0MM热镀锌电焊网或加强型耐碱玻璃网格布抹聚合物砂浆并锚固的加强带进行抗裂处理”请明确具体采用何种材料?

回复;采用加强带距离接缝部位宽度为300mm宽直径1.0MM热镀锌电焊网进行抗裂处理。
19、屋面二、屋面三做法中铝箔保护层厚度请明确?

回复;防水卷材材料自带的铝箔保护层
20、建筑设计说明中屋面保温层或找平层干燥有困难时(如遇空气湿度较大,雨季施工或保温隔热材料的含湿量较大等)应设排气屋面。本项目是否设置排气屋面,请明确?如设置请明确具体材质?

回复:设置排气屋面,采用Φ50镀锌钢管排气道。
21、防水设计说明中“雨篷防水:雨篷面粉20厚1:2水泥砂浆(防水剂为水泥重量5%),砂浆内掺高强聚丙稀防裂纤维。”屋面设计说明中“无保温空调板、雨篷、屋顶构架顶、风井盖板:最薄处20厚1:2防水砂浆找平压光(内掺5%防水剂高强聚丙稀防裂纤维)”,请明确以何为准?


回复;统一采用20厚1:2防水砂浆找平压光(内掺5%防水剂高强聚丙稀防裂纤维)
22、建筑设计说明中“外门及窗开启扇均带纱扇,底层外门窗需设防盗窗。”请明确具体材质及做法?
![]()
回复:纱窗为塑料纱窗,窗框材质同窗户;防盗窗材质为铝合金材质,颜色同窗框。防盗窗边框为25×25×1.0厚竖向铝合金方管(内穿Φ16钢筋),Φ16×1.0厚铝合金(内穿Φ10钢筋)横档,间距110。
23、散水做法中“耐穿根刺层按工程设计。”请明确具体材质?

回复;4厚SBS改性沥青耐根穿刺防水卷材。
24、无障碍坡道栏杆做法中20圆钢壁厚,请明确?

回复:无障碍坡道栏杆按景观图纸做法计入景观工程
25、雨蓬底饰面是否增加腻子,请明确?
![]()
回复:同真石漆做法
26、建筑设计说明中“厨房、卫生间、阳台及层间退台屋面、露台、向上设一道高出装饰面层200的C20混凝土防水反梁(宽度同墙体),与楼板一同浇筑。”与楼板一起浇筑,混凝土标号是否同楼板?

回复:与楼板混凝土等级相同。
27、建筑设计说明中“凡公用专业管道竖井、管道间检修门下,均做C15混凝土门槛,未注明者均高300mm”,结构设计说明圈梁混凝土等级为C25,是否以结构为准?
![]()

回复:是
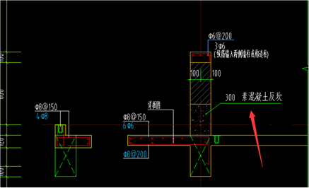
28、结构大样图中素混凝土反坎,混凝土标号请明确?

回复:C25
29、建筑设计说明中分户墙采用200厚蒸压加气混凝土(B06),请明确砌筑砂浆材质?

回复:采用加气块专用砂浆砌筑。
30、建筑设计说明中“分户墙采用蒸压加气混凝土砌块分户墙是剪力墙部分的,墙两边内粉砂浆采用无机保温砂浆以满足节能需要”,请明确无机保温砂浆厚度及做法?

回复:a、12mm厚无机保温砂浆;b、6厚抗裂砂浆内铺复合耐碱玻纤网格布二道
31、节能说明中分户楼板采用板下保温,装修表中分户楼板采用板上保温,请明确?

答:采用板上保温。
32、建筑设计说明中“防水层遇女儿墙或侧墙时应沿墙面翻起600高,女儿墙不足600的防水层沿墙面上350”大样图中设计卷材防水层上翻≥250,请明确?
![]()

回复:以防水层遇女儿墙或侧墙时应沿墙面翻起600高,女儿墙不足600的防水层沿墙面上350为准。
33、建筑设计说明中台阶、坡道做法与装修表中台阶、坡道做法不一致,请明确?

回复:室外台阶、坡道、无障碍坡道、无障碍坡道栏杆均计入景观工程
34、一层门厅石膏吊顶石膏板厚度请明确,石膏板是否增加腻子及油漆,请明确?

回复:12厚防潮纸面石膏板,石膏板面层做法同顶棚1
35、架空层顶棚涂料是否采用外墙涂料,请明确?

回复:架空层顶棚、墙面、内天井外墙为柔性耐水腻子两遍、外墙乳胶漆两遍、外墙罩面清漆一遍。
36、住宅底层架空层地砖拼花由景观另行深化设计,请明确?

回复,架空层地面详见景观图纸设计,计入景观范围内。
37、节能设计说明外墙保温采用岩棉板(涂料饰面),装修表外墙做法中外墙保温采用硬泡聚氨酯复合板,请明确?

回复:外墙保温采用岩棉板(涂料饰面)。
38、装修表外墙做法中有保温外墙与无保温外墙找平层做法不一致,是否统一,请明确?

回复:统一改为20厚1:2防水砂浆(掺5%防水剂)找平层;
39、防火窗材质及玻璃请明确?
![]()
回复:不是防火窗,窗框材质与玻璃材质与普通层材质相同,仅满足耐火完整性1小时要求。
40、建筑说明中“单元门做法需满足供轮椅通行的门扇,安装视线观察玻璃、横执把手和关门拉手,在门扇的下方安装高0.35m的护门板” 护门板材质,请明确?
![]()
回复:1.5mm厚铝合金板材护门板,用3M双面胶粘接,玻璃胶辅助粘接
41、造型窗深灰色彩铝镂空,材质及做法请明确?

回复:做法同外窗
42、卫生间排气扇排气孔、燃气式热水器预留排气孔,钢套管壁厚,请明确?

回复:厚度3mm
43、空调套管材质,请明确?

回复:砖墙采用PVC套管,混凝土墙、梁处采用3mm钢套管
44、太阳能预留孔是否增加套管,如增加,请明确套管材质及规格?
回复:增加DN80*3mm钢套管
45、社区中心、单体楼门头石材幕墙花岗岩品种,请明确?

回复:30mm厚西班牙米黄花岗岩
46、窗台压顶结构中用于平窗为80高,建筑节点详图为100高,请问以哪个为准?
回复:无造型要求的以结构为准
48、建筑说明空调板翻边高120mm,节点大样均为300mm高,请问以哪个为准?
回复:以节点翻边高度为准
47、建筑说明厨房卫生间内墙1600以上为实心煤矸石砖Mu15,是否理解为墙高1.6米以上,厨卫内墙都为实心煤矸石砖?如果是这样洗漱台是否也为实心煤矸石砖?
回复:是
48、本工程外墙保温是否按建筑大样所示做至标高53.000,是否需要做至顶及翻向内侧?
回复:女儿墙内外侧均做保温层。
49、户型大样详图中保温走阳台、合用前室、走道内侧,饰面是否同原装修表做法? 
回复:是,阳台饰面为内墙5
50、一层未设计太阳能板是否增加?请明确?

回复:
51、电表间、电梯机房天棚做法请明确?
回复:电梯机房、电表间为顶棚1
52、一层门厅是否仅红色区域范围?

回复:是
53、一层箭头所指地方地面做法请明确?

回复:此处做法同内部天井
54、卷帘外遮阳是否计入,如计入请明确具体材质及做法?

回复:详见补充图纸
55、是否所有非机动车库一层此处均设置防坠板?

回复:以各单体结构图为准
56、栏板、挑檐板、雨篷混凝土等级请明确?
回复:同相应楼层的板混凝土等级。
57、6#楼梁配筋图中说明“连梁(LL)混凝土等级同剪力墙;未注明LLK混凝土等级与当层框架梁(KL)相同”?其余楼栋是否均按此说明计入?

回复:所有楼栋未注明LLK混凝土等级与当层框架梁(KL)相同
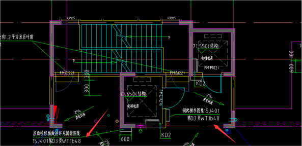
58、电梯机房检修爬梯与屋面检修爬梯设计做法均为15J401第D3页WT1b48,是否有误?

回复:电梯机房爬梯做法统一为15J401第A10页T4A06

59、屋面出入口做法平面图设计为12J201第 A17页节点1,节点图设计为12J201第 A20页节点1、2,请明确以何为准?


回复:以平面图设计为准。台阶饰面为20厚1:2水泥砂浆
60、滴水线材质,请明确以何为准?
![]()
回复:成品PVC滴水线
61、请明确屋面分隔缝间距及填缝材料?

回复:其纵横间距不大于6m,分格缝宽度5~20mm,并应用密封膏嵌填
62、请明确屋面一做法中隔离层砂浆强度等级?

回复:采用DS-M15预拌砂浆
63、聚氨酯防水是否统一为聚氨酯(双组份)防水涂料?
回复:是
64、电表间屋面做法请明确?

回复:电表间屋面参照屋面二:不上人无保温平屋面
65、请明确外墙保温构造做法?
回复:a、岩棉带与基层的连接应采用条粘法,粘贴面积不小于80%,并辅以锚栓固定。板材应错缝粘贴;b、岩棉板(厚度见节能简表)c、6厚耐碱玻纤网布抗裂砂浆;d、建筑物首层抹面层内铺一道普通型耐碱玻纤网布、一道加强型耐碱玻纤网布,二层及其以上抹面层内铺二道普通型耐碱玻纤网布; e、外墙外保温系统锚栓的设置数量应满足:不少于8个/m2,并保证每块板上至少1个锚栓;f、外墙保温系统应在每两层楼板标高处设置经防腐处理的40*40*3mm金属支撑托架;其他详见《岩棉板外墙外保温系统应用技术导则》DBHJT002-2011
66、请明确架空层保温构造做法?
回复:a、岩棉带与基层的连接应采用条粘法,粘贴面积不小于80%,并辅以锚栓固定。板材应错缝粘贴;b、岩棉板(厚度见节能简表)c、6厚耐碱玻纤网布抗裂砂浆; d、锚栓的设置数量应满足:不少于8个/m2,并保证每块板上至少1个锚栓;
67、楼面4做法中找平层水泥砂浆比例请明确?

回复:1:3水泥砂浆
68、飘窗板装饰做法请明确?
回复:20厚1:2水泥砂浆
69、请明确踢脚线具体位置?
回复:二层及以上门厅、公共走道、电梯间、前室采用地砖踢脚线,地砖踢脚线采用地砖配套踢脚线;除门厅、公共走道、电梯间、前室以外所有房间均采用水泥踢脚线
70、门槛石花岗岩品种请明确?

回复:50mm厚黑金砂花岗岩,结合层做法同楼面2
71、FM乙1121a门窗表设计尺寸为1000*2100mm,是否有误,请明确?
![]()
回复:门窗表有误,尺寸为1100*2100mm
72、入户门材质请明确?
![]()
回复:入户门为成品钢制防盗、乙级防火、保温隔音门
73、窗帘盒大样做法中角钢规格,请明确?

回复:L40*40*3mm镀锌角钢
74、装修表中“说明非机动车坡道护栏及架空层与室外交接处护栏,阳台,护窗,走道栏杆为黑色镀锌材质”,建筑设计第14.3条说明“其中护窗钢护栏为不锈钢管构件”,请明确以何为准?

回复:以装修表为准
75、空调栏杆做法请明确?

回复:做法详见图集15J403-1第D13页节点PA1,栏杆为黑色镀锌材质
76、外立面饰面三深咖啡金属漆做法请明确?


回复:做法同真石漆
77、结构大样图中反坎做法不一致,已何为准?

回复:统一参照6#楼大样做法,混凝土同梁板标号。
78、机房层室外楼梯及平台栏杆做法请明确?

回复:做法同1#楼,详见图集11J930-K12,材质为黑色镀锌钢管
79、地下车库汽车坡道做法过于简单,找平层材质、厚度,黄。绿骨料的厚度材质均未详细描述,请完善做法?

回复:请按照以下做法:1:1树脂与水比例渗透封闭底层(树脂0.2kg/㎡)+2mm厚抗压层,树脂,水及骨料(金刚砂)比例为1:1:10(树脂0.6kg/㎡,骨料4kg/㎡)+4mm厚止滑层,树脂,水及骨料(金刚砂)比例为1:1:10(树脂0.6kg/㎡,骨料6kg/㎡)+罩面层为0.2 kg/㎡不加水树脂
二、个性问题
(一)、1#楼
1、屋面层梁配筋图20轴LL2(1)无尺寸及配筋信息?
回复:同1轴WLL2。
2、结施10/31墙身大样机房层楼梯间出入口处雨蓬无平面尺寸标注?
回复:雨蓬平面尺寸为1000*1200mm
3、门窗表中FM丙0918洞口尺寸为900*2100mm,FM丙1218洞口尺寸为1200*2100mm,是否有误?
回复:FM丙0918洞口尺寸为900*1800mm,FM丙1218洞口尺寸为1200*1800mm
4、建施10/22墙身大样机房层楼梯间出入口雨蓬顶百叶窗在平面图中无标注,是否为BYC1210?

回复:是
(二)、6、8#楼
1、6、8#楼建筑设计有雨棚,结构未设计,是否参照9#楼计入,请明确?

回复:是
2、户型大样详图北侧线条设计为GRC装饰线条,结构图纸设计为混凝土线条,请明确以何为准?

回复:以结构设计为准
3、门窗表中FM乙0615材质请明确?

回复:FM乙0615为钢制乙级防火、保温门
(三)、7、9#楼
1、户型大样详图中此处设计为GRC装饰线条,请明确具体尺寸及规格?

回复:本项目无GRC装饰线条,此处为砖墙
2、二层平面图此处设计为雨棚,大样图设计为不上人无保温屋面,请明确已何为准?


回复:做法为不上人无保温屋面
3、6#、8#楼走廊窗户设计有300mm护栏,7#、9#未设计,是否增加请明确?

回复:增加
(四)、4#、10#楼
1、结构图纸,“结构层楼面标高;结构层高”表中,4#楼1层层高为2.855m、21层层高为3.00m、10#楼1层层高为2.855m、23层及24层层高为3.00m;而建筑立面图中,以上楼层层高均为2.9m,请设计复核。
回复:4#一层为架空层,建筑面层为40mm,建筑标高为-0.150m,故结构标高为-0.550,层高为2.855m无误。10#楼1层结构标高为-0.030m,层高为2.830m;4#楼21层、10#楼23层层高应为2.90m,原图笔误。
2、结构图7轴及18轴交C轴处仅“四层、二十三层梁配筋图”设计有XL4,其他楼层均没有,请设计复核其他标准楼层该部位是否均需设置XL4?
回复:经复核需要设置XL4。
3、天井内的空调板平面图标注板厚为100厚,而墙身图标注为120厚,且该户型其他部位空调板均为120厚,该处是否也统一为120厚。

回复:该处统一为120厚。
4、4#楼结构图,二层结构布置图,如下部位是否为误画(与建筑平面图不一致),是否取消?
回复:取消。
5、4#楼首层天井处板面是否考虑参照不上人不保温屋面做法?

回复:是
6、分户墙及电视背景墙砌筑材料不同,两者重叠时,砌筑材料如何选择?
回复:按电视背景墙考虑
7、消防控制价装饰做法请明确?
回复:地面采用600*600*35mm防静电全钢活动地板(含支架)及配套踢脚线、墙面及天棚按电梯机房做法计入。
8、门窗表备注的“深灰色金属隔热型材推拉窗,详见大样图”大样为内平开窗,是否按内平开窗计入?
回复:是。
9、根据节能一览表,南侧窗户为内置中空百叶窗,而门窗表中无该类型窗户?
回复:无内置百叶中空玻璃窗,窗户类型均按门窗表为准。
10、走廊1200高的栏杆未见具体做法?
回复:与2#楼保持一致,高度1100mm,做法详见15J403-1 PC5/D51
11、阳台栏杆及屋顶护窗栏杆高度与其他楼栋不一致,请明确。
回复:阳台栏杆修改为400高,屋顶护窗栏杆修改为800高
12、以下部位是按异形柱考虑还是剪力墙考虑
回复:该处按剪力墙考虑
(五)、社区中心
1、图中指出的后浇带是否为伸缩后浇带?
回复:是的。
2、此处电梯基坑板厚未明确,是否按250mm厚?
回复:为300mm。
3、防火卷帘上方需做结构挂板,请明确结构挂板的尺寸及配筋?
回复:
按此大样。
4、图中圈出的一层商业卫生间这三道墙顶未设计结构梁,是否增加?
回复:不增加
5、请明确米黄色干挂石材的品种?
回复:30mm厚西班牙米黄花岗岩
6、通风井顶板标注为花池,是否计入?如计入,请明确花池的做法?
答:计入,花池做法:1)钢筋混凝土屋面板 2)30厚1:3水泥砂浆找平找坡 3)2.0厚2型聚合物水泥防水涂料+1.2厚聚氯乙烯PVC耐根穿刺防水卷材 4)200g/m2聚酯无纺布隔离层 5)25高塑料凹凸排水板 6)200g/m2无纺布过滤层,7)100厚种植土草皮
附注:平完成对侧预埋φ50钢管排水管。
7、请明确构架屋面做法?
答:做法为米黄色真石漆。
8、消控室、值班接待室、门厅、物业维修、餐厅、净菜市场、摊位、便民商业、社区用房、等房间的室内装饰做法均按装修表中“除厨房、卫生间等以外供人员使用的功能房建、设备间、楼梯间、前室、公共走道”的做法计入?
答:消控室:顶1墙1地面采用600*600*35mm防静电全钢活动地板(含支架)及配套踢脚线
备餐、厨房:顶5墙4地3
净菜市场、摊位:顶1墙4地3
其余为共性做法。
9、一层净菜市场、二层便民商业防火玻璃固定式挡烟垂壁是否计入?如计入,请提供详细节点做法?

答:计入,做法参L13J7-3第82页节点4.
10、三层侯梯厅电动挡烟垂壁是否计入?如计入,请提供详细节点做法?
答:计入,做法参L13J7-3第86页。
11、楼梯间100mm厚防火隔墙的做法未明确?
答:煤矸石空心砖。
12、一楼厨房及净菜市场地面排水沟及盖板做法未明确?
答:排水沟做法参07J306第P9页节点3,成品金属排水篦子。
13、上人有保温种植平屋面缓冲带、挡土板的材质及做法请明确?
答:计入,缓冲带材质卵石,挡土板为1.2厚不锈钢网冷弯,间距800设3厚不锈钢板与钢板网焊牢。
14、四层物业服务用房轻质玻璃隔断是否计入?如计入,请明确具体做法?
答:改为砖砌
15、卫生间大便蹲位是否计入?如计入,请明确具体做法?
答:计入,陶瓷蹲便器,做法参02J915第70页。
16、卫生间大便蹲位隔断及小便器隔断是否计入?如计入,请明确具体材质及做法?
答:计入,做法参02J915第39页、45页,成品18mm抗倍特板
17、卫生间洗手台是否计入?如计入,请明确具体材质及做法?
答:计入,做法参16J914第XT11页,陶瓷洗手台,18mm厚人造石洗手池台面
18、烟道是否设排气帽、止回阀?
答:设,排气帽和止回阀做法同住宅
19、请明确哪些房间做层间保温?
答:除厨房、卫生间、楼梯间、电梯机房、设备间、冷媒井、公共走道以外房间的楼板均做层间保温
20、请明确铝合金门、窗的型材系列?
答:门100系列,窗90系列
21、请明确室内木门的做法?
答:成品实木套装门
22、护窗栏杆做法是否为图集第D13页PB1型?
答:是
23、无障碍楼梯栏杆做法是否有误?![]()
答:修改为![]()
24、架空层板下保温材料未明确?
答:65厚岩棉板
25、结施07刚性地坪与装修表中一层地面的结构层以哪个为准?

答:按装修表做
26、请明确排水沟铸铁篦子的厚度?
答:35厚铸铁排水篦子
27、预留连通口拆除本次是否计入?
答:拆除不计入
(六)、门卫
1、门卫室M1022及M0822具体做法需明确?
回复:M1022修改为钢制防盗门,M0822修改为深灰色金属隔热型材铝合金平开门,型材壁厚不应小于2.0mm,门采用100系列,玻璃采用6中透光LOW-E+12空气+6,卫生间采用磨砂玻璃。
2、该部位是否按真石漆外墙做法施工?
回复:是
3、该部位具体何种做法?
回复:100厚的砖墙
4、小区大门伸缩门库处的字体未见做法?
回复:该字体计入在标识标牌相关的单位工程内
5、门卫房砖墙材质是否与住宅楼保持一致:砖基础采用MU10全煤矸石实心砖、M7.5水泥砂浆砌筑;伸缩门库墙体及卫生间1600以上墙体采用MU15全煤矸石实心砖、M5预拌砂浆砌筑;其他墙体均采用MU5.0非承重全煤矸石空心砖、M5预拌砂浆砌筑。
回复:是。
6、圈梁、过梁、构造柱、混凝土雨棚、栏板是否均采用C25商品砼?
回复:是。
7、伸缩门库内部是否考虑抹灰?

回复:按外墙抹灰计入。
8、门卫室防水做法,装修表与设计说明不一致?
回复:按装修表为准。
9、门卫房及卫生间顶棚乳胶漆是否均按“满刮白水泥腻子两遍,乳胶漆一底两涂”?
回复:是
10、卫生间墙砖需明确规格?
回复:600X300浅色面砖
11、门卫房地砖规格是否为800*800?
回复:是。
(七)地下车库问题
1、人防地下室分战时、平时两种状态,本次招标是否按平时考虑?如按平时考虑,其战时临战封堵等是否计入本次招标范围?
回复:按平时考虑
2、人防防护设备是否计入本次招标范围,若计入,平面图与防护设备表中的门数量不一致,HFM1220(6)左平面图中为4樘,平面图为2樘,HFM1520(6)左平面图中为2樘,设备表中为1樘,HFM1520(6)左平面图中为2樘,设备表中为5樘,HM1820左平面图中无,设备表中为1樘,HM1220左平面图中为1樘,设备表中无,请明确具体数量?
回复:计入,按照平面图中的数量为准,HFM1220(6)左4樘,HFM1520(6)左2樘,HFM1520(6)2樘,HM1820左无,HM1220左1樘。
3、桩基工程是否计入本次招标范围?
回复:计入
4、地库顶板与上部建筑内、外墙、风井侧壁、和坡道挡墙等交接处防水是否设置反边?如设置,请明确高度及做法。
回复:设有翻边,上翻高度500,具体做法见施工图节点大样
5、此处是否可以确认混凝土保护层厚度,避免最高限价清单出现不确定因素,不好组价?
回复:地下车库混凝土保护层厚度见地下车库结施图说明。
6、是否人防区域房间装修做法均参照建筑设计说明中地下室装修一览表?
回复:是
7、消防水池、消防泵房涂刷防水涂料,是否仅地面和墙面刷防水?
回复:顶板做有防水,具体如下图
8、本工程地库筏板是否考虑采用砖胎膜?
回复:地库筏板轮廓采用砖胎膜,其它采用放坡,如下图。

9、请明确地下室顶板、地下室底板防水翻边长度。
回复:翻边高度500。
10、地库建筑图及主楼建筑装饰表中均有非机动车库的地面、墙面、天棚装饰做法,请明确是否按地库图纸装饰做法?
回复:按地库图纸装饰做法表做法。
11、主楼地下室及地下车库的配电间、密闭通道、扩散室、风机房、排烟机房、扩散室、存储室等房间无装饰做法,请明确?
回复:此类房间装饰做法同地库设备用房装饰做法。
12、地下车库风井是否同地上风井做法?
回复:地库上部按地库设备用房做法,靠近主楼及主楼风井按主楼做法。
13、电梯井内是否需抹灰?若需砂浆配比及厚度多少?
回复:不抹灰。
14、主楼地下室的楼梯间及电梯厅做法是否按照地下车库图纸中装饰做法?
回复:按照地库图纸装饰做法表
15、主楼地下室的电信间、配电间、通道等部位在主楼装饰表中无做法,是否按照地下车库图纸装饰做法表中的设备用房做法?
回复:是
16、生活泵房、消防泵房无装饰做法 是否同消防水池的装饰做法?
回复:消防泵房按消防水池装饰做法,生活泵房做法如下:

18、桩基上部褥垫层,说明中采用硬质岩破碎碎石,碎石应采用5~16mm粒径的破碎碎石,大样图中显示再用级配砂石或碎石,请明确采用哪种材质?
回复:采用级配砂石。
19、图纸中每栋单体只说明预考虑有效桩10m,各单体楼下部桩长的具体尺寸,请明确数值?
回复:7#桩长12m,9#桩长14m,其它的都是10m。
20、主楼桩基设计图纸中并未明确哪些为工程试桩,请问试桩是否作为工程桩?且设计说明中的试桩数量为总桩体数还是单体主楼的的桩数的1%或三处或桩数5根作为试桩数量。请明确?
回复:本工程试桩不作为工程桩,该说明是针对单体楼的桩数为基数计算,即每个单体计取5根试桩数量。
21、地下室外墙后浇带处的240厚水泥砂浆砌筑砖墙是否为煤矸石实心砖?
回复:是
22、主楼地下室剪力墙与地库剪力墙位置重叠按哪个为准?混凝土强度等级按哪个为准?
回复:取配筋较大者剪力墙构件配置,混凝土等级按照等级强度高取值。
23、、4#、10#楼设计结构总说明中基础的混凝土等级为C35,基础平面图中说明混凝土等级为C30,请明确以哪个为准?


回复:以设计总说明为准,砼等级为C35
24、地下室所有白水泥腻子是否改为耐水腻子?
回复:是
25、风井、采光井的外墙(覆土以上)无装饰做法,是否同建筑外墙真石漆做法,请明确?
回复:同外墙真石漆做法
26、地下车库图纸中主楼部分地下室与主楼图纸中地下室部分描述不一致时以哪个为准,请明确?
回复:建筑、结构主楼图纸为准,装饰部分按照地库图纸为准。
27、砌筑砖胎膜砖材质及砂浆配比是多少,是否内外侧均需抹灰,抹灰砂浆的厚度配比请明确?
回复:砖胎膜MU15混凝土实心砖,M7.5水泥砂浆,内侧采用20mm厚1:3水泥砂浆抹平。
28、风井下部此处防火玻璃是什么材质,请明确?
回复:此为暖通部分,建筑图中仅为示意。
29、地下车库及非机动车库地面采用环氧地坪做法,原装饰做法表中的 50厚C25彩色混凝土是否更改为C25普通商品混凝土?
回复:是
29、主楼下部地下车库外部剪力墙是否考虑抹灰?
回复:地库以外部分不考虑抹灰
30、地下车库的顶板白色乳胶漆是否改成白色防霉涂料?
回复:是
31、集水坑、排水沟内部的水泥砂浆是否改为防水砂浆?
回复:是的
(八)基坑问题
1、土钉支护图中的左侧为钢管注浆,右侧直径18的钢筋是否需要钻孔注浆?

回复:注明注浆则需要注浆,直径18 的钢筋不需要注浆。
2、c18@200的箍筋是否整个桩身长都有??

回复:是的
3、排水沟大样二的砖墙是未砌筑在垫层上,是否同大样一一致砌在垫层之上?,


回复:同大样一砌筑在垫层之上。
4、桩尖拱墙是否需要抹灰?
回复:需要,同集水井采用1:2.5防水砂浆抹面20厚。
5、防护栏杆离基坑支护坡边的距离为多少米,请确认?
回复:离坡边2米。
(九)配电房、开闭所
1、建筑电缆沟坡面图画斜线部位是否为陶粒混凝土填充层?有电缆沟的楼地面都为陶粒混凝土填充?

答:是的,首层做防水楼面不做防水
2、空调板栏杆无做法,参照什么做法?
答:参照栏杆做法10.1高度500
3、室外钢梯栏杆按说明平台1200mm钢梯1100mm还是大样都为1100mm?
答:按说明高度
(十)标识标牌
1、所有标识标牌的工程量及项目特征是否以设计院提供的标识标牌深化设计方案及 工程量清单为准?
答:是
第三节、安装工程
一、共性问题
1、可视对讲系统线缆型号图纸设计与配置清单不一致,是否以配置清单参数表为准?
答:是。
2、给排水设计说明中污水管各层横支管一层单独出户管采用静音排水管,是否标注错误?

答:采用普通U-PVC管,其余楼栋一样。
3、请提供洗涤盆、开水器型号?
答:洗涤盆09S304-30,开水器型号DAY-T813,01S125-3。
4、单体楼出屋面给水及消防水管道防潮层、保护层,铝皮厚度未明确?
答:屋面管道保温材料外,外包0.5mm厚复合铝板。
二、个性问题
(一)给排水部分:
1、4#楼雨水立管YL-7、8系统图一层顶标注侧入式雨水斗,平面图未标注此雨水斗,请明确?
答:非侧入式雨水斗。
2、4#楼消火栓系统图中XL-3,XL-4平面图未标注?消火栓系统图中一层标注4个消火栓,平面图只标注2个,以何为准?消火栓系统图中21层标注4个闸阀,机房层平面图标注5个闸阀,请问闸阀具体位置在21层,还是机房层?闸阀数量以何为准?
答:均平面图为准。
3、6#楼给排水平面图中的FL-6、7、8、9,在污废水系统原理图总未见标注,请明确?
答:6/8#楼如下。
4、6#楼雨水系统个原理图中YTL-1/2中图示支管及地漏在一层给排水平面图未显示,请明确?

答:取消一层地漏。
5、6#消火栓系统原理图中负一层标注5个闸阀,负一层给排水平面图中标注3个闸阀,以何为准?
答:按照5个闸阀计入,此处详见车库图纸。
6、6#楼给排水设计说明中标注每处配置二具MF/ABC2手提式干粉(磷酸铵盐)灭火器。给排水标准层平面图中仅标注1具,以何为准?
答:按照2具计入
7、6#、8#楼户型给水大样图中冷水管接阳台太阳能热水器管径标注De20,其他楼栋标注De25,此处是否标注有误?
答:按照De25。
8、7#楼一层给排水平面图NL-2标注管径De75,系统图标注均标注De50,平面图是否标注有误?

答:DE50。
9、7#楼消火栓系统原理图中一层接室内消火栓环管的管道和闸阀在平面图中未标注,系统图21层标注的闸阀在平面图未标注,请明确?
答:消火栓出户管见地库图纸,顶层闸阀按系统图。
10、7#楼压力排水系统负一层客梯接至集水井管道管径未标注,请明确?

答:DN150钢管。
11、9-10#楼无压力排水系统大样图,请明确?
答:补充图纸。
12、门卫给水系统图中标注止回阀,平面图未标注。以何为准?
答:平面图。
13、门卫给排水平面图标注YL-2,雨水系统图中未标注,是否参照YL-1?
答:是参照。
14、社区中心一层给排水平面图中标注JL-5,系统图为标注,请明确?

答:JL-5为裙房卫生间给水管,详见裙房卫生间大样图。
15、社区中心给水系统图中JL-2立管布置至3层,平面图JL-2布置至10层,以何为准?
答:JL-2以系统图为准,布置至3层。
16、如图所示:社区中心负一层给水管由市政接消防泵房的管径未标注,请明确?

答:引入处均已标注管径,均为DN100。
17、如图所示:社区中车库集水坑排污泵原理图,箭头标注的闸阀平面图未标注,是否标注有误?

答:标注有误,此处无需闸阀。
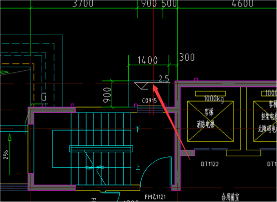
18、如下图所示,2#、3#楼消火栓系统立面图标记处是否计入工程量?如计入请明确标高?

答:按图计入标高1米1。
19、如下图所示,2#、3#楼消火栓系统立面图标记处是否计入工程量,如计入请明确标高?

答:按图入贴负一层梁底。
20、如下图所示,5#楼给排水大样图平面图支管管径和立面给水图支管管径有区别,该怎样计入请明确?

答:以大样图为准。

21、如下图所示,5#楼给水立面图里进户支管未给出距离地面的标高,请明确?

答:穿梁进户(贴梁)。
22、如下图所示,5#楼冷凝水立面图里标记处未给出标高,请明确?

答:穿梁进户(贴梁)。
23、如下图所示,5#楼排污泵大样图里标记处未给出标高,请明确?

答:穿顶板出户。
(二)电气部分:
1、如果所示:可视对讲系统进户配管数量系统图和平面图标注不一致,请明确?


答:可视对讲系统配管按1PVC20计入。
2、如图所示:门卫一层照明平面图中箭头所指电气具体的名称和规格型号,请明确?

答:按此灯具计入。![]()
3、如图所示:门卫照明配电箱设备材料表和系统图的安装高度有矛盾,以何为准?


答:统一按距地1.6m。
4、如图所示:6#楼负一层弱电平面图桥架规格型号标注不一致,以何为准?

答:按金属防火桥架计入。
5、如图所示:6#楼火灾自动报警系统图仅在一层标注广播功率放大器,标准层消防平面图也标注了,是否有误?


答:以系统图为准,仅一层设置。
6、如图所示:6#楼火灾自动报警系统图中标注的消防电梯紧急迫降按钮未标注配管配线规格,请明确?

答:配管按1JDG20计入,长度按从消防电梯机房电梯控制箱到一层消防电梯操作按钮计入,控制线量应计入电梯工程,由厂家配套完成。
7、如图所示:设备表中端子箱安装高度和平面图中标注不一致,请明确?


答:统一距地300。
8、如图所示:8#楼住宅弱电系统图中负一层标注摄像头,负一层弱电平面图未标注摄像头及线路,请明确?

答:视频监控系统以智能化图纸为准。
9、如图所示:8#楼负一层消防平面图,桥架规格型号未标注,请明确?

答:按100x100金属防火桥架计入。
10、 如图所示:7#楼电气设计说明设备表中弱电综合接线箱安装高度和弱电平面图设备表格中安装高度有冲突,以何为准?


答:统一距地500。
11、 如如所示:7#楼火灾报警系统图中箭头所指图例的名称、规格、型号?

答:按此模块计入。![]()
12、如图所示:7#楼AP系统图标注自行车库照明箱-1AL支路,BP系统图并未标注,负一层配电平面图标注-1AL两条线路分别从AP、BP引入,以何为准?


答:以系统图为准
13、如图所示:7#航空障碍灯系统图标注配管规格和平面不一致,以何为准?


答:按SC20计入。
14、如图所示:7#楼航空障碍灯5#支路光电式开关在平面图未标注,请明确?机房层照明图箭头所示引上线,请明确?

答:配电箱配套安装在箱体上。
15、如图所示:7#楼视频监控系统接摄像头配管规格型号未标注,请明确?视频监控干线图标注负一层、一层各有2个摄像头,平面图仅在一层标注了1个摄像头,请明确?

答:按平面图示意,采用1台。
16、如图所示:社区中心照明平面图中框选的电器的名称、规格、型号请明示?

答:按此型号计入。![]()
17、如图所示:社区中心消防报警系统图中框选的电器的名称、规格、型号请明示?

答:为1750B输入模块(配水流指示器)。
18、如图所示:4#楼一层消防平面图桥架和一层弱电平面图中所画桥架是否为同一桥架?


答:为分别单独的桥架,不可共用。
19、如图所示:社区中心低压配电干线图中主控照明配箱导线分流器规格型号,请明确?

答:一~五层照明干线为DLF1-35/185,六~十层照明干线为DLF1-35/240。
20、如图所示:社区中心负一层照明平面图中荧光灯线槽规格型号未标注,请明确?

答:按100x50(WxH)计入。
21、请提供单元口壁灯规格参数。

答:户外云石壁灯60cm*20cm*12cm。功率: 40W,电压: 240V。
22、社区中心提供的智能化设备清单中包含室外管网,但本次未见室外相关图纸,本次如何考虑?
答:室外智能化工程按智能化设备清单计入。
23、社区中心如图所示:箭头所指图例的名称、规格、型号请明确?

答:按此计入。
![]()
24、社区中心如图所示:消防报警系统图中标注竖井内桥架规格和强弱电竖井设备表中标注不一致,请明确?


答:火灾报警线路用桥架按100x100计入。
25、自管配电房出线至单体楼,图纸无具体电缆、配管、桥架走向及规格型号,如何计入?
答:应计入,自管配电房至单体桥架见地下室电气施工图,电缆型号规格见各单体施工图。
26、如图所示:各单体楼内无剩余电流报警系统,在电表箱系统图纸中标注出剩余电流报警系统,工程量是否计入?
、
答:按系统图应计入。
27、如图所示:在3#单体楼内一层平面图纸中标注800*800*1000电缆手井,此手孔井是否与室外手井重复?是否计入?

答:不重复,须计入。
28、1#楼XT,KT系统图中3#支路机房插座在机房层照明平面图中线路敷设未标注,请明示?
答:每个电梯机房均预留一安全型单相五孔插座,管线按预留1m考虑,插座位置现场施工时确定。
29、1#楼XT,KT系统图中6#支路轿厢照明在机房层照明平面图中线路敷设未标注,请明示?
答:预留5m管线,轿厢照明电源接驳点位置须电梯厂家确定。
30、1#楼AW1,AW2系统图标注线管敷设方式和平面图标注不一致,以何为准?


答:以系统图为准。
31、1#楼2ALG、8/14ALG系统图中W7支路门禁电源支路在照明平面图中标注线路,请明确?暂未计入。
答:为预留弱电井内门禁电源,预留2m管线至弱电井位置,具体接线由厂家完成。
32、1#楼电气设计说明设备表中紧急求助按钮安装高度距地1m,弱电平面图设备表格中安装高度0.9m,以何为准?暂按设计说明设备表计入。
答:统一下沿距地1m。
33、1#楼电气设计说明设备表中可视对讲用户话机安装高度距地1.3m,弱电平面图设备表格中安装高度1.4m,以何为准?暂按设计说明设备表计入。
答:统一下沿距地1.3m。
34、1#楼弱电平面图设备表中图示箭头配管规格材质是PVC还是JDG,请明确?

答:公共区域采用JDG,住户内PVC。
35、如图所示:所有强、弱电桥架是否按图计入?



答:局管桥架在供电局施工范围内,强、弱电其余桥架计入。
(三)室外安装
5.如下图所示,室外排水及消防总图污水图中通气管没有规格,请明确?


答:参照160同规格材质通气管。
2、如图所示:火灾自动报警室外总图中,电气消防系统用防火金属封闭线槽是否布置在地下室?

答:是,仅地下室有金属线槽。
3、如图所示:手孔井、排管、土方,是否按图计入?

答:计入。
4、平面图中未标注,过路段,排管过路段增设钢套管工程量,如何计入?
答:按实际室外过行车道路段计过路段增设钢套管工程量。
(四)智能化
1、如图所示:室外干井是否与火灾报警室外干井重复?


答:为同一个干井。设计原则为消防与弱电智能化共井不共管道,弱电智能化总图中有与消防总图重合的井道为共用井道。
2、排管是否计入?平面图中未标注增设钢套管具体位置工程量如何计入?
答:排管与增设套管按图中标注计入,详见总图中的文字说明表格。
3.摄像机立杆安装、周界围墙立杆、基础、接地等设备,是否按图计入?

答:按图纸计入。
(五)景观
1. 如图所示:室外手孔井尺寸设计说明与景观灯具安装详图规格尺寸不一致,如何计入?


答:按180厚计入。
2. 如图所示:庭院灯基础图纸未提供具体尺寸,如何计入?
答:
3. 如图索所示:庭院灯灯杆内是否需要穿线缆,无具体规格型号及长度,如何计入?

答:线缆规格以系统图回路出线为准,长度以景观图纸上庭院灯灯杆长度X2计入。
4. 如图所示:

(1)配电箱ALJG1、2进线线缆是否需要计入,图纸无具体线缆、配管走向,线缆配管工程量如何计入?
答:ALJG1从住宅地块门卫照明配电箱引来电源,ALJG2从净菜市场一层电井引来电源。
(2)图纸未明确门卫、净菜市场具体位置,电缆、配管无具体走向,工程量如何计入?
答:ALJG1箱设置在门卫室内,ALJG2从社区中心负一层自管配电房经由一层电井引来电源。
5. 如图所示:

(1) 景观照明平面图一图纸中标注“电源进线引至本层照明箱备用回路,该备用回路后新增一个时控开关” 电源进线是否需要预留,预留多少米?
答:按50m计入。
(2) 新增一个时控开关无具体规格参数,如何计入?
答:型号为KG316T。
6.平面图中无排管?如何计入?
答:见景观照明专项设计系统图。
7.如图所示:此处线缆由何处引来?此建筑物位于什么位置?

答:为社区中心三层。
8.平面图中未标注过路段,过路段是否增设钢套管,工程量如何计入?
答:按实际室外过行车道路段计过路段增设钢套管工程量。
(六)住宅楼
1. 如下图所示,住宅楼2#、3#楼负一层给排水平面图中,压力排水管是否仅计算图纸中长度?

答:此处长度应以总图为准。
(七)地库
1. 地库喷淋系统喷淋管的材质设计说明里未给出,请明确?
答:内外热镀锌钢管。
2.如下图所示,地库集水坑连接泵的管地上未给出标高,请明确?

答:按1.5M计入。
3.如下图所示,地库喷淋立面图里标记处未给出标高,请明确?

答:贴梁底。
4.地下车库战时平面图里给水管和压力排水管管材未给出材质,请明确?
答:压力排水管:热镀锌钢管 给水管衬塑镀锌钢管。
5.如图所示:

(1)地下室端子箱数量为11个但是系统图线缆根数与端子箱数量不一致,如何计入?
答:以平面图端子箱数量为准。
(2)消防控制式连接地下室端子箱线缆规格型号是采用WDZN-KVV还是采用WDZBN-RVVP、WDZBN-BYJ、WDZBN-RVS,请明确?
答:以WDZN-KVV为准
11.如图所示:室内空气质量监控系统中无配管工程量如何计入?

答:穿JDG16暗敷。
12.如图所示:系统图出线回路与平面图不一致如何计入?


答:以平面图数量为准。
13.如图所示:平面图中未找到对应设备及出线回路,如何计入?


答:2CK应计入。
14.如图所示,平面图中未找到对应系统图配电箱代号,该如何计入?

答:此配电箱应为自管配电房照明配电箱,因自管配电房还未设计,可暂时不计,待配电房设计时再考虑,可含在配电房设备内。
15.如图所示,平面图中灯具无对应系统图,该如何计入?

答:此灯具为防水防尘应急灯,T5-1x28W Cos∅>0.9,自带蓄电池,应急时间大于180分钟。
16.如图所示,平面图中箱体与系统图不符,该如何计入?


答:以平面图回路名称为准。
17.如图所示,平面图中出线回路无对应系统图,该如何计入?


答:以平面图回路为准,如系统图多了,可按照备用回路计算。
18.如图所示,平面图中出线回路无对应系统图,该如何计入?


答:以平面图回路为准。
.19.如图所示:“(二次咨询意见修改版火灾报警室外总图)东城新海苑复建点B地块图纸”与“04消防干线√建筑咨询意见修改2020.4.7建筑咨询意见修改4.3第一次修改4.7第二次修改”图纸中预埋套管数量及桥架规格、走向不一致,如何计入?




答:以总图为准。
20、如图所示:平面图中配电箱插座是否按图计入?


答:计入。
21、开闭所引自配电房进线电缆无具体路由走向配电箱进线电缆工程量如何计算?
答:按照WDZBN-YJV-5X16-SC40-CT.WC单根200米长度计算。
(八)暖通系统
1. 如下图所示,住宅楼2#楼风井内风管没有标注规格和长度,如何计入?

答:此风井内部无风管。
2.如下图所示,地下负一层风平面图中,消防补风轴流风机S(B)F-B-1和消防补风轴流风机S(B)F-B-2是否计入?


答:计入。
第四节:室外绿化部分:
1、屋顶绿化基层处理方式?
回复:景观图纸LD-14,具体防水及保护做法,详见建筑图纸
2、苗木为几级养护,成活期多少时间,保存养护期多长时间?
回复:二级养护,成活期三个月,养护期二年。
3、屋顶回填土是否为种植土,厚度多少,请设计明确。
回复:屋顶回填土普通土壤(绿化种植乔木都在成品花箱),厚度为30CM
4、种植土是否按下图计算,如是请明确哪些是浅根乔木,哪些是深根乔木、大小灌木的区分,以及种植土的宽度、厚度。

回复:设计覆土厚度已经满足种植需要,地形以及苗木种植只需按图施工即可。
5、种植胸径在5CM以上的乔木应设支柱固定,支柱应牢固,绑扎树木处应夹垫物,绑扎后的树干应保有持直立,具体方法如图(二三四):
,请设计明确具体以哪种支柱固定。
回复:建议选用图三的支撑形式。
6、消防通道、登高面及停车位植草砖内草坪处请设计明确是铺设沙培百慕大草皮卷还是播撒草籽。
回复:播撒马尼拉草籽。
7、φ0.6-1.8m景石一块多重,请设计明确。
回复:总重65吨,注意大小搭配。
8、种植胸径在5cm以上乔木应设支柱固定,如下图
,灌木需要设支柱固定吗?如设,请明确支柱做法。
回复:灌木采用一字支撑。
9、请设计提供(换)填种植土总方量。
回复:绿化面积*30cm。
10、微型堆坡采用什么土壤,请设计明确。
回复:素土回填。
第五节:室外景观部分:
1、景观工程双臂廊架独立基础、地梁、柱、混凝土标号请设计明确。
回复:采用C25混凝土
2、画廊基础、柱混凝土标号和基础深度请设计明确。
回复:采用C25混凝土,基础深度至地库顶板
3、双臂廊架构架下坐凳花岗岩贴面立面图与大样图 不一致,请设计明确。


回复:芝麻黑光面
4、道路反光镜数量表与图纸不一致,请明确数量

景观回复:10个
第六节:室外排水部分:
1、雨水口连接管用什么材质,管道规格型号?数量表里面雨水口连接管全部是II级钢筋混凝土管d300,雨水口连接管采用C20砼包管20cm?
回复:雨水口连接管管径D200,其他按图施工
2、是否接入原有市政井内?
回复:按图计入,接入到市政预留井
第七节:大兴路:
一、 标注、标线
1. 如图所示:请明确交通平面图纸中, 交通过路钢管, 信号灯连接PE管,请提供安装大样图?


答:钢管埋设参见说明要求,连接参照SⅢ-5-4基础大样图。
2. 信号灯连接PE管是否为三根并排排列?
答:参见说明书23页相关要求。
3. K0+000至+120段是否有监控?平面图纸中未标注监控具体未,无机柜出线至监控回路,工程量如何计入?
答:无监控。
4. 如图所示:请明确组合式标志牌,立杆具体规格和参数、安装大样图?

答:参见图纸SⅢ-4-9。
5. 如图所示:请明确指路标志牌,400*200cm标志牌,所用立杆具体规格、参数、安装方式?
答:参见图纸SⅢ-4-5,SⅢ-4-6。

6. 如图所示:
(1)请明确大兴路与龙岗路交口手孔井是否计入?
答:计入。
(2)K0+000至+120段所有手孔井是否均按图计入?
答:计入。
(3)此标志牌是否计入?

答:计入。


7. 如图所示:K0+000大兴路与龙岗路交口处标志标线是否计入?标志标志从 何处开始区分原有标线?
答:按施工范围。

8. 如图所示:请明确此标线是否计入?请提供规格、参数,安装大样?
答复:不计入,按施工范围。

9. 如图所示:请明确二个挡车柱中间,减速标线是否在此次范围内?请提供规格、参数、安装大样?

答复:在施工范围,线宽45cm,参照下图实施。

二、 室外排管
1.如图所示; 三通工井至手孔井段排管,是何种材质?

答:参见设计说明GA51011S-D0101-001
三、 室外照明
1、如图所示:请明确需要预留多少米电力电缆及排管?请明确预留排管与电力电缆具体规格、参数?

答:按VV-1kV 5x16,每条线各考虑10米。
四、 道路部分
| K0+044.445 |
~ |
K0+120.000 |
|
1、 下图中级配碎石回填工程量如何确定

答复:沟槽回填按长度比例计算分配,台阶及格栅不考虑。
2、 请提供道路与人行道顺接坡口处是否设置挡车柱,设置多少个,具体做法是什么
答复:本路段不考虑。
3、 下图图示位置是否为公交停靠站地面做法,

答复:是的。
4、 下图中是否为人行道做法

答复:是的。
5、 下图中路缘石是否设置3cm1:3水泥砂浆结合层

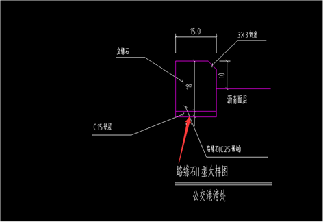
答复:按图实施即可。
6、 下图中是否改为3cm1:3水泥砂浆结合层

答复:按图实施即可。
7、 下图中路缘石是否设置3cm1:3水泥砂浆结合层

答复:按图实施即可。
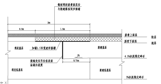
8、 本项目是否存在道路顺接是提供做法,新旧沥青路衔接处理,新沥青路与旧混凝土路衔接,请提供做法和工程量
答复:按下图实施,新旧沥青路衔接16m.

9、 植草防护的草籽、挖土工程量如何确定
答复:草种均选用狗牙根和黑麦草混播满铺,按长度比例分配。
10、 施工范围内是否有现状道路需拆除外运
答复:计入22cm厚水泥砼路面拆除220平米,另现场有弃土,需在原土方数量基础上增加挖方外运4047方。
11、 按业主要求增加K0-K0+044.445沥青机动车道面积490m2
12、 盲道砖材质未提供,请明确?
答复:与人行道砖一致。
13、 盲道砖厚度为5cm,纽西兰地砖为6cm,是否有冲突请明确?
答复:统一按6cm。
注:此补疑视同招标文件的组成部分,与招标文件具有同等法律效力。
2020年6月24日
三、附件
答疑发布日期:2020年06月24日